“居住性”与“交往性”
上海漕宝路长租公寓

庭院人视▲
长租公寓作为解决年轻人居住要求的重要手段,这些年来一直是各路资本的竞赛场,而伴随一些噱头概念的资本游戏下的品牌暴雷,长租公寓的走向成为社会话题。
“居住性”是都设在公寓设计中的一贯坚持------都设这些年设计了从普通公寓到豪华公寓的诸多项目:在常规的小面积产品中强调空间的拓展性、在中面积段产品中强调公共客厅餐厅的共享性、在大面积段项目中塑造传统住宅所不具备的“豪宅性”。
作为罕见的市中心(上海内环旁)的新建长租公寓,本项目带有一定的探索性。本项目也是都设低成本高完成度的建筑室内一体化实践

设计背景
项目位置位于上海徐汇区田林,向南两公里为上海南站,城际交通方便,北侧两公里范围内有衡山路、上海体育馆及游泳馆可以满足场地内的康体娱乐需求。总建筑面积约为22000平方米。作为一体化设计项目,都设负责完成本项目的方案设计、扩初、立面控制图以及公区部分的室内设计。

项目位置▲
场地西侧临浦江塘,东侧远眺漕溪公园,东南侧为漕宝路和漕溪路交叉口,交叉口处同时为地铁12号线和地铁1号线换乘站,整个场地内景观资源丰富,交通便利。

项目位置▲
场地内塔楼部分由636套公寓组成,共计28层,建筑高度80m。场地内滨河布置景观餐厅,面积为280平,共计两层,与塔楼部分间形成由台地绿化围合而成的景观庭院。

项目鸟瞰▲

设计策略
a. 总图策略
L形建筑围合庭院,连接滨水景观步道,场地局部堆坡,形成高差,使外部空间更富有韵律和层次感。全景餐厅依水而立,是整个场地的焦点,可以提升项目的特色,增加话题度。

体块分析▲
b. 立面策略:传统聚落剖面的现代转译
方案伊始,我们注意到本案要求的500多户公寓,很容易让人联想到一个中型的乡村聚落。而如何将传统的乡村聚落进行合理的现代语言转译便成了本案立面设计的切入点。我们概念村落街区提取了多个剖面,之后保留房屋折线并进行几何简化,最后将此处区域的折线重复错拼叠加,以四层为一个单元形成最终的立面模板。同时也形成了立面上错落有致的韵律感。

立面生成▲

人视效果图▲
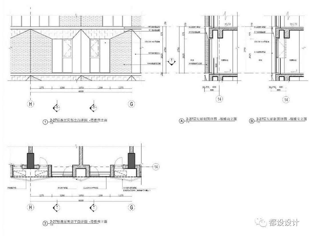
立面空调机位的遮挡采用穿孔铝板单元设计,室内开启,将铰链隐藏在分缝造型,保证立面造型的整洁精致。穿孔板部分使用了直径为18mm的圆孔,因为需要满足空调机位通风需求,使用了渐变穿孔的手法,下密上疏。同时也为立面增加了更多细节, “造型即功能”是都设在本设计的准则之一。

穿孔板形成电池图▲

立面主要材质▲

标准段大样▲

标准段实景▲
c. 户型策略:注重坪效
作为绿地集团首个长租公寓项目,户型设计以“居住使用”为原则,充分研究青年人群的生活需求和价值观,恰到好处的满足生活必需,利用墙面,解决收纳储藏等功能,释放空间,弘扬都市生活新概念、打造不一样的青年“家”,“可居住性”是这个项目的特点。

然而,同时长租公寓发展至今,仅仅是从居住属性提升其品质已经很有限,因此,需要设计从附加属性来提升其价值。作为重资产集中的自建式长租公寓,设计使得硬件的提升对于资产增值来说也是最高效的。

d. 吸引力:注重“居住性”与“交往性”
青年人居住的地方,除了居住需求,其他的需求更为广阔,这也是本项目将整个一层空间都作为公共空间的出发点。而且创造性的讲一些配套功能与生活习惯相对接:比如健身房和洗衣房设置在一起,洗衣时就可以健身;比如学习空间和吧台设置在一起,方便举办活动时提供服务;比如开放式的影音空间靠近入口,让这里成为大家都去凑热闹的地方。餐厅沿河独立设置,在塔楼和餐厅之间形成内向型的聚会活动场地。

城市会客厅▲

面对花园的洗衣房健身区▲

室内设计
这不是都设第一次做室内外一体化设计,但是这一次仍然遇到了新的挑战,公寓的公区室内设计和以往办公大堂的差异很大,空间组成更复杂的同时造价反而更有限,造型需要更有视觉冲击力,对材料、色彩的选择上更强调个性和多样性,同时兼顾价格。
功能配置上提出:“小、独、共、全”的整体策略,小:高效、集约、精致;独:独立、私密、独特;共:共享、开放、弹性;全:全面、多元、融合。
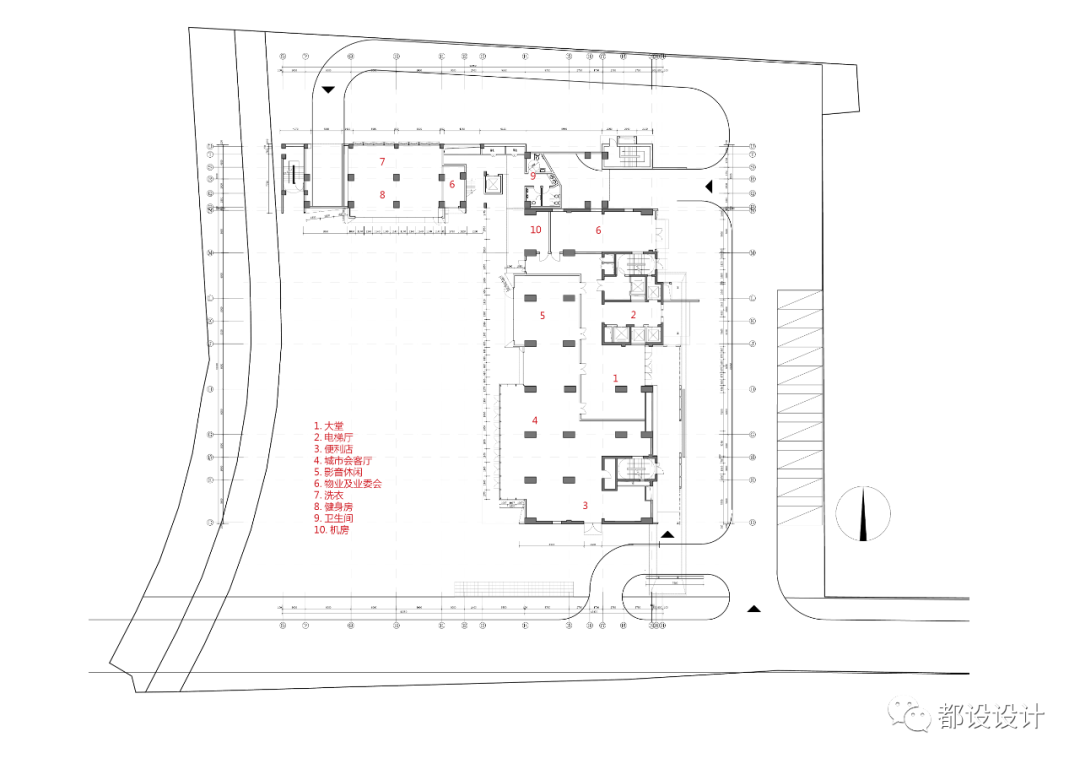
底层公共空间配以洗衣、健身、城市会客厅等常用功能,迎合多种特点的客户需求,充分延长住客的停留时间,增加归属感,扩大消费群体的范围。

设计范围▲
区域空间打通,一体化处理,软性隔断打造流动的空间体验,功能虽多也不会感到闭塞。

一层平面▲
上海作为远东第一大城市,有着深厚的工业文明的历史积淀,在这座城市打拼的年轻人们在追溯过去岁月的记忆与荣光的同时也有着对未来的野心和向往。

大面积仿混凝土涂料墙面和黑色金属网吊顶奠定了整体偏工业感的空间体验。吧台区域家具装饰选用纯度较高的红黄蓝三色,使得这一处空间在整个公区能轻而易举的脱颖而出,简洁的几何线条和金属材质强调工业感元素。拱形吊顶起到限定空间区域的同时注入一些动感活跃的元素。

大堂吧▲
城市会客厅、影音室等公共休闲区域在整体黑白灰的色调基础上加入木色的元素,提亮空间环境氛围。

影音室▲
健身房面积较小,所以单侧墙面选用了镜面材质,从视觉上放大空间感受。洗衣房设置在健身房内部,让人在等待可以在等待洗衣的同时健身,节约时间。同时洗衣房外墙选用橙色涂料,既让空间分区一目了然也增加了健身房的色彩氛围感。

健身洗衣房▲
公共卫生间色调相较其他区域更克制朴素,镜前区域墙地面使用水磨石作空间限定,洁具选用黄铜色材质作为点缀。

公共卫生间▲

电梯厅▲
标准层门套渐变的色彩削弱走道单调乏味的空间感受,提高单圆户的辨识度,提升住客的归属感。

标准层走道▲

结语
当代年轻人的居住绝不会被资本市场的游戏所左右,他们的消费也绝不是依据传统来的。只有从各方位脚踏实地的去打造符合他们生活工作习惯并且引领他们的生活模式,基于“交往性”的“居住性”才能形成“聚合”,长租公寓的租金才可能坚挺。房地产的下半场,传统将越来越难。
项目图库

南立面图▲

西立面图▲

首层平面▲

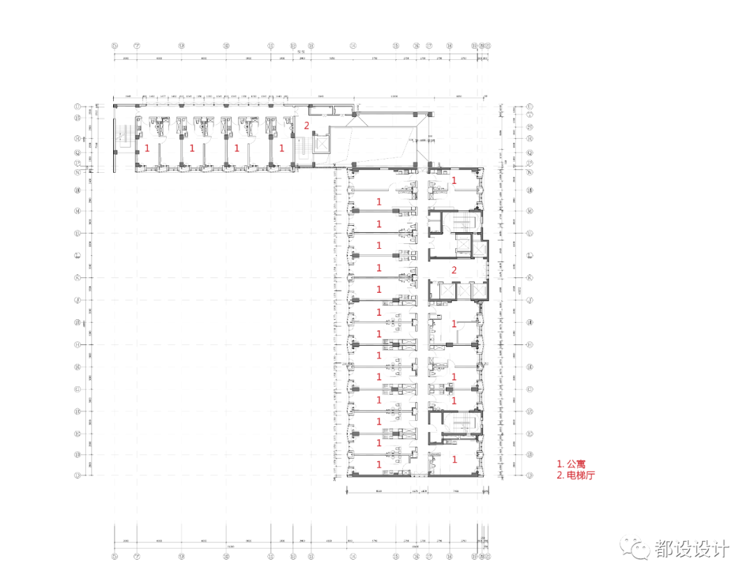
低区标准层平面▲

塔楼标准层平面▲
项目信息:
项目地点:上海徐汇区漕溪路
设计时间:2018-2019
总用地面积:7600㎡
建筑面积:22800㎡
项目类型:青年长租公寓
业主:众智(上海)公寓管理有限公司
建筑设计及公区室内设计:上海都设营造建筑设计事务所有限公司
合作设计院:上海都市建筑设计有限公司
幕墙深化施工:江苏睿生源建设有限公司
景观及客房室内设计:上海联创设计集团股份有限公司
欢迎加入
公寓建筑(设计交流群)


微信公众号“搜建筑”(ID:sjz9999)
合作、宣传、投稿
请加小编微信:soujianzhu006

