▲ 更多精彩,点击上面“搜建筑” 关注即可

在安特卫普的Slachthuis区,META完成了Koning Noord公寓建筑:一个拥有26栋房屋、一个托儿所和一个工作空间的项目。
受ISTATE委托,META设计了2块原始混凝土,将它们与围绕内部花园的基座连接起来,用金色电镀铝细木工和栏杆完成了建筑。


通过在概念和执行上优先考虑严格的合理性,META为设计一个宽敞的建筑腾出了空间。
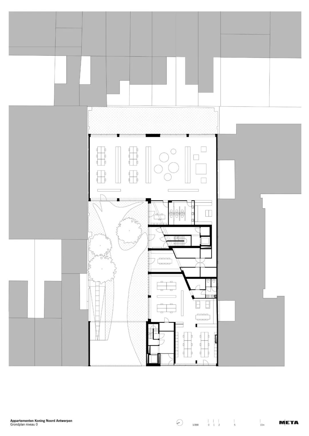
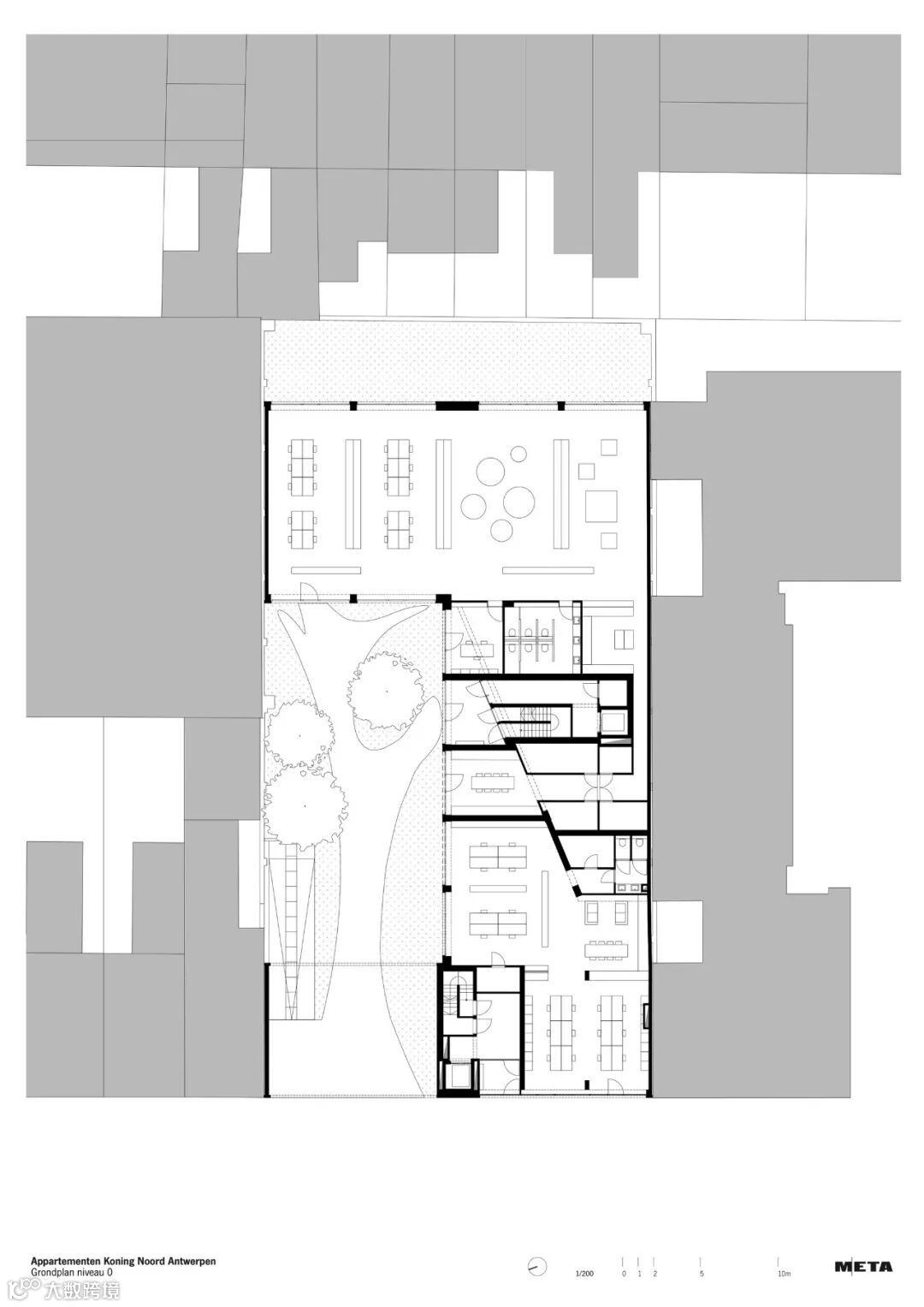
Koning Noord由2栋建筑组成:一个体量在街道一侧,完成了Twee Netenstraat的立面,另一个体量位于地块深处,也连接了相邻的建筑。两个体量在一层通过一个连续的基座连接起来,这个基座环绕着内部花园。
By prioritising rigorous rationality in both concept and execution, META makes room for the design of a generous building. Koning Noord consists of 2 buildings: a volume on the street side that completes the facade row of the Twee Netenstraat and – lying deep on the plot – a second volume that also connects to the adjacent buildings. The 2 volumes are linked on the ground floor by a continuous plinth that folds around the inner garden.


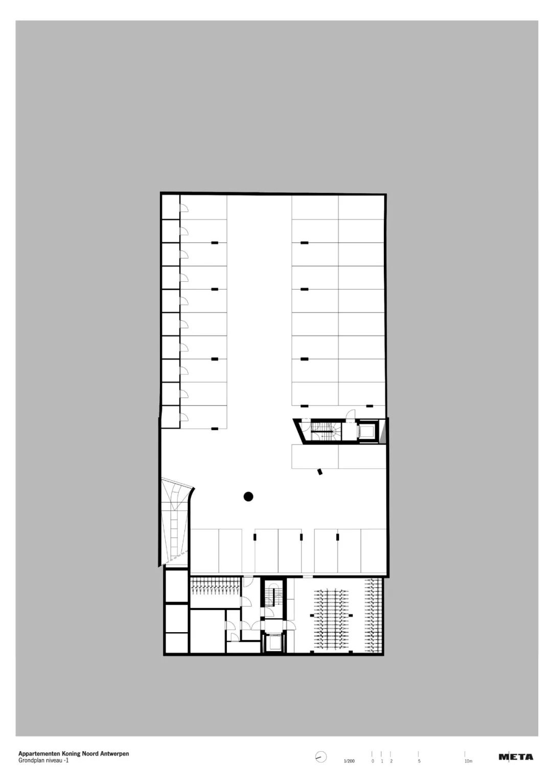
这个基座的屋顶被用作密集的绿色屋顶,除了内部花园之外,形成了第二个水平的绿色区域。有可停放37辆汽车的地下停车场和83辆自行车的棚子。更多的公共功能可以在一楼找到:托儿所,可以从庭院花园和工作空间进入。
The roof of this plinth is used as an intensive green roof and forms, in addition to the inner garden, a second horizontal green area. There is underground parking for 37 cars and a shed for 83 bicycles. The more public functions can be found on the ground floor: the crèche, which is accessible from the courtyard garden and the workspace.

“独特的体量是邻近特殊建筑的结果。底层的基座围绕一个集体的内花园延伸,连接两个体量。”建筑类型规划确保了质量和可负担性。公寓位于两个体量内。
“The idiosyncratic volumetric is the consequence of the exceptional neighbouring buildings. A ground-floor plinth stretches around a collective inner garden and connects both volumes.” – Niklaas Deboutte, META architectuurbureau Typological plan ensures quality and affordability The flats are located in the 2 volumes.

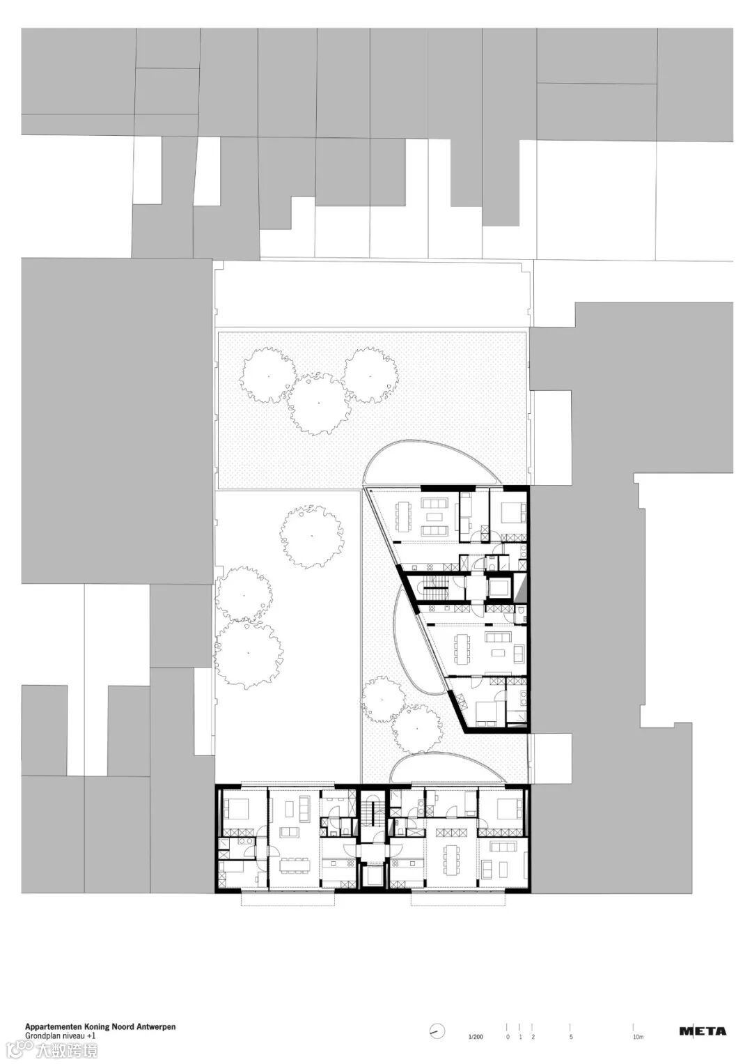
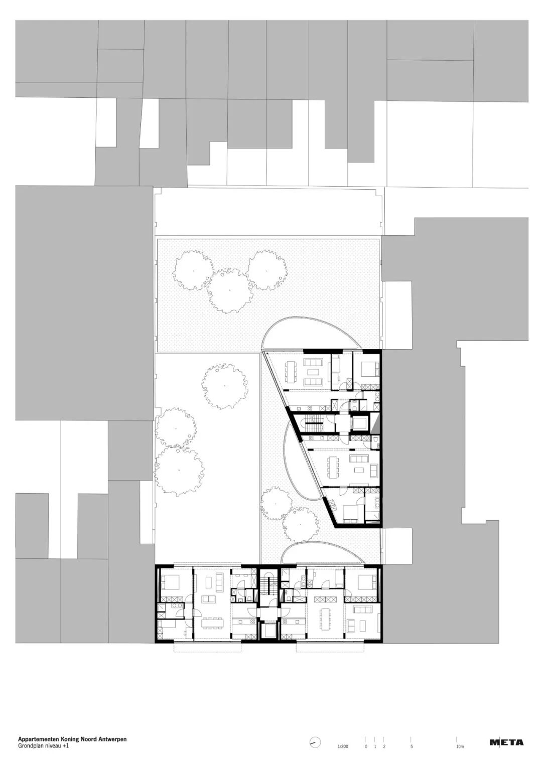
每层有四种类型的公寓,在每一层重复。只有街道一侧的顶层偏离了这一类型规划,以创建两个拥有宽敞屋顶露台的复式公寓。“该项目提供了可负担得起的、为社区量身定制的当代住宅,完全开发。”甚至在开工之前,这个项目就已经售罄。
——Bert Craeghs,
他认为最大程度重复一个类型规划有很多技术优势,增加了设计的逻辑性和可承受性。

窗户开口和露台明显位于彼此下方,创造了一个中性的建筑。最后,结构设计为未来公寓布局的变化提供了足够的灵活性。
灰色混凝土饰以金色的露台和栏杆,每一套公寓都有两扇大窗户。


通过分组开放和封闭的立面表面,混凝土可以使用木板模板在现场浇筑——传统上是一种昂贵的施工方法——同时在这个项目严格的财务框架内保持可行。
在露台、细木工、栏杆上,原始的灰色混凝土用金色的阳极氧化铝元素完成。“混凝土与木板模板的使用使项目与众不同。”
By grouping the open and closed facade surfaces, the concrete could be cast on site using plank formwork – traditionally an expensive construction method – while remaining feasible within the strict financial outlines of this project. The raw, grey concrete is finished with gold-coloured anodised aluminium elements in the terraces, the joinery, the balustrades,.. “The use of concrete with plank formwork makes the project exceptional.


为了在预算范围内实现这一功能,立面设计被合理化到极致。“- Eric Soors, META建筑局的结构工作是完成工作,内有一个非常详细的胴体,META应用了‘结构作为完成’的原则,这是他们的工作的特点:细心地详细描述胴体。结合严格的场地控制,这使得建筑具有了自己的特色。
In order to make this implementation possible within the budget, the facade design was rationalised to the ultimate extent.” - Eric Soors, META architectuurbureau Structural work is finishing work’ with a carefully detailed carcass Inside, META applied the ‘structure as finishing’ principle that is characteristic of their work: detailing the carcass with care. In combination with strict site control, this results in a building with its very own character.





地面平面图

1层平面图

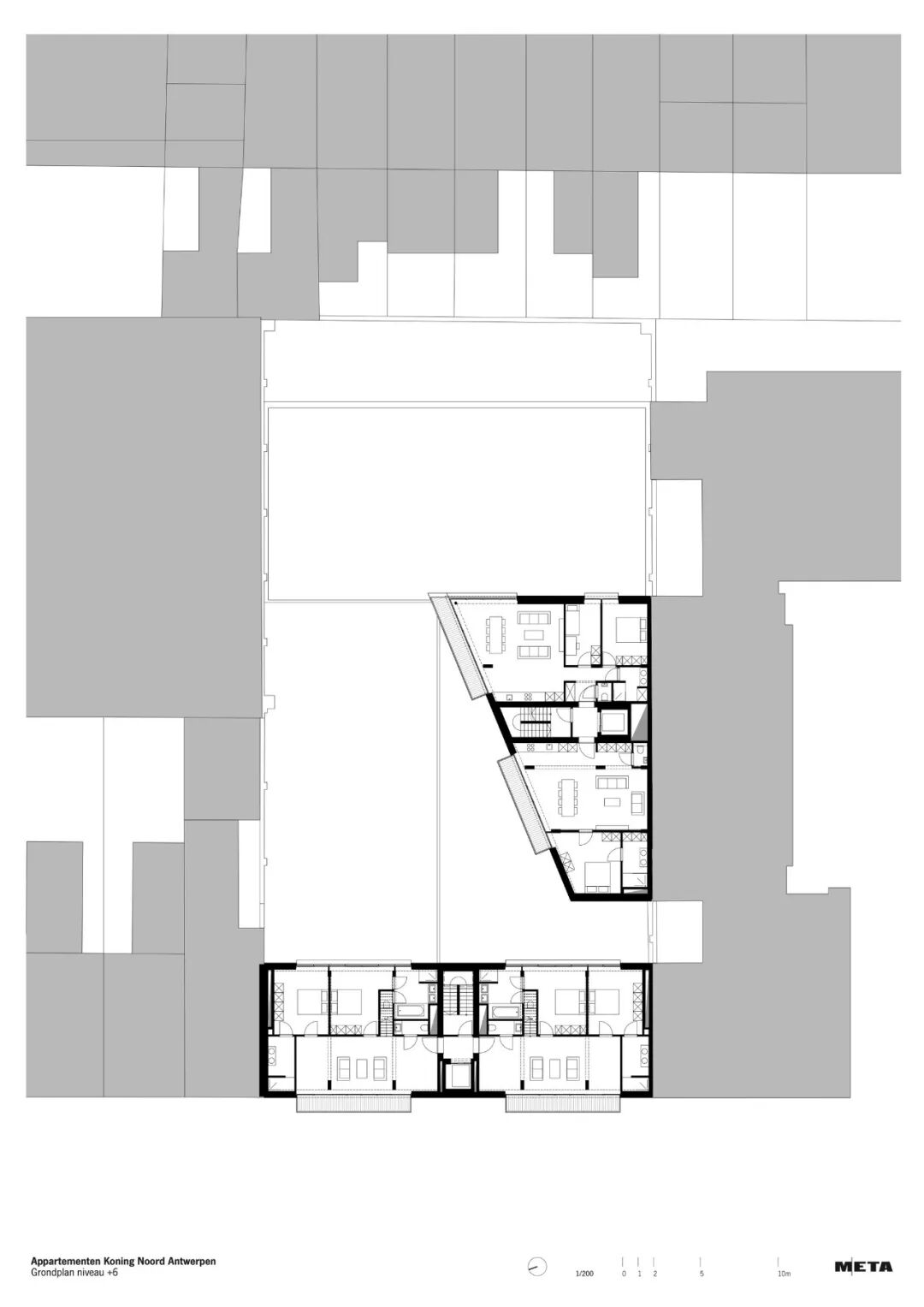
6层平面图

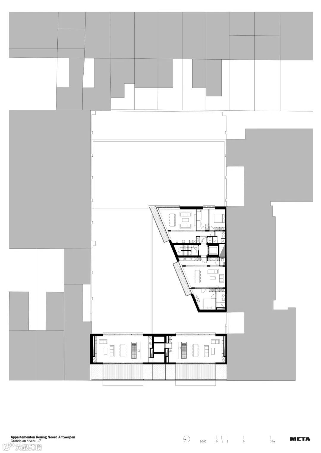
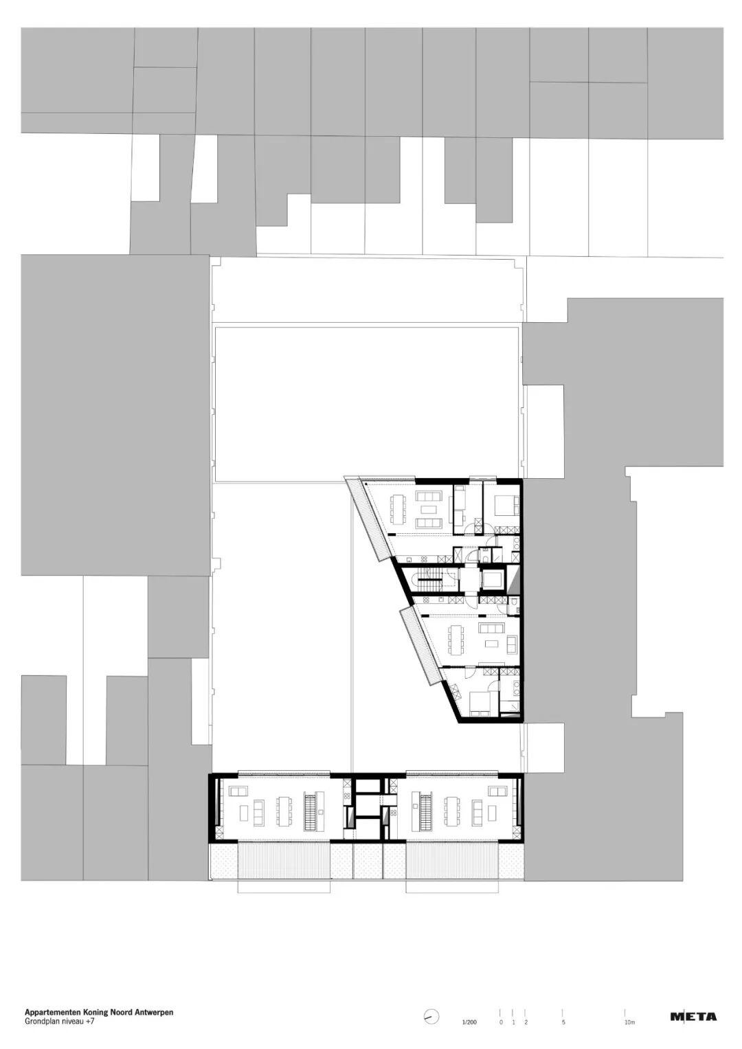
7层平面图

负一层平面图

立面图


剖面图


建筑师:META建筑事务所
地点:比利时
面积:4671 m²
年份:2020
新时期·产品方向
品牌地产 | 精品楼盘考察活动
12月·重庆站

微信公众号“搜建筑”(ID:sjz9999)
合作、宣传、投稿
请加小编微信:soujianzhu006


