▲ 更多精彩,点击“搜建筑” 关注即可

食客们在餐桌上就能欣赏到一幅巨大的梅江画卷,作为一个开放式餐厅。
有趣的是,在分开的帐篷里,仿佛置身于热带花园的感觉,让游客在这里停留更久,并在下一次旅行中再来,当地的食客也是如此。
The diners enjoy a massive Me Kong river picture right from the dining tables as an open restaurant. Interestingly, in the separated tents, the feeling of emerging in a tropical garden convinces the visitors to stay longer and come back in the next journey; so on the local diners.


在这个场地中,简单的材料使用和建设成功地创造了一个过去和现在,传统和现代的气氛。
几何形状的混凝土柱子轻盈地支撑着立体的竹子天花板和椰叶屋顶系统,加强了现代与传统精神相结合的设计。
The simplicity of using material and construction in this site successfully creates an atmosphere of the past and present, tradition and modern. The concrete columns in the geometric shape lightly support the system of three dimensions bamboo ceilings and coconut leaves roof, enhancing the term of combining a mix of modern and traditional spirit in design.


在选材上,以椰子材料、天然石材等有机物作为反复出现的设计元素,需要营造出一种热带风情。
值得注意的是,椰子树以其原始的形态被用于建造入口大门和私人帐篷。这个设计理念贯穿整个项目,甚至每个人物的具体细节都有它的装饰。
此外,大块的原石保留了自然的色彩,俏皮地设置在餐厅中央的酒吧,甚至连洗手间的实心石拉瓦布都保持着原始的形状。
功能性的设计也让酒吧内的家具别具一格,妙不可言。
In selecting the materials, coconut materials, natural stone, and the other organic objects as the recurring design elements needed to produce a tropical atmosphere. Significantly, the coconut trees are used in their original forms to build the entrance gate and the private tents. The design concept runs through the entire project; even each figures' specific details are adorned with it. Besides, the raw rocks in big size remained nature color playfully set up the Bar in the middle of the restaurant, even the solid stone lavabos in restroom area are still in their raw shape. Moreover, the functional design makes the furniture in the Bar to be unique and fabulous.


贯彻设计精神,沿河的隔离餐桌,设计成秋千,带来漂浮在水面上的感觉;而绿植覆盖整个地面,在更高的葫芦桁架和绿椰顶上升起。
Following up with the design spirit, the isolated dinner tables along the river, designed as the swings, bring about the feeling of floating on the water; and the greenery covers the whole ground and rises on a higher level gourd truss and green coconut tops.


在原材料的色温和精致的细节下点亮建筑,建筑的美感就达到了。其中一个精致的是混凝土柱子上的竹子图案,在温暖的灯光下,重量级的材料变得柔软,轻盈无比。
The aesthetic of architecture achieves when lighting up the building under the color temperature of raw materials and delicate details. One of the sophisticated figures is the bamboo patterns on the concrete columns; under the warm light, the weighty material becomes softer, lighter than ever.

一般来说,餐厅诠释了绿色花园和河流之间的交流。这种对话也通过开放的建筑将陆地与水岸的空气和空间连接起来。
















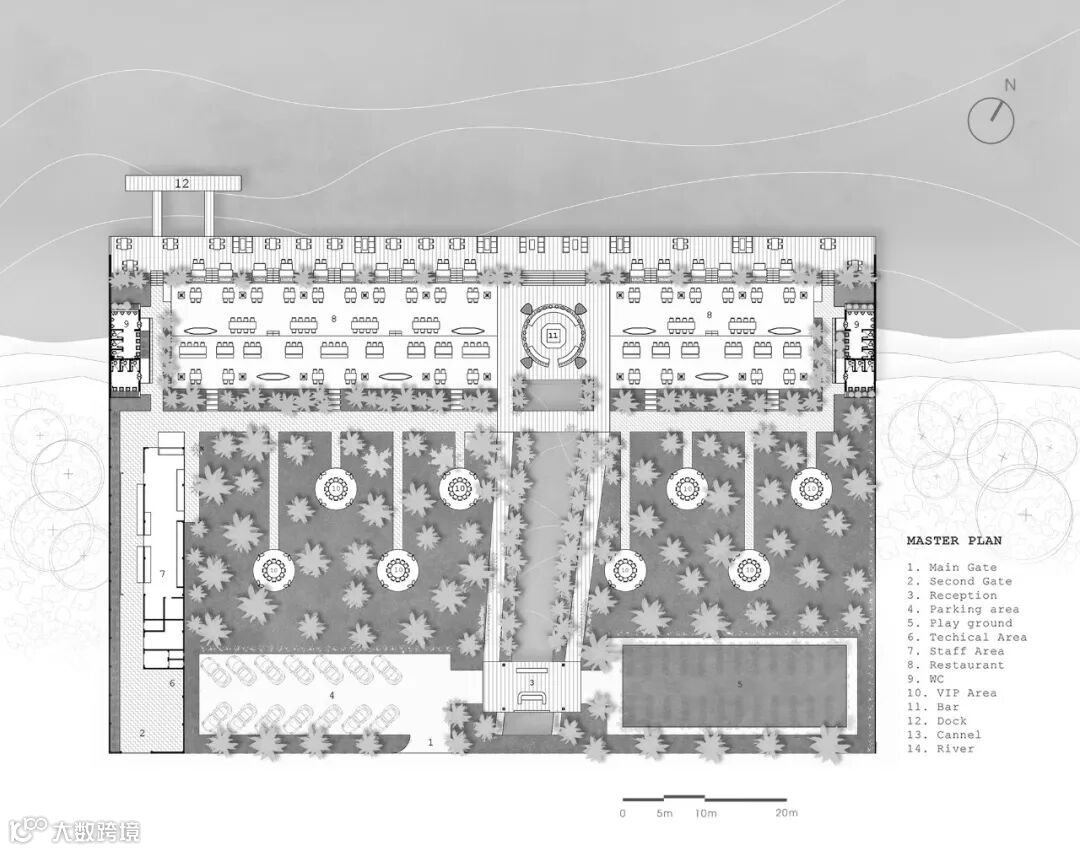
主平面图

剖面图

屋顶结构图

细部分析图


设计单位:DDconcept建筑事务所
地点:越南
建筑面积:6000平方米
建筑年份:2018

微信公众号“搜建筑”(ID:sjz9999)
合作、宣传、投稿
请加小编微信:soujianzhu006

