▲ 更多精彩,点击上面“搜建筑” 关注即可

中国南山区深圳湾高新科技生态园 深圳湾高新科技生态园是一个规划面积达1,880万平方英尺的开发项目,可容纳研发中心、上市高科技公司总部和中小型企业创新孵化中心。
Shenzhen Bay High-Tech Eco-Park, Nanshan District, China The Shenzhen Bay High-Tech Eco-Park is a planned development consisting of 18.8 million square feet accommodating R&D centers, headquarters of listed high-tech companies, and incubator centers for small/medium business innovation.

该项目旨在成为具有重要战略意义的新兴产业平台、国家低碳产业园,以及深圳高新技术产业园南区的配套中心。
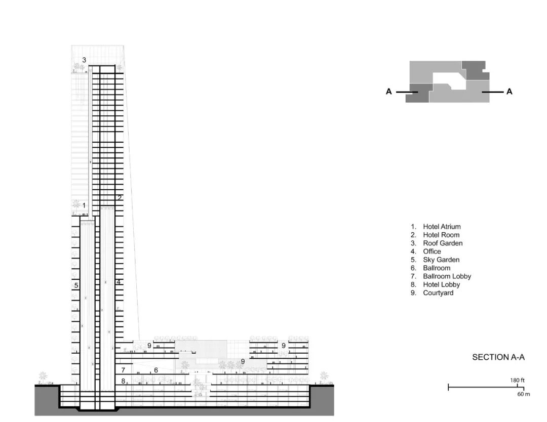
B-Tech塔楼 高820英尺的B-Tech塔楼是深圳湾高科技生态园内最高的建筑,是2012年开始的国际设计竞赛和开发过程的结果。TSK建筑事务所与LDI(香港华艺设计顾问(深圳)有限公司)合作,赢得了多阶段的竞赛。
The development is intended to serve as a platform for emerging industries of strategic importance, national low-carbon industrial park, as well as a supporting center for the south zone of Shenzhen High-Tech Industrial Park. B-Tech Towers The 820 feet tall B-Tech towers are the tallest structures within the Shenzhen Bay High-Tech Eco – Park and are the result of an international design competition and development process that initiated in 2012. TSK Architects in collaboration with LDI(HONG KONG HUAYI DESIGN CONSULTANTS (SHENZHEN) LTD), won the multiphase competition.

TSK在该项目中的角色包括概念、方案和设计开发,以及施工文件审查,以保持设计的完整性。
为呼应高新园区的生态主题,B-Tech双塔的设计中融入了可持续发展的策略。高科技园区的整体发展受到严格的高度限制,因此设计团队建议采用两座细长的塔楼,而不是一个庞大的体量。
TSK’s role in the project consisted of Concept, Schematic and Design Development as well as Construction Documentation review to maintain design integrity. Echoing the ECO theme of the High-Tech Park, sustainable strategies are integrated into the design of the B-Tech Two- Towers. The overall Park development is governed by a strict height restriction that led the design team to propose two slender towers rather than one large bulky mass.

这使得设计策略能够最大限度地增加日光和与周围景观(观景棚)的联系,影响塔楼的形状,从而形成独特的 "延伸 "体量。
双塔位于相对的角落,以进一步打开视线,并最大限度地减少自我遮蔽。通过集成到立面系统中的模块化可操作窗户,自然通风被纳入设计。
除了被动式太阳能策略外,项目中还实施了主动式太阳能策略,为建筑的性能做出了贡献。
This allowed for design strategies that maximized daylight and connection to the surrounding landscape (viewsheds) influencing the shape of the towers resulting in the distinctive “splayed” massing. The twin towers are then positioned at opposing corners to further open sightlines and minimize self-shading. Natural ventilation is incorporated in the design through modular operable windows integrated into the façade system. In addition to passive solar strategies, active solar strategies are implemented in the project as well and contribute to the building’s performance.

该项目获得了ASGB标准下的2星绿色建筑评级,相当于LEED金奖。在地面上,两座塔楼由一个大型裙楼基座连接,裙楼的外形就像一条连续的丝带,将基座的水平面和塔楼的垂直面统一起来。
裙楼的宽阔玻璃幕墙提供了深圳和香港湾对面的全景。裙楼的规划包括零售和商业办公空间,以及位于上层的豪华五星级酒店。
The project achieved a 2- Star Green Building rating under the ASGB Standard, equivalent to LEED Gold. At grade, the towers are connected by a large podium base that is articulated so that the profile of the towers read as a continuous ribbon unifying the horizontal of the base with the vertical of the towers. The expansive glass façade of the podium provides panoramic views of Shenzhen as well as Hong Kong across the bay. The Podium is programmed to include retail and commercial office space, as well as a luxury five-star hotel on the upper levels.

B-Tec塔楼位于多条公共交通系统之间,并位于三层地下停车场之上,使公共和私人交通更加便捷。
从场地西北角的行人通道,公众交通被引导到一个开放的庭院,周围有商店和餐馆,供个人和专业人员使用。
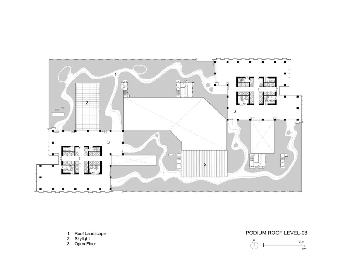
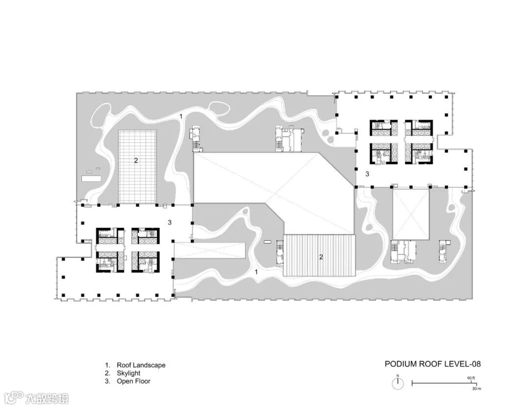
庭院通过绿色走廊连接到场地的南面和东面,方便了人流向周围众多功能的转移。通过一系列的景观广场,游客和员工被食品和零售亭所包围,有助于加强社区参与和互动。一个绿色的屋顶空间完成了设计,并提供了一个从街道和低层的活动中喘息的机会。
The B-Tec towers are situated among multiple public transport systems and sit above three levels of underground parking enabling easy access to both public and private transit. From the pedestrian access at the northwest corner of the site, public traffic is directed to an open courtyard surrounded by shops and restaurants for personal and professional engagements. The courtyard connects to the south and east of the sites through a green corridor, facilitating the easy transfer of pedestrian traffic to all the numerous surrounding functions. Through a series of landscaped plazas, visitors and employees are surrounded by food and retail kiosks that help enhance community engagement and interactions. A green roof space completes the design and provides a respite from the activity of the street and lower levels.








区位图

设计草图

绿地设计图

核心设计图

造型分析图

功能划分草图

道路平面图

地面图平面图

标准层平面图

屋顶平面图

主平面图

A-A剖面图

B-B剖面图

建筑师:华艺设计、TSK建筑事务所
地点:深圳,中国
面积:18800000平方英尺
年份:2020
欢迎加入
科技·产业园区(建筑设计交流群)

微信公众号“搜建筑”(ID:sjz9999)
合作、宣传、投稿
请加小编微信:soujianzhu006