缘起
“探寻一座城市的时代面孔”
福建古为闽地,有“八闽”之称,项目地处长乐优质地段,是福州向外发展的门户,交通便捷,配套齐全,占据一山一水的丰富景观资源。融创东南区域集团深耕长乐,融入长乐肌理,打造“宜和”融创高端中式产品系。
融创·观澜雲頂作为融创“宜和山水系”在福建的落地演进,首次在长乐创制这一具有地域特色的国际中式产品。在闽越文化、书院文化和传统院落文化的浸润中,完成了一次极具意义的中式产品设计迭新。
溯源
“多元文化格局下的传承赋新”
闽越文化:福州沉淀千年闽系文化滋养着八闽儿女,建筑上的“大宅情节”在福建人心中已深深扎根。
书院文化:书院文化民居建筑文化氛围非常浓郁,有着非常高的工艺水平,设计合理的流线和布局有方的空间,精良的内部装修及活泼的雕刻式样,都彰显了福建传统书院文化民居极高的审美价值。
△ 福州鳌峰书院
建筑文化:福建传统建筑受到特定的地理环境、气候条件、营建材料和环境色彩等影响。湿暖湿润的气候和复杂的地理环境以及丰富多样的文化交融,造成福建传统建筑风格的形成。
多元文化的基因,使得我们拥有充足的空间去提炼设计语言,设计取福建建筑特有受海洋文化影响的起翘屋脊、古朴的屋面平瓦、官式大宅的开间比例,生活气息的亭台水榭,等等共通之处,从而融汇成观澜雲頂宜和八闽之风格。
制形记
“现代建筑语境下的中式演进”
中国传统建筑亦有严谨礼序之分,溯源传统中华建筑美学,宜和八闽打造礼序轴、五重归家、中轴对称的尊崇格局。
宜和八闽更为抽象地通过对流线的精心组织,串联起多个功能空间。多重入口与庭院的设置显著提升建筑的典雅尊贵和归家礼仪,延长后的参观路线让区域内部有足够的空间实现环境的蜕变。
观澜雲頂示范区借鉴传统空间留白的手法,通过府门、厅堂、回廊、庭院塑造出多重庭院空间。入口处的仪门照壁塑造看山见水的意境,回转的曲廊创造出步移景易的视觉效果,从售楼部内看向外部的庭院,也别具一番风味。
园冶记
“八闽大宅的国际中式园林体验”
示范区前场形取福州城“三山一水”的地理风貌,意取古代中国园林“一池三山”的园林模式,着落自然,韵味流转。
绿岛为山,砾石为池,山池开朗,展高下之姿,兼屏障之势。路复水转,层层叠叠,共同形成曲水流觞之境,祓禊之趣、魏晋风流。
精作记
“别具匠心的精工细作”
屋面:观澜雲頂示范区的府门屋面保留小青瓦屋面的肌理,选用具有较高平整度效果的平瓦,运用铝板等现代高新材料收边,体现现代建筑精致的同时又彰显长乐文化底蕴的深厚。
格栅:府门装饰汲取传统四落大厝之花窗元素,采用现代工艺手法,化为具有中式韵味的现代装饰,领略古韵精作之美。
寻石记
“虽由人作,宛自天开”
照壁:观澜云顶仪门照壁选天然石材,图案形取长乐山水,云蒸雾罩,叠嶂重影,美轮美奂。似又有飞龙藏其间,如云龙再生,吉祥如意,满壁生辉。
园林作为一门艺术,对意境有较高的要求,除了山、水的组合,“石”作为现代园林中必不可少的元素,带给了人们无穷的想象空间和精神享受。
△ 南宋长乐画家陈容所作《云龙图》
竹枝格栅:府门以竹为意向,体现节节高升的美好寓意。通过长度、宽度、特征等关联性来创造最终的和谐体。中式建筑或构筑物利用线面和谐构图原则,让画面充满美感。
融创 ·观澜雲頂示范区是中房建筑立足于融创宜和系产品理念,在闽南中式建筑风格上做的全新尝试。
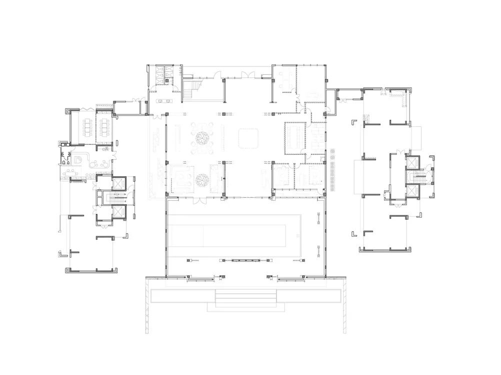
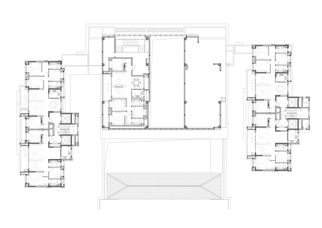
设计图纸
△ 立面
△ 一层平面
△ 二层平面
项目名称:融创观澜雲頂
项目地址:福建省福州市
建筑面积:894平方米
建设单位:福州熙地置业有限公司
方案设计:上海中房建筑设计有限公司
设计团队:徐世敏、王洋、张高的
施工图设计:福建嘉博联合设计股份有限公司
室内设计:北京栋三尺设计有限公司
景观设计:广州山水比德设计股份有限公司
部分照片来源于业主
2021年·新产品方向
《 品牌地产 | 精品楼盘活动 》
杭州、苏州、重庆、成都、郑州
广州、福州、上海、西安
……
本资料声明:
1.本文为建筑设计技术分析,仅供欣赏学习。
2.本资料为要约邀请,不视为要约,所有政府、政策信息均来源于官方披露信息,具体以实物、政府主管部门批准文件及买卖双方签订的商品房买卖合同约定为准。如有变化恕不另行通知。
3.因编辑需要,文字和图片无必然联系

微信公众号“搜建筑”(ID:sjz9999)
合作、宣传、投稿
请加小编微信:soujianzhu006

