▲ 更多精彩,点击“搜建筑” 关注即可
苏州·鲈乡实验小学流虹校区
启迪设计

镇级区域的城镇化
Town-level regional urbanization
鲈乡实验小学地处吴江松陵街道,原松陵镇。
2013年,此镇划入吴江太湖新城,太湖新城的建设,部分区域在滨湖空地上展开,呈现的是现代城市尺度和系统,而在原松陵镇区域,建设则是在镇域尺度和设施的基础上,逐步改善和提升的一个循序渐进的城镇化过程。
鲈乡实验小学流虹校区的建设就是这个过程中的一部分。
Luxiang Experimental School was located on Songling Street in Wujiang, the former of which is Songling Town. In 2013, Songling Town was included in Tai Lake New Town in Wujiang. The construction of partial region of Tai Lake New Town was started on the empty land of Binhu, which has presented the scale and system of modern cities. And in the original area of Songling Town, the construction is based on the town-level scale and facilities, which is an urbanized process improved step by step. The construction of Liuhong Campus of Lu Township Experimental School is a part of the process.

因此如何通过校园的建设,更好地帮助所处区域快速、高质量地完成城镇化提升,融进太湖新城建设的体系中,是我们设计思考中的一个重要部分。
Therefore, how to better help complete the urbanized improvement quickly and with high quality in the place, where it is located, through the construction of the campus and integrate in the system of the construction of Tai Lake New Town is an important part we design and think about.


融合于镇域尺度
Integration of Campus Interface and Town Region Scale
用地周边的建筑,均为三层高的小体量房屋,尺度小,间距窄,道路均为双向两车道的小尺度道路。
基于这样的条件,我们将南侧校门退让现状道路6米,形成开阔的校外入口集散广场,用来为新建校园创造适宜的主入口空间尺度,缓冲校园出入人流对城市交通的冲击。东侧教学楼整体退后,与街道间空出6米的距离,留出消防车道的同时,建筑主体远离狭窄街道。
The buildings surrounding the land are all three-story houses with small volume, which is of small scale and narrow space. The roads are all of small scale with two ways and two lanes. Based on this condition, we have let the school gate at the south side retreat 6 meters from the current roads and form wide square at the entrance of the school, which shall be used to create the proper main entrance space dimension for the new campus, so as to relieve the shock of streams of people coming in and going out of the campus to the urban transportation. The whole teaching building in the east retreats. And there will be 6-meter distance between it and the street. In this way, it can not only have the fire lane and can also make the main body of the building away from the narrow street.


同时围墙被设计为江南水乡传统“游廊”的尺度和形式,每隔一段设置休息座椅和遮阳挑檐,人性化地照顾到校外行人在街道上行走时的身心感受,避免建筑带来的压迫感。
At the same time, bounding walls will be designed to be the scale and form of traditional “veranda” in the water towns in the south of the Yangtze River. Setting rest seats and sunshade cornices at intervals has looked after the feelings of pedestrians outside the school humanely, when they are walking on the street, so as to avoid the sense of oppression from buildings.


校园流线对镇域交通的组织和提升
Organization and improvement of campus streamlines to the town regional transportation
家长接送流线和老师车行流线,利用分时管理,避开接送早晚高峰期。
在上、下学时段,接送学生的机动车辆从北侧永康路地库入口进入地库,从东侧支路地库出口驶出。在这段时间,地面交通进行限时单行管理:永康路由西向东通行,东侧支路由北向南通行。
这样由地面进地库,由地库出地面,都是右转通行,与地面车辆无交叉,提高通行效率,降低拥堵程度。
Parents’ picking-up route and teachers’ driving route avoid the picking-up peak in the morning and in the evening by utilizing the time-sharing management. During the periods of going to the school and leaving the school, the motor vehicles picking up students enter the underground parking lot from the entrance of Yongkang Road at the north side and drive out from the exit of the underground parking lot of the bypass at the east side. During the period, the ground traffic shall perform the limit-time one-way management, which means Yongkang Road goes through from the west to the east and the eastern bypass travels from the north to the south. In this way, they are both the right-turn traffic by entering from the ground to the underground parking and exiting from the underground parking to the ground. There is no crossing with the vehicles on the ground. In this way, it can improve traffic efficiency and lower down congestion degree.


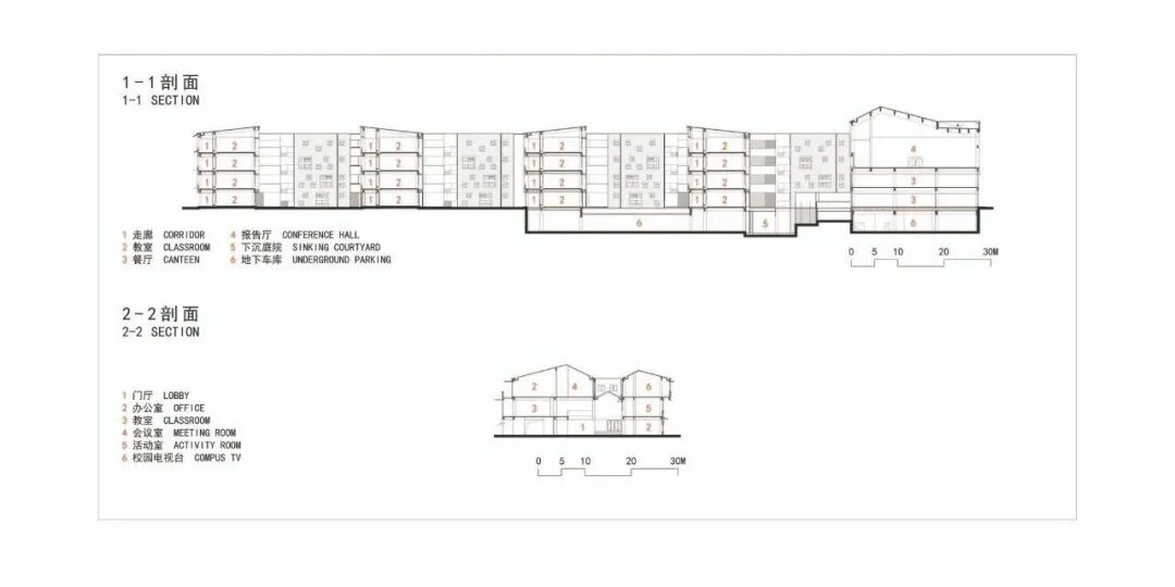
上学时小学家长车辆由地库主通道进入小学地库接送专用区域,学生下车后通过一个过渡区域进入校园下沉庭院,通过大楼梯上到校园内地面层,去往各个班级。
放学时家长将车辆停在车位,通过人行专用道到达面积约300㎡的家长等候区,学生则通过下沉庭院来到地库的学生等候区,通过约25米宽的汇合空间,与家长对接,再由人行专用道进入车辆。
When going to school, the elementary school parents’ vehicles enter the special pickup area of the underground parking lot of the elementary school from the main passageway. After getting off, students enter the sunken courtyard of the campus through a transitional region, and go up to the ground inside the campus through the grand stairs. In addition, it has provided the possibility for the underground parking lot for ventilating and lighting, as well as fire fighting requirement. After school, parents park their vehicles on the parking lot and reach the parents’ waiting area (around 300m2) through the private channel for pedestrians. And students come to the students’ waiting area in the underground parking lot through the sunken courtyard and let parents pick them up through the confluence space, which is around 25 meters wide, then go into the vehicle through private channel for pedestrians. During the whole process, stream of people and stream of vehicles are clearly separated.


小镇校园风貌
Town Campus Style
在校内南广场和综合楼这个校园的核心区域,我们穿插设计了三个有江南小镇体验的场景,融入并延续所处地域的空间记忆。












区位图

1层平面图

二层平面图

三层平面图

四层平面图

流程图



立面图


建筑师:启迪设计
地点:中国苏州
面积:38554 m²
项目年份: 2020
摄影师:章鱼见筑
厂家: 宜兴市圣佳建陶有限公司, 江阴市吉丰铝业有限公司, 立邦
主创建筑师:李少锋
项目负责人:陈苏琳
项目经理:刘平平
设计团队:朱恺,张慧洁,唐哲瑛,夏雨,李战,方彪
结构设计:宋鸿誉、沈银良、施澄宇、陈振、轩鹏
景观设计:廖嘉、李芳、刘淼珺
施工方:江苏永泰建造工程有限公司
委托方:苏州市吴江区松陵第一中学
欢迎加入
联系小编微信:xiaosou2019

微信公众号“搜建筑”(ID:sjz9999)
合作、宣传、投稿
请加小编微信:soujianzhu006

