▲ 更多精彩,点击“搜建筑” 关注即可

北面鸟瞰_夏至
项目位于深圳光明新区,光明高新园和光明高铁站门户区的交界处。该项目功能主要是向公众提供行政服务以及政府办公。总建筑面积81200平方米,建筑高度50米。
The project is located at the junction of Guangming High-Tech Park and Guangmingcheng Railway Station gateway. It is mainly accessible to the public for administrative services and to government workers for routine office tasks. The project covers 81,200 square meters construction area, with a height of 50 meters.

北面透视_夏至
场地的中央和南侧分别有两座约30米高的小山丘。此外,该地块周围都是建筑工地倾倒的土石堆,为该项目留下的倾倒土石空间很小,说明该地区倾倒土石难度大,成本高。
根据场地条件,我们提出了保留这两座山丘的建议,既可以减少挖掘工作,又可以形成一群绿色的山丘,延伸到地块北侧的牛山,从而与区域的生态保护区相融合。该方案不仅解决了实际问题,也呼应了光明区倡导的低影响发展模式。
There are two small hills about 30 meters high standing at the center and south side of the site respectively. In addition, the plot was full of piles of earth dumped from surrounding construction sites, leaving little space for dumped earth for the projectwhich indicates the difficulty and high cost of earth dumping around this area. Based on those site conditions, we proposed to preserve the two hills, which can reduce the excavation work while also helping form a group of green hills that extend to the Niu Mountain on the north side of the plot, thereby blending with the ecological protection area of the District. The solution not only solved practical problems, but also responded to the low-impact development mode advocated by Guangming District.

从小山坡上看建筑1_夏至
项目主要包括办公空间和公共服务空间两个功能分区。根据不同的功能,我们将建筑在垂直水平上分为两个形式不同的体块。
上层矩形体块是办公空间,下层体块是公共服务厅和会议厅,低层体块的屋顶形状像波浪形的表面。灵活的曲面结合大面积的透明落地窗,营造轻松友好的氛围。
The project mainly consists of two functional divisions: office spaces and public service spaces. According to different functions, we divided the building into two blocks with distinct forms at vertical level. The upper rectangular volume is office space, while the lower block functions as the public service hall and the conference hall, whose rooftop of the lower volume is shaped like an undulating surface. Combined with large areas of transparent French windows, the flexible curved plane creates a relaxing and friendly atmosphere.

从小山坡上看建筑2_夏至
两个独立的建筑体量由曲面穿孔铝板幕墙非连续连接。幕墙的“破碎”部分留下了一个50米宽的洞,从洞中可以看到项目后面的牛山。
整个建筑就像漂浮在山上的一艘船。此外,穿孔铝幕墙允许自然风进入上部体量的三个中庭,形成透气的截面结构。
The two separate architectural volumes are non-consecutively linked by curtain walls made of curved perforated aluminum panels. The “broken” section of the curtain walls leaves a 50-meter-wide hole, from which people can see the Niu Mountain behind the project. The holistic building resembles a vessel floating on the mountain. Moreover, the perforated aluminum curtain walls allow natural wind into the three atriums on the upper volume, forming a breathable section structure.

东北角鸟瞰_夏至
上层的办公空间由中庭采光良好。巨大的通风口变成了中庭的现代雕塑。中庭上方交错的体量被用作会议室和走廊,也产生了动态的氛围。

办公大堂_夏至
上层的办公空间由中庭采光良好。巨大的通风口变成了中庭的现代雕塑。中庭上方交错的体量被用作会议室和走廊,也产生了动态的氛围。
The office spaces on the upper part are well lighted by the atriums. Giant air vents turn into modern sculptures in the atriums. Staggered volumes above the atriums are used as conference room and corridors, producing a dynamic ambience as well.

二层的屋顶花园_夏至

南面鸟瞰_夏至

南面透视_夏至

南面透视1_夏至

南面透视2_夏至

曲面穿孔板局部_夏至

曲面穿孔板局部1_夏至

曲面穿孔板局部2_夏至

屋顶花园的入口_夏至

屋顶花园的入口1_夏至

屋顶花园的入口3_夏至

下沉庭院台阶_夏至

正立面1_夏至

正立面2_夏至

正立面半鸟瞰_夏至

正立面鸟瞰_夏至

中庭1_夏至

中庭2_夏至

中庭3_夏至
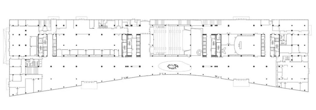
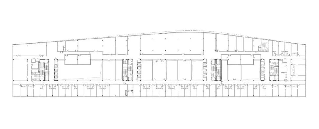
项目图纸
主平面图

1层平面图

2层平面图

3层平面图

10层平面图

剖面图

建筑设计:筑博设计股份有限公司
地址:光明科技公园,光明新区,深圳,中国
项目年份:2018
建筑面积:93000㎡
主创建筑师: 冯果川,钟乔,刘晓英
设计团队: 曲宇,张碧勤,熊桂林,徐龙杰,邓华,张梅松, 侯连建, 包少斌,曲振华,梁福集,谢波,吕方,黄宏聚,方明辉
委托方: 深圳市光明新城物业发展有限公司
结构设计: 筑博设计股份有限公司
景观设计: 筑博设计股份有限公司
摄影师:夏至
欢迎加入
办公建筑设计(交流群)
群已满200人,加微信:bangong86 邀请入群

微信公众号“搜建筑”(ID:sjz9999)
合作、宣传、投稿
请加小编微信:soujianzhu006

