▲ 更多精彩,点击“搜建筑” 关注即可

Desizo Monni公司办公大楼为当地的一个时尚品牌提供了一个创造性的工作环境。它位于欧洲最贫穷地区之一的一个工业小镇。
该项目的主要目标是为品牌创造一个新的形象,并为那些生活在国外并希望回国的青年人才创造一个更好的环境。


该建筑位于普列文镇的后社会主义工业区,位于保加利亚北部,该地区的人均GDP在欧盟中最低。它容纳管理和创意设计团队,是一个更大的综合设施的一部分,该公司的其他生产和娱乐设施也位于这里。
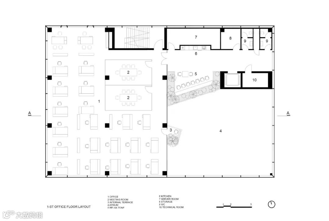
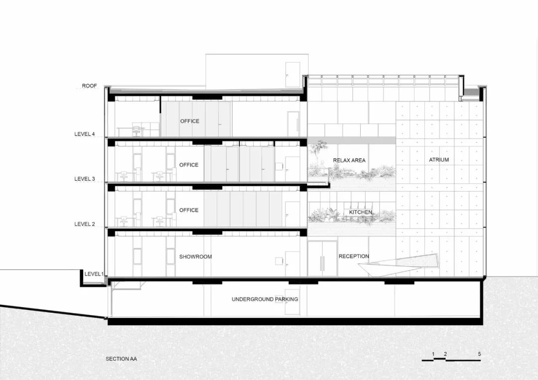
该建筑由地上4层和一个地下停车场组成。一楼设有接待区、等候休息室和展示品牌最新时装系列的陈列室。二层、三层和四层是创意和行政办公室。建筑的东部是通高的中庭。上层可以通过开放到中庭的阳台进入,那里有分散的休闲区域。
The building is located at a post-socialist industrial zone in the town of Pleven, located in the north part of Bulgaria in the region with the lowest GDP per capita in the EU. It accommodates the administration and creative design team and is part of a larger complex where other production and recreational facilities of the company are also located. The building consists of 4 floors above ground and one underground parking. The ground floor features a reception area, a waiting lounge, and a showroom where the brand’s latest fashion collections are exhibited. The second, third and fourth floors are occupied by the creative and administrative offices. In the eastern part of the building is located the full-height atrium. The upper floors can be accessed through the open-to-atrium balconies where the relaxation areas are spread out.


Desizo Monni总部有志于成为时尚界公认的企业建筑典范。简约的外部外观和丰富的内部空间相结合,以时装秀为参考,以简约的T台和绚丽的设计师服装为背景。
同时,该项目有志于通过改造当地的城市环境,引发被忽视的工业区的再开发,使其对其他投资者产生吸引力。建筑围绕着社会工作环境进行组织,加强大型公共休闲空间的效益及其对员工情绪和生产力的影响。
Desizo Monni headquarters had the ambition to be recognized as a good example of corporate building for the fashion industry. The combination of minimalistic external appearance and rich internal space references fashion shows with the simplicity of the catwalk and the splendid designer clothes. At the same time, the project has the ambition to trigger the redevelopment of the neglected industrial zone by transforming the local urban environment and making it attractive to other investors. The building is organized around the social working environment, enhancing the benefits of the large common recreational spaces and their impact on the employee’s mood and productivity.

从施工的角度来看,最大的挑战是在当地不发达的建筑技术和缺乏经验的建筑工人的背景下,实施高质量的建筑工程。这些缺点被大量的细节和设计监督工作所弥补。
From construction point of view, the biggest challenge was the execution of high quality of construction works in the local context of undeveloped construction technologies and inexperienced construction workers. These disadvantages were compensated by extensive work on detailing and design supervision.

项目的建筑语言由有限的材料组成:玻璃、裸露的混凝土、铝和木材。建筑的外观是严格的几何学和极简主义--外部的透明玻璃棱镜只被入口处的深色L形铝制天棚所打断。
大规格的三层玻璃板让周围的景色一览无余,并提供了内外空间之间的微妙过渡。作为极简主义外观的反衬,建筑内部以中庭的丰富空间和阳台的动态体量引人注目。
电梯的垂直核心,以及结构柱和梁都是由裸露的混凝土制成。天然木板在视觉上为中庭增色不少。第五种 "材料 "是自然植被,覆盖在阳台、休闲区和中庭上。
The architectural language of the project consists of a limited number of materials: glass, exposed concrete, aluminum and wood. The exterior of the building is strictly geometric and minimalistic – the clear glass prism of the exterior is interrupted only by the dark L-shaped aluminum canopy at the entrance. The large-format triple glazing glass panels allow for unobstructed views of the surrounding areas and provide a subtle transition between inner and outer space. As a counterpoint of the minimalist exterior, the interior of the building strikes with rich space of the atrium and the dynamic volumes of the balconies. The vertical core of the elevator, as well as the structural columns and beams are made of exposed concrete. Natural wood panels visually warm up the atrium. The fifth “material” is the natural vegetation, covering the balconies, the relaxation areas and the atrium.







区位图

首层平面图


剖面图

爆炸平面图

建筑师:A&A建筑事务所
地点:保加利亚
面积:2818 m²
年份:2019

微信公众号“搜建筑”(ID:sjz9999)
合作、宣传、投稿
请加小编微信:soujianzhu006

