▲ 更多精彩,点击上面“搜建筑” 关注即可

该项目响应了由Solvia和马德里建筑师学院发起的 "马德里0.0 "的挑战。
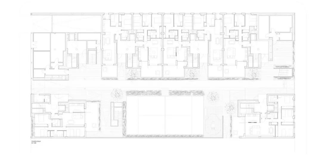
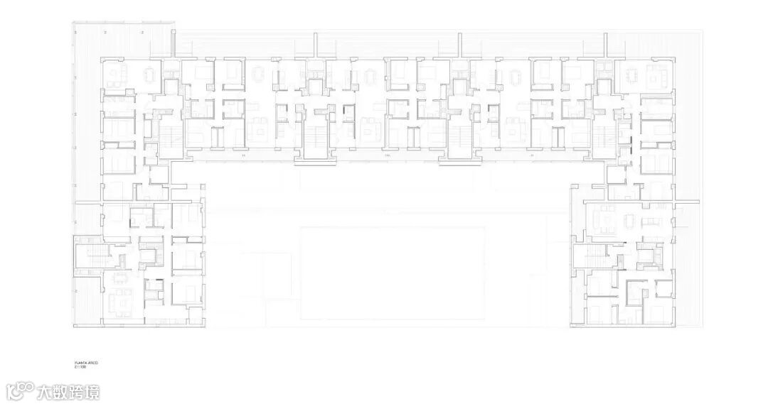
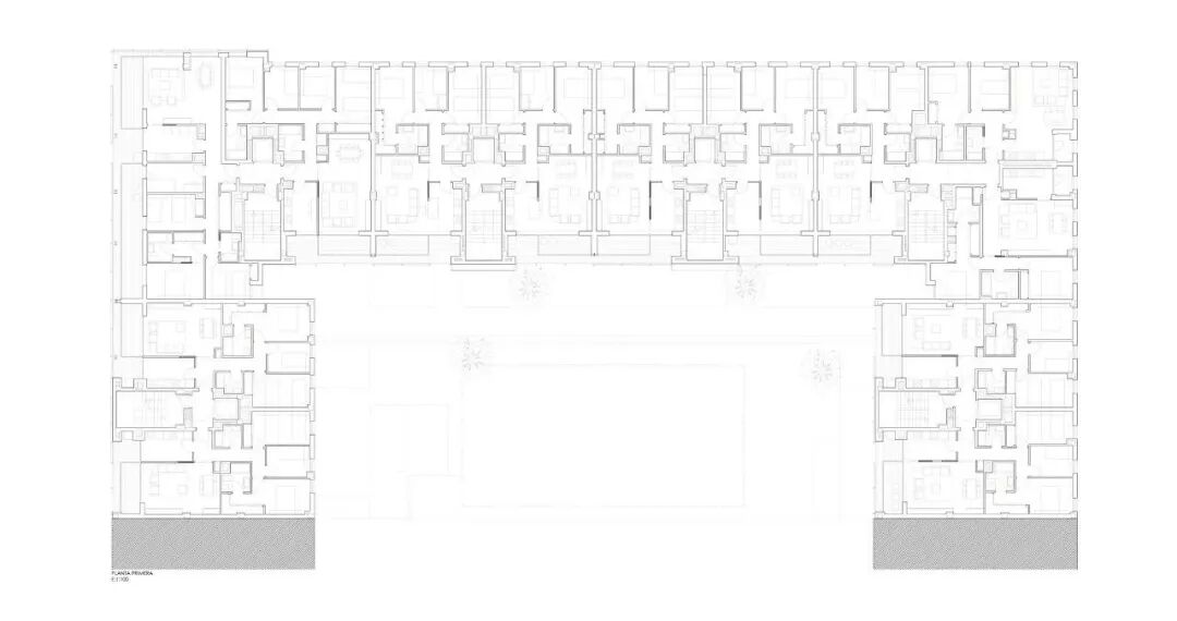
98套公寓的设计旨在为用户提供最小的能源需求和最大的舒适度,理解并随之演变为低能耗住房,其中的主导思想是 "我的建筑就是我的家,每一个住房都是必需品。"
The project responds to the challenge "Madrid 0.0", launched by Solvia and the College of Architects of Madrid. 98 apartments designed for minimal energy demand and maximum comfort for users, understanding and the consequent evolution of a low-energy housing, in which the predominant idea is "My building is my home, and each housing a necessity. "

在开始这个项目之前,我们有这样一个问题:你真的能在马德里建造只需要最少供暖和制冷系统的房子吗?响亮的回答是肯定的。
Before starting the project, we came the following question: Can you really get to build homes in Madrid with minimal need for active heating and cooling systems? The resounding answer was YES.

然而,这个项目的可持续性并不局限于能源消耗,而是随着时间的推移,用户和他们的生活质量完全沉浸在住房的意识形态中。
因此,我们的住宅适应了不同的用户,并随着时间的推移不断变化,与个人工作空间兼容,并以几乎零能耗的方式实现最大限度的室内舒适。


在ViveCoam和BREEAM的环境认证中,Solvia项目取得了非常好的成绩,V + 65.66%,在ViveCoam的评级中获得了22.08分。















区位图

平面图




立面图



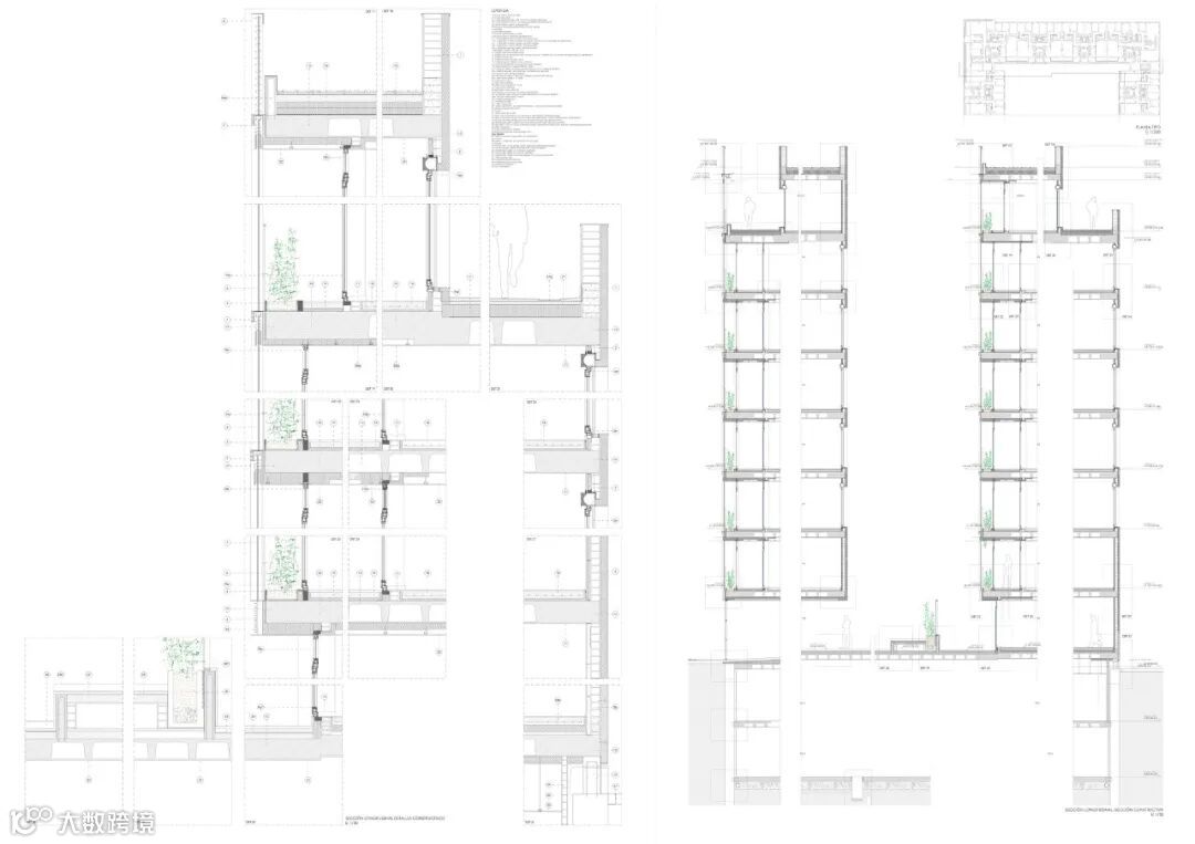
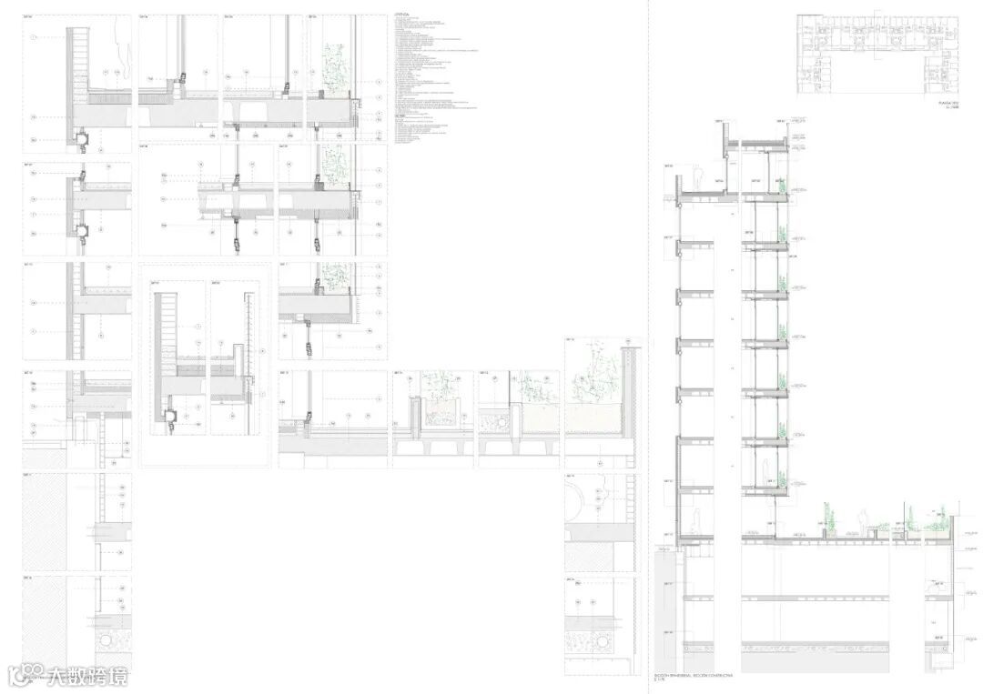
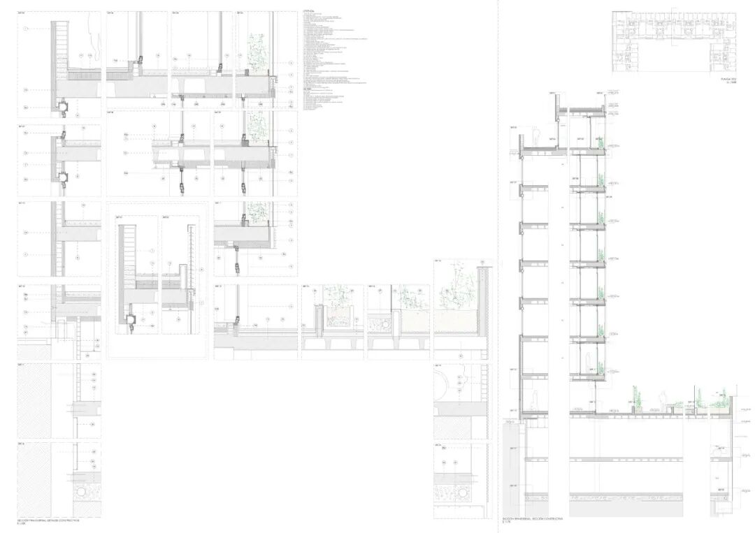
剖面图





建筑师:Ruiz Larrea及合伙人
地点:西班牙
面积:15973 m²
年份:2020
新时期·产品方向·2021年
《 品牌地产 | 精品楼盘考察活动 》
杭州、苏州、重庆、成都、郑州
广州、福州、上海、西安
领队微信:soujianzhu002

微信公众号“搜建筑”(ID:sjz9999)
合作、宣传、投稿
请加小编微信:soujianzhu006


