▲ 更多精彩,点击“搜建筑” 关注即可
户型设计?
平面布局分析之一 | 平面逻辑
作者:孟文儒 南京大学建筑学硕士 中江国际建筑设计院建筑师
住宅,作为推动城市化最主要的建筑类型,与人们的住行密切相关,所以和大众个体间的关系最为紧密。在西方建筑界,住宅设计往往是建筑师建筑实践的起步,而大师们也依然在致力于呈现多样化的住宅作品。
反观国内,现阶段的住宅几乎以一种标准化、程式化、同质化的面貌在每座城市不断地复制增殖。而住宅设计几乎是一个可以从建筑设计行业中独立出来的产业,大多数有创作诉求的建筑师对其敬而远之。
追根溯源,建筑师在这样的环境下却也被动无奈,在资本逐利的动机下,可变现价值取向逐步在该项产业中占据了主导地位。在高周转的要求下,住宅基本形成了成熟的标准化体系,而住宅设计在很大程度上也演变为了流程化的操作。
在这样的背景下,典型住宅社区设计时,是否还有创作空间?建筑师的职业性和专业性是否在设计过程中有所体现?业主是否享受到了设计的价值?
笔者通过近年来从事住宅设计的实践,在当下的住宅开发模式中从户型设计,来谈谈自己的思考。
-----01-----
垂直交通体系分析
住宅产品设计交通组织分为两大类:
单户独立交通体系的低层院墅化产品,公共交通体系的多层及以上的产品。
院墅化产品包括独栋别墅,联排别墅,合院别墅;公共交通产品包括叠加别墅,多层住宅,小高层住宅和高层住宅,其中叠加别墅(如图1-1)和复式住宅(交通组织与叠墅相似)户内存在一定的内部交通空间,这点与别墅产品类似。
独立交通体系的院墅化产品交通体系的组织自由度很高,会产生不同种类的变体;
公共交通体系则相对固定,它直接连接户型套内空间,并形成完整的居住单元。

图1-1叠加别墅(来自网络)
-----02-----
公共交通体系户型分析
本次主要研究重点是公共交通体系下的住宅产品。
常规体系中,公共交通部分需要层层贯通到每户户内,必然与每户套型发生联系。在工作实践中,为了将南侧面宽部分布置为居住空间,交通部分布置在建筑体量的北侧,这是住宅产品设计的基本逻辑。
不同的产品,交通部分和套内部分均存在不同的接触面,接触面必然会占用部分空气接触面。如图2-1所示,多层洋房不同情况下的空气接触面,同等条件下去除交通体系与户型套内空间的接触面,边户较中间户空气接触面多山墙接触面,这种状态下,边户的内部空间组织更加自由。

-----03-----
公共交通体系分析
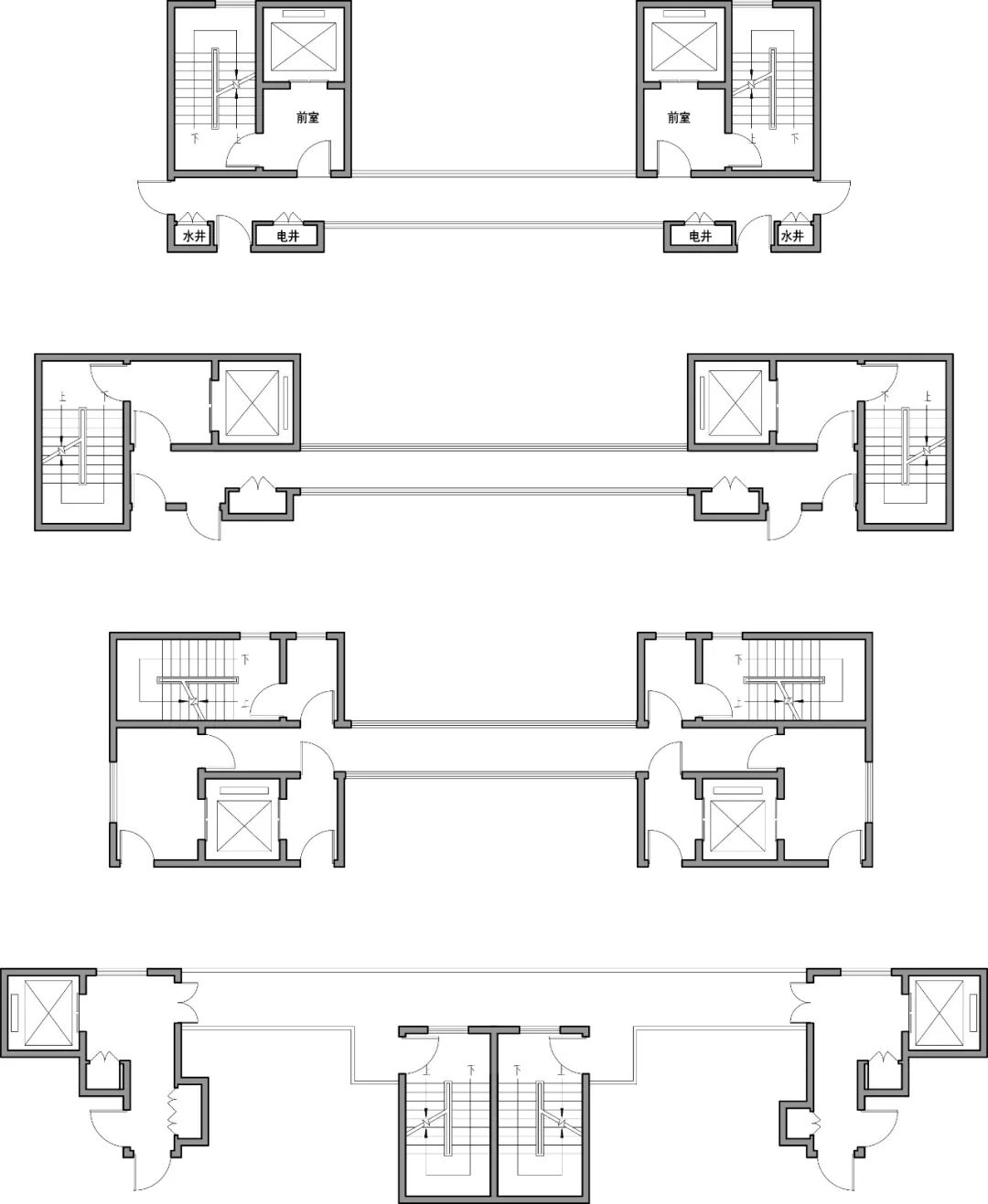
空气接触面在户型设计时至关重要,那么首先对住宅公共交通体系进行分析,并试图得出住宅套内空间设计的限制条件。接下来本文按照设计规范分析洋房,54米以下高层,80米以下高层三种不同规范等级下的交通核心筒。
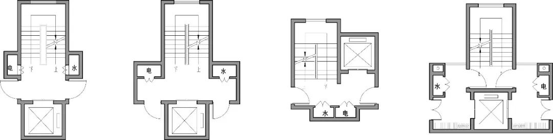
一、洋房核心筒(11层以下),该类产品交通部分包括一部楼梯和一部电梯。
作者整理了市场上常见的组合类型,如图3-1所示,A部分核心筒面积26.32㎡,B部分核心筒面积31.76㎡,C部分核心筒面积27.3㎡,D部分核心筒面积39.67㎡。
同等套内面积下各种组合名义得房率基本上逐渐降低,而相应的舒适度则逐渐提升。此外,不同核心筒占用北侧面宽宽度也存在差异,四种核心筒北侧宽度分别为2.6M,2.6M,5.1M,7.2M,也一定程度上影响套内格局的布置。
此外,高舒适度核心筒与套内空间入口组织选择更加多样化,如图3-2所示,该核心筒入口组织可分为南侧和东西两侧,组织更加自由,后期可搭配不同形似的宽厅,电梯厅部分可兼做玄关的功能。

图3-1(作者自绘)

图3-2(作者自绘)
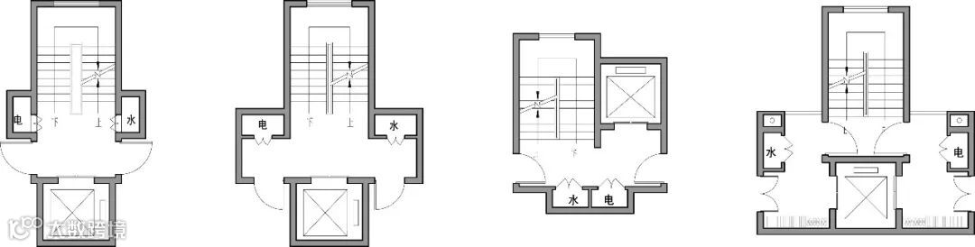
二、54米以下高层(12-18层),作者整理了市场上常见的一梯两户、一梯三户(根据地区选择)和一梯四户三种类型,前者常用于较大户型设计,后者则常用于较小户型设计。
两种类型得房率和舒适度均存在较大差异。以一梯两户为例,如图3-3所示,作者在常规格局的基础上进行调整,得出以下各种组合,A部分核心筒面积为49.5㎡,B部分核心筒面积为50.2㎡(电梯厅兼有玄关功能)
C部分核心筒面积为48.89㎡(电梯厅露明,视野较好节省风井面积),同等套内面积下各种组合得房率基本相同,交通部分舒适度则各有特点,选择不同的核心筒,对套内空间组织影响较大
以图3-3-C为例,套内空间入口须布置在北侧,空间组织有一定变化,也导致套内交通面积略大。

图3-3(作者自绘)
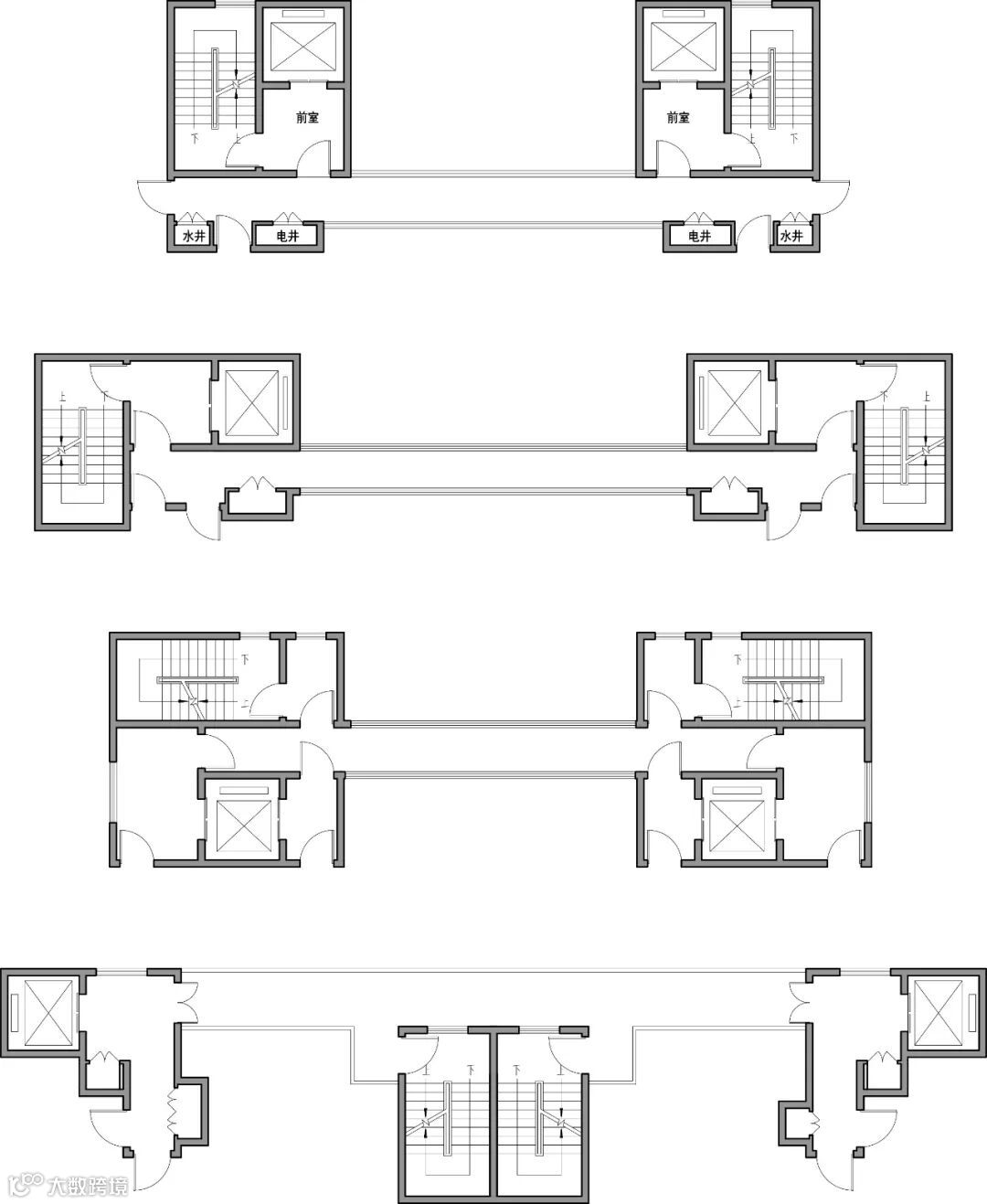
以一梯四户为例,作者整理了市场上常见的组合类型,如图3-4所示,A部分核心筒面积为70.18㎡,B部分核心筒面积为73.82㎡,C部分核心筒面积为85.58㎡,同等套内面积下各种组合得房率各有不同,套内空间交通组织基本相似,而核心筒与套内空间连接部分3-4-A最多,对套内空间开窗约束较后两者多一些。在不同项目中存在公建化立面的要求时,对核心筒部分形态的整合尤其显得重要,因此在户型标准层设计时,需要全盘整合做出取舍。

图3-4(作者自绘)
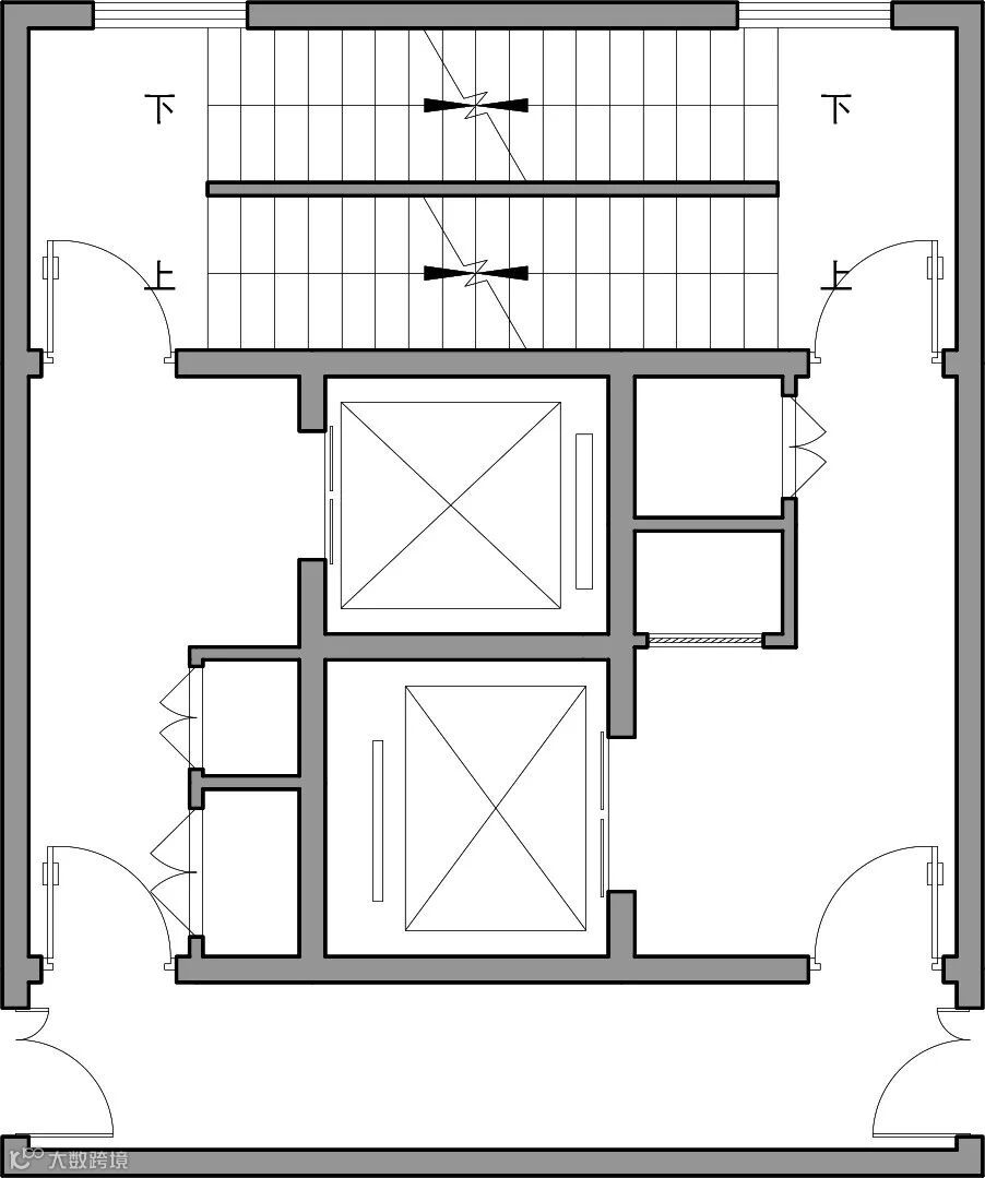
三、54米以上,80米以上高层(18-27层),作者整理了市场上常见的一梯两户、一梯三户(前两者为剪刀梯)和一梯四户三种类型,前者常用于较大户型设计,后者则常用于较小户型设计。
两种类型得房率和舒适度同样均存在较大差异。以一梯两户为例,如图3-5所示,核心筒面积为69.16㎡ (适用于T3户型),该类产品公摊面积较大,交通部分舒适度也较好。

图3-5(作者自绘)
以一梯四户为例,作者整理了市场上常见的组合类型,如图3-6所示,A部分核心筒面积为85.58㎡,B部分核心筒面积为84.75㎡,C部分核心筒面积为102.25㎡,D部分核心筒面积为89.12㎡,A、B两种格局类似,区别在于B类交通部分对套内空间的遮挡较多,对边户舒适度影响较大,相应带来单体对周边日照的影响降低,C类格局完全做到独立入户,相应带来公摊面积的增加(作者认为不太可取),D类格局更对关注公建化立面的需求,同样带来对套内空间过多的遮挡。
针对市场上不同的类型公共交通部分的分析,发现套内出入口依托垂直交通体系,其位置相对固定,主要分布于单体体量的中部区域(一梯两户格局为主)和北侧(一梯四户为主)。那么依据套内空间出入口的位置,对套内空间布局进行下一步的设计。

图3-6(作者自绘)
-----04-----
套内空间设计分析
由于不同类型产品格局相对类似,本文以不同产品作为分析对象,展开分析。
一、核心筒布局对户型格局的影响,充分关注北向面宽资源。在常规市场宣传中,关注的焦点是南向采光面数量,即面宽。
在实际户型设计过程中,起居室,卧室,厨房,卫生间要求必须是采光空间,北向面宽数量同样要引起设计者的重视,它很大程度上决定了户型设计的成败。
以洋房产品为例,其交通组织部分一般会占掉一部分北向面宽,如图4-1所示(非边户格局),在洋房核心筒结合三面宽套内空间组合的形式中,4-1-A组合核心筒面宽较小,在同等面宽的前提下能够完整实现三房两卫的格局,而其他产品则较难实现(如牺牲厨房舒适度等措施不建议采用)。

A B C
图4-1(作者自绘)
二、如何高效利用边户资源。
在南北面宽资源充分利用后,就需要开发边户山墙面的面宽资源。在市场上常见的利用形式包括两类:
1、采光通风资源,该种利用方式注重对隐私的保护;
2、景观资源,该种利用方式需结合不同的面宽资源、产品档次进行设计。
如图4-2所示,A类格局充分利用边户侧墙,景观面、阳台舒适度最大化,空间完整度高等优势。但仍存在一定劣势,比如内外分区不理想、改造后过道偏长等;B类格局作为常规做法,内外分区较为明确,侧墙采光面较难利用。
而具体项目中需要结合营销的需要打造产品价值点。通过以上两个案例,面宽资源确定的前提下,高效开发侧墙采光资源是户型品质提升的重要手段。

A B
图4-2(作者自绘)
三、空间利用整合。
在具体的项目实践中,总图和户型是同步协调完成的,强排算量基础上,大致会得到相应的产品类型及面宽数量,接下来需要针对具体产品面宽及其在总图布局进行设计。
比如多面宽少房间配置、面宽和房间数量适中配置、少面宽多房间配置等。
如图4-3所示,户型面宽均为4.5面宽,卧室、起居室、卫生间、厨房均为必须采光空间,本案例中南、北向面宽合计为8个(交通部分占用一个),除去卧室、卫生间、厨房剩余2.5面宽。
在A类格局侧重于南北向贯通和东西向宽厅格局,居住空间南向最大化;
在B类格局侧重于套内公共空间集合最大化,南北向通过厨房实现南北通透。
多面宽少房间的情况下,对富裕面宽数量的利用决定户型设计的亮点。

A B
图4-3(作者自绘)
如图4-4所示,户型面宽均为南向3面宽、北向2面宽,卧室、起居室、卫生间、厨房均为必须采光空间,案例中均为紧凑型三房两卫格局。
在A类格局中双卫整合设置,客厅、餐厅和厨房南北通透;
在B类格局厨卫一体布置在山北侧面宽,客厅、餐厅和厨房仍可实现局部南北通风。
在面宽资源和房间数量适中时,户型设计的原则基本上属于次要通风模块置换(A类格局基本上通过凹槽设置,利用凹槽山墙面)。

A B
图4-4(作者自绘)
如图4-5所示,户型面宽均为2面宽,卧室、起居室、卫生间、厨房均为必须采光空间,本案例中均为紧凑型格局,并通过加大建筑进深充分利用边户山墙采光的策略。
在A类格局卧室空间均布置在山墙一侧,仍能实现客厅、餐厅和厨房南北通透的策略;
在B类格局厨卫一体布置在山墙侧,客厅、餐厅和卧室开门、开窗仍能实现南北向组织通风。
在C类格局中,两个卧室占用南向面宽、客厅、餐厅借助侧向面宽采光通风,该类格局南北向组织通风效果不佳。
在不同的状态下,户型格局的优缺点差异较大,并不存在严格的优劣之分,具体的实践需要结合实际选择合理的户型布局。

A B C
图4-5(作者自绘)
-----05-----
户型平面设计整合
在细分的住宅产品开发环境下,户型设计扮演重要的角色,如何在品质、规范、造价、溢价和去化之间如何需要平衡点更需要市场信息反馈。
而具体到单纯的户型设计过程中,套内空间和交通空间的整合需要结合总图布局进行优化设计,多方面结合过程中,套内空间和公共交通部分整合是一个调整平衡的过程。
此外,值得一提的是常规户型中的户型方正,轮廓简洁因具有节省造价、自遮挡少、体形系数小、公建化立面处理简单等优势逐渐在户型设计的过程中引起重视。
结论
诚然在国内大背景下,资本和市场的价值取向、家庭生活方式的固化、人员构成的稳定性等确实让住宅在规划及户型本体设计创新上阻力重重,但我们认为在尊重了规律和事实的前提下,建筑师有责任保持一定的创新意识,逐步引导健康的生活方式和居住文化。
注:本文讨论的内容为户型模式研究(以长三角地区案例为主),仅提供部分案例来说明,实际的工作可以通过对局部尺寸的调整实现功能的优化设计。
推荐一个
专业的地产+建筑平台
每天都有新内容
扫描二维码关注

微信公众号“搜建筑”(ID:sjz9999)
合作、宣传、投稿
请加小编微信:soujianzhu006

