▲ 更多精彩,点击“搜建筑” 关注即可

Pontsteiger("渡口")是阿姆斯特丹的一个大型住宅项目。该建筑位于一个200米长的水坝的末端,水坝投射到IJ河的水面上。
这个 "友好的大巨人 "预示着阿姆斯特丹围绕河流的高层建筑的发展。该设计不仅创造了一个标志性的物体,而且在其内部创造了一个公共空间。
Pontsteiger (‘ferrypier’) is a large-scale residential project in Amsterdam. The building is located at the end of a 200 metre dam that projects into the water of the river IJ. The ‘Big Friendly Giant’ foreshadows Amsterdam’s growth of high-rise buildings around river IJ. The design creates not just an iconic object but a public space within itself.


该建筑由一栋六层的低层建筑组成,环绕着滨水广场。两座细长的60米高的塔楼在这个街区的开放端,框住了河景。
塔楼上有一座跨度48米的桥,上升到90米的高度。建筑物高7米,以四个亭子为基础。亭子里有大堂、餐厅、酒吧和咖啡馆。
西侧有一个码头。地面层的公共空间为人们提供了通向水面的通道,并在各个方向上创造了对岸的景观。尽管其规模庞大,但建筑的高架体量在工地上创造了一个惊人的光脚存在,并从城市的每一个角落不断改变外观。
The building consists of a six floor low-rise block that wraps around a plaza on the waterfront. Two slender 60 metre high towers at the open end of this block frame the river view. The towers carry a bridge spanning 48 metres rising to a height of 90 metres. The building is elevated 7 metres and set upon a base of four pavilions. The pavilions accommodate lobbies, restaurants, bars and cafes. A marina is located at the westside. The public space on ground level provides access to the water and creates views across the river in every direction. Despite its scale, the building’s elevated volume creates an astonishing light-footed presence on site and a constantly changing appearance from every part of the city.

这种不同寻常的形式是根据公寓住户的喜好设计的:住宅需求最高的是高层建筑的顶部(顶层景观),或者是底部,以连接城市的活力。
在Pontsteiger,中间的部分被简单地最小化。体量根据其环境进行调整;在接触到城市低层新城 "Houthavens"(木材码头)的地方,体量较低,而在接触到大面积河流的地方,体量较高。
The unusual form was designed with apartment dwellers' preferences in mind: residential demand is highest either at the top of high-rises (penthouse views) or at the base to connect to the liveliness at cityl evel. In Pontsteiger the part in between is simply minimized. The volume is adjusted to its context; low where it touches upon the city’s low-rise new town ‘Houthavens’ (Timber docks) and high where it meets the large expanse of the river.

在13年的时间里,设计了七个完全不同的住宅方案。
事实证明,最初的概念能够适应整个项目的极端市场力量(大金融危机和由此产生的荷兰住宅危机),同时在比例和外观上保持不变。其22米的厚度允许各种不同的流通类型,使得高度适应性的楼层规划类型组合成为可能。
在最终的项目中,公寓的面积从65平方米到410平方米不等。Pontsteiger包含366套公寓,2000平方米的商业空间,以及338个停车位的停车场。
Seven totally different residential programmes were designed in the 13 years of its making. The original concept proved to be capable of adapting to extreme market forces throughout the project (Great Financial Crisis and the resulting Dutch Residential Crisis) while remaining the same in proportion and appearance. Its 22 meter thickness allowed for a variety of circulation types that made a highly adaptable mix of floorplan typologies possible. In the final project the sizes of apartments range between 65 m2 and 410 m2. Pontsteiger contains 366 apartments, 2000 m² of commercial space, and a parking garage with 338 places.

主要结构是混凝土的。这座桥的结构由四个78吨重的钢桁架和四个对角支撑组成。
额外的绝缘材料、低能耗电梯、led照明和热填式洗衣机使供暖和电力的能源需求达到了荷兰建筑法要求的一半。屋顶覆盖2600平方米的光伏和1800平方米的绿色植物。
The main structure is concrete. The bridge’s structure consists of four 78 ton steel trusses with four diagonal braces each. Extra insulation, low-energy elevators, LED-lighting and hot-fill washing machines bring the energy demand for heating and electricity to half of what Dutch building law demands. The roof is covered with 2600 m2 of PV and 1800 m2 greenery.


在Pontsteiger的外墙中,大理石-白色混凝土的网格与工匠的釉面砖相映成趣。绿色和青铜的变色色调创造了一个随着光线和时间变化的外墙,就像建筑周围的水面一样。
所有的外部天花板都采用了木材,使建筑充满了温暖的气氛,同时也反映了当地木质码头的历史。广场周围的琉璃亭子拥有感性的曲线,并采用坚固的木质窗框。














区位图

停车场平面图




5层平面图

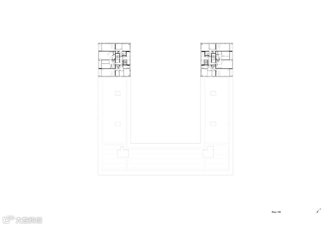
15层平面图

标准层平面图


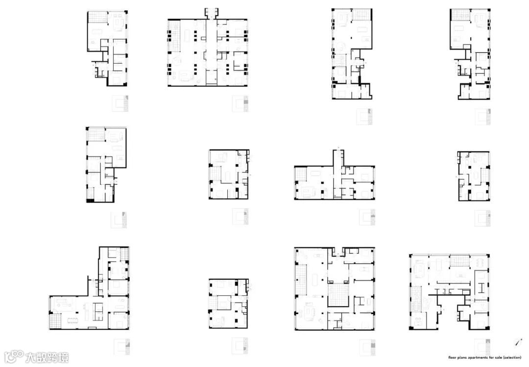
房间布局平面图


立面图



剖面图



轴测分析图

建筑师:Arons en Gelauff建筑事务所
地点:荷兰
面积:64000 m²
年份:2019

微信公众号“搜建筑”(ID:sjz9999)
合作、宣传、投稿
请加小编微信:soujianzhu006

