
该项目被设想为一个现代化的教育设施和大学建筑,作为该地区的知识枢纽,并将激励年轻人寻求高等教育。
该项目位于多巴泰克辛格(Toba Tek Singh)郁郁葱葱的柑橘果园之间。该建筑是占地50英亩的教育和医疗园区的一部分,该园区旨在为整个旁遮普中部地区提供高质量的教育。
The project is envisioned as a modern educational facility and a college building that acts as a knowledge hub for the region and would inspire the youth to seek higher education. The site is nestled between lush mandarin orchards in the city of Toba Tek Singh. The building is a part of the greater 50-acre education and healthcare campus aimed at providing quality education to the entire central Punjab region.


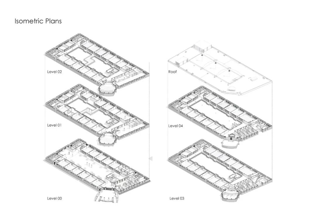
该项目包括报告厅、计算机和科学实验室、设备齐全的双层图书馆和两个报告厅,以及围绕一个庭院组织的行政和教师办公室,形成了一个中央多功能公共空间。
北侧的入口打破了建筑的正交形式,通过提升研讨会大厅创造了一个诱人的途径,在其顶部有一个巨大的捕风器,允许自然通风。庭院垂直升起,为所有楼层提供了视觉连接,促进了整个建筑的自然空气流动。
一个半透明的织物天篷漂浮在庭院之上,提供了遮阳,并与建筑形式的坚固性和缥缈的轻盈形成对比。横跨庭院的连接桥连接了所有楼层,并为学生提供了休息和非正式的聚会空间。
The program of the project comprises of lecture halls, computer and sciences labs, a well-equipped double-storey library, and two seminar halls along with administrative and faculty offices organized around a courtyard which forms a central multifunctional communal space. The entrance at the north side breaks away from the orthogonal form of the building and creates an inviting approach by lifting the seminar hall, on top of which sits a massive wind-catcher allowing natural ventilation. The courtyard rises vertically providing a visual connection from all floors and facilitating natural air flow throughout the building. A translucent fabric canopy floats over the courtyard which provides shade against the direct sun and contrasts the solidity of the built form with an ethereal lightness. Link bridges spanning over the courtyard provide connection on all floors and offer break-out and informal gathering spaces for students.


该基地面临的众多挑战之一是炎热季节的极端温度,因此需要在不影响进入空间的光线质量的情况下隔离建筑。
为此,在建筑的东南和西侧设计了双层立面。这大大降低了建筑内部的温度,减少了太阳能的吸收,使建筑具有独特的个性。
这个穿孔屏,用69万红砖建造,是当地工艺和技术的完美融合,设计响应了当地强烈的气候条件。屏幕的图案与周围的树叶相呼应,其概念是体现一棵成长的知识之树。
One of the many challenges of the site was extreme temperatures in hot seasons thus there was a need to insulate the building without compromising the quality of light entering the spaces. In response to this, a double skin façade was conceived on the southeast and west sides of the building. This considerably cools down the temperatures inside the building by mitigating solar gain and allowing the building to have a unique identity. This perforated screen, built with 690,000 red bricks, is a perfect amalgamation of local craftsmanship and technology, designed in response to the intense local climatic conditions. The pattern of the screen echoes the surrounding foliage, the concept of which is to embody a growing tree of knowledge.


该项目位于一个农村小镇,面临着一些挑战,从技术工人有限到缺乏先进的建筑材料。在红砖外墙的同时,预制和原位水磨石地板被广泛使用。
为了有意识地减少整体的碳足迹,该建筑大多采用当地制造的材料,所有这些都使我们能够颂扬本土建筑和传统语言。设计过程中的敏感度和气候意识使我们能够创造出既能成为现代地标又能牢牢扎根于环境中的建筑。
The site, located in a small rural town, posed several challenges ranging from limited access to skilled labor to lack of advanced building materials. Pre-cast and in-situ terrazzo floors are used extensively alongside the red bricks façade. To consciously reduce the overall carbon footprint, the building mostly employs locally manufactured materials, all of which allows us to celebrate the indigenous architecture and traditional language. The design process is motivated by sensitivity and a climate-conscious approach which has allowed us to create architecture that stands as a modern landmark while being firmly rooted in its context.













分层结构图

平面图

剖面图


生态交互图

建筑师:Ali Arshad Associates
地点:巴基斯坦
面积:17万平方英尺
年份:2020
推荐一个
专业的地产+建筑平台
每天都有新内容
扫描二维码关注

微信公众号“搜建筑”(ID:sjz9999)
合作、宣传、投稿
请加小编微信:soujianzhu006