▲ 更多精彩,点击“搜建筑” 关注即可

Caractère酒店由著名的景观勾勒,包括一个中央公园和几个长廊,提供人行道、自行车道、骑马道、健康和健身课程、运动场和一个城市公园。

根据ZAC的指导方针,城市存在的目标是一个连续的立面,面向公园的大型开放空间。不同的建筑高度使该项目能够与北边Beauzelle社区的大部分个人住房构成的城市结构相连接。
一个L形的体量采用了这种形式,从主干道开始,环绕到从主要景观沟渠强加的20米后方。在地块的中心,有三座中间住宅,与ZAC邻近地块的规模相呼应。
As imposed by the guidelines of the ZAC, the urban presence aimed is that of a continuous façade facing the large open spaces of the park. Varying construction heights allows the project to connect to the urban fabric constituted of mostly individual housing on the commune of Beauzelle to the north. An L-shaped volume takes this form, starting from the main road and wrapping around to the 20m set back imposed from the main landscaped ditch. In the centre of the plot, three blocks of intermediate housing are positioned, echoing the scale on neighbouring plots of the ZAC.

Résidence Caractère提供两种规模的生活--集体公寓和中间公寓--都由一条通道连接。这条中央通道在水平和垂直方向上展开,构成了项目的主干。
类似于一条室内街道,这个宽敞的玻璃体量构成了一个自然采光和通风的走廊,提供了一个不受外界因素的影响的舒适的共享空间。
The Résidence Caractère offers two scales of living – collective and intermediate apartments – both accessed by a single passageway that unites the two. This central passageway unfolds horizontally and vertically and constitutes the backbone of the project. Similar to an indoor street, this spacious glazed volume constitutes a naturally light and ventilated hallway offering the comfort of a shared space protected from the elements whilst still opening widely onto the landscape and (more details on the indoor passage below).

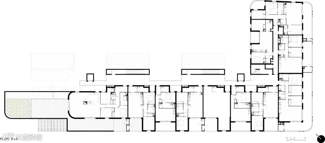
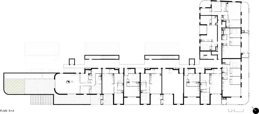
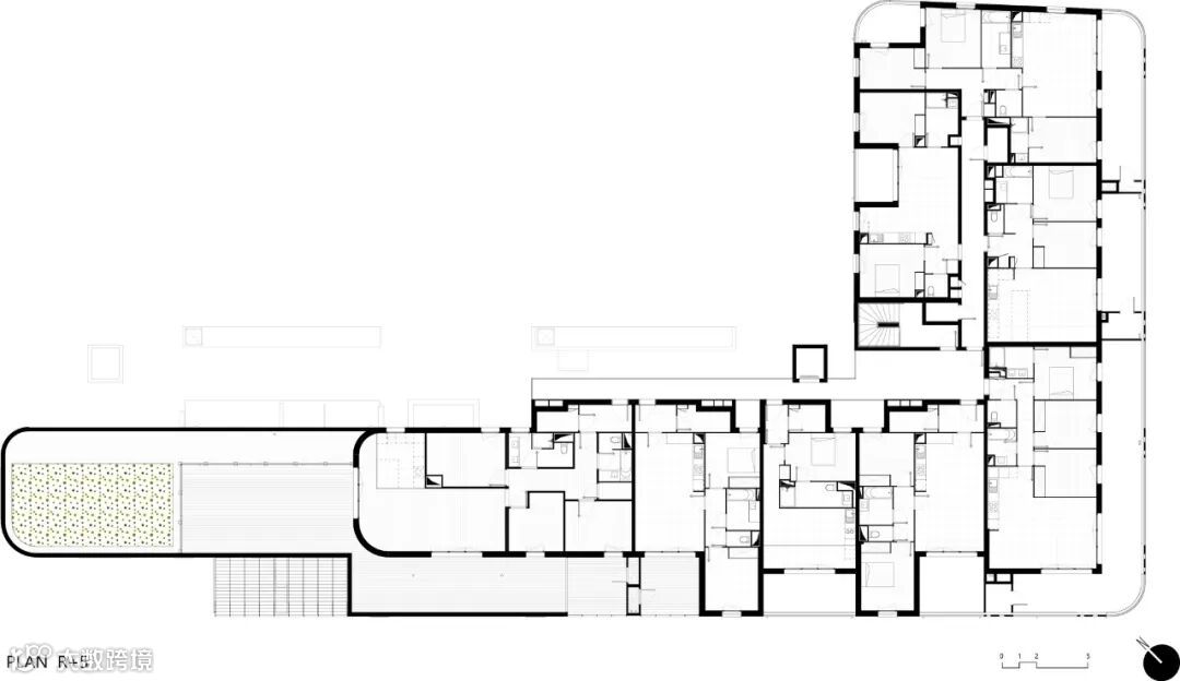
主体建筑容纳了78套公寓以及一层的办公空间。在上层,公寓通过室内通道的走道进入,成为一个与邻居见面和交流的空间。宽敞的楼梯平台沿着走廊或向外通往花园,可以进入三到四间公寓。

这个L型建筑悬空于底层之上,从而减轻了主体体量。这个体量的弯曲角度也有助于柔化项目的城市存在感。建筑高度从5层到2层呈梯形。
这在主干道上创造了一个强大的存在感,同时也与博泽尔镇的各个住宅区相连接:项目在宝盛大道上上升到5层,并沿着Grenade路线逐渐下降到地块北端的2层,突出了邻近的独立住宅。
中央通道的玻璃体量也是阶梯式的,与主体建筑的高度一致。格林纳德路线上的后退是创造一个景观边缘的机会,它由花堤组成,结束了与本项目花园相似的乡村小树林。

在地块的中心,该项目包括12个中间住宅单元,其中6个是双层别墅,从一层单独进入。这些单元的私密性通过从共享的中央通道到每个单独入口前的私人通道的入口序列得到保护。
At the centre of the plot, the project includes 12 intermediate housing units of which 6 are duplex villas individually accessed from the ground floor. The privacy of these units is preserved by an entrance sequence moving from the shared central passage to a private access before each individual entrance.


大面积的窗户在外立面上形成了一种韵律,在使砖砌的外立面焕发生机的同时,最大限度地将自然光引入公寓。
三栋楼之间的间距足够大,营造出舒适的视觉效果,在高层,窗户交错排列,避免了彼此之间的直视。
中间住宅区之间的空间也使公寓的景观视野更加开阔。在二楼,设计了一个屋顶露台,通过使用镂空砖墙封闭廊道,避免了从上层的直视,从而在不完全封闭空间的情况下提供遮挡。

浅色混合砖的材料性和建筑的圆角赋予了Caractère住宅的柔和和流畅性,与ZAC Andromède社区的生活质量相吻合。
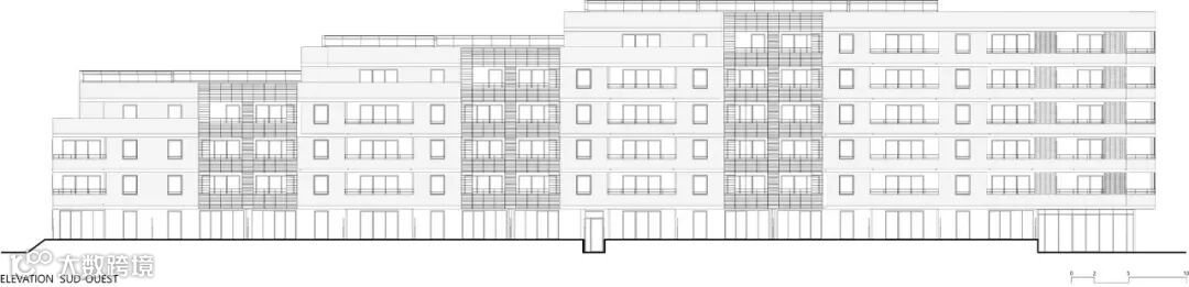
石头色的砖块覆盖着L形的主建筑,以强调立面的城市品质,在Grenade路线上,通过交替使用凹陷的loggia创造间隙,loggias用白色的金属百叶窗封闭。
这些吊廊的内部是全白色的,与砖砌的外墙形成鲜明对比,为建筑增添了一丝轻盈和精致。沿着Persée林荫大道,连续的loggias通过镂空的砖块屏风形成了私人储藏室,使外立面充满了韵律感。
The materiality of the mixed light coloured brick and the rounded angles of the building give the Résidence Caractère a softness and fluidness that fits in with the quality of life of the ZAC Andromède neighbourhood. The stone coloured brick clads the main L-shaped building so as to assert the urban quality of the façade, which sequenced on the route de Grenade by an alternation of recessed loggia creating gaps and loggias closed off with a white screen of metal louvres. The interior of these loggias is all white contrasting with the brick façade, adding a touch of lightness and finesse to the building. Along the boulevard de Persée, the façade is rhythmed by the continuous loggias sequenced by openwork brick screens creating private storerooms.

为了突出主楼石色砖楼与周围个别住宅小区的对比,小区中心的三幢楼用红砖包覆,营造出一个温馨舒适的内部花园。灰色的窗户和钢结构与主体建筑形成对比。
So as to accentuate the contrast between the main stone coloured brick building and the surrounding individual housing neighbourhoods, the three-block in the centre of the plot clad in red brick creating a welcoming and cosy inner garden. The grey windows and steelwork contrast with the main building.

最后,室内通道采用白色钢架,在中间房屋块之间的部分填充水平玻璃百叶,或在其上方的部分填充透明玻璃板。这样就形成了一个光照充足的通道,按不同的透明程度依次排列。
Lastly, the indoor passage is built with a white steel frame filled either with horizontal glass louvres in the sections between the intermediate housing blocks, or clear glass panels in the sections above them. This creates a light-flooded passageway, sequenced by different levels of transparency.

室内通道的描述。Caractère住宅是围绕着一个生物气候的室内通道组织的,它构成了项目的主干。
这个封闭的空间,大面积的玻璃和通风,随着季节的变化而变化。在冬季,这个通道创造了一个舒适的中间空间,从寒冷的室外过渡到公寓内部的暖气。
一方面,这减少了公寓的热量损失,同时也创造了一个舒适的共享空间,免受风雨的侵袭。在夏季,自然通风系统在通道中保持凉爽的温度,创造了一个清爽的内部花园,让人们在这里避暑。
这个缓冲空间也提高了公寓的自然通风。公寓占据了建筑的全部空间,因此,在所有季节,通道内外的温差自然激活了空气循环。
Description of the indoor passage. The Residence Caractère is organized around a bioclimatic indoor passageway that constitutes the backbone of the project. This enclosed space, generously glazed and ventilated, changes from season to season. In the winter, the passageway creates a comfortable intermediate space transitioning between the cold outside to the heated inside of the apartments. On one hand, this reduced the heat loss of the apartments whilst also creating a comfortable shared space protected from the elements. In summer, a natural ventilation system maintains a cooler temperature in the passageway creating a refreshing inner garden where to escape the heat. This buffer space also activates the natural ventilation of the apartments. The apartments occupy the full with of the building and thus the difference of temperature in all seasons between the outside and the inside of the passageway naturally activates the air circulation.

我们将这个室内通道的生物气候功能发挥到极致,从而为项目带来最大的附加值。该通道的技术设计最大限度地提高了能源性能,这要归功于易于实施的系统,且不影响外立面的美感。
这个缓冲空间是通过使用旋转百叶来创造的。百叶以机械方式旋转,通过精确的通风来调节温度。
这个雄心勃勃的项目,在 "经典 "能源法规的前沿,需要在设计过程中咨询多个组织的支持和专业知识,如有关消防安全的SDIS,跟踪设计所有阶段的技术检查员,以及CEREMA,它是住房部、卫生部和可持续发展部(在法国)之间的中间机构。










区位图

地面平面图

1层平面图

2层平面图

3层平面图

4层平面图

5层平面图

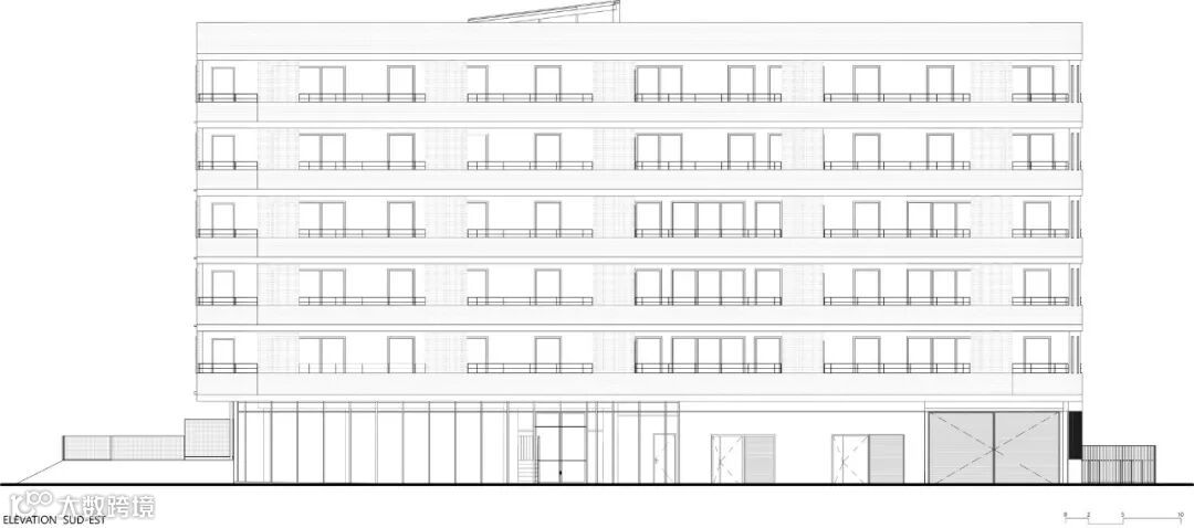
东北向立面图

西南向立面图

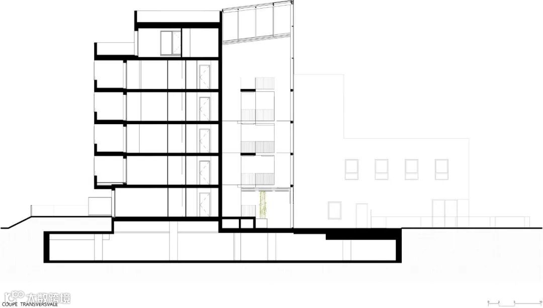
剖面图


西南向剖面图

东北向剖面图

建筑师:Taillandier建筑事务所
地点:法国
面积:6618 m²
年份:2020
2021年·新产品方向
《 品牌地产 | 精品楼盘活动 》
杭州、苏州、上海
成都、郑州......
广州、福州、重庆
西安、青岛......
扫描二维码 加好友咨询
领队微信:soujianzhu008
郑州活动时间
3月25日 、3月26日两天
(论坛分享会+实地考察)
推荐一个
专业的地产+建筑平台
每天都有新内容
扫描二维码关注

微信公众号“搜建筑”(ID:sjz9999)
合作、宣传、投稿
请加小编微信:soujianzhu006


