▲ 更多精彩,点击“搜建筑” 关注即可

该项目被认为是墨西哥城历史中心城市结构范围内开发的经济适用房社会再生计划的一部分。


该建筑位于Guerrero社区的一个深而窄的分界地段,被一条交通繁忙的大道所分隔,邻近的是一栋由INBA编目的波菲利亚式房屋。
The building is located in a deep and narrow dividing lot in the Guerrero neighbourhood, delimited by an avenue with high traffic and neighbored by a Porfirian house catalogued by the INBA.


该项目以 "L "形展开,以抵消地块的深度,产生一个单一的大型内部庭院,与邻近房屋的庭院相映成趣,从而使公寓拥有阳光和Reforma大马路的天际线景观。
The project unfolds in the shape of an “L” in order to counteract the depth of the lot, generating a single large interior courtyard that is reflected with that of the neighbouring house, thus granting the apartments with sunlight and views over the skyline of Avenida Reforma.

在外立面方面,项目通过一个凹槽限制其高度,使其在树冠和立面体量的高度上形成一个中间平台,这与邻近地区已有的建筑,特别是邻近房屋的高度相对应。
Towards the exterior façade, the project self-restricts by limiting its height by means of a recess that causes an intermediate terrace at the height of the tree canopy and an alignment of the façade volume, which corresponds to the pre-existing constructions of the neighbourhood and particularly to the height of the neighboring house.

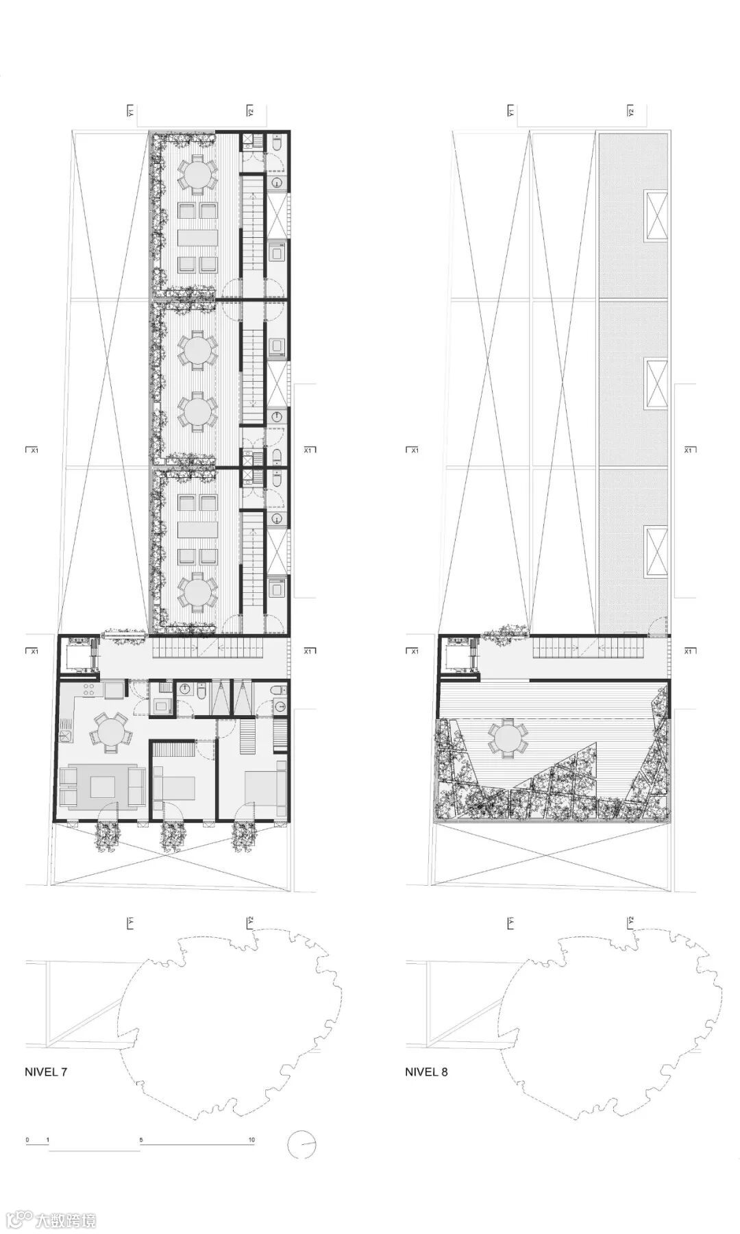
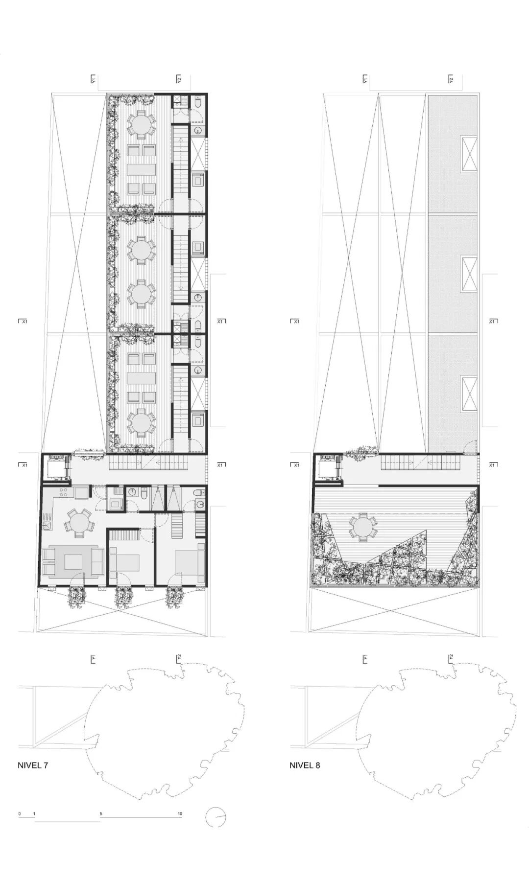
该项目包括一楼、二楼和三楼的不同类型的公寓,旨在提供多样化的服务,并在居民中产生多样性,以丰富社区。
The development includes different types of apartments of one, two and three floors, with the intention of providing a varied offer and to generate diversity among the inhabitants to enrich the community.

在建筑的围护结构上,采用了低成本的釉面陶瓷隔断,这样可以集中经济资源来提升公寓的内部装修效果。隔断墙采用两种颜色的渐变融合,使建筑呈现出欢快的感觉,这也是它的特点。
For the envelope of the building, a low-cost glazed ceramic partition was used, which allowed concentrating the economic resources to enhance the interior of the apartments. The use of partition walls in two colours that blend in a gradient gives the building the cheerful touch that characterizes it.






1-2层平面图

3-4层平面图

5-6层平面图

7-8层平面图

剖面图



设计单位:Rojkind Arquitectos, VOX arquitectura
地点:墨西哥
建筑面积:2037 m²
建筑年份:2018

微信公众号“搜建筑”(ID:sjz9999)
合作、宣传、投稿
请加小编微信:soujianzhu006

