▲ 更多精彩,点击“搜建筑” 关注即可

该项目设计反映了“蒙特梭利”理想的学习环境,学习空间应该像一个家,而不是一个典型的教室。
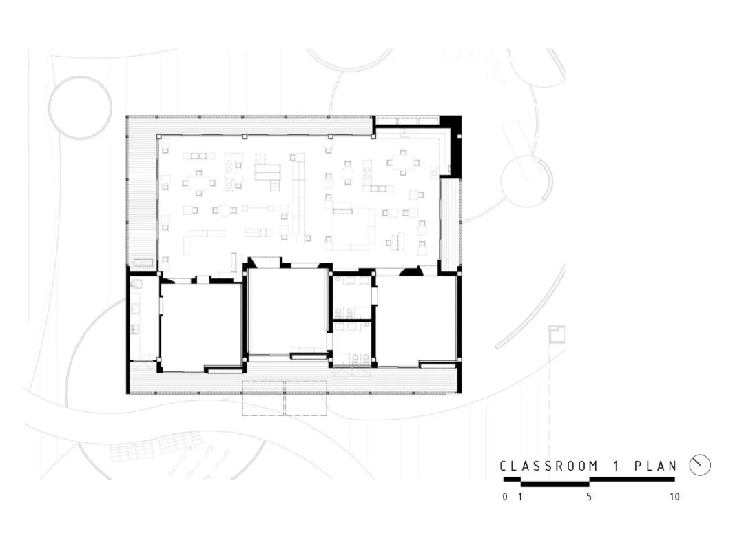
因此,学习区域被分成多个小的“房间”,所有的孩子来到学校时都能有家的感觉。这些“房间”的布局设计与孩子们的每个活动相关。

这个年龄的孩子最好的学习环境是自然,这就是为什么建筑布局经过精心规划,以支持孩子们的自学,并将室内和室外空间、建筑和景观结合起来,提供不同的学习活动。
这种布局由不同的“自然”元素组成,每一个都适合儿童发展的不同阶段。所选择的自然元素被用来为这个项目创造一个理想的学习环境,包括洞穴、沙子、土堆和树木。
The best learning environment for children this age is nature, that why the building layout has been carefully planned to support children’s self-learning and integrated both indoors and outdoors spaces, architecture, and landscape to provide different learning activities. This layout consists of different “nature” elements, each suitable for different stages of child’s development. The selected natural elements that have been used to create an ideal learning environment for this project include caves, sand, mounds, and trees.


“洞穴”的概念被转变成木结构层。层叠层之间的空间允许自然光通过,使它们更加有趣,并为孩子们创造了一种温和的氛围。
在幼儿楼周围的操场上使用“沙子”,以促进幼儿触觉的发展。自由形式的“土墩”被用于庭院和周围区域的景观中,孩子们可以在那里奔跑,并利用这个空间进行户外学习体验。这个区域也用来连接所有的建筑和学习空间。院子中的树木为户外学习空间提供荫凉。


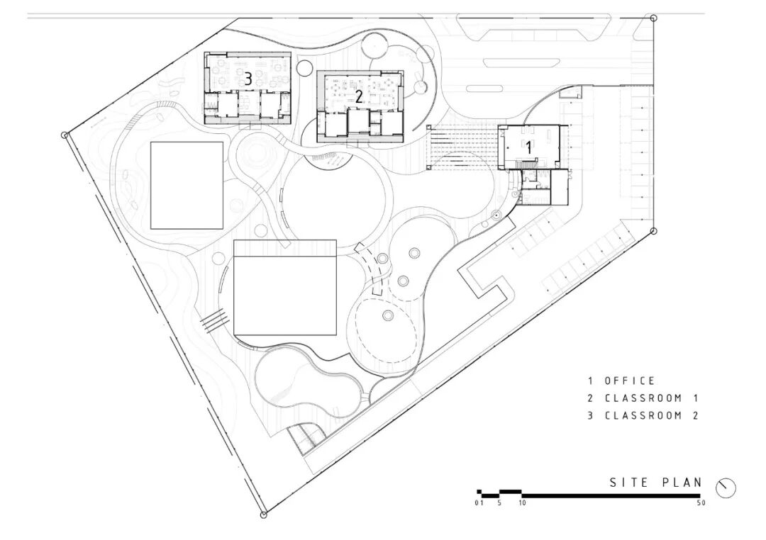
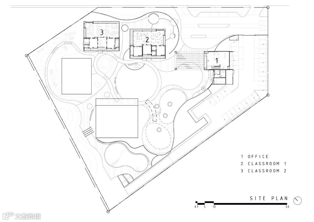
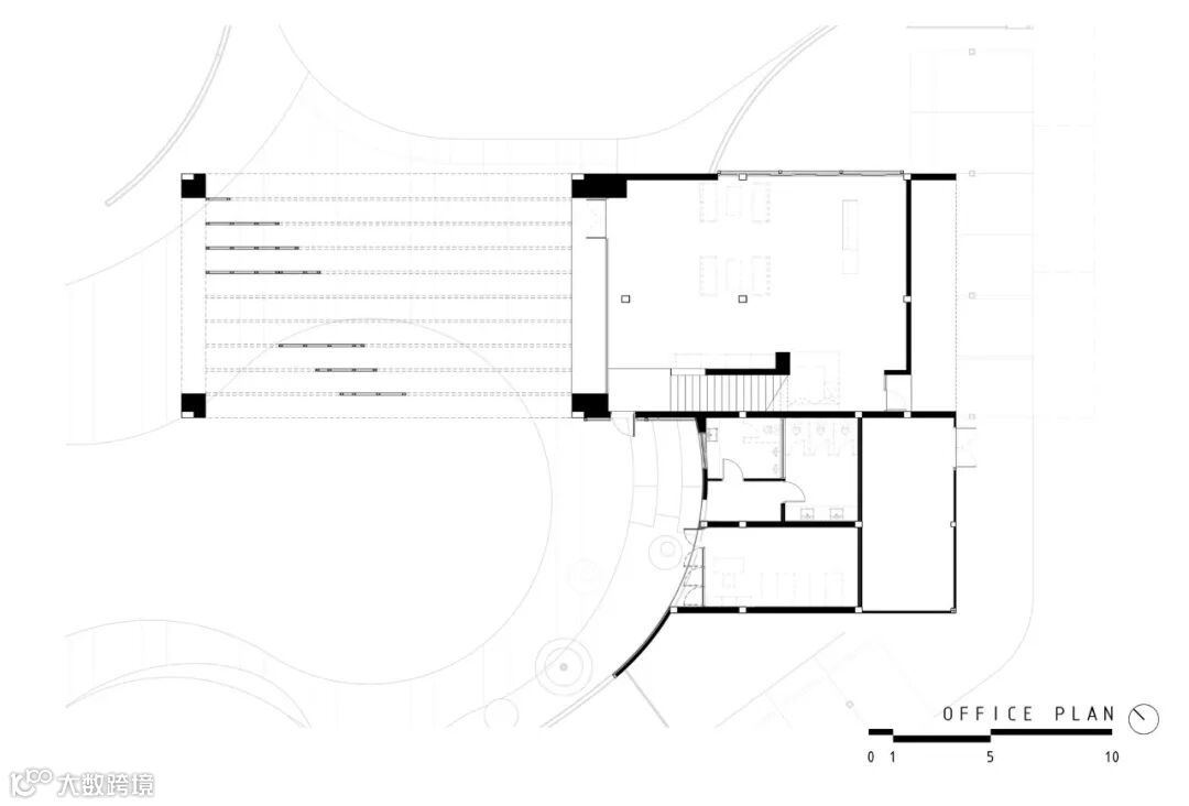
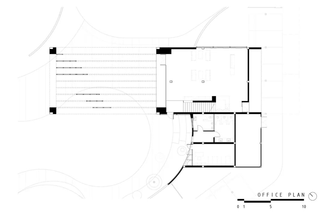
该项目还包括一个家长楼和两个教室楼,这些建筑与屋顶走廊相互连接。所有的建筑都涂上了灰色色调,与木板条交替使用,在外人的眼中创造出一种平滑而温暖的感觉。
建筑设计简单,让孩子们很容易理解项目的布局。此外,木板条有助于过滤阳光,使孩子沐浴在足够的阳光中,对他们的视觉和学习是最佳的。
This project also includes one building for parents, and two buildings for classrooms, where the buildings are interconnected with roofed corridors. All the building was painted in grey tones alternating with wooden slat to create a smooth, yet warm feeling to the eyes of the outsiders. The architecture is designed to be simple, which allow children to easily understand the layout of the project. Also, wooden slat helps filter out sunlight from outside, so that children are exposed to just enough sunlight that’s optimal for their visions and learning.

此外,木条将限制孩子们的视野,这有助于减少来自外部教室的干扰,帮助孩子们更好地专注于当前的任务。
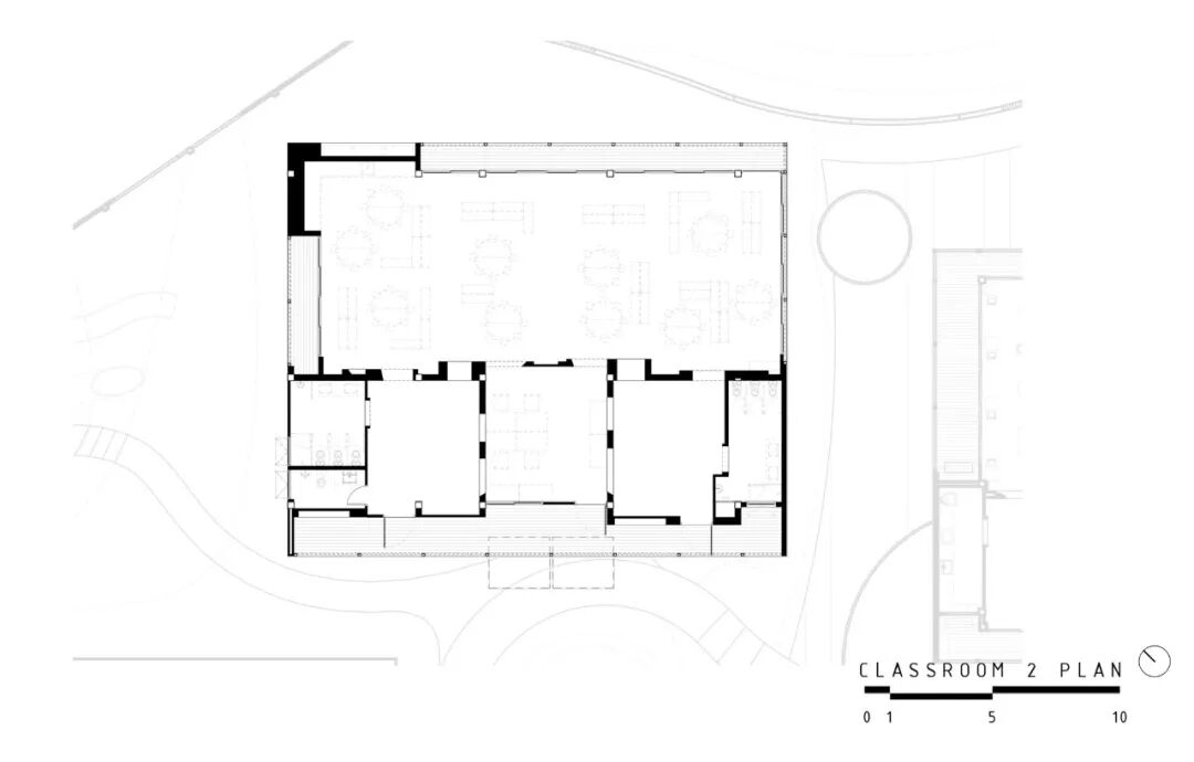
教室建筑也包括多个小房间,服务于不同的活动。这个计划的灵感来自于一个孩子的家,在每个“房间”里,他们可以玩耍、学习和发展不同的技能和知识。
因此,“小房间”比普通的大房间更适合孩子们的学习,也更能激发孩子们的学习兴趣。
Additionally, this wooden slat will limit children’s view of the outside, which can help decreasing distractions from outside the classrooms and help children to focus better on their current tasks. The classroom buildings also consist of multiple smaller rooms that serve different activities. This planning was inspired by a child’s home, wherein each ‘room’ they could play, learn and develop different skills and knowledge. Thus, a ‘smaller room’ is more suitable and more stimulating for children in learning than a big regular open room.








设计草图

区位图

平面图



立面图

剖面图

建筑师:运动设计建筑事务所( Design in Motion)
地点:泰国
面积:1100 m²
年份:2016

微信公众号“搜建筑”(ID:sjz9999)
合作、宣传、投稿
请加小编微信:soujianzhu006

