▲ 更多精彩,点击“搜建筑” 关注即可

ACC自然建筑事务所Cristiana Catino和Negozio Blu Architetti (Ambrosini, Gatti, Grometto),曾是第一个Eataly的设计师。
他们构思了一个象征性的建筑来塑造Green Pea的战略愿景:一个高度可持续发展,用新技术和天然材料建造的建筑,通过建筑传达尊重环境和与自然和谐相处的理念。


受Eataly房地产公司委托,Green Pea是前Carpano Lingotto工业区重建的最后一步,是都灵南部地区重建过程中的一个关键项目。
Green Pea代表了一种新的零售园区形式,在建筑与环境、可持续性与美感、质量与功能之间取得平衡。
它以天然材料的地块为定义,并渗透着光和绿色,在每一个细节上都是一个富有弹性和生态可持续发展的建筑。
Commissioned by Eataly Real Estate, Green Pea is the final step in the redevelopment of the former Carpano Lingotto industrial area, a pivotal project in the regeneration process going on in the southern area of Turin. Green Pea represents a new format of a retail park in the balance between architecture and environment, sustainability and beauty, quality and functionality. Defined by a plot of natural materials and permeated with light and green, it is a resilient and eco-sustainable building in every detail.

有机体量,具有特殊的多面造型,分布在五层楼,高度为25米,与现有的建筑线条保持一致,并延伸了Eataly的外立面。
南北朝向和顶层的喇叭形设计是为了适应气候和环境条件,以确保太阳辐射的最佳分布。外部围护结构由双层表面组成。
The organic volume, with a particular multifaceted shape, is spread over five floors for a height of 25 m in continuity with the existing building line and extending the façade of Eataly. The North-South orientation and the flared shape of the top floor are designed to adapt to climatic and environmental conditions so ensuring the best distribution of solar radiation. The external envelope consists of a double level of surfaces.


由木制遮阳板条组成的外部外壳由钢筋支撑,形成了一个技术性的 "棚架",在室内和室外之间起到了过滤作用,使建筑能够呼吸,向城市开放,并保护自己免受阳光的伤害。
这些板条经过热处理后对外使用,并由金属芯材加固,采用从特伦蒂诺Val di Fiemme和Bellunese的森林中回收的杉木制成,这些杉木被2018年10月的暴风雨摧毁,传统上用于乐器的音板。
An external shell of wooden sunshade slats, supported by a steel rib, forms a technical "treillage" acting as a filter between inside and outside allowing the building to breathe, open up to the city and protect itself from the sun. The slats, heat-treated for external use and stiffened by a metal core, were made with fir wood recovered from the forests of the Trentino Val di Fiemme and Bellunese, destroyed by the October 2018 storm and traditionally used for the soundboards of musical instruments.


而内部外壳则由KVH实木夹芯板填充,木纤维隔热,金属板覆盖,玻璃表面有大面积的切口,使室内空间充满自然光。
承重结构由钢制成,这是一种100%可回收的材料,完全由螺栓干式组装。绿色植物通过木质外墙的有机纹理被插入,成为建筑的一部分。
绿色在梯田中生长,高大的树木被种植在大型水箱中。因此,建筑就像一个自然的有机体,随着光线和植物的生长而振动。
The internal shell, on the other hand, made up of infill of KVH solid wood sandwich panels, insulated with wood fiber and covered by sheet metal, is marked by large cuts in the glass surfaces flooding the interior spaces with natural light. The load-bearing structure is made of steel, a 100% recyclable material, and is entirely dry-assembled by bolts. Greenery is inserted through the organic texture of the wooden façades, becoming part of the architecture. Green grows in the terraces where tall trees are planted in large tanks. The building thus appears as a natural organism that vibrates according to light and to the plants' growth.


植被的选择适合不同立面的气候和小气候,有利于本地植物和意大利植物群的生长。不同的自然环境从建筑的底部开始,在配备了生物气候温室的大型花园屋顶相遇,成为绿豌豆的 "第五个立面"。
在这个二十世纪工业化程度很高的城市中,绿色在城市结构中扮演着重要的角色。在室内,一个简单而清晰的概念涉及到所有的感官,并允许一个完整的体验,沉浸在绿豌豆品牌的身份及其尊重和自觉消费的价值。
The vegetation was selected to be suitable for the climate and microclimate of the different façades, favoring native plants and Italian flora. Different natural environments start from the base of the building and meet in the large equipped garden roof, characterized by a bioclimatic greenhouse, that becomes the "fifth façade" of Green Pea. In this part of the city, heavily industrialized during the twentieth century, green returns to play a central role and to be read in the urban fabric. In the interiors, a simple and clear concept involves all the senses and allows a complete experience, immersed in the identity of the Green Pea brand and its values of respect and conscious consumption.


内饰以传统材料为特色,如天然石灰和木材,结合皮革和天鹅绒等奢华材料。镶木地板是用已经被自然砍伐的木材,然后沿着Val Varaita的河床捡拾而成。
涂装材料可以中和污染物,防止霉菌和微生物的生长,消除病菌。从植物工程的角度来看,绿豌豆提供了一个广阔的全景,通过可再生资源生产能源的不同方式:地热井、光伏板、太阳能板、小型风力发电机、智能花,直至压电地板捕捉用户通行时产生的动能。
The interiors feature traditional materials such as natural lime and wood combined with luxury materials such as leather and velvets. The parquet is made with wood already felled for natural causes and then picked up along the river beds of the Val Varaita. The painting material neutralizes pollutants, prevents the growth of mold and microbes, and eliminates germs. From the plant engineering point of view, Green Pea offers a broad panorama of the different ways of producing energy through renewable sources: geothermal wells, photovoltaic panels, solar panels, mini wind turbines, smart flowers, up to piezoelectric floors capturing kinetic energy generated by the passage of users.


这些植物被刻意地保留下来,以唤起人们对该地工业起源的回忆。这些主动和被动环境策略的结合,旨在实现最大的能源效率和减少二氧化碳排放,使其获得A3级NZEB(近零能耗建筑)成为可能。
The plants are intentionally left visible to recall the industrial origins of the site. The combination of these active and passive environmental strategies, aimed at achieving maximum energy efficiency and reducing CO2 emissions, has made it possible to obtain an NZEB (Nearly Zero Energy Building) in class A3.















地面平面图

1层平面图

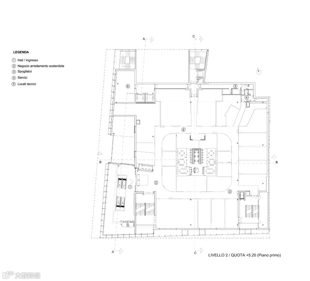
2层平面图

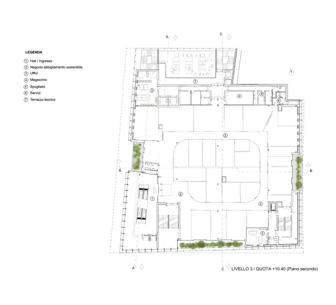
3层平面图

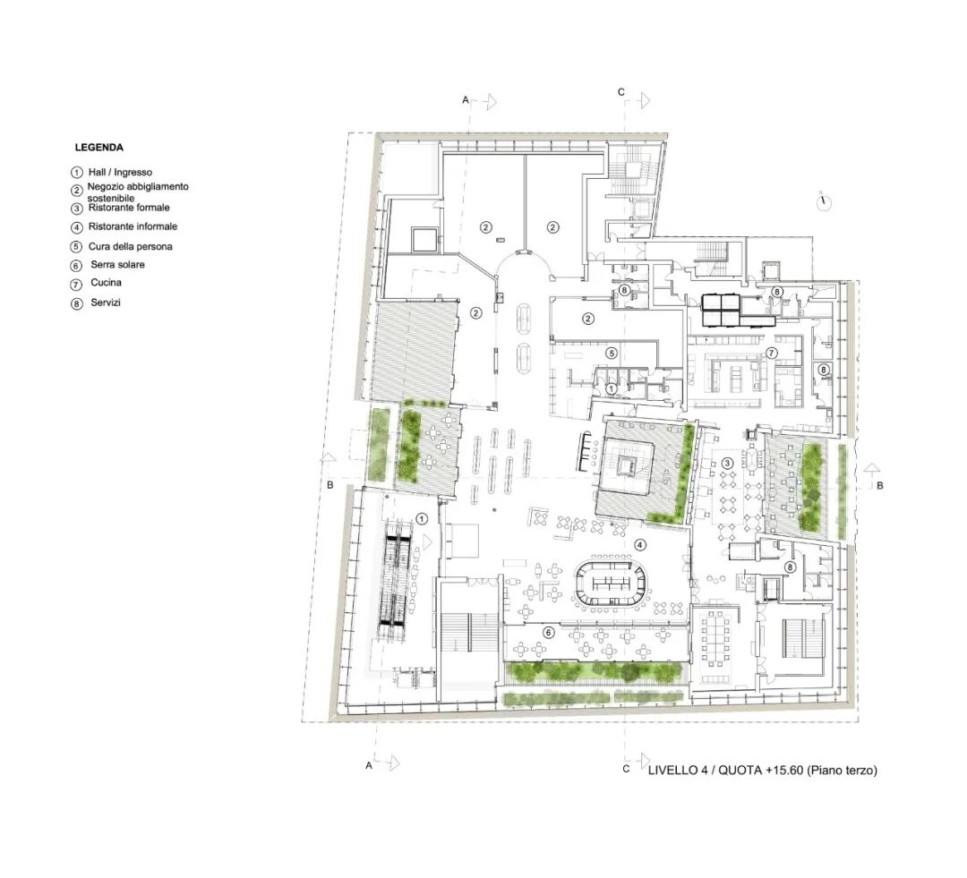
4层平面图

剖面图


设计单位:Acc Naturale建筑事务所 + Shop Blue建筑事务所
地点:意大利
建筑面积:10500 m²
建筑年份:2020

微信公众号“搜建筑”(ID:sjz9999)
合作、宣传、投稿
请加小编微信:soujianzhu006

