▲ 更多精彩,点击“搜建筑” 关注即可
全文阅读大约需要20分钟以上
小时候过年,初一起到初十都要去农村走亲戚,特别有感触的是这些亲戚有穷有富,但每家都能在自己的经济基础上做出可口的饭菜,我也老听到一句话“穷有穷办法,腌菜请菩萨”,在有限的条件下做到最好就是这意思了吧。
本文所涉图片及图纸除标注外
由上海都设营造建筑设计事务所有限公司所有
我忘了是哪个嘴欠的建筑师说过一句话------“好的建筑师能够用便宜的材料做出完美的建筑”,这话本身没毛病,但是“合理”的前提没有的话,那就成了秀下限的借口了,也成了甲方拿来怼乙方的口头禅。
在目前的大环境下,造价低还能唬人成为甲方乙方都在做的事,都设举办的【幕墙培训课】本意是培训幕墙的设计,但学员反馈表里总是能看到“希望能多一些低造价的表皮的介绍”这样的建议,说明这个领域非常值得研究。
造价的提前预设其实对项目的影响还好,因为有了一个大区间,至少知道方向,设计的价值体现在同一造价下的效果的提升,所以从刷涂料到窗墙到幕墙,这些年也经历了不少低造价的项目,做一个总结也比较有意义。
项目都设成立以来一直“非幕墙项目不接”,但很多项目的造价从一开始的挺高到后面一次次的缩减,于是逼得我们也不得不去研究如何在有限的造价下完成精致的。
对于造价,高低的界定一定要清晰,因为高和低是相对的,600块对于幕墙来说太低了,对于涂料就挺高,所以在探讨时,“性价比”应该是最重要的评判标准,用1200块钱的造价做出1600的效果比用600块刷出400块的效果更值得推荐。
因此本文从1400块钱的“乞丐版”单元幕墙到300块的涂料外墙进行研讨,每一个案例都应该是那个造价区间的佼佼者。
都设在刷涂料方面没有太多研究,只有一个建成项目,不过效果还行。很多涂料的建筑看照片还行,不过一般p的很厉害,现场一看各种污渍,和地面相交的地方惨不忍睹。
所以涂料的建筑恰恰交接处的构造要特别考究,西扎的涂料建筑有的比幕墙还贵,但许多构造是值得学习的。

▲百叶的处理不能采用常规的,需要特殊处理

▲涂料的色彩组合


▲色彩丰富了立面的层次
公寓的立面最大的挑战就是空调百页,市场上基本是单体空调,所以每一个开间都会有一个空调,百页做出来就会特别难看。在都设的三个公寓项目当中,尝试打破常规,将空调机的遮挡和造型相结合,取得了不错的效果。
作为长租公寓,造价是非常敏感的,整体的外立面造价只有450每平米,考虑到底层的局部幕墙,主楼标准段只有420的预算,惟一能做文章的就是空调遮挡形成的序列感的立面。

空调对于遮挡物有70%的通风率的要求,因此打孔率渐变在铝板上形成了一个肌理,也降低了对于厚度的要求------在穿孔板上做图案不增加造价还有不错的效果。亏设计不亏预算说的就是这个事。


▲现场工地照
壹都荟1号楼在低造价下追求极致设计感。作为年轻人的第一套房,需要具有正面建筑观的优质空间,而不是五颜六色的廉价货。
首先注重色彩设计技巧,同时从观念层次对建筑色彩设计的风格倾向和形态特征进行了探讨。彩色涂料结合穿孔金属板,造价可控。单元化立面保证了均好性的同时可通过仔细雕琢基础单元,批量生产控制成本。


140米高的楼如果按照标准段来做会很无趣,宽的窄的线条又不能用装饰的手法来做,因为费钱,所以巧妙地将空调百页与阳台栏杆的变化进行组合,一宽两窄和一宽一窄的韵律感就出来了。

▲横向线条的变化形成了韵律感

▲色彩结合韵律构成了富有设计感的立面
襄阳的这个公寓项目同样秉承了空调百页和造型结合的原则。作为目标人群为青年人的三线城市的超高层地标,尽管造价低,但是业主要求富有潮流感、设计感并具有话题性。

设计师用“折纸”这一概念,通过打孔铝板的斜向拼合以及铝板与打孔板基于功能需求的组合塑造了别具一格的立面效果。


▲标准单元




▲工地现场照片
850块钱这个价位其实是做不了玻璃幕墙的,如果硬做效果无论如何也好不了。采用窗墙体系是唯一的解,但是窗墙体系要想做出幕墙的效果需要注意两个核心问题:开窗的处理和门窗采用幕墙做法。

宁波万科电商园的办公楼并非传统甲级写字楼,造价有限但业主依然希望效果出众。而政府的要求是玻璃幕墙。在850的造价前提下,做成玻璃幕墙基本就是惨不忍睹,所以“宁做鸡头不做凤尾”,采用窗墙体系然后在装饰上做文章。

80%以上的外墙采用这种窗墙体系,开窗的处理非常考究,因为没有预算可以设置遮挡开启扇的打孔铝板,所以借鉴了通风器的做法,采用“手动下悬窗”的创新节点,也为幕墙增加了一定的凹槽显得更加有层次。


▲塔楼标准段渲染图
VS

塔楼标准段幕墙体统分为层间幕墙和全玻璃幕墙两种。玻璃幕墙通过层间横向的装饰铝板和竖向的下挂玻璃,弱化开启扇对立面整体性的影响。不多的凹槽部分和突出的玻璃幕墙部分采用相同的开启扇模式,这样效果较为统一,对框架式幕墙来说施工也是容易出问题的地方,一致的做法也降低了施工出错的风险。


窗墙体系下外墙的精度受限,因此需要增加很多的细节来解决,同时还不能增加造价。

竖向的铝板线条如果直接折过去很难做好,也缺乏层次。所以本案窗墙体系部分定制了一块加一个小线角的铝板,这样就形成了一个阴影关系。

玻璃幕墙的扣盖也是采用L形,所以越是造价低越是要复杂一点。



在这个价位的外墙里,千万要注意几点:
1. 不能设计块面大的,因为材料厚度和质感都跟不上;
2. 线条要多一点,尤其是小线条,因为就靠这个提升精致度了;
3. 模块单元要简单,重复率要高,这类项目牛的幕墙施工企业瞧不上,设计必须要降低他们的理解难度,做一个就要做一片;
4. 开窗处理要重视,否则开窗毁所有。

▲成都协信希尔顿构造细节

南京北京西路72号院是一个历史保护街区里的更新项目,在设计中面对民国的“砖”这个元素时,从造价考虑采用了花岗石仿砖干挂的形式。
这个时候可能你会很奇怪,“砖”不是要便宜得多吗?这个项目的要求特别高,常规贴砖的方式导致的泛碱以及勾缝都达不到要求,在扬州虹桥坊都设尝试了“外挂砖”的方式取得了不错的效果,但是造价在1500块钱以上,如果采用空心穿钢筋的方式,常规陶砖做不出那种感觉,进口砖又太贵。
因此最后经过多方实验采用了石材仿砖的方式,实际上石材仿砖在很多不允许高层用面砖但又必须要有风貌要求的地方都有过成功的实践。比如上海的兰馨公寓等。

▲采用砖干挂形式的虹桥坊

▲采用石材干挂仿砖的兰馨公寓(图片来自网络)


▲现代感的民国建筑

72号院方案对于保留的杨廷宝先生设计的老建筑进行色彩及材质的提取,并且通过现代的材料重构体现时代性。采用仿砖也让整个楼体的施工变得简单,全楼采用幕墙干挂,没有几种工法的交接,交接面非常好处理,所以完成度也就相应较高。

▲石材样板的选择 | 荔枝面的“中国黑”拥有“老砖”的质感


在试验中我们惊奇地发现:石材经过表面处理后很有“老砖”的感觉。
在之前的文章里面,我提到过成熟的模数制对于玻璃幕墙造价的影响,如果一个项目预算是1400,那么面临两个选择:单元式和框架式,单元式毋庸置疑在平整度方面具有强大的优势,但在这个造价下基本上就是不太可能实现的,更何况还需要考虑隐藏式开启扇。
我们都知道“批发”和“零售”的价格的巨大差距,这其实是每一种商品的采购数量决定的。如果一个项目的外墙都是一个模块,那么单价就会便宜很多。用批发的价格,1400就可能做出精致的单元式幕墙了。
模数制说说容易做起来很难,模数制的基础是数理计算,首先是柱网和幕墙单元的关系,现在的幕墙规范里单块玻璃4个平方以内厚度和4个平方以上不一样,价格相差15%,所以要精确计算划分的尺寸。平面的地方容易做到统一,而转角的地方往往会出现两到三种单元,这就需要调整让其每一块玻璃和旁边的一致。

南京未来水世界的办公楼无论高层还是多层,都严格遵循这一原则,塔楼四个面的单元尺寸一致,和多层60%的单元尺寸也一致,这样能够将幕墙的单元板块限定在1-2种内。

塔楼柱子的地方内凹,一方面减少这一块的无效面积,同时解决掉单元的开窗,并且减小了每一个幕墙单元的横向距离,保证了每块玻璃在4平米以内。最后这个外墙项目的综合单价为1380,在高层和多层上都使用了单元幕墙。

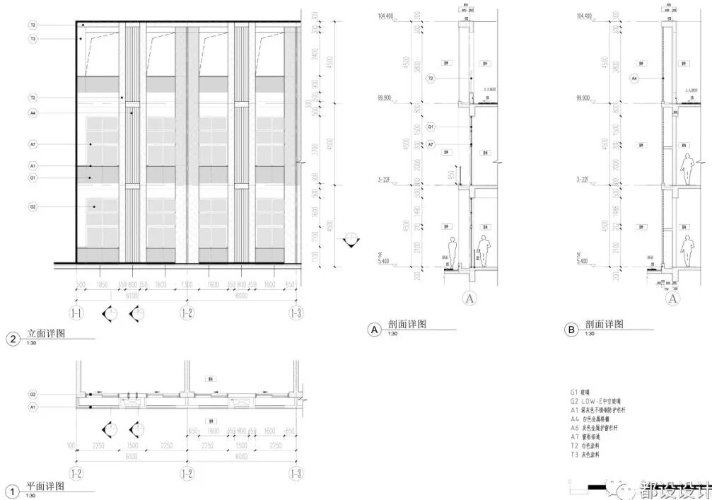
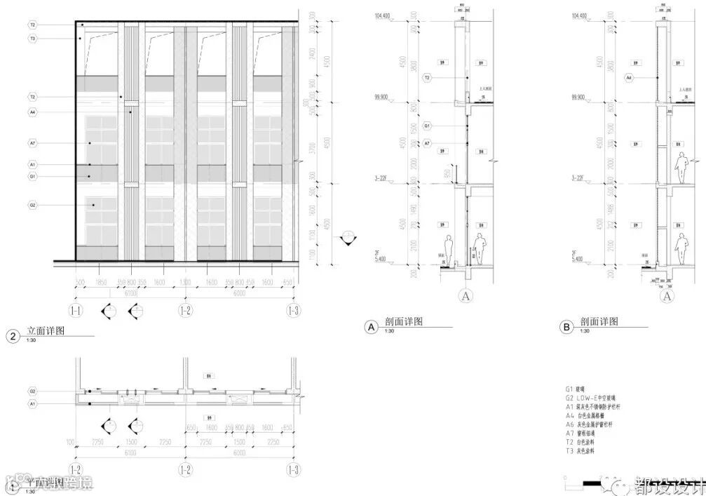
▲南京未来水世界塔楼标准幕墙单元


武汉西北湖B地块的塔楼也是采用了模数制的设计,同样通过竖向的内凹线条解决开窗并调节玻璃的大小。



所以在这个价格区间,如何用1400做出1800-2000的效果是关键。单元式幕墙有无可比拟的优势,而且随着人工费的原来越高,单元式幕墙一定会取代现在的框架幕墙,所以单元式幕墙建筑的模数化研究是造价优化且能保证质量的大前提。

微信公众号“搜建筑”(ID:sjz9999)
合作、宣传、投稿
请加小编微信:soujianzhu006

