▲ 更多精彩,点击“搜建筑” 关注即可

坐落在布拉格的卡林区有一种发展成小“硅谷”迹象。顶尖的IT公司正在寻找在该地区开展业务的新机会。
那是我们在Pernerova街上Praga工厂的前工程车间所在地建造的机会。Praga Studios是三座新设计房屋的综合体的一部分。
该综合大楼使Karlín的两条主要街道之间的交叉连接得以完成,并新建了一条安静的街道,该街道由建筑师Ricardo Bofill于1990年代巧妙地建立。
The Karlín district is becoming a phenomenon of Prague, with little exaggeration small “Silicon Valley”. Top IT companies are looking for new uncommon places for their business in this district. That was the opportunity of our building in the place of the former engineering halls of the Praga factory in Pernerova Street. Praga Studios is part of a complex of three newly designed houses. The complex completes the cross-connection of two of Karlín´s main streets and a new quiet street, cleverly founded in the 1990s by architect Ricardo Bofill, was created.

原有厂房的前墙保存完好,仍是该区第一共和工业特征的存在。卡林区一直着眼于未来和机遇。它一直是未知领域的发明家和创业者的中心。
Praga工作室,我们的办公大楼,矗立在街道线上,是一个新的公共空间。附近的行政大楼在背面,还有一条新的安静街道,缓解了过大的街道街区拥堵。
The well-preserved front wall of the original factory building remains the existence of the first-republic industrial character of the district. Karlín has always looked to the future and to opportunities. It has always been the center of inventors and start-ups in unknown fields. Praga Studios, our office building, stands on the street line and completes a new public space. The plot of land is delimited by a pulsating class, the nearby administrative building on the backside, and a new quiet street, which relieves the oversized street block.

新大楼有两个地下层和七个地上层。梯形平面在建筑物东侧的上两层中退去。新公共空间东侧的主要入口是高架大厅-中庭。
主体部分和玻璃部分有良好比例,以保留开发项目的城市特色。建筑立面有合理的层次划分。
The new building has two underground and seven aboveground floors. The trapezoidal plan recedes in the upper two floors on the eastern side of the building. The main entrance on the eastern side of the new public space is dominated by an elevated hall - atrium. A sober ratio of full and glazed parts is chosen to preserve the urban character of the development. The building facade leaves the rational rhythm of rugged facade modules to the full height.

外立面在艺术表现上与过去几个世纪的已建建筑相似,因此可以轻易的融入街道上。外立面的建筑和艺术设计遵循了该地工业特征。玻璃纤维混凝土是一种塑料材料,它可以充分发挥光影的视觉效果。













区位图

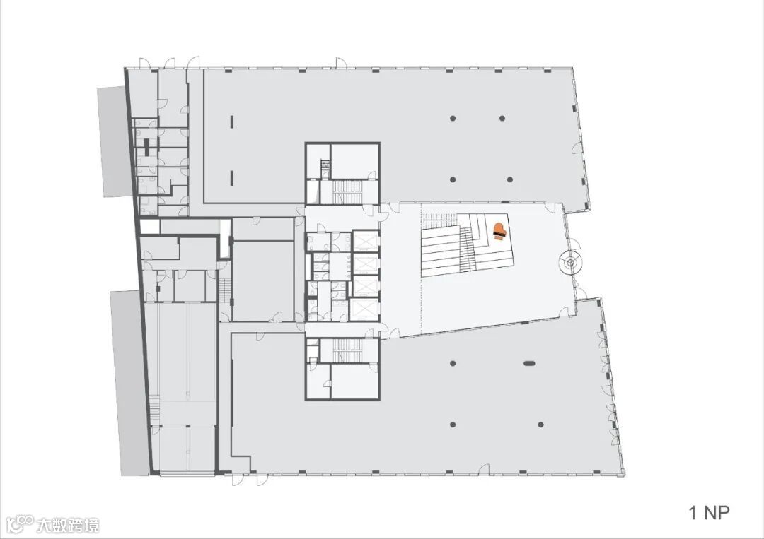
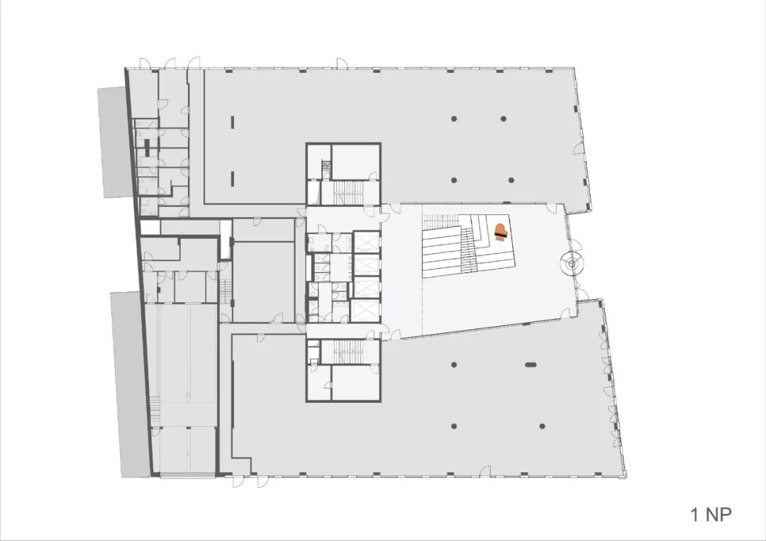
1层平面图

2层平面图

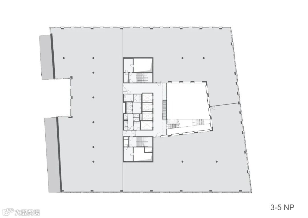
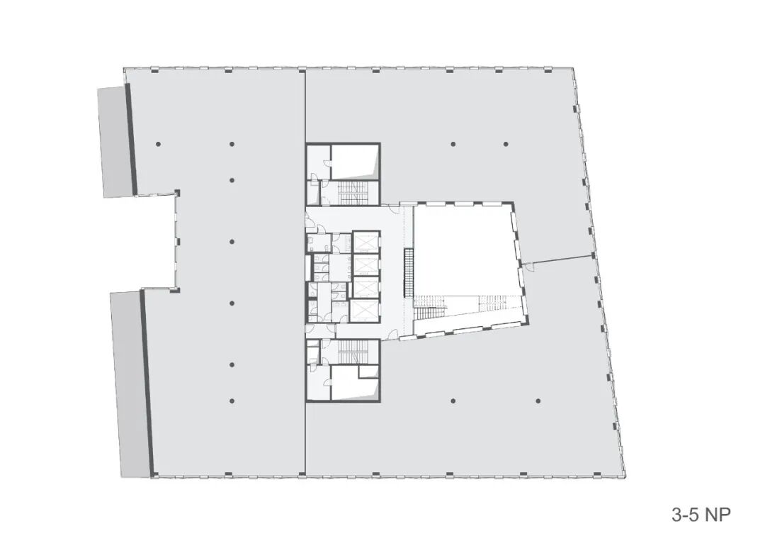
3-5层平面图

6层平面图

东立面图

西立面图

南立面图

北立面图

剖面图

建筑师:ADNS建筑事务所
地点:捷克
面积:6420m²
年份:2019
本资料声明:
1.本文为建筑设计技术分析,仅供欣赏学习。
2.本资料为要约邀请,不视为要约,所有政府、政策信息均来源于官方披露信息,具体以实物、政府主管部门批准文件及买卖双方签订的商品房买卖合同约定为准。如有变化恕不另行通知。
3.因编辑需要,文字和图片无必然联系,仅供读者参考;
2021年
新产品·新理念·新技术
《 品牌地产 | 精品楼盘活动 》
杭州、苏州、上海
成都、郑州......
广州、福州、重庆
西安、青岛......
扫描二维码 加好友咨询
领队微信:soujianzhu008
推荐一个
专业的地产+建筑平台
每天都有新内容
扫描二维码关注

微信公众号“搜建筑”(ID:sjz9999)
合作、宣传、投稿
请加小编微信:soujianzhu006


