▲ 更多精彩,点击“搜建筑” 关注即可


该房地产公司总部位于通往奥地利格拉茨最高流通入口,为该平坦的过渡区带来了清晰和开放的新地标。此外,主要目标是在新兴时代背景下通过改变其品牌图标,在整个建筑立面上,根据文脉为一个年轻公司“建立身份”。
CUBEND概念通过统一的“立方体”语言(与整体性和持久性有关)添加“弯曲”来全面地转化公司的价值。因此,创建一个加强身份,基于活动和可持续环境的综合体。建筑的表面明显地揭示了人与空间之间的相互作用,及他们与周围封闭的工业建筑不同的需求。
A real estate company’s corporate headquarters, which is located at the highest traffic entrance to Graz, Austria, brings clarity and openness to a flat transition area as a new landmark in this industrial district. Additionally, the main goal was to create an authentic example of “Build Identity” for a young company in context within an emerging quarter by transforming their brand icon, contextually and formally, consistently throughout the building elevation. The concept, CUBEND, translates holistically the firm’s values by unifying the terms “cube” – relating to wholeness and persistence – plus “bend,” standing for movement and individuality. Thus, creating a hybrid of an identity- enhancing, activity based, and sustainable environment. The building’s surface visibly reveals the interaction between people and spaces, as well as their needs in contrast to sealed industrial structures of the surrounding neighborhood.




该建筑由一个立方体组成,七个楼层由弯曲的中庭隔开,由浮动混凝土结构和玻璃核心筒组成。白色混凝土外格栅集成了一个自动遮阳系统,可根据人们的使用和日照情况而动态改变建筑的外观。
立面的第二部分是门廊状的区域,为人们提供了在室内外的过渡空间,尤其是在夏季作为遮阳的自由空间。第三是透明层,允许自然光进入中庭周围的分散的办公空间。
这个多层次的系统为用户提供了不同的结构和功能元素,并解决建筑本身的节能问题。
Organized as a cube, divided by a curved atrium across all seven floors, the building consists of a glass-dominated core within a floating concrete structure. The white concrete outer grid integrates an automatic sun shading system that changes dynamically building’s external appearance due to people’s usage and exposure to daylight. The facade’s second part, a porch-like area, serves people as a transition space between in and outdoors, particularly as sheltered free space in the summertime. A third, transparent layer allows natural light access to fragmented office space formations around an elongated atrium. This multilayered system includes different structural and functional elements for its users, as well as energy-efficient solutions for the building itself.

空间规划的主要挑战之一是满足多种需求-门厅,带有公寓模型的客户区,会议室,开放式工作区,创意空间以及供员工或公司活动和讲座使用的社交区-面积仅有2465平方米,分布在七个楼层中。
因此,该空间的布局在围绕中庭的矩形网格中得到优化,该矩形网格将所有楼层连接起来,并作为垂直流通界面。
One of the main challenges of the space planning was meeting the multi-requirements – foyer, customer area with an apartment mock-up, meeting rooms, open workspaces, creative spaces, and a social area for the employees or for corporate events and lectures – on only 2465 square meters organized on seven floors. Thus, the layout of the space was optimized in a rectangular grid around the atrium connecting all floors as a vertical communication interface.



建筑核心筒包括楼梯和电梯以及所有建筑设备,并通过网状吊顶将向外分配到办公室。这个新的天花板系统满足了空间、美学和声学的需求,是为建筑量身定制的。
为了通过协调工作的物理,虚拟和社会工作环境来创造一个鼓舞人心和健康的工作场所,在室内外部概念中实现了亲生物方面,包括植物,屋顶露台,阳台和建筑前院。
A central building core includes a staircase and elevator as well as all building technologies and distributes those outwards to the office space through a mesh-like suspended ceiling. This new ceiling system, which meets the spacial, aesthetic, and acoustic demands, was developed and customized for the building. With an aim to create an inspiring and healthy workplace by harmonizing the physical, virtual, and social world of work, biophilic aspects were implemented in the interior and exterior concept, which includes plants, rooftop-terrace, balconies, and the buildings foreyard.
















场地平面图

底层平面图

3层平面图

4层平面图

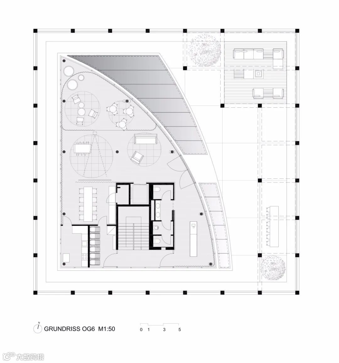
6层平面图

剖面图

建筑师:INNOCAD
地点:奥地利
面积:2465平方米
2021年
新产品·新理念·新技术
《 品牌地产 | 精品楼盘活动 》
扫描二维码 加好友咨询
领队微信:soujianzhu008
上海·活动时间
4月15日-4月17日
推荐一个
专业的地产+建筑平台
每天都有新内容
扫描二维码关注

微信公众号“搜建筑”(ID:sjz9999)
合作、宣传、投稿
请加小编微信:soujianzhu006