▲ 更多精彩,点击“搜建筑” 关注即可

由建筑师Albert Salazar Junyent和Joan Carles Navarro(AIA的合伙人)、Antoni Barceló和Bárbara Balanzó(加泰罗尼亚Barceló-Balanzó Arquitectes公司成员)以及建筑师Gustau Gili Galfetti为Sagrera街区(巴塞罗那)建设Camp del Ferro市政设施的项目在2015年BIMSA召集的公开竞赛中获得了一等奖。
该项目面积为7237平方米,于2017年开始建设,目前,最近已经投入使用,为Sant Andreu区提供了一个包括三个运动场的设施,以及一个公共空间,提高了交通便利性和与新基础设施的连接。
The project by the architects Albert Salazar Junyent and Joan Carles Navarro (partners of AIA), by Antoni Barceló and Bárbara Balanzó (members of the Catalan firm Barceló-Balanzó Arquitectes) and by the architect Gustau Gili Galfetti for the construction of the Camp del Ferro municipal facility in the Sagrera neighbourhood (Barcelona) won the first prize in the public competition called by BIMSA in 2015. The project, with an area of 7,237 m2, began construction in 2017 and now, recently inaugurated, provides the Sant Andreu district with a facility that includes three sports courts, as well as a public space that improves accessibility and connection to the new infrastructure.


考虑到广泛的Camp del Ferro功能项目所需的巨大体量,以及场地的缩小和社区的密度,建筑师团队在权衡利弊后,选择将体育综合体的一个重要部分置于部分地下。
通过断面机制,确保了良好的采光、自然通风以及低层区域的方便出入和疏散。此外,这一设计决定还为建筑、社区和城市带来了显著的好处,因为除了减少视觉影响外,还创造了一个公共空间,作为综合体的城市门厅,并促进了用户的流通。
一个必不可少的、舒适的自由区域,解决了飞地的交通问题和复杂的城市结构。
Given the large volume that the extensive Camp del Ferro functional program requires, in relation to the reduced size of the site and the density of the neighbourhood, the team of architects, after weighing the advantages and disadvantages, chose to locate an important part of the sports complex partially underground. An action that, through section mechanisms, ensured good lighting, natural ventilation as well as easy access and evacuation of the lower areas. A design decision that, in addition, has brought notable benefits to both the building, the neighbourhood and the city, since, apart from reducing the visual impact, has generated a public space that acts as an urban foyer of the complex and facilitates the circulation of users. A free area that is essential and comfortably solves the access and the complicated urban fabric of the enclave.

建筑过程源于对当地传统的理解和恢复,通过使用陶瓷等材料,这在旧工厂、仓库、车间和邻近的工业建筑中非常常见。
遵循节约资源和手段的标准,建筑系统本身构成了建筑本身及其最终完成的大部分,避免了重叠元素。
与立面一样,外露的材料保证了良好的老化和长时间的使用。为了在所有的立面上点亮建筑,不透明、半透明或透明的空隙和主体交替使用不同格式和颜色的陶瓷块。
The used construction process arises from the understanding and recovery of the local traditions through the use of materials such as ceramics, very common in old factories, warehouses, workshops and neighbouring industrial buildings. Following the criteria of austerity of resources and means, the construction system itself constitutes in a large part of the building itself and its final finish, avoiding overlapping elements. As in the facades, exposed materials ensure good ageing and long duration. With the aim of lightening the building on all its facades, opaque, translucent or transparent voids and bodies alternate, using ceramic pieces of different formats and colours.

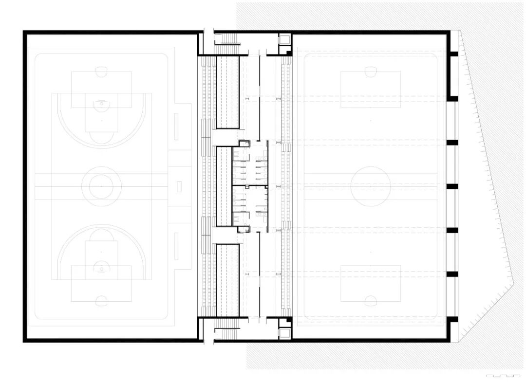
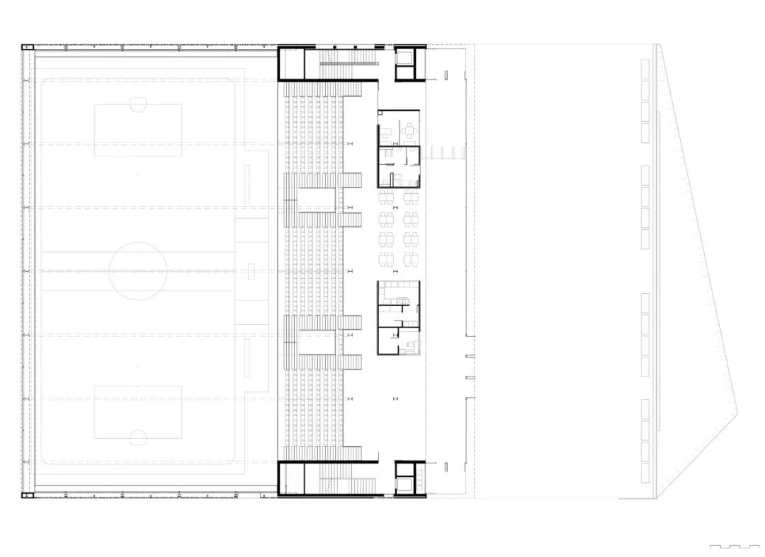
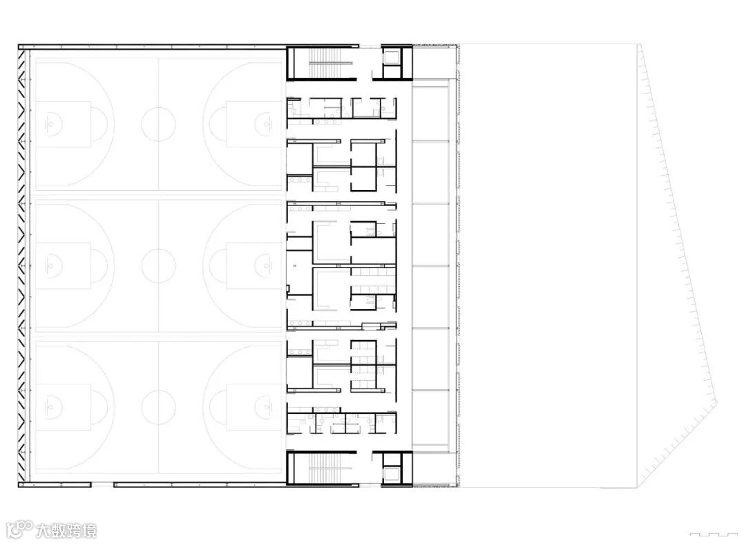
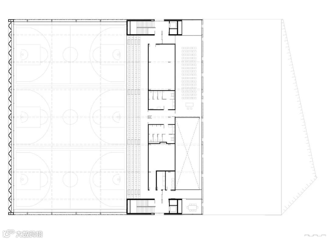
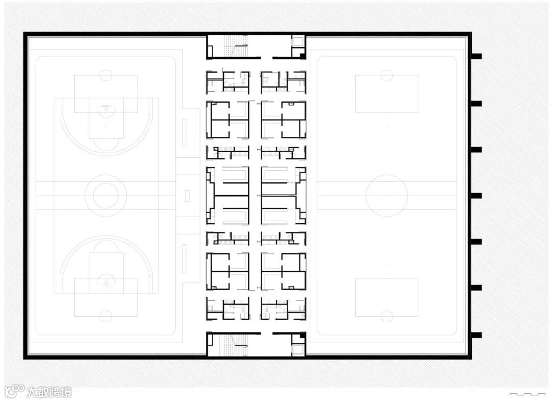
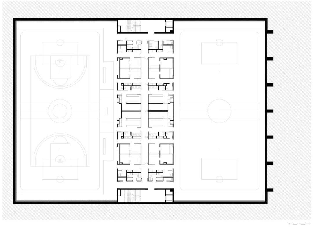
在建筑的纵向剖面和平面图中,不同区域的方案组织非常清晰,在这里不仅可以看到运动场的叠加,而且还可以看到包含较小规模方案(服务、仓库、辅助单元)、循环(垂直和水平)和设施的中央机构的安排。
换句话说,我们提出了一个紧凑的体量,将不同楼层的大型项目分开。
The organization of the different areas of the program is very clear in the longitudinal section of the building and in the floor plan, where it is observed, not only in the superposition of the sports courts but also in the arrangement of a central body that contains the smaller-scale program (services, warehouses, auxiliary units), circulations (vertical and horizontal) and installations. In other words, a compact volume is proposed that separates large-scale pieces on different floors.


最后,费罗营地体育中心建筑的半地下部分的另一个有意和内在的结果是能源和环境的改善。
一方面,随着外露表面的减少,整个建筑的热惯性增加。
另一方面,通过大面积的玻璃开口和天窗,以及由陶瓷格子和植物品种保护的天窗,大部分地面享受到了可控的自然光,避免了阳光直射和球场上的眩光。
Finally, another deliberate and intrinsic consequence of the semi-underground part of the building that houses the Camp del Ferro sports centre has been energy and environmental improvements. On the one hand, as the exposed surface diminishes, the thermal inertia of the whole has increased. On the other hand, a large part of the surface enjoys controlled natural light, through the large glazed openings and skylights protected by ceramic lattices and plant species that avoid direct sunlight and glare on the courts.

反过来,构成建筑的不同空间的形态和情况使交叉通风和分层成为热处理的自然机制。
能源生产系统在可再生能源的帮助下工作,对水的使用和消耗进行了优化规划,建立了合理使用能源的高效技术,并在施工和设计中减少了生态足迹。所有这些解决方案使新建筑获得了Leed Gold认证。
区位图

地面平面图

1层平面图

2层平面图

3层平面图

4层平面图

5层平面图

操场平面图

剖面图

建筑师:AIA + Barceló Balanzó Arquitectes + Gustau Gili Galfetti
地点:西班牙
面积:7237 m²
年份:2020

微信公众号“搜建筑”(ID:sjz9999)
合作、宣传、投稿
请加小编微信:soujianzhu006

