▲ 更多精彩,点击“搜建筑” 关注即可

位于巴黎附近的Colombes的媒体图书馆是一个新的社会中心的一部分,该中心更广泛的目的是对该镇的Fossés Jean/Bouviers区进行城市改造和升级。为此,该建筑必须具有示范性。

为了加强该地块的独特性,该体量向城市开放,与地面分离,并创造了透明度和从米歇尔地方一直到社会中心花园的深层视野。
抬高的空中体量在建筑下产生了一个空间,使人们能够通过玻璃大厅和内部街道,看到这个设施的所有实体。
To strengthen the unique characteristics of this site, the volume is open to the city, detached from the ground, and creates transparency and a deep view into the edifice from the place Michelet all the way to the gardens of the Social Center. The raised and aerial volume generates a space under the building that enables one to see, through a glazed lobby and interior street, all the various entities of this facility.


这个看似悬浮的体量就像一条丝带一样环绕着天井,同时通过大型的开口向附近的居民开放,如视觉艺术画廊或媒体图书馆等非典型的房间。
由于其特殊的体量和动态的身份,新设施自然地融入了它的环境中,象征性地表明了它在这个正在进行重大重建的地区的中心的存在。
The seemingly levitating volume encircles patios like a ribbon while opening widely to the neighborhood through large openings framing atypical rooms such as the visual arts galleries or the media library. Thanks to its specific volume and dynamic identity, the new facility fits naturally into its context by symbolically signaling its presence in the heart of this district undergoing a major redevelopment.

然而,由于其质量的提高,整体体积变轻了,同时它位于一个大部分是玻璃的底层,底层与一个用建筑学水泥覆盖的基座交替使用,使其结构牢固地固定在地面上。上层由金属复合板覆盖,可根据需要覆盖的表面进行折叠和展开。
大框架朝向城市,打开了大玻璃窗,并根据喜好的方向由垂直的檐口保护。一些中空的区域雕塑了它的屋顶,像碗一样打开了建筑的内部,并包含了一些带有绿色植物的保护性内部露台。建筑物的上半部分放置了一个由LED灯组成的指示牌,指示主要活动,进一步加强了它的可见性。
However, the overall volume is lightened by the raising of its mass while it rests on a mostly glazed ground floor, which alternates with a base clad in architectonic cement to solidly anchor its structure in the ground. Upper floors are clad with metal composite panels, which are folded and unfolded according to the surface to be covered. Large frames turned toward the town open large glazed bays, protected by vertical brise-soleils according to the favored orientations. A few hollowed areas sculpt its roof, opening the interior of the building like a bowl and contain a number of protected interior terraces with greenery. A signboard composed of LEDs indicating main events is placed on the upper part of the building, further strengthening its visibility.

媒体图书馆是一个奇妙的工具,需要一个强有力的建筑和象征性的形象,才能充分参与一个地区特性的发展,并作为一个城市的吸引力极点发挥重要作用。
这里选择的形象是一个螺旋形,象征着通过知识、文化和代际联系的运动和社会进步。大致开阔的区域像一条功能和程式化的丝带一样,围绕着大厅的中心空隙螺旋而行。这种组织形成了一个抽象的保护性轮廓,从地面层一直延伸到高层。
The media library is a wonderful tool requiring a powerful architectural and symbolic image to fully participate in the development of a district’s identity and to play an essential role as an urban pole of attraction. The figure chosen here is a spiral, symbolizing movement and social advancement through knowledge, culture, and intergenerational contact. The broadly open areas spiral around the central void of the lobby like a functional and programmatic ribbon. This organization forms an abstract and protective silhouette, running from the ground level into the upper floors.





区位图

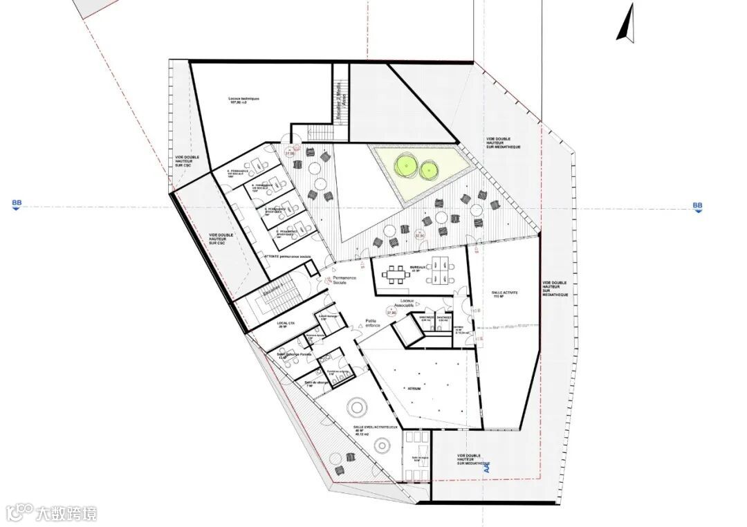
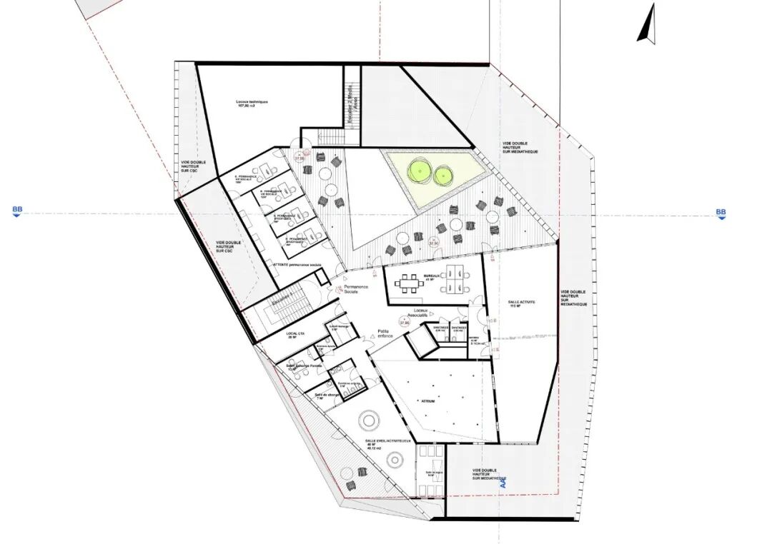
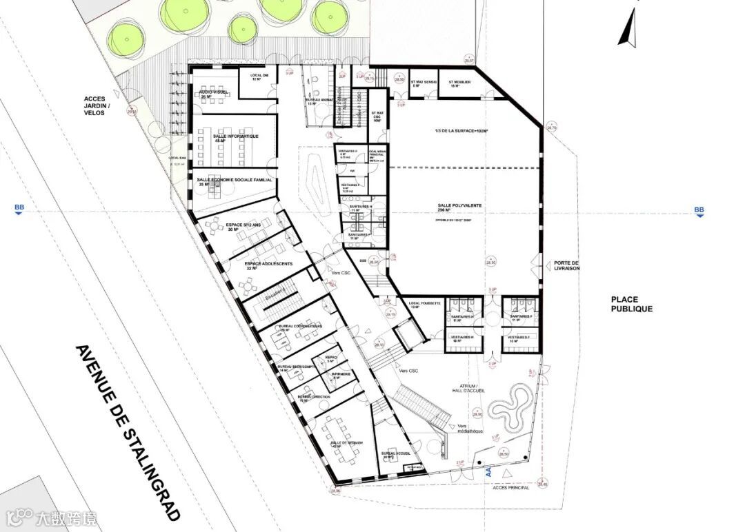
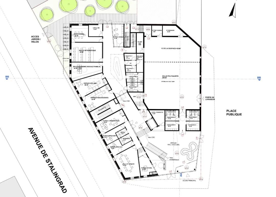
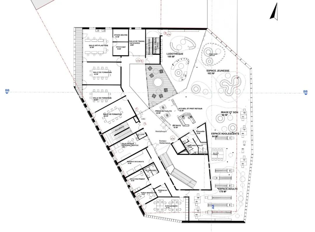
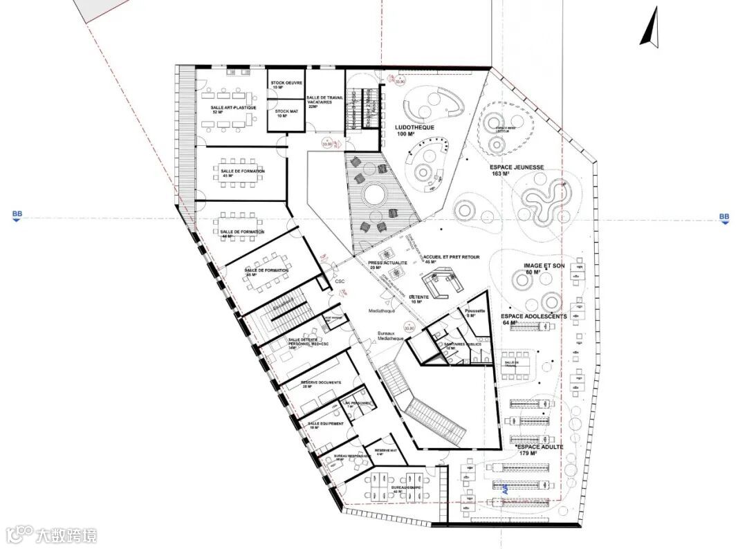
平面图



立面图


剖面图


建筑师:Brenac & Gonzalez & Associates
地点:法国
面积:3060 m²
年份:2020
2021年
新产品·新理念·新技术
《 品牌地产 | 精品楼盘活动 》
杭州、苏州、上海
成都、郑州......
广州、福州、重庆
西安、青岛......
扫描二维码 加好友咨询
领队微信:soujianzhu008
推荐一个
专业的地产+建筑平台
每天都有新内容
扫描二维码关注

微信公众号“搜建筑”(ID:sjz9999)
合作、宣传、投稿
请加小编微信:soujianzhu006


