▲ 更多精彩,点击“搜建筑” 关注即可

这个扩展在功能上和程序上连接了现有的Kuopio文化历史博物馆、自然历史博物馆和图书馆。
该设计基于对城市结构和城市景观的反映,结合具体的建筑保护和功能问题。新博物馆扩建部分体现了项目不同出发点的目标。
新的部分形成了一个大门——一种新的博物馆和文化综合体的入口。库奥皮奥博物馆是一座历史建筑,由j.v. Strömberg设计,于1907年完工。为了恢复它原来的风貌,20世纪60年代的消防局大楼被拆除。
This extension functionally and programmatically connects the existing Kuopio Museum of Cultural History, the Museum of Natural History, and the library. The Design is based on a reflection of urban structure and cityscape combined with specific building preservation and functionality questions. The objectives of the project's diverse starting points are embodied in the new museum extension. The new part forms a gate - the entrance to a new kind of museum and cultural complex. The Kuopio Museum is a historically listed building designed by J. V. Strömberg and was completed in 1907. To restore it to its original character, the fire department wing from the 1960s was demolished.

建筑西部的开口和塔楼的商店也得到了修复。
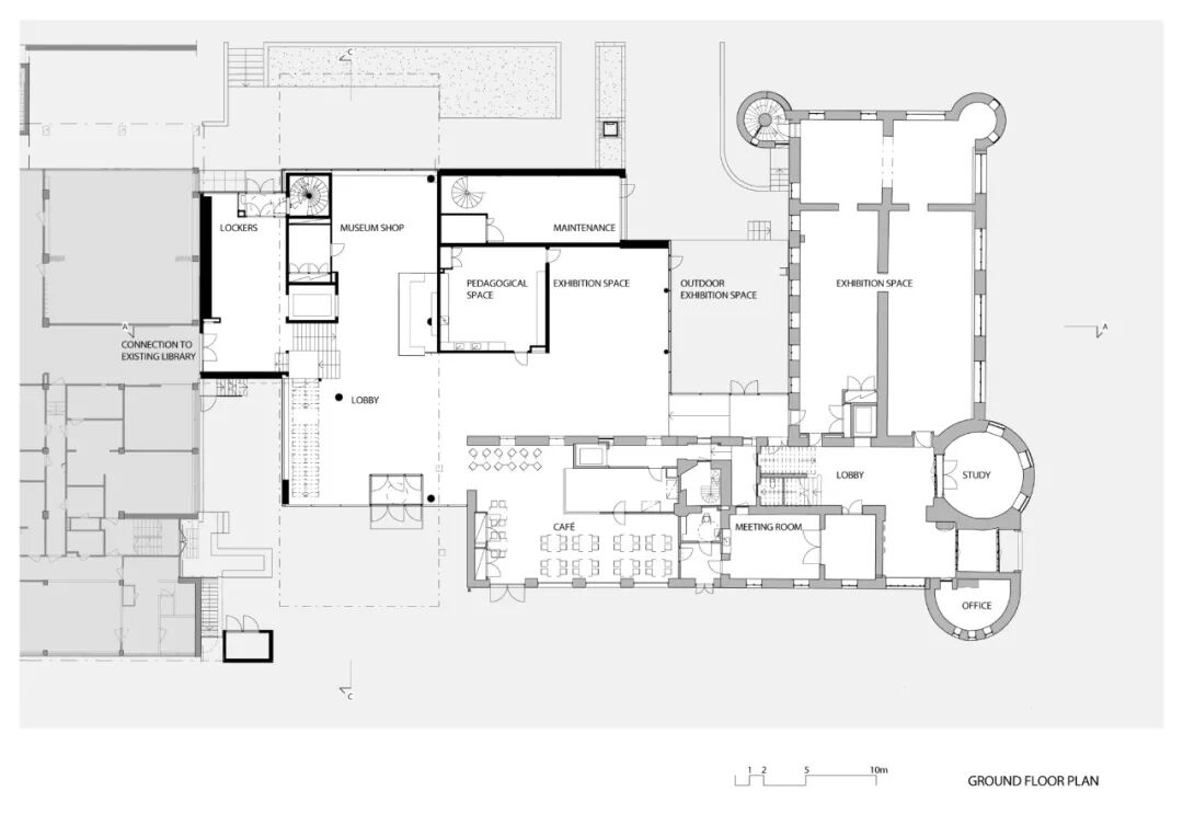
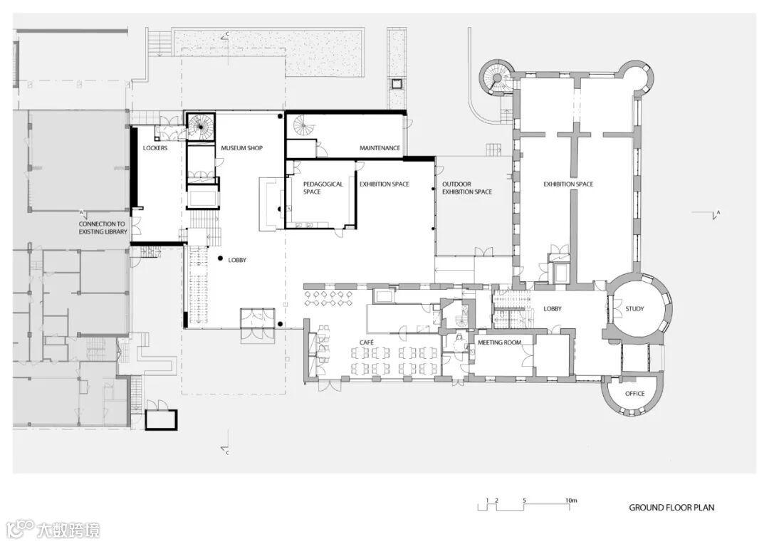
新的建筑入口大厅连接了原博物馆的主要展览空间、相邻的图书馆建筑(设计师Matti Hakala, 1967),以及一个用于改变展览的新空间。增加的部分消除了博物馆和图书馆之间现有的边界。
Openings in the building’s western façade and the shop of the tower were also restored. A new construction entrance hall connects to the original museum’s main exhibition spaces, the adjacent library building (designer Matti Hakala, 1967), and a new space for changing exhibitions. The addition removes the existing boundary between the museum and the library.


与大堂相连的是客户服务设施、博物馆商店、教育空间和博物馆,该博物馆位于前消防局设备大厅的场地上。
原来的博物馆展览空间现在可以通过新的展厅进入。临时展览空间位于入口上方的延伸部分,可以根据需要与其他博物馆空间分隔开来。这个没有窗户的“黑盒子”展览空间不受结构的干扰,并配备了最新的展览技术。
In connection with the lobby, there are customer service facilities, a museum shop, educational spaces, and a museum café on the site of the former fire station equipment hall. The original museum exhibition spaces are now accessed through the new exhibition hall. The temporary exhibition space, located in the extension immediately above the entrance, can be separated from the other museum spaces as needed. This windowless “black box” exhibition space is uninterrupted by structure and is equipped with the latest exhibition technology.

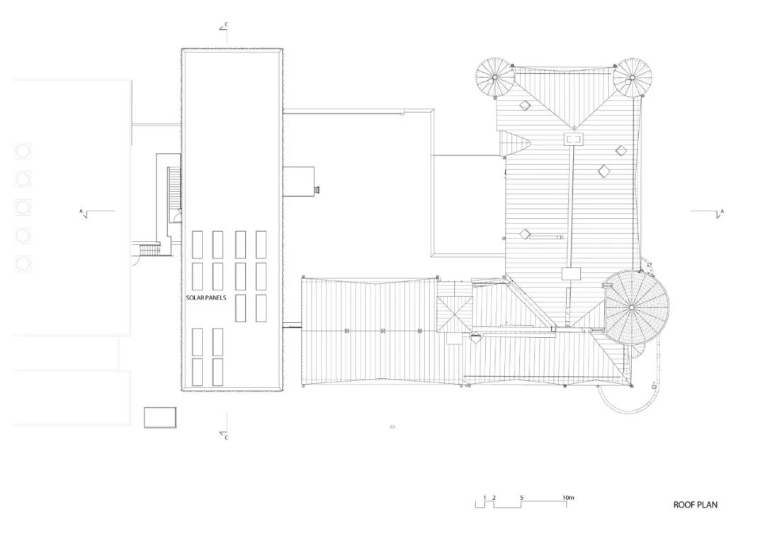
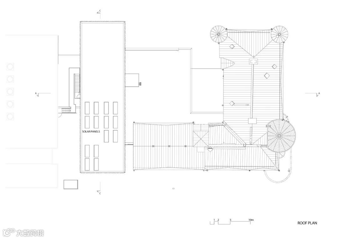
博物馆的工作空间、摄影和展览设计位于扩建部分的三层。装载、储存和展览建设设施位于地下室。在城市景观中,扩建部分是一个历史分层街区中的独立建筑。
展览大楼在20世纪早期的奢华建筑和20世纪60年代的纪律性、结构化建筑之间拔地而起,坐落在这个新文化区。展览大楼的白色网状悬垂在玻璃入口层上,创造了一种现代的、轻盈的建筑印象。
The museum’s workspaces, photography, and exhibition design are located on the third floor of the extension. Loading, storage, and exhibition construction facilities are located in the basement. In the cityscape, the extension is an independent piece of architecture in a historically layered block. The exhibition building rises between the lavish architecture of the early 20th century and the disciplined, structured architecture of the 1960s in this new cultural quarter. The white, reticulated façades of the exhibition building, which hover over the glass entrance floor, create a contemporary, light architectural impression.












区位图

地面平面图

首层平面图

2层平面图

屋顶平面图

地下室平面图

东立面图

西立面图

A-A剖面图

C-C剖面图

轴测分析图

细部分析图

建筑师:Davidsson Tarkela建筑事务所
地点:芬兰
面积:4500 m²
年份:2020
2021年·新产品方向
《 品牌地产 | 精品楼盘考察活动 》
杭州、苏州、重庆、成都、郑州
广州、福州、上海、西安
……
扫描二维码 加好友咨询

微信公众号“搜建筑”(ID:sjz9999)
合作、宣传、投稿
请加小编微信:soujianzhu006