▲ 更多精彩,点击“搜建筑” 关注即可

Jean Rostand学校位于Epine区的中心,Hellemmes南部。该区在七十年代主要是为铁路工人设计的。
它位于带状公路和铁路之间的拐角处,对里尔的居民来说相当陌生。对于市政府来说,推动这样的项目有很大的意义。
新的学校综合体确实是为了卸下整个Hellemmes市的负担,支持该区的更新。学校综合楼里有5个学前班,8个小学班,还有一个午餐室。它总共可以接收大约360名儿童。
The Jean Rostand school is located in the heart of the Epine district, south of Hellemmes. The neighbourhood was primarily designed for railway workers in the seventies. Cornered between beltways and railroads, it is quite unknown to Lille’s inhabitants. There is a lot at stake for the municipality to promote such a project. The new school complex is indeed meant to unload the whole city of Hellemmes and support the district’s renewal. The school complex hosts 5 preschool classes, 8 primary school classes, and a lunchroom. It can receive about 360 children in total.


除了作为教育场所外,学校综合体还是一个重要的公共设施。它包括多种公共活动功能。目标是让学校向孩子和城市开放。
两层楼的学校建筑被设计成适合周围房屋的现有类型。它填满了不到一半的场地,以尽可能地保留更多的空地。它与场地边缘对齐,既保留了城市花园,又完成了街区类型学。
In addition to being an educational space, the school complex is a major public facility. It comprises multiple functions for communal activities. The goal is to open the school both to the children and the city. The two-story school building is designed to fit in the existing typologies of the surrounding houses. It fills in less than half of the site, in order to preserve as much open ground as possible. It is aligned to the site edge and completes the block typology as much as it preserves the city garden.


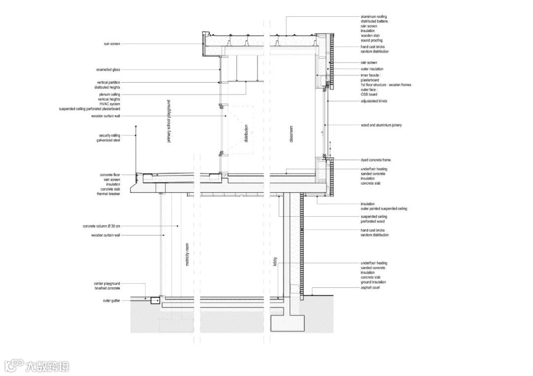
该项目在街道和花园的立面上与环境进行了对话。项目的城市一侧展示了一个砖砌的立面,为教室提供了亲切感,并与附近的物质性相呼应。花园一侧则完全通过大窗户和木质框架开放。
它可以从植被创造的景观亲近感中获益。随机分布的砖块立面以一种现代和独特的方式更新了这种材料的使用,这对于邻里的物质性是至关重要的。
原材料的使用:底层使用混凝土,一层使用木材,将项目的结构与使用者进行沟通。该项目的形状和材料使其在一个不断变化的社区的独特背景下,仍然具有强烈的地方特征。
The project creates a dialogue with its environment both on the street and garden facades. The urban side of the project showcases a brick façade which provides intimacy for the classrooms and plays with the neighbourhood materiality. The garden side is entirely opened through large windows and wooden frames. It can benefit from the landscape intimacy created by the vegetation. The randomly distributed brick façade renews in a contemporary and unique way the use of this material which is of the essence for the neighbourhood materiality. The use of raw materials: concrete on the ground floor and wood on the first floor, communicates the structure of the project with its users. The shape and materiality of the project make it relevant in the unique context of a mutating neighbourhood, still strong with a local identity.


设计的空间都是为了投资。总的概念是为可能被忽略为次要的房间创造使用价值。
食堂空间可以成为一个空闲的房间:例如,教室的延伸,用于一些小型团体活动……在一个空间内可以定义多种用途,每个房间可以承载多个功能。建筑应该尽可能对使用者开放和灵活。
The designed spaces all aim for being invested. The general conception idea is to create use-value for rooms that could be overlooked as secondary. The canteen space can become a spare room: for example, the extension of a classroom for some small group activities… Multiple uses can be defined within one space, each room can host several functions. The building should be as open and flexible to its users as can be.


这所学校不再只是一个公共设施。它成为了一个专门为儿童设计的村庄,有中心广场(操场)、聚集空间(多功能房间、主题空间)、餐厅、图书馆、公园、运动场和居住房屋:教室。
教室是矿物板,支撑着学校小屋和过道。学校成为一个两层的领域,使学生可以自由移动和教育实验。
The school is no longer only a public facility. It becomes a village dedicated and scaled for children, with its central square (the playground), its gathering spaces (multipurpose room, motricity space), its restaurant, its library, its parc, its sports ground, and its inhabitant houses: the classrooms. The classrooms are mineral slabs, supporting school lodges and passageways. The school becomes a two layers territory, enabling free movement for its pupils and educational experimenting.

该建筑的性能符合德国PASSIVHAUS标签的要求。这意味着对能源消耗、材料质量、夏季舒适度、视觉、听觉和嗅觉舒适度的高要求。
该项目旨在为用户提供非常现代的舒适感:儿童、教师、工人、家长以及整个Hellemmes社区。它考虑到项目对城市的全球成本,响应了环保和社会意识的方法。












流程规划图

透视图

区位图

地面平面图

首层平面图

1层平面图

剖面图



细部分析图


建筑师 SAM建筑事务所
地点:法国
面积:3097平方米
年份:2020
推荐一个
专业的地产+建筑平台
每天都有新内容
扫描二维码关注

微信公众号“搜建筑”(ID:sjz9999)
合作、宣传、投稿
请加小编微信:soujianzhu006

