▲ 更多精彩,点击“搜建筑” 关注即可

Kéré建筑事务所公布了其为贝宁国民议会设计的首张提案图片。
这座议会大厦位于贝宁共和国的Porto-Novo,由生活环境和可持续发展部委托,从2018年到2020年一直处于设计阶段。
该项目描绘了民主的价值观和公民的文化身份,计划于2021年3月建设。


“现在的建筑可以追溯到过去的殖民时代,已经超出了它的发展范围,贝宁共和国议会委托Kéré Architecture设计新的国民议会。”
该项目自2018年开始开发,占地35000平方米,其灵感来自palaver树,这是一个永恒的象征,见证了前几代人,并鼓舞了人们对大自然磅礴力量的尊重。
事实上,在西非古老的传统中,人们过去常常在树下聚会,为了社区的利益做出一致同意的决定。
“Having outgrown its current building, which dates back to the colonial era of its past, the parliament of the Republic of Benin has entrusted Kéré Architecture to design a new national assembly”. In development since 2018, the 35 000 sqm project draws inspiration from the palaver tree, a timeless symbol, having borne witness to previous generations and inspiring respect for the majestic forces of nature. In fact, in the age-old West African tradition people used to meet under a tree to make consensual decisions in the interest of a community.


由Diébédo Francis Kéré创建的总部位于柏林的Kéré Architecture事务所重新诠释了这些理念,设想在一层设置一个会议厅来支持办公室和上面的辅助功能,在顶层设置一个屋顶露台。
实际上,由结构的动态伸展所创造的天花板,产生了一个皇冠。从深处退下façade,它过滤了强烈的阳光。
此外,建筑的中空主干设置了一个具有流通空间的中央庭院和连接一层的会议厅和上面的办公室的螺旋楼梯。
Reinterpreting these ideas, the Berlin-based office Kéré Architecture founded by Diébédo Francis Kéré, imagined an assembly hall on the ground floor supporting offices and auxiliary functions above, with a roof terrace on the top floor. Actually the ceiling created by the dynamic reach of the structure, generated a crown. Set back from the deep façade, it filters the strong sunlight. In addition, the hallow trunk of the building puts in a place a central courtyard with circulation spaces and a spiral staircase that connects the assembly hall on the ground floor to the offices above.


场地的大部分形成了一个公共公园,为Porto-Novo创造了广阔的娱乐空间。公共绿地延伸到舌树脚下,创造了市民可以聚集和深思的阴凉空间,产生了开放和透明的感觉。
更多的政府服务设施与公园的地形相结合,屋顶种植植物,形成一个façade。此外,在地形的南部,在前国民议会的对面,一个公共广场突出了façade的主体。
A large part the site forms a public park, creating an extensive recreation space for Porto-Novo. Extending to the foot of the palaver tree, creating shaded space where citizens can gather and deliberate, the public green space produces a sense of openness and transparency. Further facilities for government services are integrated into the park’s topography with planted roofs, forming a façade. Moreover, to the south of the terrain, across from the former national assembly, a public square highlights the main façade.




设计草图

区位图

地面平面图

平面图

立面图

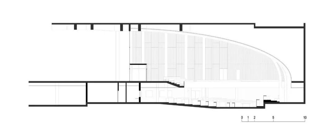
剖面图


轴测分析图


气候条件示意图

建筑师:Kéré建筑事务所
地点:西非
面积:35000平方米
年份:2021
2021年·新产品方向
《 品牌地产 | 精品楼盘活动 》
杭州、苏州、重庆、成都、郑州
广州、福州、上海、西安
……
推荐一个
专业的地产+建筑平台
每天都有新内容
扫描二维码关注

微信公众号“搜建筑”(ID:sjz9999)
合作、宣传、投稿
请加小编微信:soujianzhu006

