▲ 更多精彩,点击“搜建筑” 关注即可

住宅项目俄罗斯方块大厅由两座25层高的塔楼组成,在屋顶上由一座桥连接。该项目位于基辅中部著名的密集商业区,靠近主要的文化和娱乐场所和所有的设施,步行即可到达。
从每套公寓中可以看到壮丽的全景,以及大楼无与伦比的私人设施所提供的现代生活方式,再加上通往基辅市中心的便捷交通,使俄罗斯方块大厅成为居民和游客非常理想的住宿空间。
The residential project Tetris Hall consists of two 25 - storey towers which are connected by a bridge at the roof level. The project has been developed on a dense site in the prestige business district of central Kiev. The site benefits from close proximity to major cultural and entertainment venues and all the amenities which lie within walking distance. The magnificent panoramic views from each apartment and the modern lifestyle offered by the building’s unmatched private amenities, in combination with the easy access to the center of Kiev, make the Tetris Hall a highly desirable destination for residents and visitors.

俄罗斯方块大厅外部采用不同颜色和尺寸的玻璃板进行包覆,使其具有独特的图案,并确定了建筑的建筑特征。
不透明玻璃板和高性能透明玻璃的主要材料调色板是乌克兰新颖独特的材料选择方法。这种立面解决方案允许在视觉上缩小建筑的相当大的规模。
高层住宅塔楼一直是基辅开发商和公寓买家的首选类型,因此俄罗斯方块大厅很好地融入了首都新兴的天际线。
The Tetris Hall is clad externally in glass panels of varying colors and size, giving it a unique pattern and defining the building’s architectural identity. The primary material palette of opaque glass panels and the high-performance clear glazing is a novel and unique approach to material choice in Ukraine. This façade solution allows to visually scale down the considerable size of the building. High rise residential towers have been a typology of choice for both developers and apartment buyers in Kiev for a while now, therefore the Tetris Hall has fit well into the emerging skyline of the capital.


屋顶层的桥梁连接了项目的两个体量,其特点是令人兴奋的透明玻璃地板,并已成为该项目标志性的独特商标。
两栋建筑的屋顶为居民提供了高质量的娱乐场所。在乌克兰,这个住宅开发项目第一次在高层住宅建筑的屋顶上有一个25米长的游泳池。
The bridge at the roof level, which connects two volumes of the project, features a thrilling transparent glazed floor, and has become an iconic distinctive trademark of the project. Both buildings’ roofs offer high quality recreational areas for the residents. For the first time in Ukraine, this residential development has a 25-m long swimming pool on the roof of a high-rise residential building.


第二个屋顶配备了大型烧烤和多功能休闲区,社区聚集在一起。除了在屋顶上创造的设施外,建筑的较低楼层也有大量的服务、设施和社会基础设施,如托儿所、健身房、派对室和家庭庆祝活动等。
The second roof is equipped with a large BBQ and multifunctional leisure areas where the community comes together. In addition to the amenities created on the roof, there are also a considerable number of services, amenities and social infrastructure at the lower levels of the building, such as a nursery, a gym, a party-room for parties and family celebrations etc.


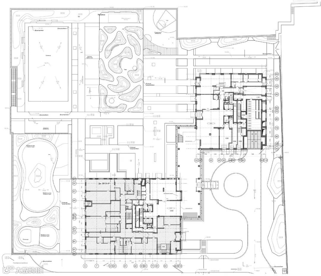
利用邻近现有街道的水平差,在建筑的平台上创建了一个宽敞的多层停车场。场地中相当大的区域被用于高质量的绿色开放空间,旨在提供各种不同的景观体验:公园、草坪、运动场、游乐场等。该项目的景观设计体现了其结构化的几何美学。
A spacious multistory parking has been created in the podium of the buildings utilizing the level difference of adjacent existing streets. Considerable area of the site has been dedicated to a high quality green open space, which was designed to offer a variety of diverse landscape experiences: a park, a lawn, a sport’s field, a play area etc. The landscape design of the project reflects its structured geometrical esthetic.


俄罗斯方块大厅是一个独特的乌克兰住宅建筑项目,具有可识别的形象,精心规划的舒适公寓,适用于不同的租户,以及前所未有的室内外设施,适合任何生活方式。
项目为居民提供了一个广泛的选择如何享受他们的生活,孩子们在操场上玩或在游泳池里,或者组织一次烧烤野餐和朋友,或者日光浴,或放松在树荫下盛开的树在公园里,或运动,或在山岗……










区位图

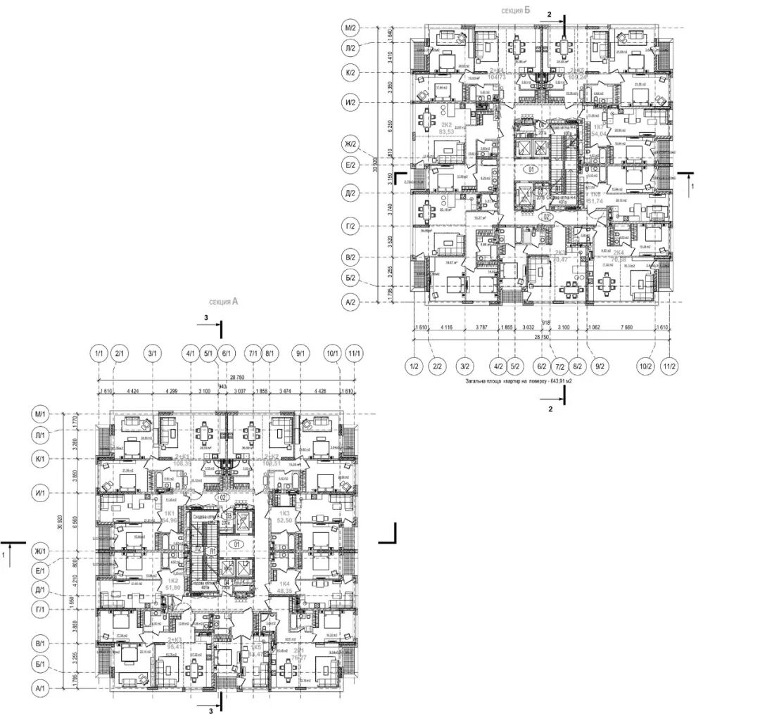
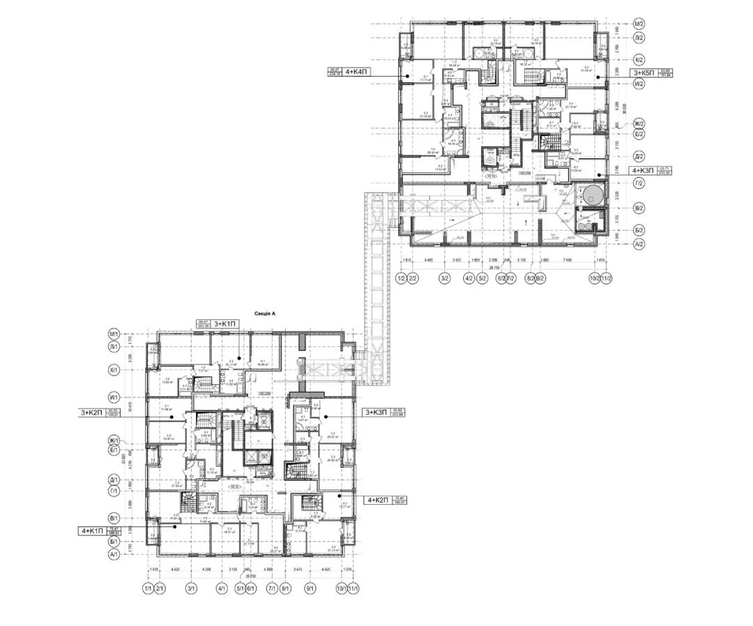
标准层平面图

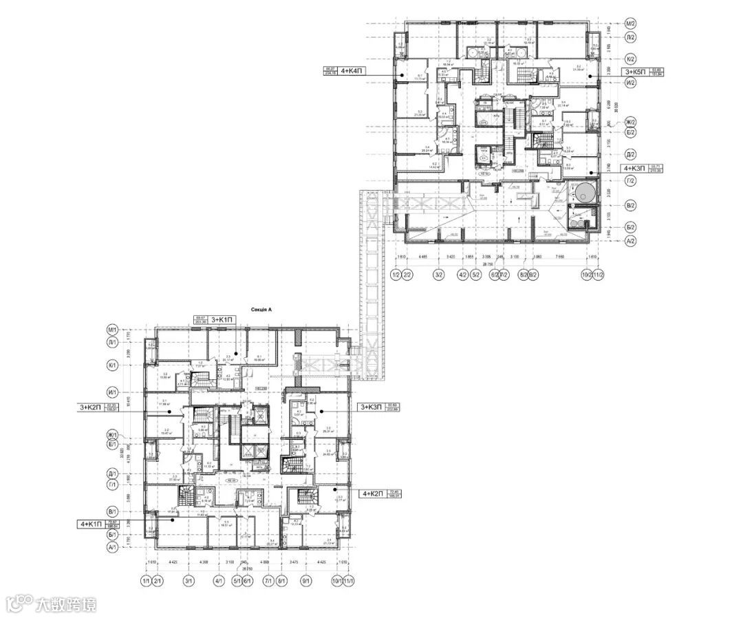
25层平面图

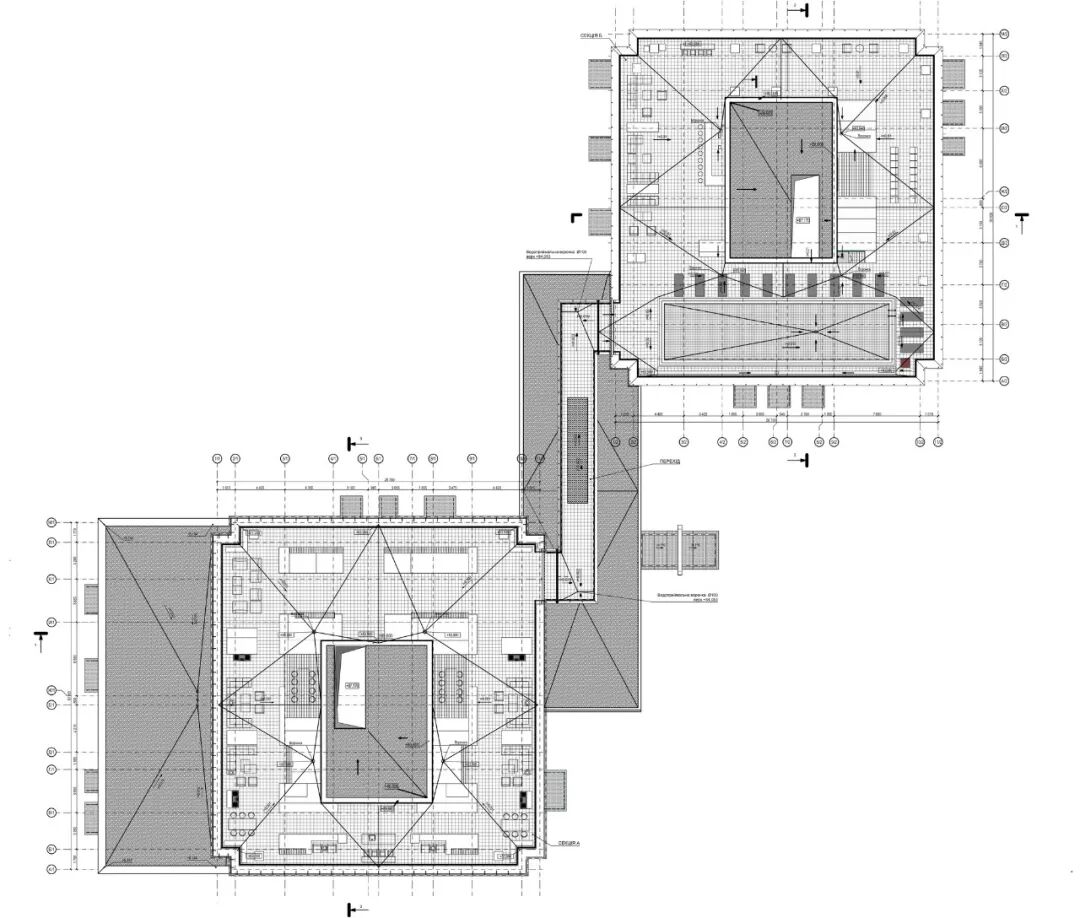
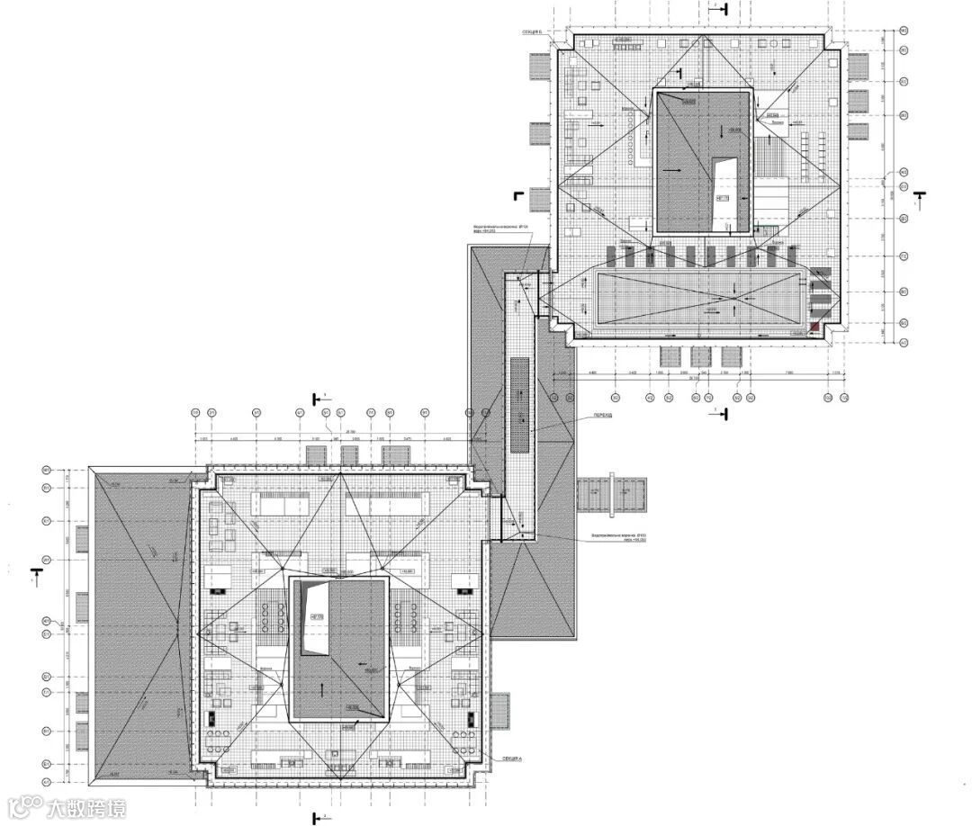
屋顶平面图

立面图

建筑师:A. Pashenko建筑师&KAN Development建筑事务所
地点:俄罗斯
面积:60138 m²
年份:2019
2021年·新产品方向
《 品牌地产 | 精品楼盘活动 》
杭州、苏州、重庆、成都、郑州
广州、福州、上海、西安
……
推荐一个
专业的地产+建筑平台
每天都有新内容
扫描二维码关注

微信公众号“搜建筑”(ID:sjz9999)
合作、宣传、投稿
请加小编微信:soujianzhu006

