▲ 更多精彩,点击“搜建筑” 关注即可

新的STEM中心位于历史悠久的Ransom Everglades椰林校区的入口处。它的位置特意创造了一个新的方庭,展示了学校对学术卓越、艺术和下一代教学和学习环境的承诺。
了解了STEM教育的原则,Ransom Everglades设想了一个45,000平方英尺的科学和数学中心,为教师和学生提供多学科的教育方法。该项目的协作领域加强了基于团队的学习,并促进了思想领导、实验和创造力的环境。
The new STEM Center is located at the entrance of the historic Ransom Everglades Coconut Grove Campus. Its location intentionally creates a new quad that showcases the school’s commitment to academic excellence, the arts, and next-generation environments for teaching and learning. Understanding the principles of STEM education, Ransom Everglades envisioned a 45,000 SF Center for Science and Math that allows for a multidisciplinary approach to education for both faculty and students. The project’s collaboration areas enhance team-based learning and promote an environment of thought leadership, experimentation, and creativity.


灵活性和适应性,从可移动的墙壁到可移动的家具和服务,使这个设施成为美国领先的STEM高中中心之一,并展示了具有前瞻性思维的教师和获奖的学生群体。地球科学、生物、化学和物理实验室与最先进的制造和制造者实验室相结合。
水上实验室作为建筑前面的水景,由户外学生公共空间和卓越教学孵化中心构成。该孵化器是教师、管理人员、学生和参观者交流思想、展示教育新趋势、促进STEM教育全国对话的中心。
Flexibility and adaptability, from moving walls to movable furniture and services, make this facility one of the leading STEM high school centers in the country and showcases a forward-thinking faculty and award-winning student body. Laboratories for earth sciences, biology, chemistry, and physics integrate with state-of-the-art fabrication and maker labs. An aquatics lab functions as a water feature at the front of the building which is framed by the outdoor student commons and the Center for Excellence in Teaching and Learning incubator. This incubator is a center for faculty, administrators, students, and visitors to exchange ideas, exhibit new trends in education, and elevate the national dialogue on STEM education.


该建筑的设计体现了最新的教育设施,认识到下一代教育需要新的学习环境。在设计的各个方面都给予了精心的关注,以创造提供学习经验的空间;从系统设计到环保策略,包括对采光、声学和技术空间的仔细校准。
设计驱动因素包括创造促进创造力、实验和学习、表达自由、社会责任、领导力、包容、尊重和专业精神的空间。
The design of the building embodies the latest in educational facilities, recognizing that next-gen education requires new kinds of learning environments. Careful attention has been given to creating spaces that provide learning experiences in all aspects of the design; from the design of its systems to environmentally responsible strategies including careful calibration of daylighting, acoustics, and technology-enabled spaces. Design drivers included creating spaces that promote creativity, experimentation, and learning, freedom of expression, social responsibility, leadership, inclusion, respect, and professionalism.


在全球范围内,这些驱动因素也被用于新的企业园区、研究设施和高等教育园区。如今,学习无时无刻不在各种环境中进行。技术已经允许与信息进行更流畅的交互。
正式的教室或实验室只是师生互动的众多空间之一。在当今的教育设施中,创造非正式的空间是至关重要的,强调“中间空间”。
These same drivers are also utilized globally in new corporate campuses, research facilities, and higher education campuses. Today, learning occurs at all times of day and in all kinds of environments. Technology has allowed for more fluid interaction with information. Formal classrooms or laboratories are only one of the many spaces where students and teachers interact. It is of the utmost importance in today’s educational facilities to create informal spaces, emphasizing the “space in-between”.


Ransom Everglades STEM建筑设计认识到了这一点,并提供了一系列非正式的学习空间。建筑的主要流通中心创造了完全透明的合作中心,每一层都可以重新配置空间。
配备了电力和数据基础设施的室外大楼梯或学生公共空间,提供了展示学习、即兴演讲或展览的机会,以及从室外剧场演出和表演到客座讲座的正式场景。
The Ransom Everglades STEM building design recognizes this and provides an array of informal learning spaces. The building’s main circulation spine creates hubs of collaboration with full transparency and spaces that can be reconfigured at each level. An outdoor grand stairway or student commons, outfitted with power and data infrastructure, provides the opportunity to showcase learning, impromptu lectures, or exhibitions as well as formal scenarios ranging from outdoor theater productions and performances to guest lectures.


整个设施的技术允许本地、国内和国际的连接,并使学生能够了解建筑的性能、特色项目、课堂活动和一般信息。该建筑是一个灯笼和一个活生生的实验室,展示了STEM的未来和Ransom Everglade在学术卓越方面的持续领先地位。



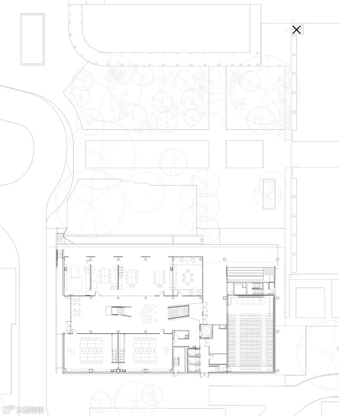
俯视图



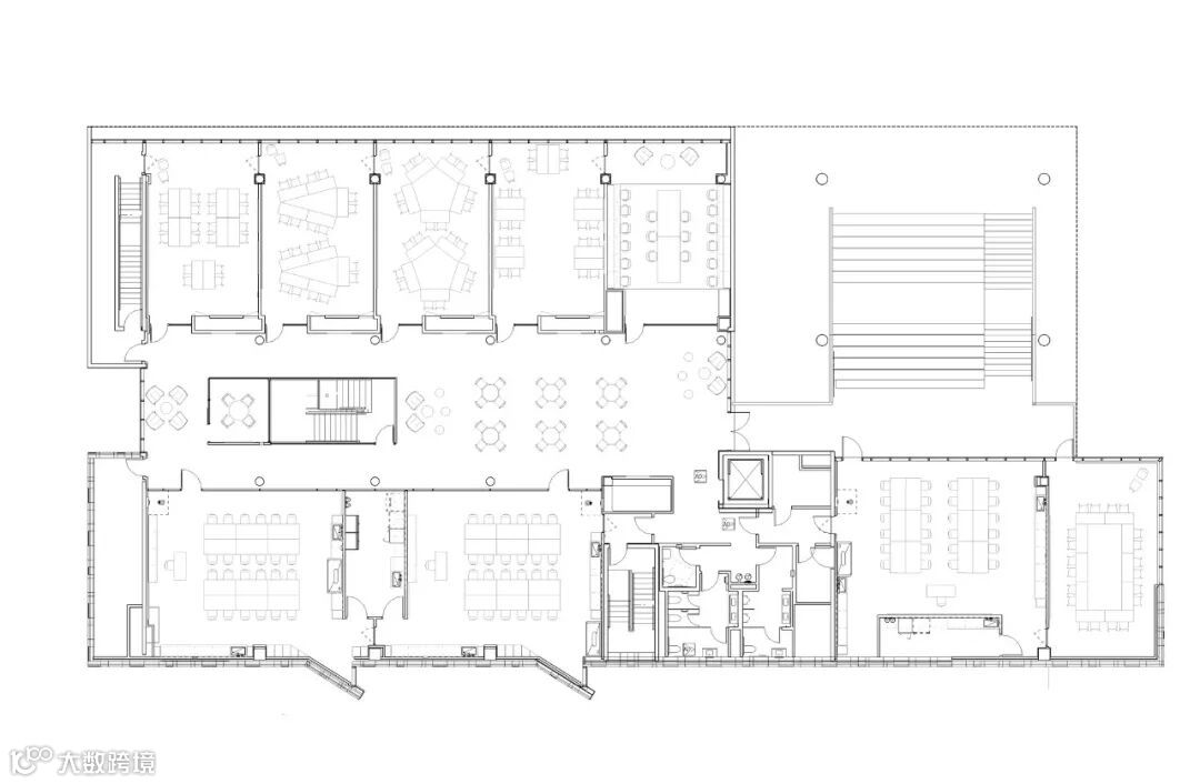
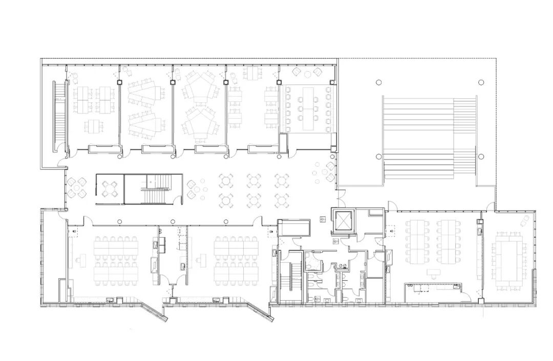
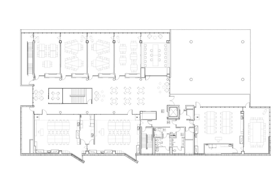
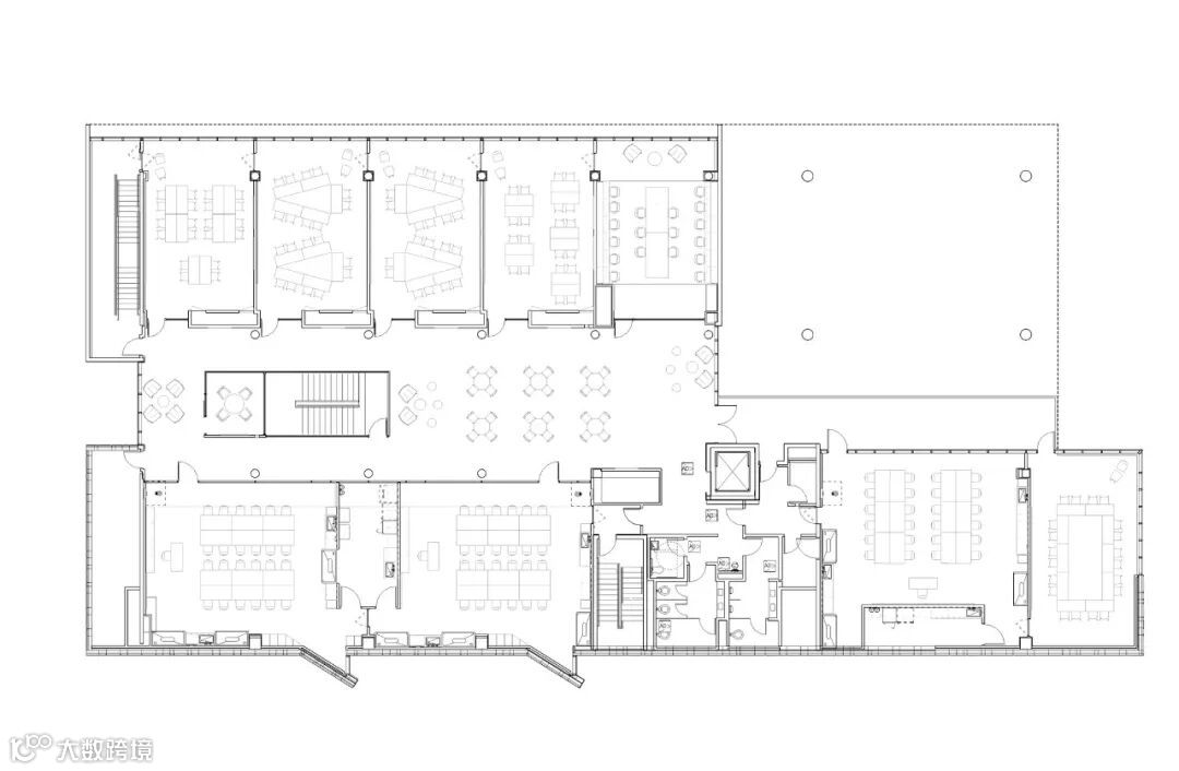
平面图




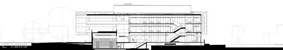
立面图


设计草图
2021年
新产品·新理念·新技术
《 品牌地产 | 精品楼盘活动 》
杭州、苏州、上海
成都、郑州......
广州、福州、重庆
西安、青岛......
扫描二维码 加好友咨询
领队微信:soujianzhu008
推荐一个
专业的地产+建筑平台
每天都有新内容
扫描二维码关注

微信公众号“搜建筑”(ID:sjz9999)
合作、宣传、投稿
请加小编微信:soujianzhu006


