
以成长性诠释健康人居
所谓健康人居并不仅限于保障居住者生理上的健康要求,还应满足使用者不同人生阶段心理、社会适应等多层次的需求。
Health Living
此次大赛的户型蓝本是UA之前为绿地研发的一套专属户型,已被运用于诸多项目中,并获得了市场认可,同时已顺利取得专利许可。
▲140平户型蓝本平面
UA设计团队围绕大赛“健康”主题,探讨居住者因人生不同阶段社会角色的转变,而对居住空间使用诉求产生的变化,从户型成长性角度切入,诠释产品多样性,实现全生命周期户型的可能性。
以延展性包罗全生命周期
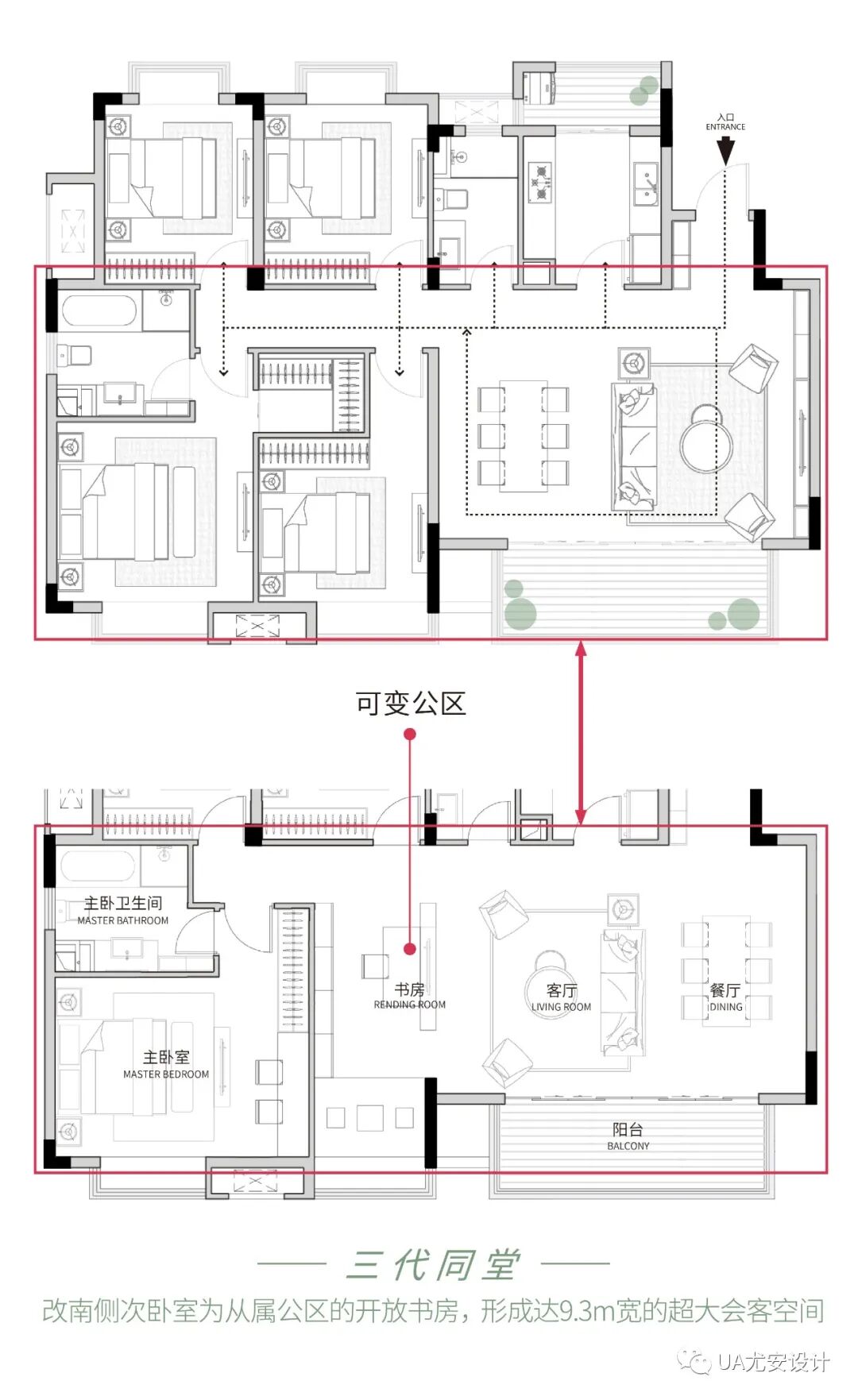
一生一套房,如果让这套房伴随居住者经历生命的各个阶段,设计就要前瞻性地解决户型带来的限制。而就蓝本户型已有的市场认可度,设计团队在不改变其结构的基础上,创新设计户型布局的延展性。
Life-Cycle
新手爸妈独自带孩子,个中辛苦不言而喻,此时该户型的动静分区就发挥了很大的作用。当你避免不了要处理工作事务时,你可将西北侧的次卧室改造成主卧套的书房,提高居家办公空间品质的同时,也可享一隅静谧时光。
▲二代同堂模型展示
当你实在“享受”不了,宝宝初成长时期给生活以及工作带来的兵荒马乱时,可邀爸妈一同居住,给予爸妈亲近儿孙空间的同时,缓解自身初为父母的压力。这时,你可将南侧的次卧室改造成从属公区的开放书房,同时结合江西茶文化设置室内饮茶空间,辅助完善超大会客空间。北侧的两个次卧也可满足父母需要的安静空间,并缩短父母前往敞亮厨房的距离。
▲三代同堂模型展示
当你照顾一胎宝宝轻车熟路时,或许会想步入二孩时代,给宝宝们创造一个彼此陪伴的成长空间。这时,你可将北侧两个次卧室打通,以可分可合的推拉折叠门分割空间。白天,可将折叠门隐藏,增大孩子们的玩耍空间;夜晚,可将折叠门闭合,成为互不打扰的休息空间。这样,你就再也不怕你在客厅会友,孩子们跑圈式的玩耍了,孩子们也多了个躲猫猫的空间。
▲三代同堂(双孩时代)模型展示
▲7.2M客餐一体 ©绿地控股集团
▲分离式奢阔主卧 ©绿地控股集团
▲全明厨房 ©绿地控股集团
1.本文为建筑设计技术分析,仅供欣赏学习。
2.本资料为要约邀请,不视为要约,所有政府、政策信息均来源于官方披露信息,具体以实物、政府主管部门批准文件及买卖双方签订的商品房买卖合同约定为准。如有变化恕不另行通知。
3.因编辑需要,文字和图片无必然联系,仅供读者参考;
2021年
新产品·新理念·新技术
《 品牌地产 | 精品楼盘活动 》
杭州、苏州、上海
成都、郑州......
广州、福州、重庆
西安、青岛......
扫描二维码 加好友咨询
领队微信:soujianzhu008
推荐一个
专业的地产+建筑平台
每天都有新内容
扫描二维码关注

微信公众号“搜建筑”(ID:sjz9999)
合作、宣传、投稿
请加小编微信:soujianzhu006


