前段搜建筑推送的一篇文章,收到大家的好评如潮,阅览量超过10万+……点击回看▶《536㎡一层一户,40m南向面宽,7.18m挑空,176㎡空中庭院,挑战人类的想象力!》
你有没有发现,它最大的亮点是那个神往、迷人、不一样的空中庭院!!!
别墅之所以成为豪宅,主要是因为它拥有“独属”的庭院。
在当下,豪宅的主流已经是城市中心的都市大平层,如北京的融创一号,上海的汤臣一品、深圳的深圳湾一号。
但是即便是如此豪贵的产品,却无法拥有独属的庭院,充其量是一个个阳台、露台。
深圳湾一号
汤臣一品
直到今天,我们看到下面的这个具有划时代意义的创新理念"都市立体庄园"。

这就是上海日清设计有限公司主持设计的岳阳南湖天著大平层项目,它创造了一个全新的“空中庭院”概念,对都市豪宅具有广泛的借鉴意义。
这个空中庭院拥有以下几大特征:
上海日清设计深入探索未来“生活场景的塑造”与“生活方式的打造”,设计反复推敲,多次推翻修改。
最后,决定将别墅级的庭院搬入高层,让空中庭院成为塔尖人群家庭生活的原点,也让该项创新成为中国大平层史上的重大突破!

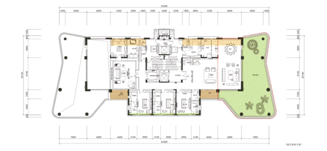
设计通过采用镜像设计,每户都拥有一个独立的空中庭院。


镜像咬合示意
奇数层与偶数层的院子分列东西两侧,形成对称美感。

平墅效果图
在这里,它完全是一个别墅级私属的空中庭院:
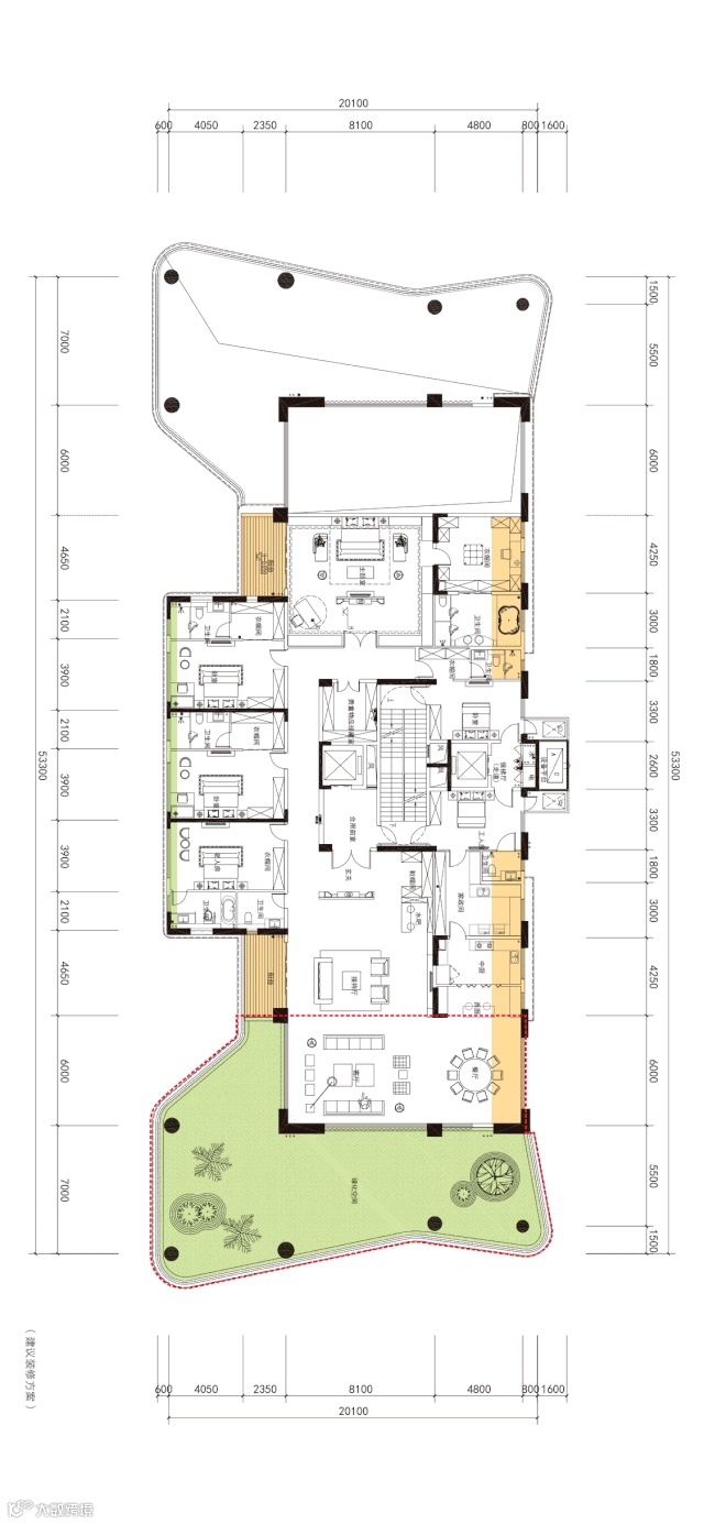
270°视野、长20m、宽13m、高达7.18m的真正的立体庭院空间,面积阔达176m²(数据源自536m²瞰宇平墅)!

这样的立体庭院,是真正的专属“秘密花园”,这样的环境,你才能肆无忌惮在院子做瑜伽、带孩子、养花弄草、种菜、休闲空间通通能实现,不被打扰,不被瞥见。

效果图
院子的重要性不言自明,但同时尺度感也很十分重要。
这个空中庭院,面积高达176㎡!!!
尼玛,比小编家都大!真的是,太壕气了!
这个大大大大大庭院,能呈现的生活方式,更让人充满遐想:
呷茶赏月,聊天打趣,乘凉静思...,创造更多休闲的生活形态,打吊床,搭秋千,造木屋...这些对生活形式的“头脑脑暴”,也只有这样大尺度的院子才能满足。

效果图
此外,在城市价值和土地价值越来越大的当下,176㎡这么大的空中庭院,它的价值是可想而知的。
据专业人士介绍,纵向的延伸,意味着建筑格局、楼层构造均要发生颠覆性的改变,每一个细节都要重新设计把控,极大地增加施工难度。
在这里,挑空不像通常那样只放在客厅,而是从客厅、餐厅至空中庭院全部挑空,约7.18米的超高层高,形成了宴客区的整体联动,其他区域的层高约3.59米。
空中庭院7.18m两层通高的层高格局,国内少见。
它超越了传统以面积与平方营造的单纯 “二维”空间,而是拥有多维度居住感官体验的“立方空间”,将生活格局放大至极限。
客厅+空中花园
奢侈尺度带来极高的居住舒适感,挑空约7.18米"空中院子",种树都没问题!!!
客厅外接,高达176㎡、挑高7.18m的超大型空中花园,完美地延伸了室内空间,让人身居高楼亦可拥抱户外大自然。
同时满足动区多元化活动需求,注重家庭交流互动体验。
同时,因为客厅连着院子,你在客厅看电视、忙活时,也能顾到在庭院玩耍吵闹的孩子,既安全又能释放孩子天性。
除此之外,户型设计还有很多亮点,诸如创新归家三条动线、6套房设计、约40m超级南向大面宽等等。

平墅效果图
看到这里,你以为就够了吗?
不仅顶豪户型拥有空中庭院,上海日清还创新性地将双层私属空中庭院,完美地值入到了改善住宅当中,户型面积在240㎡、320㎡,也可以拥有迷人的空中庭院!

跃层户型创新L型咬合式结构示意图
• 边户:转角空中庭院(6.6m高、55㎡)
• 中户:南北双庭院(6.6m高、55㎡)

320㎡跃层/六房两厅七卫(六套房)

240㎡跃层/五房两厅七卫(五套房)
约320m²与约240m²跃层户型,将奇数楼层和偶数楼层错开,比如约320m²户型为偶数层,庭院分列东西两侧;约240m²户型为奇数层,庭院配置在中间。
在这种前提下,奇数层与偶数层均可以各自得到一个约6.6米高的空中庭院。
令人惊叹的是,这个庭院是私密、独属的,完全没有楼上,楼下对视、噪音的干扰。

约320m²&约240m²跃层户型L型咬合式结构示意图
将标准层(核心筒+卧室),1F竖向双厅+2F主卧套房,通高空中花园,三个特点组成“L”型模块,通过咬合,双拼形成后两栋高层,边户为320㎡,中间户240㎡,3.3m层高,向西可以看到南湖和洞庭湖风光,向东可以俯瞰整个岳阳城市风貌。

约320m²&约240m²跃层户型L型咬合式结构示意图
边户视线开阔,55㎡怡人空中转角花园;
转角花园示意图
中户为确保每户花园视线通畅及私密安全性,分户实墙遮挡,55㎡南北双花园。
前庭后院的设计让整个建筑空间成为整体,与室内空间形成了过渡与互动,让具有尺度感的院子融入室内空间。

效果图
这是一个变幻万千的时代,引领时代的伟大作品,无不拥有以敢为天下新的雄心。
如何创新设计,为行业未来做出解答?
上海日清设计打造的空中立体庭院大平层,不止为居住者提供一个“与自然和谐共生”的住宅,而是为他们创造一种新的生活方式,重新定义都市高层住宅的水平。
它的出现,彻底颠覆我们以往的豪宅认知!堪称中国当下大平层的战斗机!
后记:
在一个快速变革的时代,要做引领者,唯有不断创新,颠覆,以匠心的心态,打造无与伦比的产品。
就像日清设计,打造的空中立体庭院!
这样的创新设计理念和精神值得所有同行学习、借鉴。
住宅创新•高峰论坛 - 2021年4月15日
【实地考察 | 六大精品项目】
报名咨询
扫描二维码

微信:soujianzhu03
本资料声明:
1.本文为建筑设计技术分析,仅供欣赏学习。
2.本资料为要约邀请,不视为要约,所有政府、政策信息均来源于官方披露信息,具体以实物、政府主管部门批准文件及买卖双方签订的商品房买卖合同约定为准。如有变化恕不另行通知。
3.本资料制作因编辑需要,文字和图片无必然联系,仅供读者参考;
2021年
新产品·新理念·新技术
《 品牌地产 | 精品楼盘活动 》
杭州、苏州、上海
成都、郑州......
广州、福州、重庆
西安、青岛......
扫描二维码 加好友咨询
领队微信:soujianzhu008
推荐一个
专业的地产+建筑平台
每天都有新内容
扫描二维码关注

微信公众号“搜建筑”(ID:sjz9999)
合作、宣传、投稿
请加小编微信:soujianzhu006


