▲ 更多精彩,点击“搜建筑” 关注即可

COPA位于布宜诺斯艾利斯的大都市郊区,围绕着一个中央修道院而建,每个单元都可以进入。在这座建筑中,私人空间和公共空间之间的界限被模糊了,设计的空间具有不同的亲密程度。
建筑可以被理解为一种社会化的产物,它为微社区的创建提供了空间。从这个意义上说,集体生活和混合用途的建筑,如COPA,既是这些生物群体发展的一个阶段,也是内在的。
新的居住模式解构了核心家庭的概念,核心家庭产生特定类型的个体,这些个体知道如何应对给定的生产模式。这些新模式促使我们重新思考集体住房和社区生活的意义。
住房不应该仅仅是一种重复的、有或没有修改的、针对所谓同质群体的庇护装置。相反,住宅包含了这些空间内的一切,不是私人的,而是高度私密的空间。


COPA的底层是对传统建筑形式回廊的重新诠释,并遵循严格的模块化系统设计,该系统后来被自由地用于赋予建筑运动和特点。虽然我们使用的是现代词汇,但美学语言是本地语言,是促进当地劳动力习惯于这种类型的工作建设。标准的砖,或多或少的烧制时间,在整个作品中以不同的方式使用,利用其表达的品质。


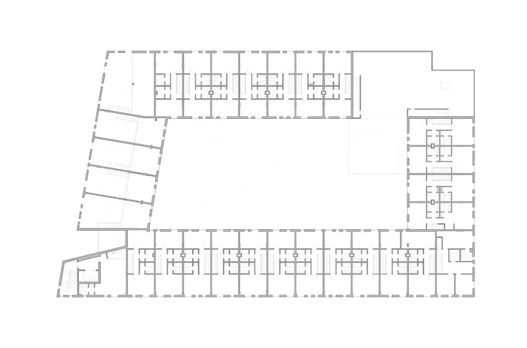
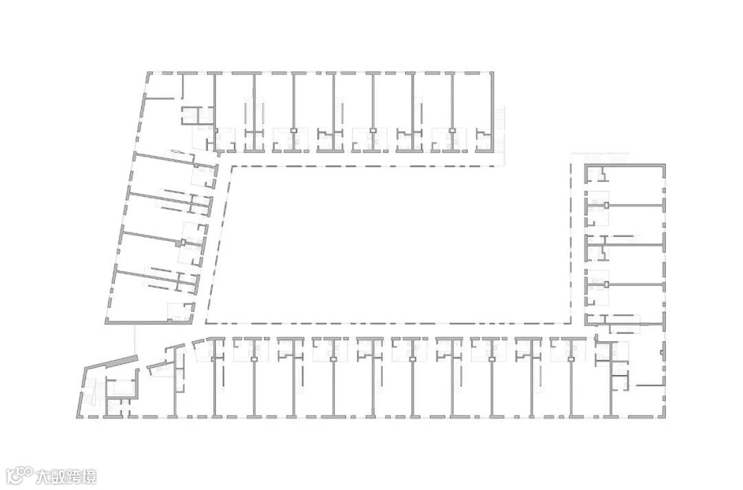
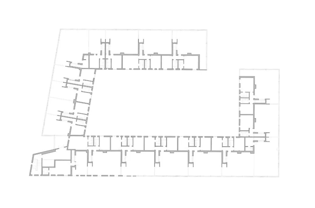
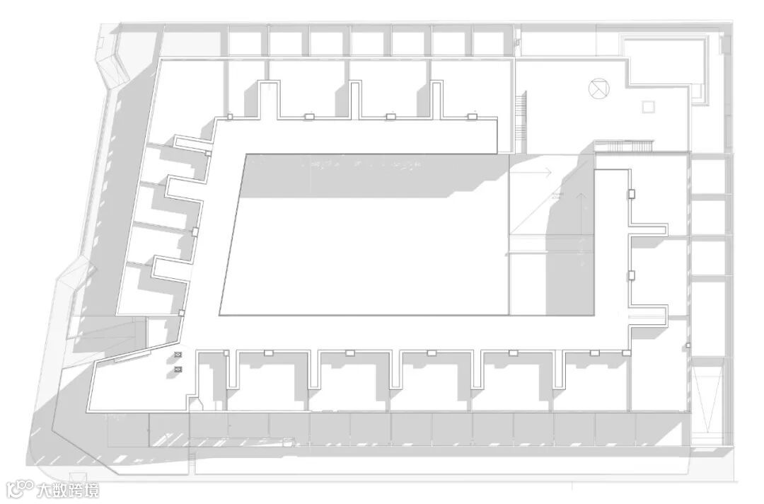
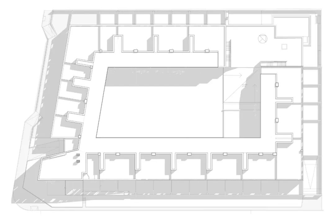
在回廊内,有一个整合了自然植被的公园,为社区居民提供公共空间。北角被去物质化,让阳光洒满中心空间,同时地形允许空间连续性,产生新的情况和空间。回廊是一种经典的建筑形式,它的组件和逻辑被重新配置为现代词汇,以响应特定的需求。流通廊和每个单元向中央庭院开放,赋予它一个真正的公共空间的特点,供居民之间的接触。



这种组织利用了地形的特殊特征;COPA围绕着一片大树林而建,在原有的自然形式和被建筑修改的形式之间有着互利的关系。植物滋养了建筑,同时也保护了它。景观美化产生了一个生态系统,保护现存的物种和筑巢的鸟类和昆虫。
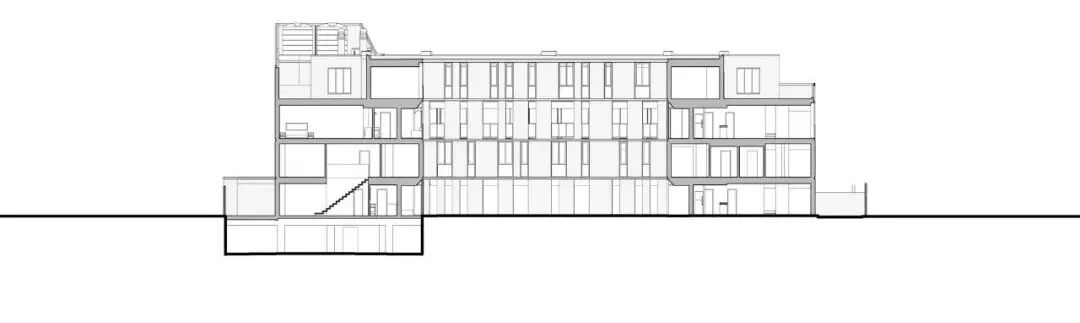
增加的植被伴随着这个生态系统,并适应当地的气候条件,促进维护和减少水和化学品的消耗。公园包含一个堆肥系统,并为位于公园较上层的社区花园提供有机土壤。双层墙体、dvh玻璃、隔离的底层和带屋檐的走道,大大减少了夏季的热量增益和冬季的热量损失。
This organization exploits the particular characteristics of the terrain; COPA is constructed around a large grove of trees and has a mutually beneficial relationship between the preexisting natural forms and those modified by the architecture. The building is nurtured by the vegetation and, simultaneously, protects it. The landscaping generates an ecosystem that preserves the preexisting species and shelters nesting birds and insects. The added vegetation accompanies this ecosystem and is adapted to local climatic conditions, facilitating maintenance and reducing the consumption of water and chemicals for maintenance. The park contains a composting system and provides organic soil to the community garden, which is located farther in the upper level of the park. The constructive system double walls, dvh glass, isolated subfloor, and covered walkways with eaves, significantly reduces thermal gain in summer months and losses in the winter.


COPA位于大都会区的一部分,为通往市中心的高速公路和火车提供了便利。这些是本区域最重要的交通路线,广泛应用于各社会部门。该项目理解了一个退化的,但高度连接的郊区的现实,并提供了一种生活方式,在拥挤的城市和广阔的郊区城市之间。
COPA is situated in a segment of the metropolitan area that provides easy access to both highway and the train leading to the city center. These are the most important transportation routes in the region and are used broadly across social sectors. The project understands the reality of a degraded, yet highly connected suburb and offers a way of living between the congestion of the city and the vastness of the sprawling suburban city.


中等密度的建筑不会产生大型企业集团,也不会产生巨大的基础设施成本,但可以在私人地段为中产阶级提供郊区住房。这个概念是一个中等密度的城市,它不代表无限的城市污染,不代表所有随之而来的能源消耗问题,也不代表一个高度集中的城市,只关注另一类问题,如疾病在高密度人口中的传播和出现。
Mid-density buildings that do not generate large conglomerates or generate immense infrastructure costs can provide suburban housing on a private lot for the middle class. The concept is a mid-density city that does not represent an infinite urban stain, with all the accompanying problems of energy consumption, nor an extremely concentrated city that focuses on another class of problems, such as the spread and emergence of disease in high-density populations.


COPA是对当代居住模式的学科反思,边缘的作用和公共空间在创建微型社区中的作用。


































平面图



立面图





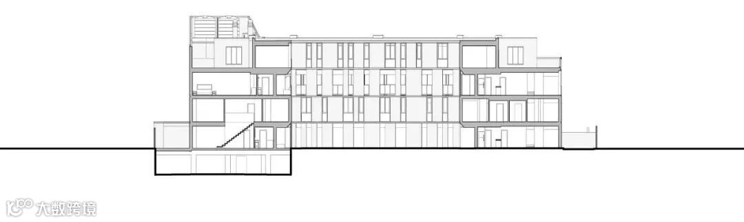
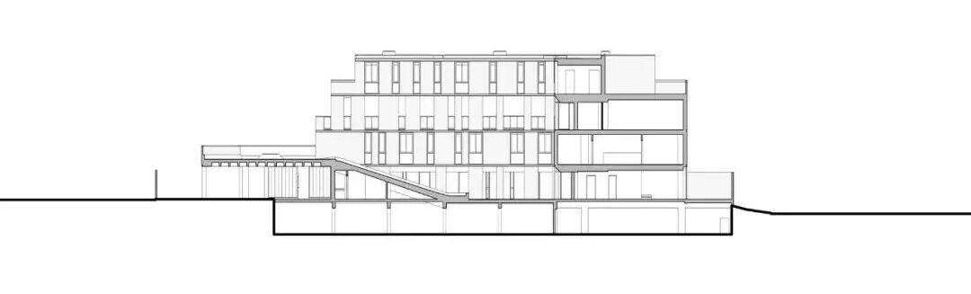
剖面图





轴侧图





场地图


模型图



建筑师:Ça 建筑事务所
地点:阿根廷
面积:7200 m²
年份:2021
2021年
新产品·新理念·新技术
《 品牌地产 | 精品楼盘活动 》
杭州、苏州、上海
成都、郑州......
广州、福州、重庆
西安、青岛......
扫描二维码 加好友咨询
领队微信:soujianzhu008
厦门·活动时间
5月16日 、5月17日两天
推荐一个
专业的地产+建筑平台
每天都有新内容
扫描二维码关注

微信公众号“搜建筑”(ID:sjz9999)
合作、宣传、投稿
请加小编微信:soujianzhu006


