▲ 更多精彩,点击“搜建筑” 关注即可

墨尔本南岸的新Adina公寓酒店是澳大利亚第一家交叉层压木(CLT)高层酒店。该项目采用了最新的木材建筑技术,在可持续设计方面达到了新的水平。约5,300吨CLT被用于在现有商业建筑的基础上增加10层,抵消了近4,200吨大气中的二氧化碳。
CLT进一步推动城市适应性再利用 这座建于1989年的商业办公大楼,通过使用混凝土框架结构,可以扩建6层。Bates Smart面临的设计挑战是如何超越这个极限,以提供一个拥有220间客房的酒店。
The new Adina Apartment Hotel Melbourne Southbank is the first cross-laminated timber (CLT) high-rise hotel in Australia. Utilising the latest in timber construction technology this project attains new levels in sustainable design. Approximately 5,300 tonnes of CLT were used to add 10 levels to an existing commercial building, offsetting nearly 4,200 of CO2 from the atmosphere. CLT Pushes Urban Adaptive Reuse Even Further The existing commercial office building built in 1989, was able to accommodate an extension of six levels with the use of concrete framed construction. The design challenge Bates Smart faced was how to surpass this, in order to deliver a hotel with 220 rooms.


该解决方案涉及使用交叉层压木材(CLT)结构,这意味着现有建筑能够支持额外的10层,从而实现了13,000平方米的新楼面的目标房间数量。CLT的重量约为混凝土的20%,基本上将现有结构上的层数增加了一倍。
使用CLT还可以在场外预制构件,从而提高了施工效率,减少了对周围建筑的影响。CLT提供了一个更可持续的方法来增加城市的密度。在有限的可开发用地供应下,轻质木结构可以提高产量,而使用传统的混凝土和钢结构是无法实现的。
The solution involved the use of Cross Laminated Timber (CLT) construction which means the existing building is able to support an additional 10 levels, thereby achieving the target room number spread across 13,000 square metres of new floorspace. CLT is approximately 20% the weight of concrete, essentially doubling the number of levels that could be built above the existing structure. Using CLT also allowed for components to be prefabricated off-site, resulting in increased construction efficiencies and decreased impact on surrounding buildings. CLT presents a more sustainable approach to increasing density within our cities. With a limited supply of developable sites, lightweight timber structures can increase yields, which would not be achievable using traditional concrete and steel construction.


一个引人注目的现代设计 新的CLT楼层的设计补充了现有建筑的弧形建筑,但没有像许多CLT建筑那样,明显地表现木材。
一个大型的内凹阳台有助于庆祝建筑的转角和建筑的新高度。它也给客人提供了一个地方,以在广阔的墨尔本天际线的意见。在内部,底层大堂以木材为衬托,营造出温馨的环境,同时也向建筑的创新结构致敬。
A Striking, Contemporary Design The design of the new CLT levels complements the curved architecture of the existing building without overtly expressing the timber, as is typical in many CLT buildings. A large recessed balcony helps celebrate the corner and the building’s new height. It also gives guests a place to take in expansive Melbourne skyline views. Inside, the ground floor lobby is lined with timber to create a warm and welcoming environment that also nods to the building’s innovative structure.


弧形的墙壁也区分了空间,并与新扩建部分的弧形立面和蜿蜒的线条相配合。客人楼层提供70套单间公寓、140套一居室公寓和10套两居室公寓,所有公寓都配有厨房、休息室和用餐区。客人还可以使用一个20米长的游泳池和健身房,这些设施都是朝北的,以充分利用自然光。
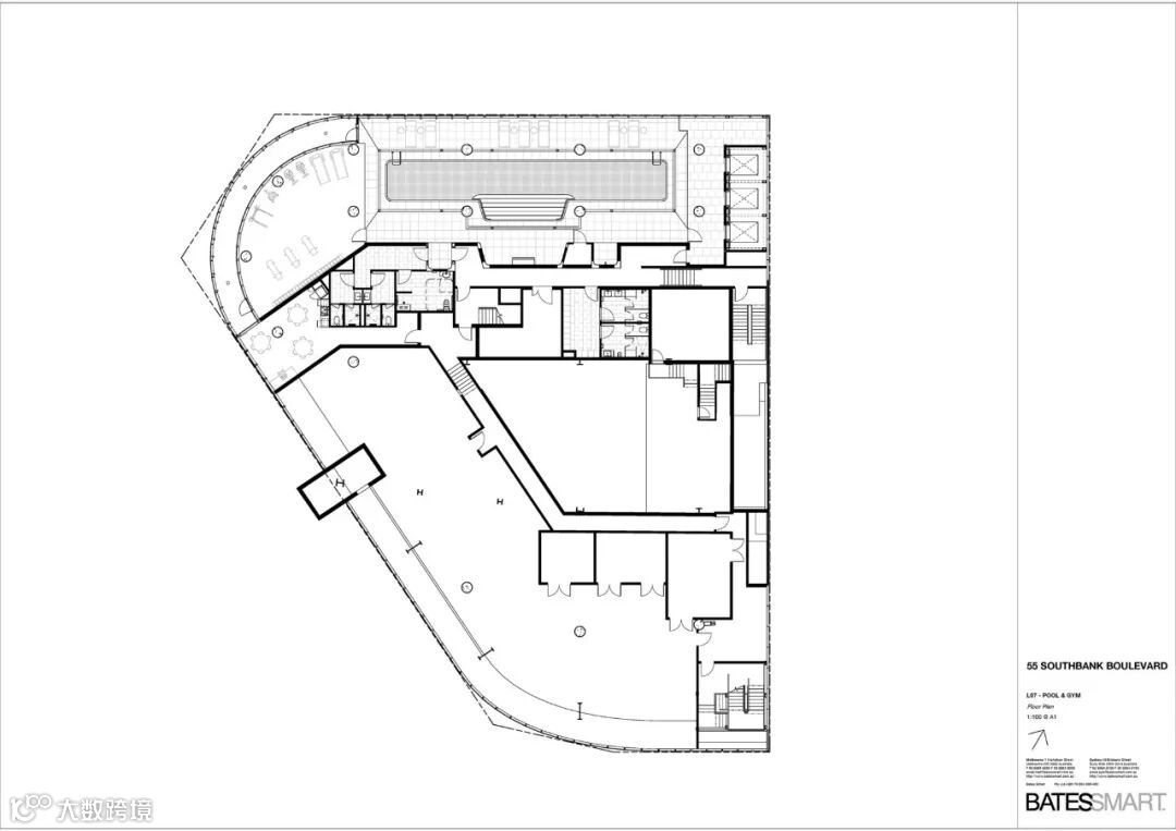
Curved walls also distinguish the space, and work in accordance with the curved façade and sinuous lines of the new extension. Guest floors offer 70 studio apartments, 140 one-bedroom apartments, and 10 two-bedroom apartments, all complete with kitchens and lounge and dining areas. Guests also have access to a 20m lap pool and gym, which have been oriented to the north to take full advantage of natural light.


除了比混凝土轻很多之外,CLT的使用还降低了运输成本,从而减少了碳排放。由于场外制造的数量,包括预制模块化酒店浴室,在现场花费的时间大大减少。最重要的是,木材内部的二氧化碳排放量约为4000吨,相当于130户家庭每年的碳排放量。
A new paradigm in sustainable construction In addition to being significantly lighter than concrete, CLT use results in lower transport costs and therefore reduced carbon emissions. Due to the quantum of offsite fabrication, including prefabricated modular hotel bathrooms, the time spent on site is significantly reduced. Most importantly, sequestered within the timber itself is approximately 4,000 tonnes of CO2 emissions, the equivalent of the annual carbon emissions of 130 homes.


这种负碳材料的主要使用代表了一个创造可持续建筑新模式的机会。酒店的木材来自于获得森林管理委员会认证的供应商,这是国际上仅有的两个公认的森林认证网络之一,这再次证明了Adina Southbank对实现高可持续性标准的承诺。

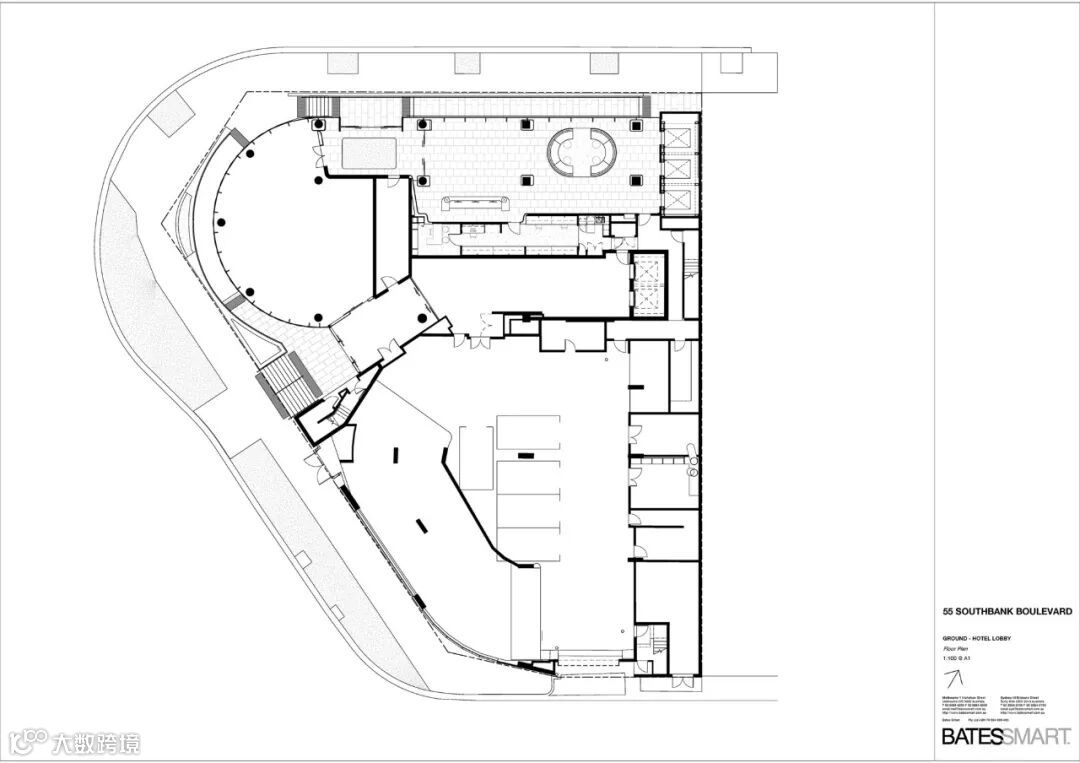
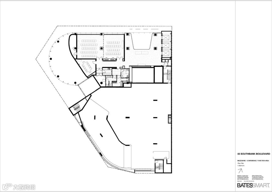
平面图



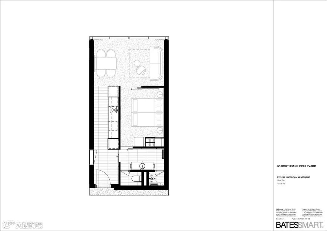
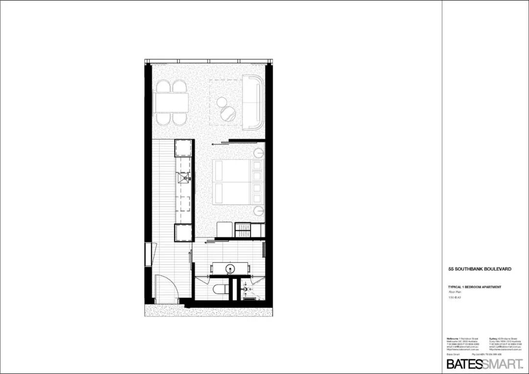
一室一厅平面图
立面图


剖面图
建筑师:Bates Smart
地点:澳大利亚 南岸
面积:27000 m²
年份:2020
2021年
新产品·新理念·新技术
《 品牌地产 | 精品楼盘活动 》
杭州、苏州、上海
成都、郑州......
广州、福州、重庆
西安、青岛......
扫描二维码 加好友咨询
领队微信:soujianzhu008
推荐一个
专业的地产+建筑平台
每天都有新内容
扫描二维码关注

微信公众号“搜建筑”(ID:sjz9999)
合作、宣传、投稿
请加小编微信:soujianzhu006


