▲ 更多精彩,点击“搜建筑” 关注即可

XVW建筑事务所在阿姆斯特丹北部的Buiksloterham完成了一个社区停车场,并在地面上设置了一个健康中心。Buiksloterham是一个快速发展的工作/生活区,横跨一个前工业滨水区。
新建筑以其光滑的几何外观和地标性的质量回应了这种前瞻性的精神,创造了一种到达Buiksloterham的感觉。该停车场是Nine Dots工作室为de Alliantie住房公司制定的总体规划的一部分。通过将停车场集中在附近,当地的街道从固定的车辆中解放出来,使食品市场和其他公民活动能够蔓延到公共领域。
XVW architectuur has completed a community car park incorporating a health centre at ground level in Buiksloterham in the north of Amsterdam. Buiksloterham is a fast-developing work/live area stretching across a former industrial waterfront. The new building responds to this forward-looking spirit with its sleek geometric exterior and landmark quality that create a sense of arrival to Buiksloterham. The car park is part of a masterplan drawn up by Studio Nine Dots for the de Alliantie housing corporation. By concentrating parking in the neighbourhood, local streets are freed from stationary vehicles allowing food markets, among other civic activities, to spill into the public realm.


这种不那么传统和更灵活的城市设计方法是由居民主导的,专注于自建住宅的机会,提供社会住房和工作/家庭单位。对于Buikslotrham来说,吸引集体开发商和小规模开发商是实现这一愿景的关键。
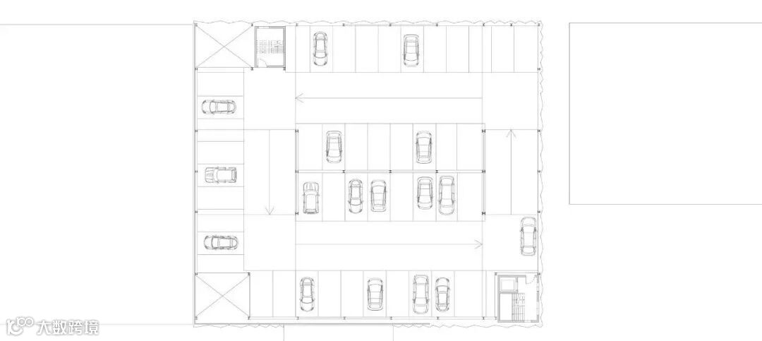
A1停车场是XVW建筑事务所在Buiksloterham设计的两个停车场中的第一个。当项目完成时,这些将形成建筑师所描述的“两个边界在东西两侧的发展的书挡”。他们将一起为当地社区提供所需的所有停车位。A1停车场有250个车位。
This less conventional and more flexible approach to urban design is led by residents and focuses on opportunities for self-build homes, a provision for social housing and work/home units. Attracting both collectives and small-scale developers is key to this inclusive vision for Buikslotrham. Parkeergarage A1 is the first of two car parks in Buiksloterham designed by XVW architectuur. When the project is complete, these will form what the architects describe as “two bookends that border the development on the east and west sides.” Together they will provide all the required parking for the local community. Parkeergarage A1 has 250 spaces.


就像养马的马厩一样,该建筑是司机在需要时可以乘车的地方,而不是把车停在家门口。A1停车场的设计必须回答这个交通基础设施建筑如何在社区中找到它应有的位置的问题。一个停车场如何与建在它旁边的房屋和公寓联系起来?
A1停车场的钢网斜交格栅立面的独特品质解决了这个问题,它让它看起来不那么像停车场本身,而更像是社区的入口。外墙的浮雕图案捕捉光线,并以打破建筑体量的方式使其生动起来,同时发挥其背景的工业历史和特殊的建筑类型,如不显眼的棚子,几乎没有迹象表明其中包含什么。
Like a stable with horses, the building is a place where drivers access their ride when required rather than parking outside their homes. The design of Parkeergarage A1 had to answer the question of how this transport infrastructure building could find its rightful place in the neighbourhood. How does a car park relate to the houses and apartments built next to it? The distinctive quality of the steel mesh diagrid elevations of Parkeergarage A1 addresses this question by making it read less like a car park per se and more like an entrance to the neighbourhood. The relief pattern of the façade catches the light and animates its form in ways that break down the volume of the building while playing on the industrial past of its context and its particular building typologies, like the non-descript sheds that give little indication of what is contained within them.


Xander Vermeulen Windsant说:“我们的设计用一种表皮覆盖了停车场,这种表皮并不否认停车功能,而是抽象了它。只有近距离看,你才能通过外墙面板的穿孔看到停车场地板。这允许建筑有一个超越停车场的角色,更像是通向邻里的门槛或大门。”
车面和定制的油漆——哑光但仍能反光——使停车场看起来像变色龙一样。它会对该区域的颜色和光产生反应,当你走过或开车经过时,它会改变颜色。
Xander Vermeulen Windsant says, “Our design has covered the car park with a skin that does not deny the parking function but abstracts it. Only up close do you see car-parking floors through the perforation of the façade panels. This allows the building to have a role beyond parking and be interpreted more like a threshold or gateway to its neighbourhood.” The faceting and the custom-made paint - matt but still reflecting the light - give the car park a chameleon-like appearance. It reacts to colour and light in the area and changes colour when you walk or drive past it.

在街道上,木材板条覆盖层引入了一个更温暖、更有触感和更人性化的界面。自然的木质饰面与上方冷峻的钢结构建筑形成了鲜明的对比。在地面上,建筑内有一个健康中心,是一个新现象的典范,即基础设施项目通过以更广泛的方式为社区提供社会价值。

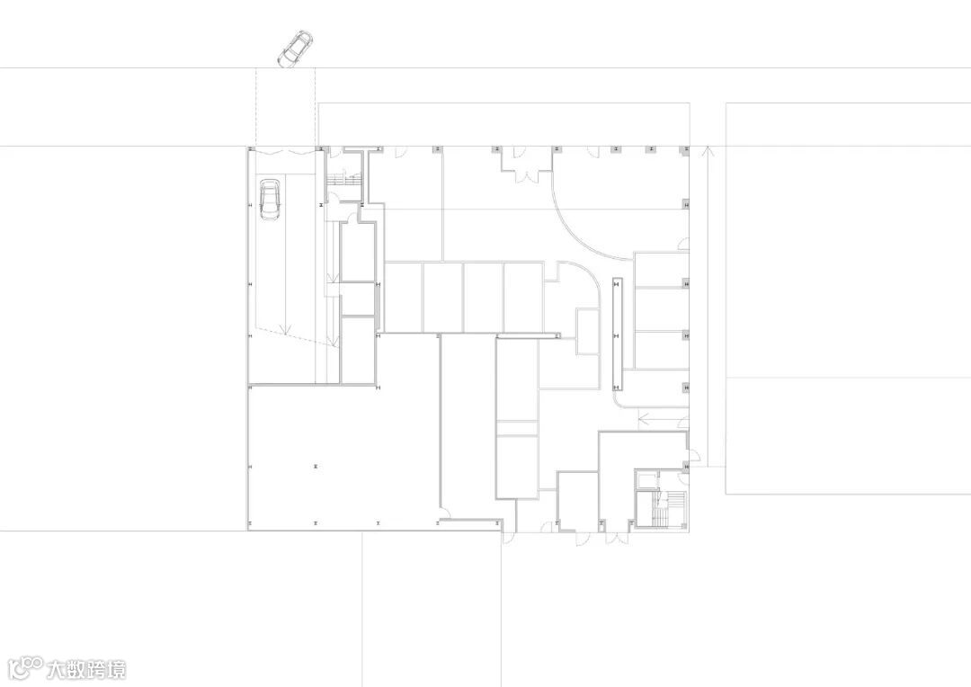
平面图

剖面图

建筑师:XVW建筑事务所
地点:荷兰
面积:8320 m²
年份:2021
1.本文为建筑设计技术分析,仅供欣赏学习。
2.本资料为要约邀请,不视为要约,所有政府、政策信息均来源于官方披露信息,具体以实物、政府主管部门批准文件及买卖双方签订的商品房买卖合同约定为准。如有变化恕不另行通知。
3.因编辑需要,文字和图片无必然联系,仅供读者参考;
2021年
新产品·新理念·新技术
《 品牌地产 | 精品楼盘活动 》
杭州、苏州、上海
成都、郑州......
广州、福州、重庆
西安、青岛......
扫描二维码 加好友咨询
领队微信:soujianzhu008
厦门·活动时间
5月16日 、5月17日两天
(18号免费参加国际石材展览会)
推荐一个
专业的地产+建筑平台
每天都有新内容
扫描二维码关注

微信公众号“搜建筑”(ID:sjz9999)
合作、宣传、投稿
请加小编微信:soujianzhu006


