▲ 更多精彩,点击“搜建筑” 关注即可

Principe Amedeo 5”是一个建筑再开发项目,将美国驻米兰领事馆的前总部改造成一个享有盛名的现代办公大楼。
Principe Amedeo 5” is an architectural redevelopment project that transforms the former headquarters of the American consulate in Milan into a prestigious and contemporary office building.


该项目以统一的方法处理了修复、扩建和室内设计。该项目尊重历史建筑,并将现有空间的质量与现代办公室所需的灵活性和多功能性结合起来,在建筑的5层分布500个工作站,总面积约9000平方米。其结果是一个充满历史的环境,同时创新和创造灵感。
The intervention dealt with the restoration, extension and interior design, with a unitary methodological approach. The project respects the historic building and combines the quality of existing spaces with the flexibility and versatility the contemporary office requires, distributing 500 workstations on the 5 floors of the building for a total of about 9,000 sqm.The result is an environment full of history and at the same time of innovation and creative inspiration.

原建筑可追溯到19世纪中期,其特点是优雅的立面在城市肌理中脱颖而出;典型的米兰历史建筑的内部庭院,以及分隔两翼的两个宏伟楼梯,是建筑表达设备的主要组成部分。修复项目通过巩固与城市环境的历史关系来增强它们。
The original building dates back to the mid-nineteenth century and it is characterized by an elegant facade that stands out in the urban fabric; the internal courtyard, typical of the historic Milanese architecture, and the two majestic staircases dividing the two wings, are the main components of the building's expressive equipment. The restoration project enhanced them by consolidating the historical relationship with the urban environment.

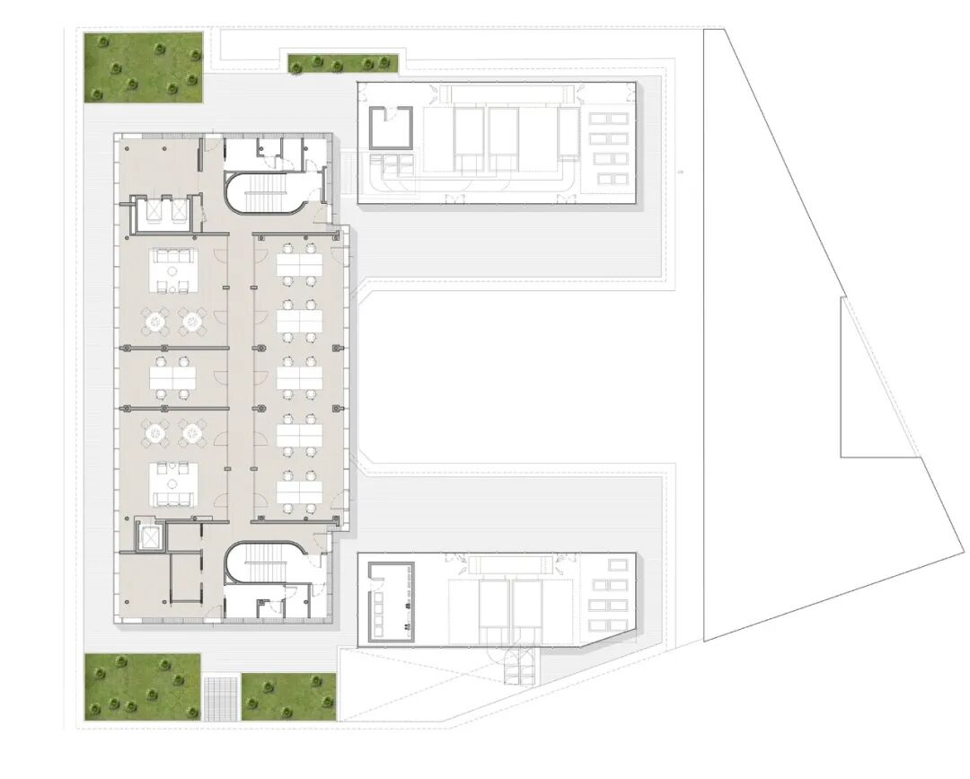
内部庭院完全从停车场中解放出来,变成了一个繁华的花园,这是米兰最好的传统。在庭院的后面,如同场景背景一样,一个新的双层高的玻璃体量被创建,用来容纳舒适、采光良好的工作和共享空间。
The internal courtyard has been completely freed from parking spaces and transformed into a flourishing garden, in the best Milanese tradition. In the back of the courtyard, as in a scenographic backdrop, a new double-height glass volume has been created to house comfortable and well-lit working and sharing spaces.

主楼的屋顶被拆除,并创建了一个600平方米的透明阁楼,周围是屋顶花园和工作空间可以俯瞰的大型露台,从那里你可以欣赏米兰天际线的迷人景色。
The roof of the main building was demolished and an elevation was created with a transparent attic floor of 600 sqm, surrounded by a roof garden and large terraces overlooked by the work spaces and from which you can enjoy an enchanting view of the Milanese skyline.

该项目反映了对环境可持续性的关注,目的是获得LEED金牌认证。回收或可循环利用的生态材料的使用,如叠片山毛榉木幕墙,伴随着选择性丝网印刷玻璃装饰参数主题,和超级绝缘技术能源消耗的控制有助于实现这一目标,以及空气热泵和太阳能光伏板的安装在屋顶上,保证供应的能源来自可再生能源。

在内部、中庭、楼梯以及一般公共区域,该项目用精致的垂直浅浮雕纹理制成的墙壁覆盖物重新诠释了历史建筑,并结合橡木门户、玄武岩地板和壮观的吊灯,增强了拱顶的石膏装饰。

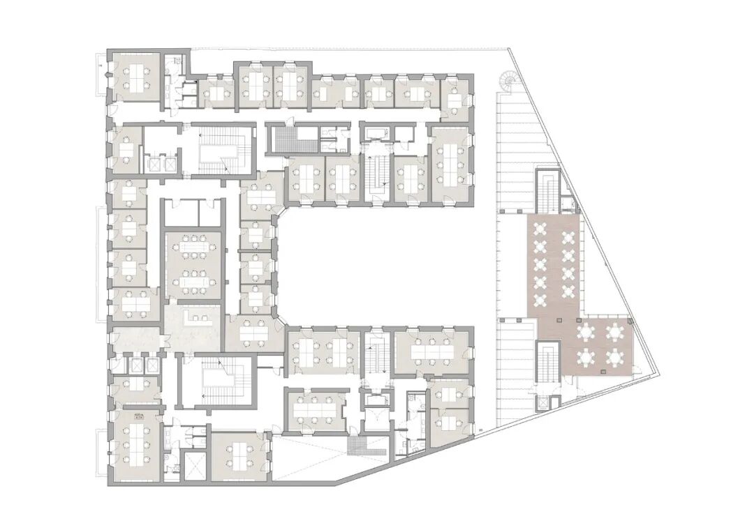
在办公室内部,建筑师将优雅的大型现有空间与现代工作站的需求相结合。
Inside the offices, the intervention combines the elegant and large existing spaces with the needs of contemporary workstations.


新窗户的设计和颜色、漫射和准时的照明、凸起的地板和浴室的精致覆盖物,定义了一种具有强烈鲜明特征的简单氛围,明亮、灵活和对细节的关注赋予了空间独特的个性。

该财产目前由Kryalos SGR的同义词典基金拥有,它在2020年12月从Covivio完成了收购。



平面图


地理位置图


细部构造图

节点图

摄影文件

剖面图
2021年
新产品·新理念·新技术
《 品牌地产 | 精品楼盘活动 》
杭州、苏州、上海
成都、郑州......
广州、福州、重庆
西安、青岛......
扫描二维码 加好友咨询
领队微信:soujianzhu008
推荐一个
专业的地产+建筑平台
每天都有新内容
扫描二维码关注

微信公众号“搜建筑”(ID:sjz9999)
合作、宣传、投稿
请加小编微信:soujianzhu006


