▲ 更多精彩,点击“搜建筑” 关注即可
学校,开始于一棵树下
一个不自觉为老师的人与一些不自觉为学生的人
讨论着他们对事物的领悟 路易斯.康


● 花园式综合学校 ●

设计灵感
学校是求知的地方,大“?”号给了我们设计的启发。我们把体育馆做成半弧“?”号形态,采用坡地递景建筑,从南往北慢慢升起,南部建筑屋顶与地面绿化连成一体,北部自然形成室外攀岩基地,形成森林校园中心。学生拾级而上,登高望远。


本着最高效率原则,根据师生作息活动规律有序的布局各个功能组团。放射性的景观支轴穿越道路、绿化带与五道河景观带形成支线景观廊道。
标志性藤环景观廊串联起南部校区主入口及东西次入口,形成突出的景观要素融入城市大背景的肌理。



● 畅快愉悦的连廊生活 ●

连续的连廊设计,为学生提供许多交流的共享空间;同时,方便学生不受日晒雨淋,便捷的到达各个功能区;富于变化的连廊空间,可以使步行变得更加有趣味。
校园中建筑外侧以及连接不同功能建筑的连廊空间,往往由于周边景观视野的变换,成为较受孩子们欢迎的行走和交流的场所。这样多样化的自由空间总能激起师生活动交流的欲望。




连廊与其依附上的建筑的关系是灵活的,这些附着于环上的建筑形态也是灵活的,其中聚集了大量差异性的空间,安排了多重功能,人工与自然在这里交汇,所有这些挤压在一起的差异,激发出巨大活力,刺激着交流和思维,成为一条在空间和时间上都无始无终的学习大街,构成开放式教育的核心场域。

● 课余生活的多样交流活动场所 ●
传统的教师已不能满足师生的教学生活需求,我们采用经济简单的方法,在有限的空间条件下,坚持为他们创造更优良的开放、自由、多元的空间场所,让他们获得更宁静、 健康、愉悦的校园生活体验。
● 森林校园 ●
我们想在校园营造一片宁静、平和的净土、绿洲,给孩子们充足的绿地、绿树和开阔的天空。在校“园”的这一大片树荫下,孩子们各种的活动都不是预设的,他们安全,不受干扰的在下面嬉戏,学习,活动,充分的朝自己的个性发展。



● 院落组团 + 内廊 + 变化丰富屋顶 ●
以一个院落为组团,组织教学功能。小学主入口临东面城市道路设置,结合绿化带形成入口前广场,穿过 5.1m 架空层,进入到中心组团空间;首层设置 1 座 500 人阶梯教室。中间局部架空,便于两个组团绿化空间相互渗透。
立面和造型设计强调丰富、理性、轻松;同时在细节处理上追求现代简洁与欧式华丽的装饰、精美的造型相结合;局部强调轴对称的秩序感学院派风格;壮观气派给人一种舒适感的整体化设计原则。





立面造型上精细刻画细节,营造典型欧式柱廊拱券,材料运用进口米黄石材,强调其雍容华贵及厚重感。



行政楼 + 入口大门沿南面主要城市道路一字排开,是整体校园对外的重要形象展示面。



● 可持续景观生态系统 ●


● 高情感的设计 ●




▲ 总平及经济技术指标

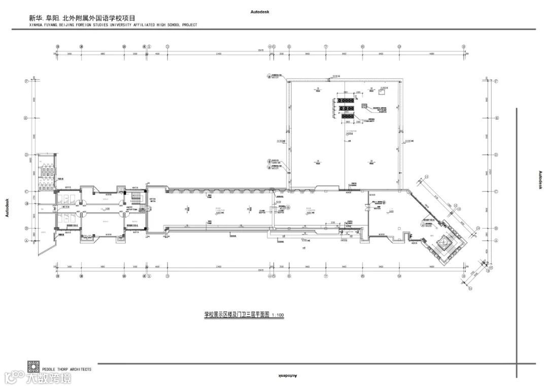
▲ 学校展示区楼及门卫三层平面图

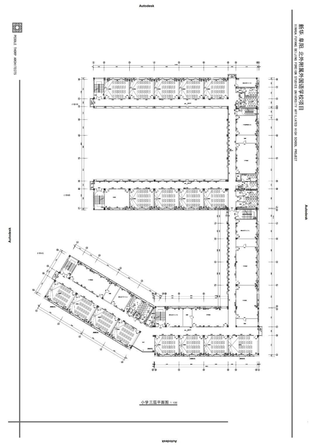
▲ 小学三层平面图

▲ 小学ABC栋 轴立面

▲ 小学ABC栋 轴立面

▲ 展示楼及门卫展开立面图
从城市的角度看,要有一种创造有价值的公共空间和驻足之地的社会责任,这是我们城市的文化遗产――林荫大道、城市广场、公园和公共空间,这是我们对后代的关心和投资的证据。
诺曼.福斯特
项目档案
位置:安徽省阜阳市
业主:新华地产投资有限公司
建筑设计:柏涛建筑设计(深圳)有限公司
景观设计:深圳柏涛环境艺术设计有限公司
设计主创:侯其明
设计团队:喻丽萍 丁一川 黄明 黄晓峰 于春艳 黄丰华
设计部门:设计一部
实景照片:张学涛、汪洋(感谢业主提供部分实景图片)
用地面积:16.48 万 m²
建筑面积:12 万 m²
容积率:0.73
2021年·新产品方向
《 品牌地产 | 精品楼盘活动 》

微信公众号“搜建筑”(ID:sjz9999)
合作、宣传、投稿
请加小编微信:soujianzhu006


