什么才是好房子,房子并不是大或者贵,就是好房子。好房子的评判标准,不应被禁锢在单纯的功能和配套的叠加里,而是要有一定的创造力和想象力,满足更高级的需求。不止要让生活更便利,更重要的是,让生活更丰富。
在产品同质化愈发明显的当下,在户型设计上若有明显的创新之处,往往会成为一个楼盘的卖点。
下面一起来看看各大地产是如何做的
创新三代居
颠覆传统的居家模式和亲情模式
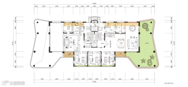
金茂专利252㎡三代居户型,六房四厅三卫,一证双户的独立空间,将老人与年轻人的起居分开,互不打扰;又用别墅级的空中庭院将彼此连接融合,让亲情就在身边。
一证双户,双入户、双厨房、双客厅、双阳台,实现了三代居的梦想。

252㎡三代居是金茂的专利户型,为大户型提供了新的设计思路:一本房产证,两套房子。
把户型面积切割为168㎡+68㎡两个空间:
往左走是为长辈精心打造的68㎡的小套间
往右边走是年轻人的168㎡大套间
看似相互独立的两个房子,通过精心改良,依靠玄关与超大阳台紧密联系在一起。
• 双开门两居独立入户玄关系统

来源:广州房产
走进来看一看:
长辈的68㎡小套间,2房2厅1卫,两房均朝南,配有独立厨房,卫生间被扩大,满足了老年人的生活习惯。

老人空间 客厅 实景

老人空间 次卧/多功能房 实景
年轻人的168㎡大套间,4房3厅2卫设计,7米宽的大客厅开间,主卧套南北通透,四开间朝南,符合我们对寻常大平层户型的期待。

年轻人空间客厅 实景
• 亲情纽带——17㎡空中庭院

来源:广州房产
其实,这个三代居户型的精髓之处,也正是作为亲情纽带的17㎡空中庭院。
约7米超大阳台,打造空中花园,养花、养宠物,做书吧放茶桌,享受生活乐趣。
• 双客厅

双客厅实景
双客厅的设计绝非单一传统的双客厅设置,而是加入了更多的思考:
• 南向双阳台

南向双阳台,都与卧室相连,接纳更多阳光,让家人尽享舒适居住体验。
• 双餐厅 中西双厨房设计

双厨房、双餐厅,完全满足年轻人和长辈的各自生活习惯,都互不干扰。
此外,项目还延续了金茂的8大绿金科技,同层排水系统、中置百叶外窗系统、绿色建筑系统、智能家居系统、智慧社区服务系统等等……
可以说,这个户型,将一家人的“分”与“合”处理得恰到好处。
颠覆传统空中庭院
庭院不仅越做越高,而且越来越私密
把院子搬到空中来,将传统大平层和别墅完美结合,诞生的[空中院子],这个想法本身就已是超前的想法,但设计师远不止于此,将“空中庭院”做得一次一次的升级,更堪称是具有划时代意义的作品。
1、9m挑高“空中庭院”
贵阳·花语墅,户型采用“凸”字形设计,将露台外伸,逐级旋转90度,错位向上布局,每三层一个模块,每三层一次循环,这样就形成了每户可拥有约9m挑高(三层高)的露台空间,能满足大型乔木和灌木生长。

该项目为了实现空中庭院与客厅的对位互通,所有户型的客厅随露台进行空间换位,进而实现每个户型的客厅与露台真正融为一体。
贵阳·花语墅约136㎡户型平面图
超大的景观露台全赠送,9m挑高,能满足大型乔木种植,每家每户都有赠送的40-50㎡空中花园面积……
示意图
贵安·花语墅实景图
2、阔达176㎡私属空中庭院 挑高7.18米
岳阳南湖天著二期平墅,空中庭院乃一个长达20米、宽达13米、高达7.18米的立体空间,面积阔达176m²(数据源自536m²瞰宇平墅)!
效果图
效果图
设计通过采用镜像设计,每户都拥有一个独立、私属的空中庭院。
镜像咬合示意
奇数层与偶数层的院子分列东西两侧,形成对称美感。
在这里,挑空不像通常那样只放在客厅,而是从客厅、餐厅至空中庭院全部挑空,约7.18米的超高层高,形成了宴客区的整体联动,其他区域的层高约3.59米。
挑空约7.18m两层通高的"空中院子",种树都没问题!!!
它超越了传统以面积与平方营造的单纯 “二维”空间,而是拥有多维度居住感官体验的“立方空间”,将生活格局放大至极限。
客厅+空中花园
面积高达176㎡、7.18m两层通高、完全独立私密。
这样的立体庭院,是真正的专属“秘密花园”,这样的环境,你才能肆无忌惮在院子做瑜伽、带孩子、养花弄草、种菜、休闲空间通通能实现,不被打扰,不被瞥见。

效果图
通过差异化创新 升级生活方式
城市人居不断升级的当代,人们的生活方式也随之改变,但是对于居住品质的追求从未停止,关注消费者的需求是产品创新的核心,打破同质化,通过差异化,升级生活方式。
1、仪式感升级
广州首开龙湖天奕,独创华南首个玻璃对景玄关,将入门正对着的墙壁换成整面玻璃,将白云山风光引入室内,每天回家迎接你的就是心旷神怡的“一片绿”。

广州首开龙湖天奕245㎡户型图
入户对景,独特的中景院落设计,打造出“开门见山”的对景效果,住平层犹如住院墅之感。

广州首开龙湖天奕实景
空中庭院还是一个百变空间。业主可以根据自己的需求,将其改造成卧室、书房、茶室、画室、健身房……轻松实现四房到五房的随意改造。

广州首开龙湖天奕实景
2、动线升级
家政动线,让新鲜的蔬菜直达厨房,回游动线设计与厨房的结合,提供的是另一种生活情趣。
家人动线,直达居室的各个房间。老人房布置在最外侧,主人房布置在最里侧,儿童房紧挨主人房而设,既尊重各个成员的生活习惯,也避免代际之间因生活习惯的不同带来互相干扰。

财信河西府建筑面积约125㎡三居户型
访客动线,直达客厅,最大程度上缩短访客动线,保护卧室的私密性。
3、场景升级
如独立玄关收纳空间,让入户的场景有了一种新的体验。

泰禾·东府大院样板间实景图
融创西南打造的“中国家庭健康欢乐家”,将边厅进行科学的功能分区,将读书、用餐、运动、音乐等嗜好空间与客厅彼此相连,又互不打扰。每个温馨的闲暇,家人们可在此各自娱乐,又相互关照。

功能空间效果图,图源:融创西南
万科联合五感纳德推出了全新的主卧小家:
将常见主卧横向加宽,横向增加多功能区,不仅光照更充足,而且还成就了一个百变空间,实现主卧小家化。
此外,还将传统儿童房横向加宽,创造出了百变儿童横房。
来源:五感纳得
户型面积控制更极端
户型创新还有一个创新之处是面积控制得更极端了,在满足市场需求的同时,做足了最大和最小。
如,福州世茂融侨正荣湖滨府,精致的79㎡户型不仅做到三房两厅,还是双卫。
面宽约9米,进深约8.2米,南向三开间,大面宽匹配约5㎡观景阳台。

这个户型最大的优势就是消灭过道。传统三开间的小三房布局,无法避免悠长的过道,通过空间布局的重组,湖滨府把过道面积变成了更具使用价值的卫生间。
方形的布局,有效缩短了进深与面宽尺寸差,无过道设计,自带的空间利用率极高。
主卧朝南面宽约3米,面积约14.4㎡。
装修建议效果参考图
郑州瀚海晴宇,760㎡大平层,豪出了天际,一层一户超尺度规划,户户设私家空中泳池,赠百余平超大空中花园,内部结构实现非承重空间的最大化,从而使主人根据自己的需求,定制会所、社交、居住等各项功能所需。
760㎡户型一 六室五厅七卫
760㎡户型二 六室五厅七卫
结语:
所谓创新,其实是带着镣铐跳舞的过程。缺乏合理的市场数据支撑,创新就会陷入闭门造车的尴尬境地。因地制宜、实事求是,也是创新户型的根基。
创新的力量,是无穷的。相信,未来,市场上的好房子将会越来越多。
今天的户型就先到这里了,对户型有什么看法或者有更多好的新的户型,欢迎留言给我们哦!
1.本文为建筑设计技术分析,仅供欣赏学习。
2.本资料为要约邀请,不视为要约,所有政府、政策信息均来源于官方披露信息,具体以实物、政府主管部门批准文件及买卖双方签订的商品房买卖合同约定为准。如有变化恕不另行通知。
3.因编辑需要,文字和图片无必然联系,仅供读者参考;
2021年·新产品方向
《 品牌地产 | 精品楼盘活动 》
杭州、苏州、上海
成都、郑州......
广州、福州、重庆
西安、青岛......
扫描二维码 加好友咨询
领队微信:soujianzhu666

微信公众号“搜建筑”(ID:sjz9999)
合作、宣传、投稿
请加小编微信:soujianzhu006











