▲ 更多精彩,点击“经典人居” 关注即可
好的产品,户型是其中极为关键的一大因素。
真正的大平层,一定是有足够大的空间,将生活的场景带入到建筑大尺度以及多维空间中融合,演绎着空间尺度下的生活之美,严谨而优雅。
经过几年探索,现在标杆房企“豪宅”大平层(150-200平米以上面积段)有哪些研究成果?
• 空间尺度进一步提高;
• 大面宽、短进深户型更通透;
• 各个功能空间尺度合理,居住体验有所提升;
• 兼顾隐私需求,例如独立电梯入户和私密主卧的设计;
......
01
放大室内观景面
户型整体舒适性很重要
身处一个户型中,如何才能感觉空间有扩张感、放大感?
① 大面宽、短进深
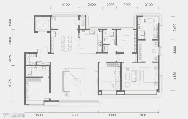
比如温州绿城凤起玉鸣建面约249㎡大平层,4室2厅4卫,三套房设计,南向面宽达到惊人的约18.2米。

建面约249㎡户型装修∣意向图
建面约249㎡样板房∣意向图
下面这个户型的整体东西面宽,达到了令人吃惊的约16.5米的尺度,而南北进深尺度只有短短的约8米左右。

天津龙湖天曜约230㎡户型示意图
永威约221㎡“大面宽”的户型,代表着更多的采光、更好的通风、更佳的居住体验,也正因为此,成为衡量品质住宅的重要标准。
郑州永威上和琚221.63㎡户型示意图
② 观景面更大化
比如天津中海天空之境,建面约208㎡的四室户型,是近年刚兴起的边厅户型,整体南向面宽约15.5米,进深约14.5米。
270°景观视野 图源:天津天华

天津中海天空之境约208㎡户型示意图
景观资源最优,为更大化利用景观,将各朝向窗墙比做到了极限值,实现270°观景,客厅“L”型转角约8m的超大落地窗,搭配转角处户型比例,部分剪力墙用圆柱代替,减少视线遮挡,实现90°视野。

融合体验感的生活空间 图源:天津天华
L型端厅设计效果图 图源:天津天华
再来看融创这个户型,百平米餐客连厅,无梁一体化设计,采光、风景、空气,借由空间的通畅,自由行走。

融创香山壹号院约262㎡户型示意图

香山壹號院样板间实拍
约7.6米奢阔客厅面宽,为生活带来无限可能。这里既可以从容承载欢快的生日派对、亲友聚餐,也可以是小家庭安享私密的温馨领地,办公、影音、瑜伽、读书、品茶……更宽敞的空间,安放理想生活的每一页诗章。
香山壹號院样板间实拍
重庆香港置地·云山岳南向大开间,视野阔朗,可迎接更长的光照时间。最大约9.2米宽景阳台,连接大尺度横厅,给予人与景更多互动,窗外即是风景

重庆香港置地·云山岳约170㎡户型示意图


重庆香港置地·云山岳样板间实景图
值得一提的是,转角处168度角的创新设计,打破了常规建筑边缘锐利的传统,赋予建筑更多浪漫的同时,也为住户呈现更加宽阔的景观视野。


图源:香港置地重庆
院落大平层的面世,让传统院落式的生活回归,满足都市人对于乌托邦式的田园诗意居住需求的追求,使他们不用在大平层和别墅的选择中徘徊。
比如中国铁建贵阳·花语墅户户赠送露台,享有360°的环绕全景观。

中国铁建贵阳·花语墅约210㎡户型示意图
最大景观露台面宽达到12.6m,进深4.1m,赠送面积达到“可怕”的51.6㎡。最小的也有6.4m*4.1m,赠送面积达到26㎡。
02
场景升级
空间功能更加复合
如今的户型,在追求功能分区合理性的同时,更强调的是空间的灵活性、房间的私密性及居住的舒适性。
各大房企对空间进行了升级和迭代,通过对人们日常生活的深度洞察,从情感的维度出发,创造了全新的生活方式。
① LDK一体化设计,增加多功能空间
下面这个户型,突破性地设计了LDK一体化客餐厅体系。打破了传统的客厅规划布局,看似是将客餐厨三个空间贯通了,事实上却是更“人性化”的设计,形成多条洄游动线。

招商蛇口某项目约150㎡户型示意图
再来看南京旭辉·宸悦赋约180㎡户型,全新引入的CIFI6使得整个户型设计非常合理。四开间朝南,南北通透,层高2.95米(楼板中心点距离),6.4米宽横厅(净尺寸,下同)。超大南阳台,U型厨房外有北阳台。

CIFI-6打造“自由方厅”的概念,通过尽可能减少过道所占用的面积,把阳台、玄关等尽可能并入客厅面积,并将客餐厅空间延伸至一处多功能空间。

旭辉·宸悦赋示范单位实景图非交标

旭辉·宸悦赋示范单位效果图非交标
重庆香港置地衿湖翠林的户型,设计了客厅-阳台,书房-客餐厅的双洄游动线,让一家人在客厅的连接更大化。每一个家庭成员在这个公共的空间中相互交流,融合在一起。

重庆香港置地衿湖翠林约190㎡户型示意图

重庆香港置地衿湖翠林约232㎡户型示意图
在厨房与客厅中间设计岛台,会让生活更加高效,一个集和餐饮、欢乐、孩子作业、酒吧的导台方案便于此落地,开启生活的无限想象。


重庆香港置地衿湖翠林样板间实景图
没有辽阔的公区空间,不称豪宅!
世茂北京天誉约215㎡户型走过入户玄关,便是长方形的开敞公区,能使家庭社交有足够的场景和空间。
采用了独特和创新的方式:将玄关、客厅和餐厅连接起来,更关键的是,还把客厅和露台连接起来,从而形成了一个近100平方米的LDKB空间。
世茂把它叫做“LDKB无限空间体系”,这种设计是有主导思路了的,这个思路就是家庭关系的互动和社交,给予了家庭社交足够的场景和空间,厅的这边到那边一眼望不到边。

约215㎡户型示意图
公区面积占比约40%,加上赠送的近20㎡的露台,接近55%,这才是一个豪宅产品应该有的社交区域面积比重,这个户型的空间感一下倍增,更重要的是使用功能和生活场景也更为丰富。

边厅示意图

边厅实景图
上海中粮瑞虹·海景壹号250平米户型:

建面约250㎡四房户型示意图
建面约250平方米中,将北面正对着和平公园的那一侧,设计成了一个横向铺开的客厅+餐厅,面积近45㎡,在这个约9米宽的边厅外,是一个宽约6.8米的阳台。地面墙体为仅高约50公分的大面积玻璃和落地移门设计,拥有270°无敌景观,
中粮瑞虹·海景壹号样板示意图
中国铁建贵阳铁建城项目,不仅公区一体化设计,还采用了双阳台设计,舒适度不言而喻。

中国铁建贵阳铁建城约240㎡户型示意图

中国铁建贵阳铁建城样板间实景图

重庆阳光城·天澜道11号约235㎡户型示意图

重庆阳光城·天澜道11号样板间实景图
② 多套房设计,卧室空间功能更强大
越来越多的户型引入“主卧小家化”的概念,打造1+1双主卧套房系统,突破传统主卧中“双人床+大衣柜”的单一设计,集起居、衣帽、自由、主卫四大功能于一体,让主卧成为了真正意义上的主人私属领地,全面覆盖男女主人的多样化居住需求。

天津龙湖天曜约230㎡户型卧室示意图
再看下面这个老人房,也做到了独立起居。


南通万科方圆约230平米户型布置参考图
从样板房实景图来看,主卧飘窗位置还可以改为阳台。平常夫妻两人关上门可以独享闲暇时光,晚上一个人在阳台上喝茶、静思也很惬意。
再比如首开龙湖天奕,设计一个13平的超级衣帽间,收纳空间超过12000升!相比大部分几平米的衣帽间,可以说很打动女主人了。

成都中铁建西派国樾约230㎡户型,主卧面积超过30㎡,配有双衣帽间,主卫双台盆设计,书房外的门关上,可以将书房完全放进主卧,形成超级套房。增强卧室功能性的同时提升居住空间整体舒适度和私密性。

成都中铁建西派国樾约230㎡户型
03
全生命周期户型
重视户型成长性
三胎时代来临,而人们的换房成本越来越高,周期越来越长,购房政策风险也变幻莫测……
① 可变空间
比如天津中海天空之境约169㎡户型-三房/四房两卫,可三可四。提供全生命周期的空间布局,中西厨、明餐厅的设置,在北侧小书房取消后,超大尺度的餐客空间,在家中带来震撼的空间体验。
约169户型平面 图源:天津天华
超大尺度通厅,带来无限可能 图源:天津天华
下面招生蛇口某项目客厅一旁的多功能空间,可以做一间卧室。


示意图
② 双子房设计
成都武侯金茂府在约154㎡平层和约163㎡跃层的户型设计上兼顾老人和儿童的特殊情况,在保留老人房的基础上,创新规划双子房,为每一个孩子创造独立学习生活空间。
两个房间随着生命周期的变化可分可合,让二孩家庭中的孩子在一个空间内由更合理的居住,既可以拆分独立,也可共同成长。
双子房:一孩+二孩示意
可谓是真正的全生命周期户型,也可以说是“会长大的房子”,在不同的生命生活阶段,可以灵活多变,具备更好的适用性和成长性。
全能百变的双子房,无论是二人世界、三口之家、二胎家庭还是三代同堂,都可以根据自己的生活需求,通过改变空间格局,来契合家庭成长每个阶段的不同需求,演绎生活多种可能性与场景多元化转变。
结语:
所有看下来,户型需要更加务实、更加用心的专注于居住产品本身,提高产品质量,优化居住环境,为人们提供优质的居住产品,从自身的产品实力出发才能满足大家居住新需求,才能赢得市场。
2021年·新产品方向
《 品牌地产 | 精品楼盘活动 》
本资料声明:
1.本文为建筑设计技术分析,仅供欣赏学习。
2.本资料为要约邀请,不视为要约,所有政府、政策信息均来源于官方披露信息,具体以实物、政府主管部门批准文件及买卖双方签订的商品房买卖合同约定为准。如有变化恕不另行通知。
3.因编辑需要,文字和图片无必然联系,仅供读者参考;

微信公众号“搜建筑”(ID:sjz9999)
合作、宣传、投稿
请加小编微信:soujianzhu006



