▲ 更多精彩,点击“搜建筑” 关注即可

背景
该项目位于明洞地铁站附近,面向两条通往大型购物街区的街道。这个地区最初是几十年前的一个制造商和商人的聚集地,然后迅速发展成为一个高密度的城市街区,这里有各种各样的零售店、餐馆和商店,随时吸引着游客和购物者。
Background. Located near the subway station of Myung-dong, the site faces two streets crossing that lead to large shopping blocks. This area was originated decades ago as a gathering space for makers and merchants and then has rapidly grown to a high-dense urban block loaded with a wide range of retails, restaurants, and stores that attract tourists and shoppers at all times.


现存建筑于1992年完工,为新韩银行明洞站分行服务了近30年,直到决定进行改造和扩建,以提供能够容纳新的银行系统及其设施的空间。窗帘——长久以来,悬挂织物、窗帘或窗帘的姿态一直具有特殊的意义。
它通过包裹或覆盖的行为来突出一个人的地位或尊重一个空间,它也提高了观察者对被窗帘覆盖的区域或物体的期望。在这个项目中,由围护结构所代表的窗帘是一种象征性的装置,也是一种将建筑与周围环境区分开来的工具。
Completed in 1992, the existing building had served the Shinhan Bank Myeongdong Station branch for almost thirty years until it was decided to undergo a regeneration and extension process in order to provide spaces that can well accommodate new banking systems and their facilities. Drapes. The gesture of hanging fabric, curtains, or drapes has long held special significance. It highlights one’s status or honours a space through the act of enveloping or shrouding, and it also raises the expectations of an observer concerning the area or object covered by a curtain. In this project, the curtain, represented by the envelope is a figurative device as well as a tool through which to distinguish the building from its surrounding atmosphere.

通过捕捉不断变化的光线和空间变化的方式,柔和的玻璃曲线赋予了建筑自身独特的特性。在用窗帘覆盖建筑时,面向10米宽的道路提高了3层,面向6米宽的道路提高了1层,在切开口处提高了2层。窗帘的不同层次根据附近建筑的大小形成了隐藏或裸露的内部形式。
By capturing the ever-changing nature of light and ways in which the space shifts accordingly, the gentle curves of the glass grant the building to its own particular character. When covering the building with this curtain, its height was raised by three stories towards the 10m-wide road, by one story when facing the 6m-wide road, and by two stories at the sliced corner. The various levels of this curtain, hiding or exposing the interior, were determined based on the size of the nearby buildings.


与弗朗西斯科-博罗米尼设计的罗马圣卡洛教堂(La Chiesa di San Carlo alle Quattro Fontane)通过其雕塑和喷泉在城市环境中提供有意义的休息一样,人们都知道明洞十字路口的建筑土地价格高,但其承诺为公民提供休息的地方。
该建筑位于明洞8街和明洞10街的交界处,于2018年被指定进行扩建和改造。当时,客户希望通过创建一个在商业区中心体现企业形象的建筑来增加人流,提供金融信息和各种服务。
In much the same way La Chiesa di San Carlo alle Quattro Fontane in Rome, designed by Francesco Borromini provides meaningful respite in an urban context through its sculptures and fountains, buildings on the Myeongdong intersection, known for its high land prices, wield new promise in their provision of places of rest for citizens. Located at the junction between Myeongdong 8ga-gil and Myeongdong 10-gil, this building was appointed for expansion and renovation in 2018. At that time, the client wanted to increase the influx of people and provide financial information and various services by creating a building that would manifest a corporate identity at the centre of the commercial district.


建筑位于街道的角落,建筑的主入口被凹形玻璃墙和镜面天花板包围,其中还有景观和长凳,在城市中形成了一个客厅,人们可以在这里可以随时停下来休息。
另一个入口被插入到两个玻璃盒子中,由于角落的连续竖框、上游的弯曲立面以及形状分割和处理的方式,这个体量呈现出独立的体量形状。一个静止的波浪。在设计波纹立面时,我们注意到窗帘和棉布摇摆的方式,以及织物的柔软和温暖的纹理。
Located at the corner of the street, the main entrance to the building is surrounded by concave glass walls and mirror-finished ceilings, which also feature landscaping and benches, staging a living room in the city in which people pause and take a rest at any time. Another entrance has been inserted into the two glass boxes, and this mass takes the shape of an independent volume due to the continuous mullions at the corners, the curved elevations on the upper reaches, and the way in which the shapes are segmented and treated. A Static Wave. When designing corrugated elevations, we paid attention to the ways in which curtains and cotton fabric sway, and to the soft and warm texture of the fabric.


与其采用动感的立面,将其形状作为高程波动的一部分来改变,不如通过捕捉运动瞬间的织物之美来揭示一种 "可控的复杂性"。
这种受控的复杂性通过反复安装由几个曲线类型组成的模块,创造了一栋错综复杂的建筑,但这也促使观察者将主体作为一个隐喻和符号而不是作为一个特定的形式记住。这个外墙,被认为是一个在街道上不断变化的形状,它被涂上了直径逐渐变化的陶瓷点熔块。
Rather than adopting a kinetic façade, which changes its shape as a part of the fluctuation in elevation, this revealed a ‘controlled complexity’ by capturing the beauty of the fabric at the moment of movement. This controlled complexity creates a building of intricate images by repeatedly installing modules composed of several curved types, but this also prompts the observer to remember the subject as a metaphor and a symbol rather than as a specific form. This façade, which is perceived as a shape that constantly changes while walking along the street, is coated with ceramic dot frits that gradually change in diameter.

点熔块遮蔽了建筑的内外,也添加了像柔软的棉布一样的纹理,在坚硬、冰冷的玻璃表面上投射光影。玻璃模块。
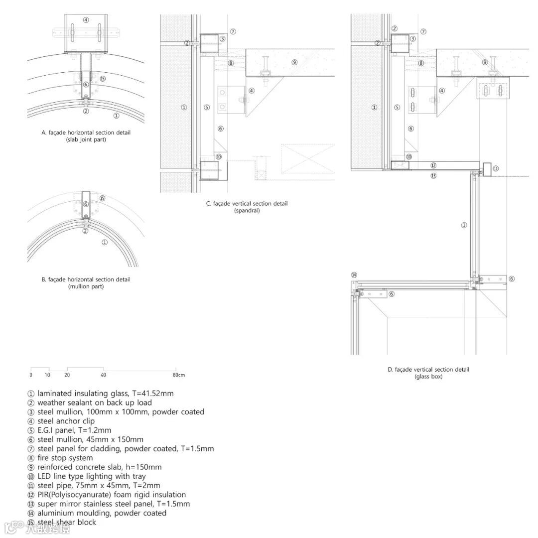
该建筑的外墙由41.52mm厚的保温结构组成,具有多层结构,如双层玻璃和氩气,阻挡辐射热的Low-E涂层,以及用于遮阳的点熔块。在进行了包括反射值和投影值在内的模拟测试后,制作了一个由14种类型的320个弯曲玻璃模块组成的不同层的玻璃幕。
Dot frits shield the interior and exterior of the building and also add a texture like a soft cotton cloth casting light and shadow on a solid, cold glass surface. The Glass Module. The façade of the building, composed of a 41.52mm-thick insulating structure, possesses multiple layers, such as double glazing and argon gas, Low-E coating to block radiant heat, and dot frits for shading. After undergoing mock-up tests including reflection values and projection, a glass curtain of various layers was manufactured and constructed of 320 curved-glass modules of 14 types.


支持二维弧形玻璃幕墙框架模块是由高强度钢制成的,以减少每个成员的横断面尺寸尽可能和钢竖框45毫米宽,1长150毫米的钢制木板是通过弯曲制造的。
变化——如果你从下面看玻璃模块,你可以发现在立面图中还没有看到的横截面。
The curtain wall frame that supports the two-dimensional curved glass modules is made of high-strength steel so as to reduce the cross-sectional dimensions of each member as much as possible, and the steel mullions that are 45mm-wide and of 150mm-length are manufactured by bending due to the nature of materials that are difficult to extrude. Variations. If you look up at the glass module from beneath, you can find a cross-section that has not yet been seen in elevations.


模块底部的超级镜面不锈钢揭示了具有反射特性的表面,并在建筑外部设计了变化。当相同曲率的模块垂直交错时,这种材料在深度15cm内创建不同宽度的模块的浅阴影。
支撑标高的横梁的长度也相应地改变为50mm或100mm。超级镜面不锈钢暴露在建筑角落的更大区域。它被安装在主入口的顶棚下,其波长可达76厘米宽,这种反射材料为公共贡献创造了一个优雅的空间天花板。
The super mirrored stainless steel that is the finish on the bottom of the module reveals surfaces with reflective properties and devises variation across the building’s exterior. When modules of the same curvature are vertically interlocked, this material creates shallow shadows of different widths of modules within a depth of 15cm. The length of the transom that supports the elevation also changes accordingly to 50mm or 100mm. The super mirrored stainless steel is exposed in larger areas at the corner of the building. It is attached under the canopy of the main entrance, which shows a wavelength of up to 76cm-wide, and this reflective material creates an elegant ceiling of the space for a public contribution.
区位图

平面图





细部构造

玻璃模组拉伸指标

建筑师:Atelier KI JUN KIM, Studio in Loco
地点:韩国
面积:117 m²
年份:2021年

微信公众号“搜建筑”(ID:sjz9999)
合作、宣传、投稿
请加小编微信:soujianzhu006