▲ 更多精彩,点击“搜建筑” 关注即可

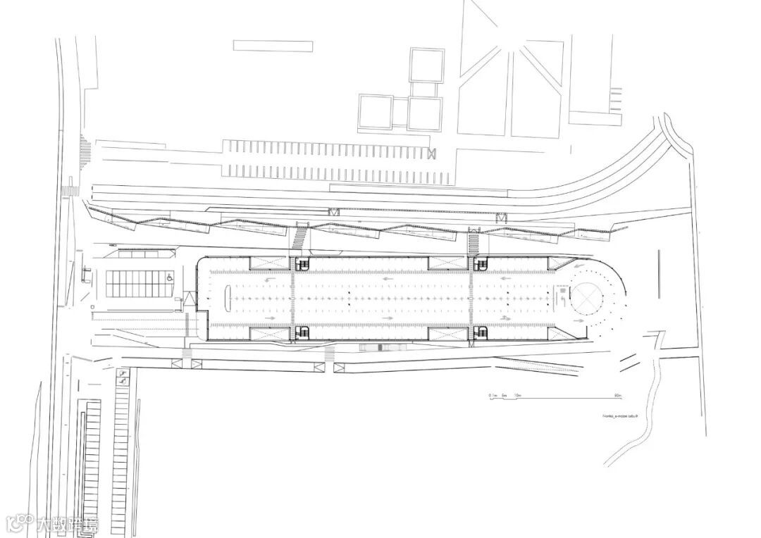
该项目是公共竞赛的获胜者,位于Nantes东南部的Bouguenais镇的一个低密度居住环境中。该提案是南特大都会市改善城市公共交通网络的愿望的一部分。


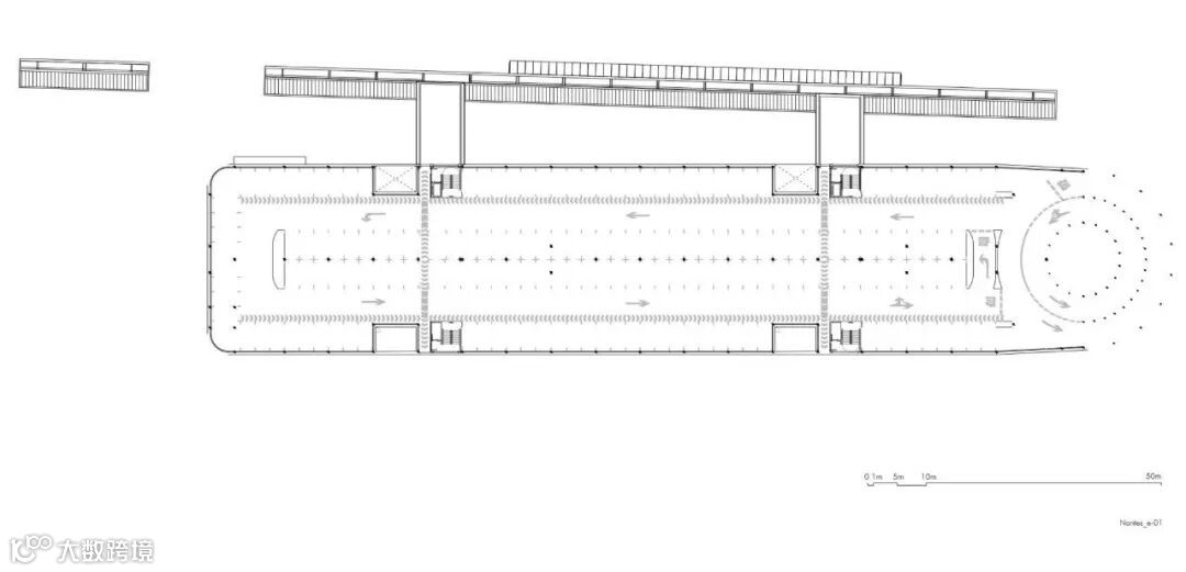
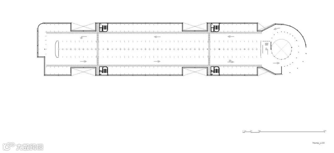
该综合体由停车场、多式公交车和电车站组成,通过连续的顶棚相互连接。
The complex is made up of a car park and an intermodal bus and tram station connected to each other by a continuous canopy.


该停车场由三层有顶的楼层和第四层无顶的楼层组成,可容纳782辆汽车、20辆摩托车和50辆自行车。除了管理场所外,该建筑还包括为使用联运站的巴士司机提供的办公室。
The car park consists of three covered floors plus a fourth uncovered level, with a capacity for 782 cars, 20 motorcycles, and 50 bicycles. In addition to the management premises, the building includes offices for bus drivers who use the intermodal station.


鉴于它所处环境的特点,拟议的解决方案对城市和景观的插入给予了极大的重视。这就是为什么所有的项目决策都是为了保证交通中心的最佳运作和减少其影响和体积。


为了有利于建筑的整合,我们制定了各种策略。首先,景观庭院已被纳入外墙,与垂直通信核心相吻合;通过这一策略,建筑的体积被分割,同时,体验得到改善,用户的自然取向也得到支持。
建筑的庭院在停车场的不同层面上增加了尺寸,有利于光线的进入和露台的出现,种植的树木可以在露台上生长。另一方面,从体量上看,主楼显得很轻,这要归功于穿孔金属板的闭合和建筑末端的圆角,在入口处和另一端都有一个双螺旋形坡道,组织了汽车的垂直流动。


该项目特别注意对所有流量的管理,以避免行人和车辆、公共汽车和私家车之间的交叉。选择双螺旋坡道作为停车场内上行和下行车辆的主要枢纽,是优化该方案运行的关键。
在外部,坡道的形状遵循公共汽车的自然转弯,允许它们与建筑接壤,以尊重客户提出的通过同一街道提供车站出口和入口的要求。在内部,坡道的展开提供了一个外部到达坡道,供汽车爬到每个楼层,以及一个内部出口坡道,一个双反螺旋线,每个坡道从一端开始,允许直接下降,没有交叉。


这个公共汽车站与停车场和电车站平行。因此,多式联运站的用户的不同运输方式之间的旅行距离减少,这是考虑到靠近Nantes机场的一个关键方面。
The bus station runs parallel to the car park and the tram station. The travel distances between the different modes of transportation of the users of the intermodal station are therefore reduced, a key aspect considering the proximity to Nantes airport.


该项目涵盖了未来公交车站城市化项目中涉及的所有学科,包括其入口和景观处理,以及与新停车场建设相关的学科,包括标识。IDOM一直负责该项目从其构思到项目建设过程的管理。
The project covers all disciplines involved in the urbanization project of the future bus station, including its accesses and landscaping treatments, in addition to the disciplines associated with the construction of the new car park, including signage. IDOM has been responsible for the project from its conception to the project management of the construction process.








平面图






剖面图

爆炸分析图
建筑师:IDOM
地点:法国
面积:25000 m²
年份:2020
1.本文为建筑设计技术分析,仅供欣赏学习。
2.本资料为要约邀请,不视为要约,所有政府、政策信息均来源于官方披露信息,具体以实物、政府主管部门批准文件及买卖双方签订的商品房买卖合同约定为准。如有变化恕不另行通知。
3.因编辑需要,文字和图片无必然联系,仅供读者参考;
2021年·新产品方向
《 品牌地产 | 精品楼盘活动 》
杭州、苏州、上海
成都、郑州......
广州、福州、重庆
西安、青岛......
扫描二维码 加好友咨询
领队微信:soujianzhu008


微信公众号“搜建筑”(ID:sjz9999)
合作、宣传、投稿
请加小编微信:soujianzhu006

