▲ 更多精彩,点击“搜建筑” 关注即可

欧洲最富裕的地区已经从首都的历史中心搬到了圣旺,成为大巴黎地区第一个著名的公共机构。
Europe's richest region has moved from the historic centre of the capital to Saint-Ouen, becoming the first prestigious public institution to settle in Greater Paris.


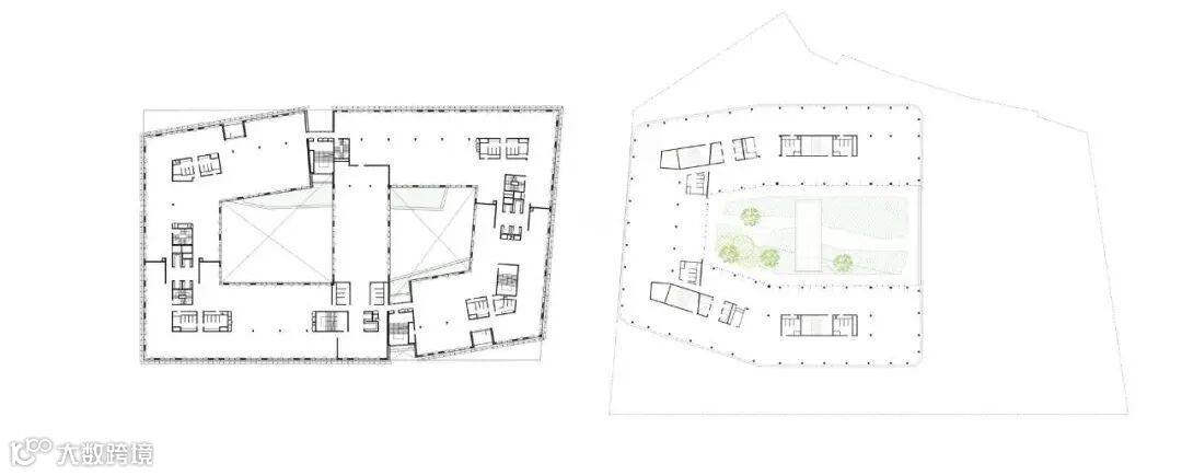
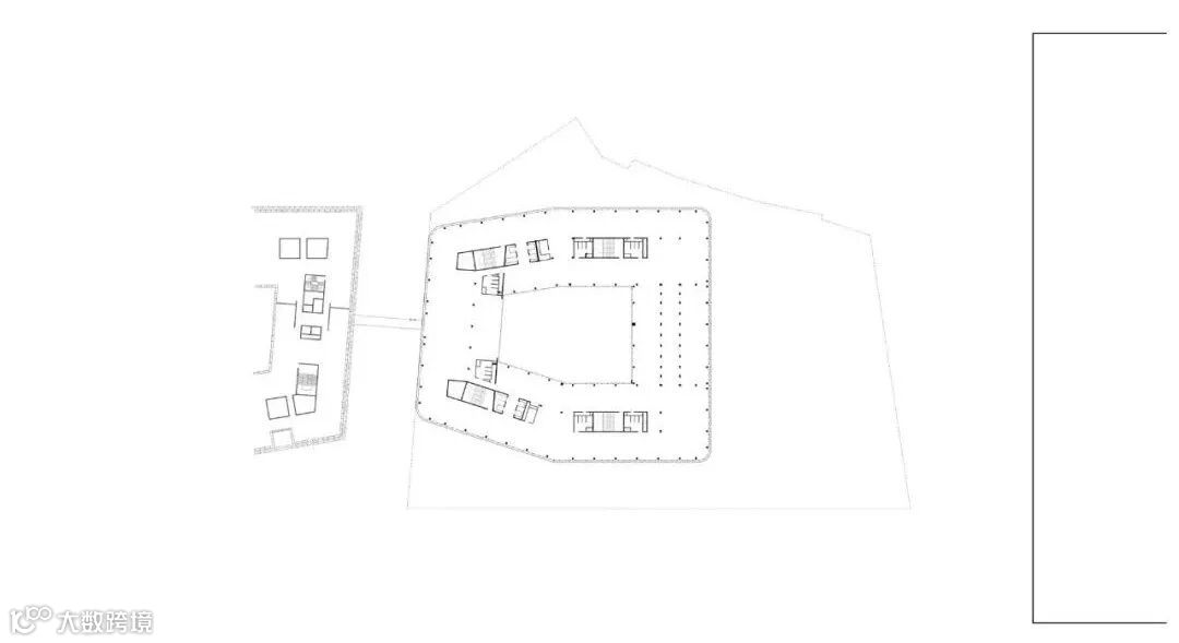
这个庞大的建筑群分为两座建筑,它们是景观主题的两种变体:一座是在一个阴凉和清新的花园之上,另一座是围绕着一个悬空的花园建造的,通过一个巨大的木栅栏,在一个俯瞰城市的阳台上开放。第三个花园是整个巴黎地区总部俯瞰城市的前院。
This vast complex is divided into two buildings which are two variations on the theme of landscape: one is raised above a garden of shade and freshness, the other built around a suspended garden, open on a balcony overlooking the city through a vast loggia. A third garden serves as a forecourt overlooking the city for the whole of the Paris Region Headquarters.


大厅前有一个拱门式的围墙,欢迎所有的游客和使用者。半圆形、大型多功能厅和公共大厅被安排在一个巨大的双层空间内,透明并沐浴在自然光下。
The hall is preceded by a peristyle of arcades that welcomes all visitors and users of the site. The hemicycle, the large multi-purpose room and the public lobby are organised in a vast double-height volume, transparent and bathed in natural light.


在高层,双立面是一个简单的装置,其模具根据朝向巧妙地变化,被设计用来为工作空间提供最佳照明。
On the upper floors, the double-façade, a simple device whose moulding varies subtly according to the orientation, was designed to provide optimum lighting for the workspaces.


整体形象是一个开放、令人印象深刻而节俭的机构,与该地区的大都市和气候挑战相协调。
The overall image is that of an open and impressive yet frugal institution, in harmony with the metropolitan and climatic challenges of its territory.












区位图

平面图



剖面图



建筑师:Ferrier Marchetti
地点:法国
面积:60000 m²
年份:2021
2021年·新产品方向
《 品牌地产 | 精品楼盘活动 》
扫描二维码 加好友咨询
领队微信:soujianzhu008


微信公众号“搜建筑”(ID:sjz9999)
合作、宣传、投稿
请加小编微信:soujianzhu006