▲ 更多精彩,点击“搜建筑” 关注即可
深圳国际交流学院
李晓东工作室
深圳是一个新生的移民城市,包含潮汕、岭南、湖湘等多种亚文化单元,但始终未形成占有绝对优势的主体文化。这个城市共同体得以形成和发展的源动力并不是中国传统城市当中的血亲与宗族根源,而是一种暗含在深圳效率和深圳速度背后的深圳精神——这一现实主义的文化根基构成了这座城市特殊的人地情感纽带。
△ 摄影:UK Studio
一方面,深圳前所未有的人口增速造成了土地资源紧张、教育用地不足等现实困境。另一方面,这种密集的城市特征也成为深圳精神所提出的包容性、开放性、流动性与多元性的物质载体,构成了深圳的现实背景。
与此同时,亚热带气候条件下湿热的城市氛围与密林丛生的自然环境则赋予了这座城市先天的地域特质。故而,这种“外在”的由日常实践逐渐建构起来的高密度城市环境与其“内在”的地理文化形成的双重现实,共同构成了深圳地域实践的基础。
To give a clear and solid definition of identity for a school project in the sub-tropical city center of Shenzhen is the main focus of the design concept.


△ 摄影:UK Studio
深圳国际交流学院建筑用地面积2.18万平方米,建筑面积10万平方米,容积率接近4。
在紧张的用地条件下,利用场地的高差通过垂直、水平两个方向组织空间,实现不同尺度空间之间的调和,同时最大化地利用基地现有条件实现建筑使用功能的拓展,满足学校对教学、生活、户外活动等不同空间功能的需求。
进而,通过两个维度的空间线索,交错生成多种空间组合机制,创造更加丰富的校园空间形态。
The SCIE was designed to accommodate 2000 students and over 200 teachers on a site of around 20,000 m2 in the heart of Shenzhen city. With a plot ratio of almost 5, the great challenge of the project is not just to accommodate a total floor area of over 100,000m2 including all the teaching facilities, dormitories, staff apartments in an efficient way, but also to provide enough sports facilities within the tight compound, at the same time to give porosity to allow cross ventilation and breathing feel...etc.

△ 摄影:UK Studio
设计的主要概念包括几个层次的含义,解决了项目的不同方面。
边界
The main concept of the design consists of several layers of meaning which address different aspects of the program at hand. -Blurred boundary, there are no solid walls surrounding the school. For us, the campus should not be an ivory tower that is isolated, rather, it is open and is interactive with the city.

△ 摄影:UK Studio
留白
在校园内部利用基地高差形成的双层地表,为自然持守一道边界。在紧张的用地条件下,保留一片可以供土壤和城市呼吸的庭院。设计将这部分留白向垂直方向延展,与核心庭院形成连续的界面,在校园内开垦出一片可供学生自由奔跑的“山丘”。
通过台阶将平台上、下“两层”户外空间连在一起,形成绵延不尽、高低起伏的自然坡地。同时,利用地面的起伏营造半地下的聚集空间,拓展自然地面的维度,“山丘”的低洼处结合踏步形成室外观演空间,“山丘”高起的部分形成使用空间。
结合结构的需要,在塔楼下方布置办公空间,将体育馆、剧场等大跨度空间布置在两楼之间的空白区域,并将这部分屋面拓展为校园户外运动场地。
因而,双重地表的存在,不仅为校园提供了更多的户外活动空间,同时形成了校园与自然之间的弹性边界,使得校园-自然-城市形成相互激发的整体。

△ 摄影:UK Studio
叠层
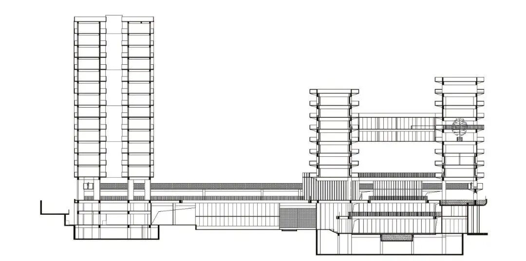
在垂直维度,将不同尺度的空间纵向叠加,形成自下而上的生长势态。平台层以下与核心庭院形成的双层地表隐射为建筑的大地区域,如同建筑的“根部”,与土壤和水景契合在一起,留有较多的活动空间,可以自由地呼吸并为其他动植物留存生长的空间。平台层外围的结构柱托举起一圈悬挑空间,与外围水系植被结合在一起成为城市的公共休闲步道。这部分区域具有较高的公共性,不仅联系校园南北两区、疏散集中人流,同时容纳体育馆、剧场、画廊、咖啡厅、接待区、办公区等大尺度空间和对外服务空间。
平台层以上是单元式空间,包括8层的教学楼、13层宿舍楼以及25层教师公寓。这一区域如同植物的枝叶,密集而均匀,同时需要更多的光照,构成校园的视觉主体。相比底层地面区域的喧闹与活力,上层接近天空的单元空间更为静谧,适合私密性较高的教室和居住空间,形成均质的单元的空间。
地面层与塔楼之间的虚体形成的中层空间成为建筑的“茎部”,5公里的环形跑道悬于其上,艺术教室与健身空间被设置为5个透明的异型空间,穿插在跑道两侧,成为平台空间的活动力源。不仅为校园创造了更多的室外活动场地,也是上下两种空间氛围之间的调节机制。同时,平台层也是校园内通往各个功能单元的中转站,每一个独立的交通核都是通向指定空间的端钮,结合校园标识系统和立面色彩的设计形成清晰的空间定位。
-Vertical green, a vertical green system is introduced to provide Sun-shading and a close relationship towards the natural environment.

△ 摄影:UK Studio

△ 摄影:UK Studio
并置
水平方向,利用校园核心庭院将校园内部分为南北两区,其中南区是教学区,包括主要的教学空间、礼堂、学生课外活动空间和学校的日常管理接待空间;北区包括外教宿舍、学生宿舍、食堂等生活空间,两区之间通过平台层与地面层形成的双层地表连接起来,将校园中所容纳的学习与生活这两种日常行为整合在一起。
进而,通过不同层级的院落组织与纵向的空间秩序编织在一起,形成四维立体的虚实关系。平台层以下,结合基地的留白和双层地表形成的连续界面组织院落空间。包括两区之间的核心庭院,西南角入口接待庭院,东南内向型院落空间,三个院落各自独立又相互关联。
在功能上,院落的位置对应主要人流集散区,与校园内三个竖向分层在必要的时候可作为室外活动场所和内部观演空间的延伸部分。平台层以上,四栋楼宇之间的间距形成另一个维度的院落空间,各层的平台与连桥和底层院落叠加在一起,形成一个多维的空间系统,时而错动、时而交叠,形成清晰又丰富的空间体验。

△ 摄影:UK Studio

△ 摄影:UK Studio
交织
在国交校园中,通过水平和纵向两个方向的拓展,不同的空间线索在两个维度交织,形成层层叠叠的惊喜,各种惊喜之间是婆娑的树影与奔跑的少年。正如卡尔维诺在《看不见的城市》中描写的空间景象:“行走的路线绝不只限于一个层面上,而是一路上有上上下下的台阶,有驻足的平地,有驴背式的罗锅桥,还有架空的路……”
水平和纵向两个方向的空间组织将不同的功能空间与院落合理地调配形成整体,形成正交的空间秩序,建立校园活动的基本规则和框架。在此之下,利用不同的交通动线彼此交叉,穿行于不同的空间单元之中。步道系统与运动流线组成一个环绕和穿行于校园内部不同维度的活力回环,形成斜线交叉环绕在校园空间框架之间组成完整的步道系统,将水平与垂直两个方向的空间系统连成整体。

△ 摄影:UK Studio
呼吸
自然中的空腔往往是动植物呼吸的管道,是生命体汲取营养、获得能量的管道,无论是人体还是自然物都有大量的孔隙。在高密度的建造方式中,不同尺度的空间在水平和垂直两个维度延展。底层架空的庭院、平台架空层与纵向的三个庭院,是贯穿校园两个维度的主要通风管道。
在平台层以下的空间组织中,有意识地打开外围边界、形成对位的孔洞,并与水景、绿植相结合引导通风。底层房间包括体育馆、剧院、美术馆等大尺度空间,均可向院落敞开形成连续的空气对流。使得平台层形成一个四围通透的界面,与底层院落结合在一起。
另一方面,建筑主体的教学楼、学生宿舍与教室宿舍三座塔楼都在不同层穿插布置2-4层通过的空中庭院,形成气孔,引导通风。这些空间的留白与植物和水景的设计结合在一起,成为可以驻足停留的户外公共空间。高密度空间的呼吸的管道,不仅回应了深圳的气候特征,也为生活在高密度空间中的日常生活创造了可以喘息的空间。

△ 摄影:UK Studio
遮蔽
在人类原始情感中,植被作为遮挡风雨的最初屏障,遮蔽风雨,给人安全感。之后,植物剥离出人的生活系统,筑造起水泥森林。孩童回归自然的保护和荫蔽,垂直绿化形成的遮阳系统,如同水系和落影定义的柔性边界。同时,在深圳这一气候炎热需要遮阳的低纬度地区,隔热尤为重要。
建筑的使用过程也是植物生长的过程,施工完成的时期是建筑完成的时期,也是植物生长的开始。混凝土框架结构构筑起的建筑不仅是学生生活和学习的居所,同时也成为土壤和植物生长攀爬的容器。
人工与自然互补,嵌入,相互依附,共同生长。教室两侧垂直绿化表皮设计形成生长在教学楼立面上的热空气滤层,并结合教学楼的双向外廊设计形成自遮阳系统,起到隔热作用的同时避免南侧炫光。
另外,绿植的设计形成了教学空间与外部城市之间的天然屏障,使每一间教室都在植物的萦绕下形成更安静、私密的教学氛围。校园中绿植乔木形成的遮蔽不仅丰富了空间层次,同时起到降温隔热的作用。密集的垂直绿化使得个体在自然中找到庇护感,同时这种庇护又形成了一种有效的气候应对策略。


△ 效果图 - 剖面 ©李晓东工作室

△ 地面层平面图 ©李晓东工作室


△ 剖面图 ©李晓东工作室

△ 剖面图 ©李晓东工作室

△ 剖面图 ©李晓东工作室
完整项目信息
项目名称:深圳国际交流学院新校区
项目类型:建筑
项目地点:深圳市福田区
设计单位:李晓东工作室
主创建筑师:李晓东
设计团队完整名单:张思慧、王古恬、陈梓瑜、李乐、张晨阳
业主:深圳国际交流学院
建成状态:建成
设计时间:2015年7月-2017年5月
建设时间:2018年1月-2020年9月
用地面积:2.18万平方米
建筑面积:10.28万平方米
其他参与者
建筑:深圳同济人
结构:深圳同济人
景观:李晓东工作室,合作:李靖
室内:李晓东工作室,合作:邵程,中孚泰
照明:深圳同济人
施工:中建二局
2021年·新产品方向
《 品牌地产 | 精品楼盘活动 》

微信公众号“搜建筑”(ID:sjz9999)
合作、宣传、投稿
请加小编微信:soujianzhu006


