▲ 更多精彩,点击“搜建筑” 关注即可
曾几何时,家家户户有院落,瓦上青苔,房檐飞燕,堂前茶果,翻墙的爬山虎;山水相伴,一杯白茶,几册清文,阅读精致天地。现如今高楼大厦,飞快的节奏,匆忙的脚步,繁琐的工作与生活的压力,促使人们对自然生态的居住环境产生了更多的向往。
延续中国院落情怀
回归本真生活
属于时光沉淀的臻品
因地制宜,写意之境
山水有灵,居之有道
一方自在天地,生一隅意象
嵩山溪谷沙盘规划
| 鸟瞰效果图
位于昆明空港度假区的嵩山溪谷,距离长水机场仅12公里。项目地块被大片森林包围,于半山间悄然隐市,社区配套丰富,未来可共享文旅资源。空港的立体交通高速路让这个别具一格的院子,和城市紧紧维系在一起。
| 区位分析
项目占地面积约670亩,容积率1.5,环形林荫大道贯穿整个用地。环路与水系交叉形成若干景观节点并划分组团,产品依据地势而设,南面放置低密度产品,北面设置高层及洋房产品,低层产品尽享山地的静谧,高层及洋房独占视野的通透。公共功能区配有商业街、幼儿园、会所等配套,分别设置于入口两侧,满足业主自需。同时在场地内设置滨水公园,沿主环路设置慢行系统,绿荫健康跑道,让业主在小区内就能享受健康的有氧生活。
| 总平面图
| 示范区航拍
遵循古建礼制,中轴对称,将建筑与巷道自然交织,注重邻里空间流动又保证相对私密,还原纯粹的中式居住文化。景观与建筑一体化设计,二者之间相互渗透、融合,增加交流和对话的可行性,使公共活动空间面积最大化。
▲ 示范区鸟瞰效果图 & 实景图 ▼
观门径,可以知品味,以一“门”而窥全貌
入口大门设计延续中国文化次第展开、层层递进
的礼序思想,演绎恢弘纵深感
| 示范区实景
前场空间通过建筑与自然借景,辅以铺装设计、礼制外屏、景墙的围合限定,形成展示区前场空间,苍松迎客、垂帘景墙、叠水台阶,丰富寓意点缀其中。
| 示范区实景
转入内庭,似“天空之境”倒映着建筑光影。透空格栅借景;汀步水院,抬头见景;进入建筑,落座观景;折入侧院,自成一景。空间曲折回环、以小见大,意在营造一种虚实相间的空间序列和缩微园林的意趣。
| 示范区设计细节
| 滇中地区合院式民居特点
示范区设计灵感:根据滇中地区“一颗印”合院式民居特点及大理地区传统的“四合五天井”民居特点,得出了体验区的空间布局,即中轴突出、对称布局、四重院落、层层递进、平面围合、四水归堂。在外立面设计上运用了传统美学的现代化表达,传承地域古朴美学,延续了云南的传统文脉。
| 示范区功能分析
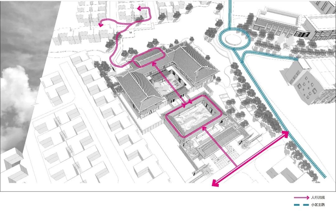
| 示范区交通流线分析
| 示范区景观分析
▲ 示范区效果图 & 实景图 ▼
| 示范区实景
售楼处空间融入当地独特的木构、红砖等建筑元素,使用原石、原木等天然材料,更接近自然的材质赋予空间温润的触感。摈弃繁冗和哗众取宠的设计,通过细节的精妙处理去表达空间的精致和东方人文气韵。轻盈的橙色点染,为建筑定义了人文、艺术、高雅的格调。
| 售楼空间实景
产品规划——产品类别由联排向类双拼过渡:规划采用中华传统民居“街巷”型空间组织方式。对一个基本居住单元复制、组合,形成一个有机组团。
在户型设计上,是最新升级的俊发微墅2.0产品,较1.0产品相比,面积相近,但视线范围更广,私密性和舒适度更高。
| 合院规划效果图
这样的设计既满足对“笙歌归院落,灯火下楼台”的期许眷恋,又注重居家所需环境。别墅内部的庭院文化与外部街巷的胡同文化得到了有机统一。将庭院的私密性以及室内外空间的通融性做到了极致。
| 合院实景
合院一层
合院二层
| 101m²户型图
| 合院室内实景
户型设计用简洁的手法和细节来完成现代人的审美需求,将现代舒适谦逊地融入传统建筑的基因中,演绎简约东方度假风情。室内以淡黄色为主色调,陈设以白色调营造出宁静雅致的空间氛围。
大落地玻璃,引景入室,园林室内化,与素雅的木饰面和山水绢画交相辉映,风雅自然。
| 合院实景
合院一层
合院二层
| 143m²户型图
| 合院室内实景
结 语
建筑,不仅仅是居住的容器,更是对美好生活的追求以及艺术情感的自我表达。对于中国人而言,自古以来每一座居所,都承载了一种独特的生活方式,骨子里温暖家的情结,更是经过长时间的磨合与淬炼,逐渐融于居住中,呈现出来。
项目名称:昆明俊发·嵩山溪谷
业主单位:俊发集团
建筑设计:森拓设计机构
建筑面积:674091.86㎡
设计顾问:干彤
设计总监:程太宇
设计团队:罗锡文、黄文祥、沈雅飞、沈丽芳、蒋敬、郑一俊
景观设计:重庆纬图景观

微信公众号“搜建筑”(ID:sjz9999)
合作、宣传、投稿
请加小编微信:soujianzhu006


