营造建筑的漂浮感 —— 极简的几何形态示范区
搜建筑
项目位于的杭州市余杭区未来科技城板块,是杭州创业创新的热土。
本建筑作为汀云上府项目的生活体验馆,在一片稍显狭长的场地上采用集中式布局,借由建筑语言构造空间情绪,好似在城市中打开一扇窗,可以窥见现代美学在生活中自由滋长,以及美学给生活带来的丰盈。
建筑以一种适应性的方式嵌入场地,通过极简的几何形态回应场地边界,同时将建筑从场地上微微抬起,底部引入静水面,建筑体块空间上形成上升的态势,营造出建筑的漂浮感。再通过切挖、凸变等手法增加呼吸与通透感,构建内部的庭院空间。最终演化成一座漂浮于水面、与场地共生的“水晶匣子”。
所谓“匣”即为一种收藏器具,本案引入“匣”的概念,寄望于“将人们的未来生活的美好憧憬收藏于建筑之中”。由此,建筑成为了街道上一个开启“宝匣”,盛满了整个场地边界。敞开的一侧,为室外活动中心,生活场景由此而展开。
▲ 体块示意动图
夜幕下,悬浮的水晶盒被光线包围,融入了一种全然放松的安全氛围,建筑与城市、艺术与自然在循环往复中给予了双方无限可能。
设计试图在建筑中探索三种关系:内与外(场地内部与外部)、虚与实(建筑界面的虚实)、漂浮与衬托(建筑与环境)。
对内:大隐于市,建筑围合出一方静谧的山水庭园,将自然的清新之感带入城市,在人们日常生活栖息的空间里,制造一个富有生机的,可以感受不同生命力的场所,使之成为人与自然的连接。
对外:通过戏剧化的手法,于道路转角处,采用通透、开放、包容的姿态,与城市干道交相辉映。行驶在文二西路上,无需刻意驻足,即能发现它的独特存在。在常态的城市界面下,增添了些许不同寻常的观感。
庭院围绕着 “ 水上云汀 ” 的意向进行了现代美学的融合与抽象,给予使用者宛如游览于山林之间般的庭院体验。
建筑采用“ㄈ”型板片构成主体空间,通过形体的虚实变化,将施工区的喧嚣杂乱与示范区隔离,同时运用大面玻璃幕墙与城市对话。远近虚实,开合有度。
水院悠悠,洗尽铅华,眼底有诗,心绪沉静。设计将汀步引入水院,建筑则漂浮于水面之上,二者交织融合,相辅相成。
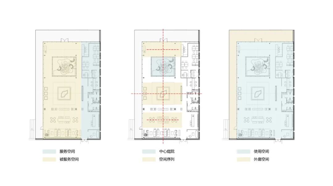
建筑的起承转合在这里被结构重组为一系列的行走、观看和情景交互关系。主次体系也被解拆为一组为游廊所串联的日常生活空间段落。
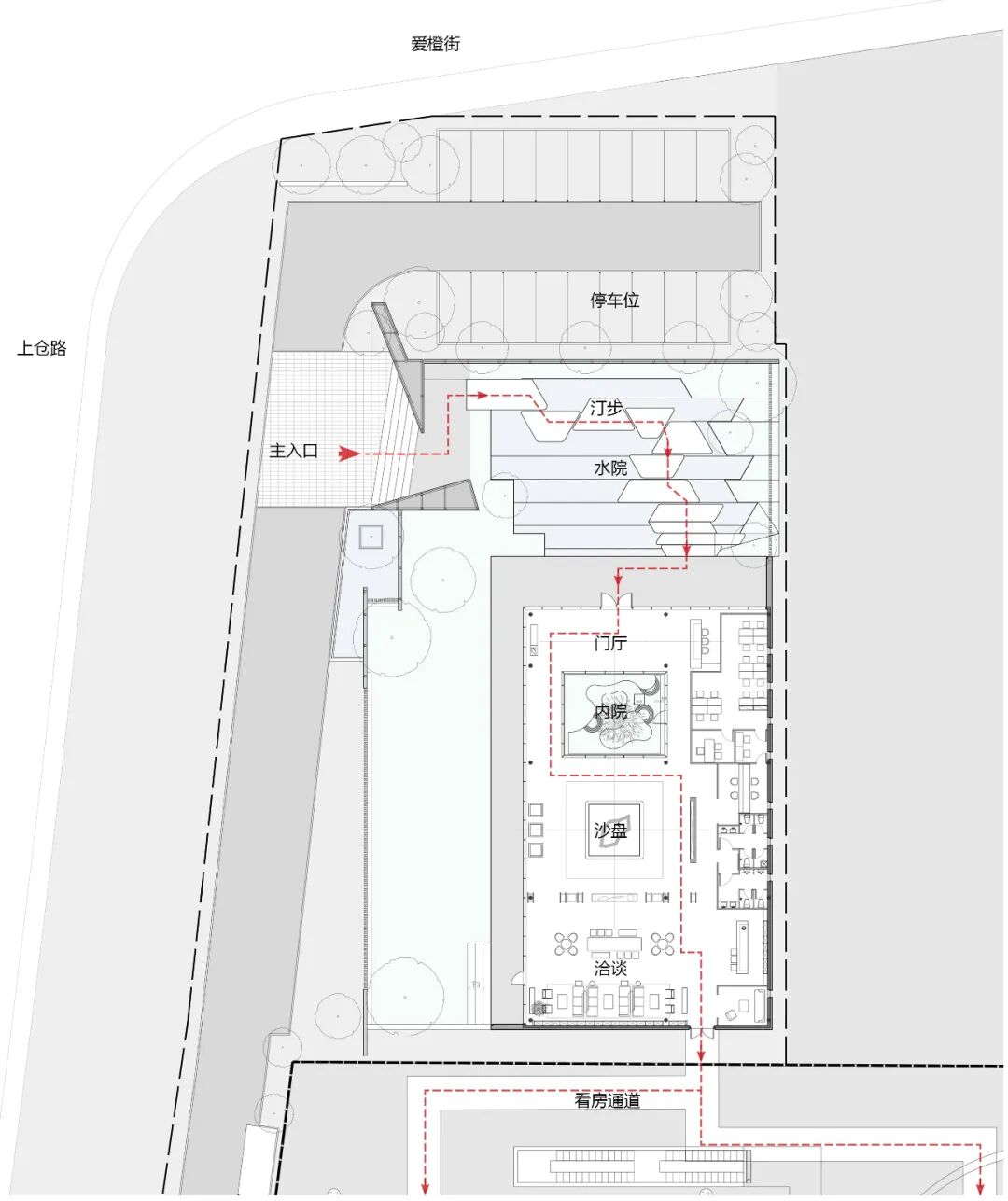
主入口位于建筑的西北侧,北侧与西侧形体内退,形成连廊;连廊连接门厅,通往内庭院。
庭院串联起前场接待空间和内部展示空间,实现人、建筑、自然三者之间的交互。在建筑与自然的对话中,沙盘展示区映入眼帘,展示区上方凸起的天窗,将自然光引入室内,提亮沙盘区域,强调示范区的核心功能。
通过光线的引入,模糊空间界限,“内”与“外”无界融合,达到自然景观与室内空间共融共生的森意感受。
水晶匣子般的售楼中心,既是界面也是联接体,既是日常生活的外延,同时也是独立的风景游历。作为短期展示性建筑,我们希望在不影响城市生长形态的前提下,借助建筑功能性介入城市,使它成为当下合理且美好的存在。
项目信息
项目名称 | 金成祥新•汀云上府示范区
方案团队 | GMA绿城都会 舒捷华、黄康辉、潘柳毅
《 招聘投放&作品宣传 》
搜建筑·矩阵平台

合作、宣传、投稿
请加小编微信:soujianzhu006
推荐一个
专业的地产+建筑平台
每天都有新内容
扫描二维码关注

微信公众号“搜建筑”(ID:sjz9999)
搜建筑
关注全球时尚的、新的建筑资讯。