“这些示范区还不错”系列
已经完成15期,累计75个优秀项目
接下来我们除了会继续收集整理优质示范区项目
也会对项目类型和特征做专项归类和梳理
持续整理 与君共享 欢迎转发 顺便恰饭
----------------------------------
售楼处及示范区类型和位置的选择在项目初期,甚至是在土拓阶段就需要研判和决策的内容。不同类型和总图位置的售楼处,对设计条件、成本控制、运营节奏、销售管理上都会产生天差地别的影响,也考验着项目的定位和整体操盘思路。
其中利用大区商业,前置作为售楼处使用是诸多项目的选择项之一。商业售楼处在处理上最需要注意的就是如何妥善处理商业和售楼处两种不同类型的业态之间的共性和矛盾点,既能满足商业基本使用要求,促进后期商业去化,又能匹配前期作为售楼处的销售展示诉求,展现项目品质特征。
商业作为售楼处最大的优势在于商业需要的各类因素都与作为营销道具的售楼处如出一辙。
【形象展示性】形象塑造和展示一直是商业设计的重中之重,耳目一新的商业形象对销售和后期运营都至关重要;
【交通可达性】商业布置讲究“金角银边草肚皮”,同时区位上会选择已建成道路布置,避免市政兑现风险;
【成本集约性】商业和售楼处在形象展示上的一致性,也使得其在成本归集上可以最大化的统一,避免了拆改费用;
【运营可控性】商业层数一般控制在两层,且体量小,相对独立,为示范区提前开放创造可能;
但商业售楼处的先天的劣势,也是受制于其商业性质本身。
【市政环境干扰】商业多临街而设,市政嘈杂的环境和充满不确定性的城市生活,会对销售活动和参观体验形成影响。
【室内布局局促】最好去化的商铺是大面宽浅进深的,因此商业进深往往控制在12-15米,这同时也限制了室内布局。
【前场空间受限】商业临街布置的特性,也让示范区景观空间营造的余地受到了一定的限制。
【楼栋交叉施工】除地方规范要求,住宅与商业往往较难完全脱离,遇到骑楼的情况施工管理上也会造成较大的挑战。
我们对收集的70个示范区项目进行了梳理,挑选了其中典型的商业售楼处案例,通过归类研究,大体可以分为转角商业、沿街商业和集中商业三类,接下来将会对这三种类型商业售楼处经典案例的解题思路进行简要的分析。
【转角商业型】
01
宁波·旭辉·铂宸府
宁波旭辉铂宸府是典型的利用转交商业作为售楼处的案例,同时优劣势也很清晰的展现出来。优势上,商业与住宅楼栋完全脱开,地库范围也可以完全避开,避免了大区施工对示范区的影响,加快了整体示范区的开发节奏。劣势上,主要还是室内和景观的处理上,面临平面尺寸进深小和前场空间不足的挑战。
因此在整体示范区空间处理上,特意将示范区入口调整至售楼处西侧,通过偏移的场地入口,延长了整体示范区的前场参观动线,为景观的情景打造提供了更多的可能性,创造了三进院落,移步换景的参观体验。同时内向型的庭院空间也隔绝了市政环境,为创造更加沉浸式的景观空间提供了可能。
建筑设计:上海天华建筑设计有限公司
景观设计:奥雅设计集团
室内设计:深圳尚石设计
地址:中国,宁波
项目年份:2017
02
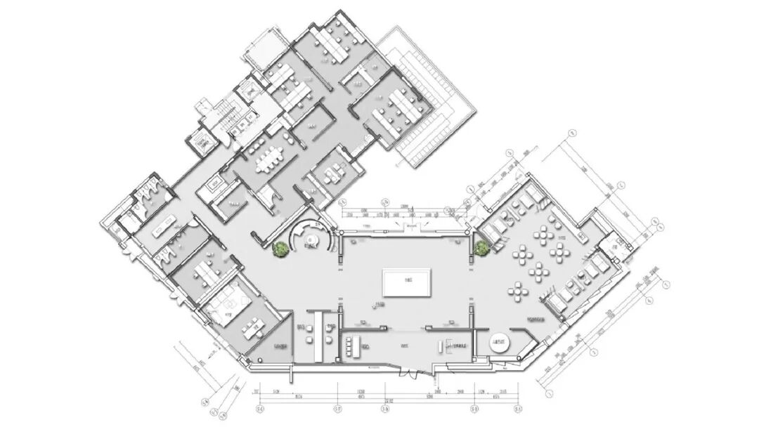
宁波·禹洲·朗玥府
宁波禹洲朗玥府与旭辉项目在转角商业售楼处的处理上有个异曲同工之处。同样也是选择将示范区出入口向北便宜,城市转角形成完整的照壁,作为形象展示和品牌宣贯的阵地。原本商业退距的空间则创造了一个完整的内向型庭院空间,沉浸景观体验,提升整体客户购房感受。
项目售楼处平面布局上,我们也能清晰的看出,转角商业售楼处的弊端。长条形售楼处空间,加上为商业预留的约13米的进深空间,带来的室内空间起承转合腾挪余地不大,使得售楼处从入口进入口直接正对沙盘区。虽然入口强行进行了偏转,企图弱化开宗明义的感受,但整体空间感受上依旧过于直白。
建筑设计:齐越设计
景观设计:上海岱朴
室内设计:硬装/上榀设计;软装/MOD穆德设计
地址:中国,宁波
项目年份:2021
【沿街商业型】
03
福州·万科·金域时代
福州万科金域时代项目可以说是沿街商业作为售楼处的经典案例。几乎所有沿街商业做售楼处可能遇到的问题在这个项目中都得到了体现。总图受限,山墙间距较小;商业位于主楼下方,平面布局受剪力墙影响;商业前场间距较小;与现状城市道路的交互关系等。
面对如此多的困难项目处理方式也很巧妙。山墙间距较小,干脆直接将售楼处位于主楼下商铺,将山墙空间打造成中庭,巧妙扩大了前场的空间;售楼处在主楼下方,则通过结构转换,既便于售楼处平面布置,也为后期商业去化创造了条件;而与市政关系的处理上,直接通过商业化的处理方式,营造商业氛围,既妥善处理了与市政界面的关系,也为商业去化造势。
建筑设计:帝奥设计
景观设计:上海万境
室内设计: 硬装/峻佳设计,软装/羽果设计
地址:中国,福州
项目年份:2020
04
长沙·中海·阅溪府
上个项目完全展示了沿街商业售楼处可能面临的挑战,以及如何巧妙地解决这些问题,而长沙中海阅溪府在规划和商业布置阶段就已经尽可能在规避这些问题。
在总图布局上,住宅与商业贴临建设,而不是骑楼,确保了商业体量独立和结构自由;商业选择建筑退界较多面,确保足够的前场空间;前场设计U型动线,延长参观体验,丰富空间感受;售楼处侧面进入L型转折,变面宽为进深,满足售楼处进深需求,契合销售动线序列。
建筑设计:滙张思
景观设计:派澜设计
室内设计:东仓建设
地址:中国,长沙
项目年份:2021
【集中商业型】
05
福州·万科·金域国际
相对于转角商业和沿街商业,集中商业形式的售楼处在营造过程中更加自由,更能契合售楼处的营销道具需求。福州万科金域国际就是典型的案例,独立的用地,硕大气派的前广场,城市转角的昭示性,全中售楼处要害。但后期集中商业的去化又成了老大难的问题,需要在示范区阶段前置考虑。
金域国际项目对商业去化的思考和手法,简单来说就是立面形象的公建化处理,前广场景观的市政化打造,以及室内社区图书馆和网红商业的前置入驻,来进一步锁定项目商业定位和品牌调性。
建筑设计:筑博设计
景观设计:园冶景观设计
室内设计:硬装/水相设计,软装/羽果设计
地址:中国,宁波
项目年份:2017
06
福州·阳光城·檀境
福州阳光城檀境项目与万科项目比较类似,也是在地块配建商业较多的情况下,选择了集中商业作为售楼处。不同的是,万科项目采用的是盒子形式,而阳光城因场地内有古榕树的先天资源,选择了内院式的街区商业类型,其对商业去化的助力优势也更加凸显。
内院式的情景打造,出了项目地缘优势,通过对场地内古榕树的综合打造,提升整体示范区在自然人文气质,同时内院街区式的布局,也减少了商业的单铺面积,有利于后期商业的去化。与万科项目类似,前置植入的网红商业品牌,也在商业氛围上起到了所见即所得的功效。
建筑设计:柏涛设计
景观设计:朗道设计
室内设计:不详
地址:中国,福州
项目年份:2020
07
南昌·万科·海上明月
南昌万科海上明月项目同样也是集中商业售楼处的典型案例。与福州万科金域国际类似,通过集中盒子和城市广场的综合打造,在示范区整体昭示性和空间趣味性上达到了不俗的展示效果。该项目最经典的还是其基于小区大量商业配套要求情况下,在示范区阶段对商业去化的考量。
在北侧集中商业区的总图布局上,利用类似商业mall的平面组织形式,主力盒子加商业街区,主力盒子前期作为售楼处,示范区阶段将沿街商业一同呈现,作为示范区停车区的景观背景。这一系列的操作,为后期商业去化和运营创造了更多有利的条件。
建筑设计:UCGD有乘
景观设计:元境设计
室内设计:上海牧笛
地址:中国,福州
项目年份:2020
08
南昌·正荣·依云上城
南昌正荣依云上城项目同样也是采用了集中商业作为售楼处的模式,但是与之前的案例不同的是,该项目创造性地将集中商业盒子和社区入口进行了结合,并同时在示范区阶段进行了打造。如果说以上三个案例都是迫于项目配建商业过多,着重商业城市形象和营商氛围,这个项目则在总图和示范区范围圈定阶段便综合考虑了购房者对居住的本质需求。
项目选择西北角的集中商业作为售楼处,同时在北侧设置一个小区的机动车出入口,一方面在示范区阶段,可以实景展示小区的门头形象,所见即所得,营销生活的氛围,另一方面,商业盒子临近小区主入口,得天独厚的人流优势,助力解决商业去化的老大难问题。入口与商业的结合,无论在示范区阶段还是在后期商业运营上,都相辅相成,交相辉映。
建筑设计:水石设计
景观设计:水石设计
室内设计:硬装 / 上海飞视;软装 / 上海太吉元禾
地址:中国,南昌
项目年份:2020
【结语】
由此,我们列举了三类商业售楼处总计8个典型案例,从中可以看到,商业与售楼处两种业态类型在产品定位和打造手段上有着异曲同工之处,但同时二者在空间诉求上依旧存在差异,加上售楼处对前置施工界面条件的要求以及后期商业去化风险,也使利用商业作为售楼处需要在总图布局和平面设计阶段需要有更加宏观和全周期的视野。
接下来,我们还将对“这些示范区还不错”系列中收集的典型案例进行专项的分析和归类,欢迎大家持续关注。
感谢投稿欢迎大家关注微信公众号:MaybeLab
《 招聘、访谈、作品展示 》
搜建筑·矩阵平台
合作、宣传、投稿
请加小编微信:soujianzhu006
推荐一个
专业的地产+建筑平台
每天都有新内容
扫描二维码关注

微信公众号“搜建筑”(ID:sjz9999)


