▲ 更多精彩,点击“搜建筑” 关注即可
/为你读诗/
“希望”是个有羽毛的东西
它栖息在灵魂里
唱没有歌词的歌曲
永远,不会停息
......
——《希望是个有羽毛的东西》

#01
寻觅/项目背景
Background Analysis
【设计背景】


以凤凰这一古老形象为载体,项目设计充分挖掘文化在地性。
以佛山本土历史文化为核心,以现代精炼的设计手法向人们展示佛山古老文化底蕴,传递幸福和顺美好祝愿。

凤栖梧桐引久雏,梦归禅城筑湾居。
以凤凰吉祥福瑞的象征来体现IP文化温度,用羽毛的元素做标识,通过六大空间序列,打造完整的看房动线。
【区位分析】

基地位于广东省佛山市禅城区,属于亚热带季风性湿润气候区,环境舒适,温和宜居。
具体区位在南庄与石湾交界处,西面为禅西大道,东面为规划路,南面为魁奇路,十公里可达佛山沙堤机场和佛山高铁西站,区位交通优势明显,整体交通配套资源齐全。

项目周边生态资源良好,教育医疗商业等配置齐全。
【基地现状】

新明珠凤翔湾项目由A\B\C三大地块组成,项目块地形平坦,局部高差大,禅西大道与魁奇路交汇,周边多为旧村和旧厂,展示区位于B地块南侧。

#02
参悟/方案呈现
Design Strategy
项目客群主要为本地化、年轻化的购房群体以及广州佛山周边年轻化家庭的刚需客。
设计专注追求绿色自然的休闲方式,文化生活的艺术气息,舒适的互动社区和高品质的空间感受。



△总平面图(红色线框内区域为设计范围)

六大空间序列,打造完整的看房动线:
◆ 通过看房通道结合两侧围挡与绿化形成林荫夹道空间;
◆ 以横二路为内聚界面,结合C地块以现状绿化作为背景,形成疏林草地空间;
◆ 停车场空间结合精神堡垒打造开放的形象城市界面;
◆ 时光通廊通道结合现代玻璃材质,利用光影虚实变化,打造时光空间体验;
◆ 前场空间营造营销中心主入口仪式感;
◆ 后场空间打造以儿童功能为核心的,复合型功能的景观体验空间,营造呈现未来森林社区生活;

通过园游式的设计手法,引水入内,因地制宜的设计优化了沿路视线,通过对场景营造的深刻理解,从建筑构造、景观营建等多个委屈切入,将售楼部打造成建筑景观一体化的体验式场所。



【竖向设计】

地块整体相对平缓,可形成平整开阔的前场空间。
后场空间与地下室竖向设计相结合,同时覆土抬高1.5m,在售楼部二层依据高差优势俯瞰后场园林,美景尽收眼底,再通过楼梯去往一层,穿过半开敞的景观通廊到达样板间。
【立面生成】

#_元素提取
设计从凤凰这一象征吉祥福瑞的形象中提炼发挥空间.
以凤凰羽毛为元素,经过变形、重组,以有张力的斜面穿插和如鸟一般灵动的可折叠铝板形式融于建筑立面之中,体现了禅城岭南水乡特色,展示生活情调。

Ⅰ· 双立面丰富层次


建筑主体采用了高透超白玻+折形白色铝板的双层立面设计,丰富了外立面的层次感。
Ⅱ· 斜面穿插加强建筑张力




羽毛抽象而来的斜面元素穿插其中,线条硬朗挺拔,富有节奏感与韵律感,体现了建筑简约的抽象美,增强了建筑的张力。
Ⅲ· 结合地景强调入口昭示性



从地景元素出发,多维度深入思考,应用灵活的设计手法,凸出强调整体形象的昭示性。
入口设计强调了仪式感,形成自然引导。同时以克制隐忍的处理方式,很好地保证了二层悬浮盒子完整性,呼应建筑主体,现代、纯粹、简单而有设计感的手法。
同时,考虑到与它相邻的异形柱之间的关系,达到和谐、舒适;以及对儿童安全的考虑,尽量避免尖角和儿童攀爬隐患,兼顾美观效果,简约而不平凡,用极现代体现新城市主义。
Ⅳ· 大面积玻璃,建筑通透纯净



通透的玻璃给与了室内开阔的视野,打破室内外空间界限,引景入室,创造生活和自然高度统一。
【形体推敲】



尺度合适的出挑能极大展现建筑的张力,尤其是在景观较好的地方,更具有视觉冲击力。在保证形体尽可能轻盈的情况下,结合结构和室内因素,做到最大悬挑2250mm。

玻璃的轻盈与铝板的密实,强烈的虚实对比使建筑立面更有冲击力。
【细节设计】

△入口水景与艺术装置
水景与雕塑化的地景元素结合,氛围感十足的,共同打造入口昭示性。

主入口的灰空间作为连接室内外的纽带,在满足空间功能性的基础上,提升了建筑层次感和立体感,形成丰富多样空间,彰显品质格调。

风雨连廊与环境融合呼应,景观设计保证了视野的宽阔性及建筑的整体美观。
雅致意境、灵动自然的氛围,轻松舒适的步道空间、优雅安逸的环境。移步异景,徐徐前行,成为对生活的极致礼遇。



#03
归真/专项设计
【室内设计】

室内设计延续售楼部建筑简洁、现代、纯粹的风格定位。
空间内部无做过多遮挡及装饰,通透的玻璃墙将室内和景观无缝链接,不分彼此,浑然一体。

设计主题将“凤”元素引入室内,让整体空间显得轻盈透亮。

模糊边界的室内外视线过渡,穿过开敞的落地玻璃,更大限度将室内空间与外界景观联合一起。

跳跃橙色,让整体空间更显活力。

【公园景观设计】
设计理念围绕如何在延续建筑设计主题性,结合场地特质,创造一种让人印象深刻的链接,以拉近人与空间的距离?
遇见自然的美好、发现纯粹的美感、感受互动的乐趣的链接,将带给客户丰富多样的新体验。

为实现这种链接,景观设计通过空间讲述一段关于“找与寻”的故事。
遇浮岛,寻凤境,是“有凤来仪,寻林居而栖” 故事的开篇。


△景观主入口
沿夹道林趣,感受疏林拾光。寻觅之后,终在林尽之处,发现芳林欢聚的惊喜。


辗转之后,豁然开朗!孩童依旧不知疲倦,在自己寻得的乐土上奔跑,嬉戏。他们仿佛有用不完的能量,追逐这个世界一切的生机与趣味。

△M仔乐园
而坐在一旁的你我,难道还未发觉,这一趟,寻的不只是境,不只是居所,而是灵魂深处珍贵的自我?

///
#04
过程/技术图纸
Drawings
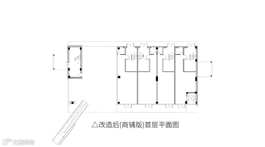
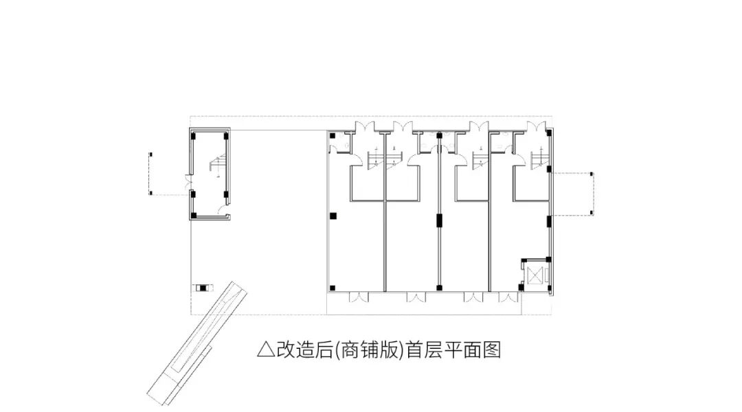
△上下滑动查看更多
广东天元建筑设计有限公司(睿住天元)定位设计科技综合服务商,具备全过程全专业设计咨询能力及一体化的设计与服务。作为具有现代化管理思维的建筑设计十项全能企业,我们坚持以优质的设计与服务,为客户提供全专业、全品类建筑设计综合型解决方案。
企业拥有多项专业资质,具有建筑设计甲级、规划乙级资质、园林乙级资质。业务范围涵盖城市规划设计、建筑设计、景观设计、室内设计、土建施工图设计、装配式设计、智慧生活设计、乡村&康养产业化设计、EPC&全过程工程咨询服务。
2021年·新产品方向
《 品牌地产 | 精品楼盘活动 》

推荐一个
专业的地产+建筑平台
每天都有新内容
扫描二维码关注

微信公众号“搜建筑”(ID:sjz9999)
合作、宣传、投稿
请加小编微信:soujianzhu006










