▲ 更多精彩,点击“搜建筑” 关注即可
豪宅,究竟有什么与众不同?
什么才是豪宅的正确打开方式?
不惊艳,不谋面!外立面就是留给世界的第一抹惊艳。
“颜值即正义”的今天,越来越多的地产项目,把设计重点放在审美上,以迎合新贵的品位。
那些高颜值立面的项目,总是以靓丽的姿态呈现出了地产界藏不住的火热。
今天就一起来看看,那些迷到众人的外立面是如何造出来的?
外立面要做减法 风格趋向简约化
豪宅的外立面风格,是豪宅市场的审美和品味的代表,而这些审美和品味,随着时间的流逝,都在慢慢发生着变化。
总体来说,豪宅外立面要做减法,不管是什么风格,都要趋向简单,最明显的特征就是公建化。
在简约、纯粹的建筑形式下,通过线条、材质、功能、细节营造产品调性,表达禅意自然的审美与智慧,营造产品的原创性与生命力。
具体如何打造呢?
① 圆角曲线 科技美学
西班牙建筑大师高迪(Antonio Gaudi)曾说过:大自然是没有直线存在的,直线属于人类,而曲线才属于上帝。
曲线建筑因为工艺复杂品质好,视觉奢华豪宅范,所以深受顶豪圈层喜爱,成为豪宅的“符号标志”。
一件件惊艳世界的曲线作品,形成了个性化的高级审美,让曲线美学,引领世界建筑审美风潮。
如,世茂北京天誉,在看到建筑外观的一瞬间,就被其颜值所吸引,无数的曲线与圆倒角,在外立面上缠绕流动,令人过目不忘。
世茂北京天誉效果图

外立面手稿推演示意图
仔细观察,世茂北京天誉「星曜天幕」的立面设计,“天誉弧”独特流线贯穿室内外,全新的空间舱体美学;直通上空的竖向轴线,灵感提取自宇宙飞船的机身元素;中间那条金色装饰线,犹如超跑车身飞速而过的顺滑光带。
玻璃、铝板、石材、金属线条的大胆碰撞,形成了这样极具未来感的流体立面,多了几分机械美学的韵味。
世茂北京天誉效果图
北京中海甲叁號院,沿袭世界“TOP”级住宅基因,运用“高端铝板幕墙、LOW-E玻璃”的材质组合,采用了跑车阿斯顿马丁+全球游艇法拉帝VIRTUS的灵感曲线,构筑出具有现代艺术感的流线立面。

中海甲叁號院效果图
还有,旭辉的产品线 CIFI-7的“微笑立面”。
这条曲线仿佛是露着洁白牙齿的微笑,构成了建筑的天际线,从而成为建筑立面的一部分,在千篇一律的城市天际线中,旭辉用独具匠心的设计为城市天空送上一抹微笑。

天津旭辉·滨海江来“微笑立面” 效果图 © 水石设计
绍兴金昌·白鹭凤林,以金昌曲线流动之美,结合香槟金铝板、通透的大块面弧度玻璃,将一幢幢流光溢彩的曲线建筑,倒映于江面之上,成就媲美上海豪宅汤臣一品的藏品级江景豪宅。

实景图
郑州建业新筑之美,同样如此,即使完全不懂行的人,也能被深深打动。
大量优美的曲线与弧面,通透晶莹的落地式玻璃幕墙,闪烁着香槟金光泽的太空铝板,东方+现代的优美气韵被完完全全诠释了出来。

郑州建业新筑效果图
重庆香港置地天湖岛,颠覆传统住宅立面的平铺直叙,玻璃和石材外墙镶嵌曲线灵动的大露台,层层进阶,升腾起势。

游艇独墅设计理念示意图
建筑的精髓其实就在于这条66道弧线,从勾线、转角、切割、包圈,繁琐的程序,难度异乎寻常的工艺,最终焕发出不同的光彩,让人一见倾心。
② 造型概念化
运用概念化立面的手法传达立意,呈现出独特的个性,让人的记忆更加深刻。
如,杭州融创金成 · 杭京源,建筑师孟凡浩的设计跳脱出传统正交标准化住宅体系,以“超流体”为概念,“一滴水的时空游动”为创作灵感,借由水的流动性、包容性、承载感,呈现融合东方韵味的当代建筑语汇。注重功能、体验与美学并重,立面形式完全契合于平面功能。
立面概念生成 ©gad·line+ studio (gif)
©gad·line+ studio
融创舟山山海大观,养老公寓立面语言汲取海洋文化特色,挖掘舟山的人文内涵。充分运用山、海的韵律意境与抽象形态。
③ 超流体建筑
立面的流线型设计使整个建筑生动活泼。
如,杭州融信世纪,外立面延续融信现代简约风格,设计采用流线型建筑,以国际前沿高端住宅表皮艺术手法,演绎世界级美学。
大量采用曲线与弧面,打造灵动流体立面,寻求建筑的柔软视觉观感。

杭州融信世纪效果图
成都麓湖云龙阁,每层均有数十种不同半径的曲面玻璃以及数十个不同曲率的曲线。从不同角度仰观建筑,所呈现的建筑形态都各不相同,涟漪般的建筑造型使建筑仿佛时刻深处流动之中。

成都麓湖云龙阁实景图
随着审美的不断提高,越来越多的设计具有一种不对称的美感。
设计师将视觉重点放置到偏离视觉中央的位置,通过不对称性来吸引用户注意,打造一种特殊的”视觉路径”。
如,重庆融创壹号院,律动的曲线,配合玻璃幕墙,层层叠叠间,好似律动的钢琴琴键,呼应着有山有水生活的优雅;而不对称的立面关系,则如张开的双翼,振翅欲飞,强化着建筑的自由,充满前瞻性和科技感……
重庆·融创壹号院外立面意境图
融创舟山山海大观,高层住宅承袭融创独有的高级灰极简立面,同时拥有丰富的层次变化。大面积玻璃的设计运用,更能够为业主带来更充足的阳光与非凡的视野享受。
⑤ 「超纤细」的边框设计
如今的项目,立面边框越做越细了,甚至做到了近乎“无边框设计”的潮流外立面,不仅整体立面更简洁轻盈更美,也为了室内空间更大化的采光和视野。
如,杭州绿城春月锦庐,外立面采用「超纤细」的边框设计,把建筑的外框从传统的 50-100公分,降低为2-15公分。同时,把窗户边框也从6-12公分,弱化到1-1.5公分。

杭州绿城春月锦庐 效果图
青岛绿地凤栖澜玥,外立面设计以高端奢宅的理念为指导原则,着重强调横向线条,大尺寸落地窗等,立面简洁明快,且只有较少的装饰性构件。

绿地·凤栖澜玥 效果图
用材多元化
充分展现立面的质感和视觉美感
建筑的外立面,有着无法想象的设计,如今的建筑外立面用材从原来的单一材料,变成了不同材料的组合,以充分发挥出每种材料的优势,展现建筑外立面的质感和视觉美感。
① 铝板+玻璃
如,北京中海甲叁號院,颠覆传统的石材外立面设计,采用显赫世界的玻璃和铝板外墙嵌入灵动的大露台,层叠交错,流动型的设计随着光线的推移焕发出不同光彩的弧度。

中海甲叁號院效果图
郑州康桥美庐湾,选用大面积的双玻双low-e超白玻、系统窗等组件,深空灰与古铜金色铝板及格栅,呈现IMAX级的钻感视觉。
康桥美庐湾|示意图
所谓的历久弥新,大概说的就是这样的感觉。这种材质,不是涂料、真石漆甚至石材所能比拟的。
② 玻璃+铝板+石材
重庆保亿御江临风,有且只有三种材质:玻璃、铝板、以及石材,这种建筑至少有两个好处:一是视觉上非常简洁现代,不容易过时;二是时间在它身上几乎不可能发生作用,无论雾霾烟尘还是酸雨,都很难在它身上留下痕迹,一年清洗一次就可以闪亮如新。

重庆保亿御江临风 实景图
宁波天一晓著,采用了极高的窗墙比,加之葡萄牙米黄砂岩和金属铝板的双buff,浅香槟金的幕墙搭配深香槟金的线条包边,一种经久不息的奢华感迎面而来。
宁波天一晓著外立面实景图
③ 玻璃+石材+紫铜
郑州瀚海·观象,立面设计巧妙结合纯进口天然石材、通透灵动的玻璃、紫铜收边点缀的金属线条,使建筑凝练出清雅精粹的设计气韵,精致而不繁琐。

瀚海·观象|立面 示意图
色彩更极端
打造低饱和度的高级美
低饱和度的色彩选择让建筑更富高级感。
如,中国铁建·西派浣花,选用柔和、低饱和度的浅灰色系来形成社区平和基调;通过高档石材及多种金属饰面的应用,整座社区的现代感和精致度得到呈现,展现出一种含蓄的可辨识度。

中国铁建·西派浣花 摄影师:存在建筑摄影
中国铁建·西派城,香槟金色金属线条的运用是西派城立面的重要特征之一,温暖的色调营造出住宅社区应有的归属感和浪漫氛围。
中国铁建·西派城 摄影:存在建筑摄影
合肥恒基旭辉·铂悦天汇,白与蓝,互为呼应,互相添色,无论是远观还是近赏,均能给人以一种素净清灵之感,这种感受,即是建筑美学在感官和心灵上的外溢,为美好生活赋予能量。

铂悦天汇效果图
重庆·融创壹号院,用专门定制的高级灰”、“高级金两种色彩,隐喻重庆独特的天气和人们热情的性格,最后配以高墙窗比外窗设计,成就重庆独特颜值立面。

重庆·融创壹号院外立面意境图
杭州融信世纪,立面色彩上选用微暖的瓷白色作为建筑主色系,体现高雅的建筑意境表达;辅以深银灰、棕银和深香槟金三色,精心安排色彩比例和对比,营造视觉上的序列变化,在阳光下增添光影变化层次和肌理,强化建筑的动态和气势。

立面效果图
以深银灰作为全楼宇色彩的调节色,冷暖相衬,整体营造一种“高级灰”的社区质感,营造俊朗的视觉感受。
精细化设计
既是建筑品质的缩影,也是对工艺的偏执
立面的精细化设计,是未来住宅区建筑品质的缩影。一座完美的建筑是对细节的一次次优化、完善、把控。同时,通过对细部格外的精细化处理,会给人的视觉带来强烈的记忆点。
① 入口
北京中海甲叁號院,高达6米的曲面玻璃围合成入户大堂,以及上方昂扬的官帽设计,充满未来感,抬头就可以看到屋檐下一条条的建筑线条的勾勒。


北京中海甲叁號院入户门头效果图
无锡旭辉铂悦·溪上 入户门头效果图
世茂北京天誉效果图
重庆融创壹号院,全隐框外窗,立面干净通透,采光和视野也得到更大程度的开放。
重庆融创壹号院 实景图
外立面需要12道工艺打造,玻璃幕墙与铝板幕墙为手动拼接。
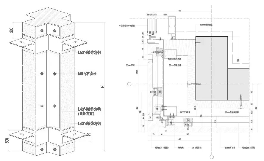
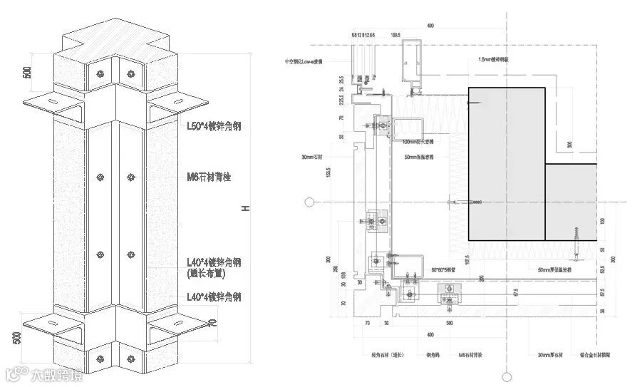
郑州融创·中原壹号院,为了让建筑的棱角更加挺拔、更加俊俏,每个转角都选用一根3米长的完整石材进行安装,比传统的海棠角更加自然流畅,但为之付出的代价是从林林总总的矿料中选取大于3米的荒料,再进行加工、运输、安装,不仅成本大大增加,而且施工难度倍增。

◎转角石材三维示意图(背面) ◎转角石材平面图

建筑摄影 | 是然建筑摄影 Schran Image&行知建筑摄影
重庆香港置地天湖岛,立面在铝板包圈与木材相交的地方,是以曲线描摹而成的独特燕窝角设计,这是设计和施工团队一起日夜奋战许久,经过分厘毫丝的处理,保证线圈包边与木板衔接处的美感统一,夹角不会破坏建筑的流线造型。
立面造型燕窝角示意图
局部的凸凹和转角的变化,令立面具有深度感和丰富感。
如,成都新希望·D10天府,以纯玻璃幕墙作为D10的建筑立面,3-4条“腰线”设计让建筑外观更有秩序和层次。

成都新希望·D10天府效果图
一个项目的品味和细节,完全取决于它对工艺的偏执,而正是因为这样的偏执,才让项目的立面能够呈现越来越精致的视觉效果,在未来楼市发展的周期中,保持永不凋零的成色。
本资料声明:
1.本文为建筑设计技术分析,仅供欣赏学习。
2.本资料为要约邀请,不视为要约,所有政府、政策信息均来源于官方披露信息,具体以实物、政府主管部门批准文件及买卖双方签订的商品房买卖合同约定为准。如有变化恕不另行通知。
3.因编辑需要,文字和图片无必然联系,仅供读者参考。
2021年·新产品方向
《 品牌地产 | 精品楼盘活动 》

微信公众号“搜建筑”(ID:sjz9999)
合作、宣传、投稿
请加小编微信:soujianzhu006










