▲ 更多精彩,点击“搜建筑” 关注即可
上期我们给大家推荐了一批建筑面积约128㎡的户型:市场流行,高性价比——128㎡四开间户型:竖厅、边厅、大横厅......(点击我阅读)
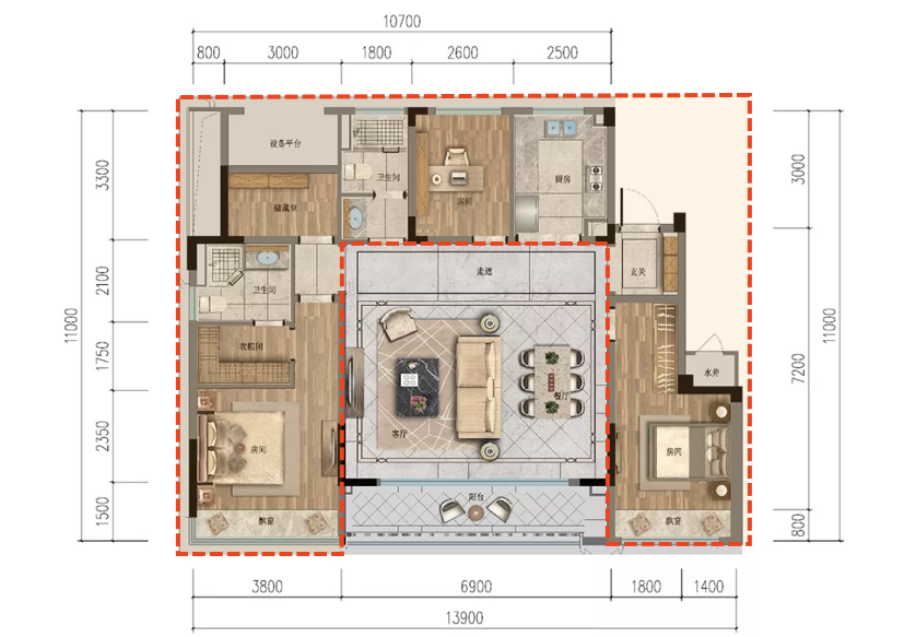
重庆龙湖云瑶玉陛一期洋房建面128平米户型
这些120平米面积段的户型适用于一些刚改家庭,但是对于现阶段二胎、三胎家庭的改善需求来说,这些户型还是偏紧凑一些,功能上也没有那么丰富。
市场告诉我们,140多平的户型正成为比较受欢迎的真正的改善户型,140平米户型设计很重要的一点在于更为宽敞,同时室内采光面更加优越,大面宽、四开间朝南的设计,更能满足大家的需求。
今天我们来看谁是140㎡面积段四开间户型王者:
1
天津保利云禧建筑面积约143㎡的3+1房户型,约6.2米横厅作为家庭在室内活动广泛的功能空间,给家庭提供了更多元的生活方式。

保利云禧建筑面积约143㎡户型示意图

保利云禧建筑面积约143㎡样板间实景图
入户动线也十分合理,玄关右侧为家政动线,买完菜直接进入家政间、厨房,可以进行消杀。
保利云禧建筑面积约143㎡样板间实景图
2
浙江省嘉兴鼎仁·东湖里约149平米户型:南向约14.15米的大面宽,拉出一条超宽向阳线。

浙江省嘉兴鼎仁·东湖里约149㎡户型示意图
独立电梯厅+入户玄关,无论收纳空间还是归家仪式感都做得很好,客厅采用了边厅设计,面积高达约46㎡,开间约5.7米,进深约8米,270°采光,拥有约10m+的采光面,充分利用社区及周边的景观资源,创造了无边界的视觉效果。
主卧超大套房设计,开间达到了约5.4米,预留衣帽间,自带独立卫生间,且自带南向飘窗。

浙江省嘉兴鼎仁·东湖里 效果图
3
杭州融创云潮府洋房建面约144㎡的户型,四个房间、两个卫生间、一个厨房围绕大客厅排布,形成了一个向下的“凹”字形。

杭州融创云潮府建面约144㎡户型
约6.9米方厅,面积约40㎡,外连同宽的阳台,这样的设计在以往的户型中很是少见,整个户型的南向面宽高达约13.9米,采光效果十足。

杭州融创云潮府 样板间实景图

杭州融创云潮府 效果图
4
西安万科·金域缇香约140㎡舒适洋房,四室两厅两卫设计,整体面宽约14.1米。

西安万科·金域缇香约140㎡洋房户型示意图
140平能做到4个房间还有7米的大横厅,空间利用率高、空间感强。客厅对面设计一间独立书房,可开可合可以当做一间多功能房使用。

西安万科·金域缇香约140㎡洋房实景图
5
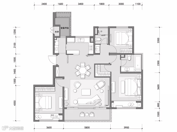
天津·瑞府建筑面积约142㎡四室两卫,非常实用的一款户型。整体面宽约14.3米,四开间朝南,每个空间尺度都很舒服。

天津·瑞府约142㎡户型图
独立玄关设计,“一”字贯通的客、餐、厨,客厅开间约4.5米,厨房、餐厅开间约3.75米,南北通透,形成竖厅LDKG一体化。

天津·瑞府样板间效果图

天津·瑞府建筑外立面效果图
6
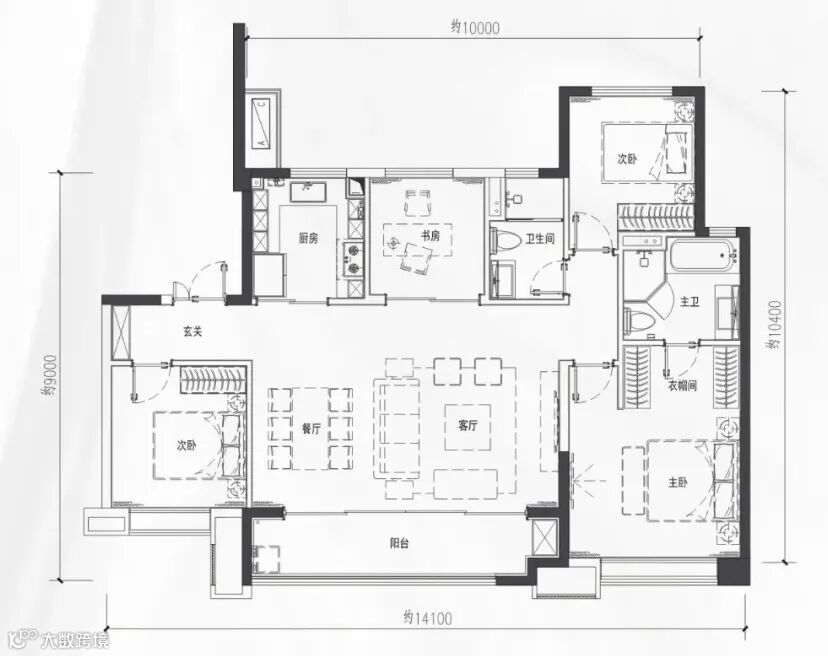
重庆龙湖云瑶玉陛这个约144㎡面积段的户型从体验感上就大不相同了。整体面宽约14.2米,完全的动静分区户型,南北双阳台设计。

重庆龙湖云瑶玉陛约144㎡户型图
做了一个多功能厅,和客厅形成了7.2米的超大横厅,餐厅和厨房一体化设计在北侧,生活场景更加丰富了。动静分区非常明显,四个卧室独立排列在一侧。

重庆龙湖云瑶玉陛实景图
7
苏州仁恒园和约142㎡户型,3房2厅2卫设计。
大横厅户型,进门后,在玄关换鞋,然后拐到卫生间干区洗手,再穿行去厨房、客餐厅,或是回卧室。这样的设计,充分考虑到新冠疫情之后人们生活习惯的改变,满足大家对归家消杀的需求。

苏州仁恒园和约142㎡户型图
仁恒做了“洄游户型”,客厅、餐厅、厨房“十字洄游”,由于没有通道设置,大大提高空间利用率。厨房、餐厅、客厅、阳台,空间自由延展,让阳光与清风弥漫心间。
8
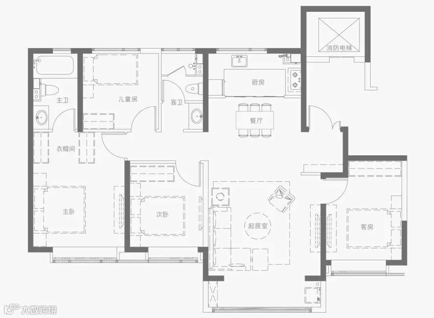
成都龙湖西樾锦宸建筑面积约140㎡户型4房设计,整体面宽约14米。

成都龙湖西樾锦宸约140㎡户型图
入户玄关设计,保障客厅私密性的同时,兼具强大收纳功能,为归家增添仪式感。约4.2米面宽的客厅,与餐厨一体化设计,L型双台面厨房,动线布局很流畅。约7.2米超大景观阳台,可做空中庭院、空中健身房等。

成都龙湖西樾锦宸样板间实景图
9
无锡金融街融府约140平米,这个户型做到了四开间朝南,4房2厅2卫设计,整体面宽达到约12.8米。

无锡金融街融府约140平米户型图
大横厅连接约8米双联阳台的大开间布局,餐厅、客厅、厨房,再加上南向阳台的延伸,整个空间十分开阔。
10
宁波美的慈宸府建筑面积约140㎡户型,经典的四房四开间设计,面宽达到约14米。

宁波美的慈宸府约140㎡户型图
双联跑道式阳台有约7.5米,南北通透的设计,主卧套房带有步入式衣帽间,面宽更是达到了约3.9米。
为什么会选择这款户型呢?
欢迎在下方留言探讨
本资料声明:
1.本文为建筑设计技术分析,仅供欣赏学习。
2.本资料为要约邀请,不视为要约,所有政府、政策信息均来源于官方披露信息,具体以实物、政府主管部门批准文件及买卖双方签订的商品房买卖合同约定为准。如有变化恕不另行通知。
3.因编辑需要,文字和图片无必然联系,仅供读者参考;
《 招聘投放&作品展示 》
搜建筑·矩阵平台
合作、宣传、投稿
请加小编微信:soujianzhu006
推荐一个
专业的地产+建筑平台
每天都有新内容
扫描二维码关注

微信公众号“搜建筑”(ID:sjz9999)



