随着人们生活水平不断提升,居住的定义已从表面衍生到内里。当下,高端产品的开发已经基本定向,大平层据守城市中芯,肩负起了资产保值增值与居住改善升级的双重价值。
一层一世界、两梯一户、尺度非凡的感官、270°江景+城市盛景不凡视野.....
麓宸·黑珍珠约505㎡产品的面世,必定是市场焦点所在,将生活的场景带入到建筑大尺度以及多维空间中融合,演绎着空间尺度下的生活之美,严谨而优雅。
打造出“一层一世界”的空间视野
人的一生都在追求更好的视野,吃饭喜欢靠窗的位置、买房子喜欢有超大景观阳台的户型……包括人们常说的“站得更高,看得更远”,也是这个道理。
在户型上,景观是大平层的主要考虑因素,好风景胜于一切。
从麓宸·黑珍珠约505㎡产品可以看出,充分从功能性、舒适性、空间感、仪式感,来达到品质、舒适、喜悦。
1、270°一线江景环绕,约17㎡的景观阳台
在生活中人们对视野资源的要求很高,开阔的视野尽瞰自然景观与城市风华,也是人生高度的彰显。

阳台实景图
约17㎡的景观阳台+270°的环幕视野,给客厅带来全景视野,休息之余可以欣赏到美丽的瓯江风情和夜间山体灯光秀。
2、约42㎡、挑空约6.2m的墅级会客厅
建筑设计中空间的形体结构是一个中间媒介,空间意境带给人的感受才是重要的无用之用。
客厅部分挑空,利用高差形成立体空间,让客厅空间突破常规3米的限制,挑空约6.2米,空间一下变得灵动起来,站在客厅内都能感受到天空的深邃。

客厅实景图
层高越高,居住体验更宽敞舒适,约6.2米的挑高空间,使整个空间看起来更加的开阔大气、宏伟壮观。

客厅实景图
在约42㎡毫无阻隔的会客厅中,在江的陪伴下,辅以大面宽玻璃窗,无论是从上往下看,还是从下往上看,都能感受到强大的视觉冲击。
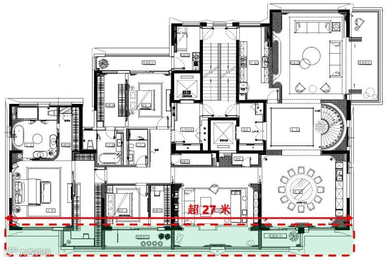
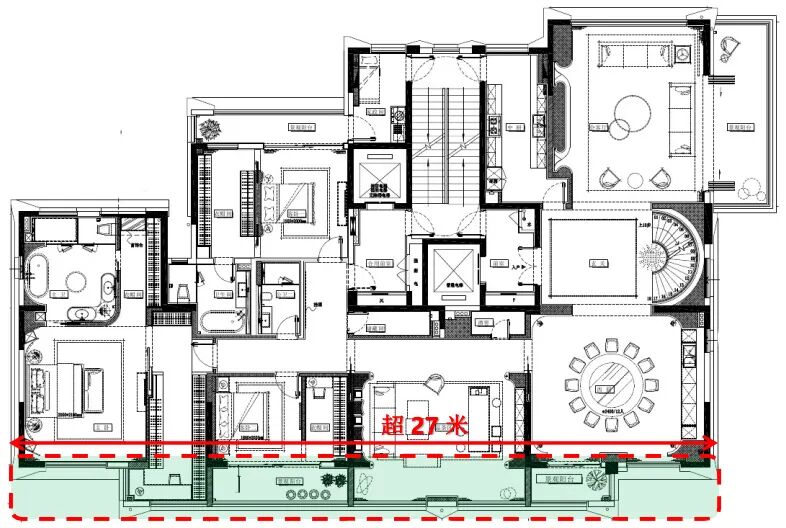
3、超27米南向面宽,尺度不凡的感官
我们知道,整间房子的亮度,取决于透光的面积,也就是面宽的大小。
超27米的南向面宽,尺度非常霸气,让整个室内充满阳光的气息,窗外景色一览无余。

约505㎡一层户型图
超27米的南向面宽+透明玻璃,这就使得室内和室外在空间上的屏障几乎消失不见,从而使室外空间在视觉感官上得到了延伸,将自然景观一直延展到了室内。
挑空约6.2米的墅级会客厅+近17㎡的景观阳台+270°的环幕视野+超27米的南向面宽的配置,让每一户、不同朝向、不同楼层都有不同的观景效果。
品质生活标准的体现
每一次生活方式的变革,都源自少数时代人物对生活的更高追求。只有以“人的深度需求”为尺度,对每一个空间在功能性和艺术性上的精益求精,才能与时代人物产生内在和鸣。
与不凡视野相比,同样让人震撼的是空间的尺度!
1、近15㎡的墅级入户玄关,生活仪式感满满
玄关的存在,是一个情感上逐渐强烈的过程,犹如一层一层的惊喜在你眼前次第展开。

玄关实景图
近15㎡的大气玄关设计,入室的第一眼,就有着明显不同的尺度感,玄关方正宽敞,是一个完整的独立空间,既作为室内室外的缓冲区,又成为一道守护家庭安全隐私的屏障。
2、两梯一户专属服务、动静分离、互不干扰
随着人们生活需求日益增长,舒适所包含的语境也越来越多。
值得一提的是,在户型的整体动线设计中,这个项目是难得一见的两梯一户设计,双梯专属服务,尽享私密。

一层空间动线示意图
主人专属电梯入户,给予归家的安全感和尊贵感;规划“保姆房”,实现保姆家政独立动线,确保主人和保姆的入户动线完全分开并且互不干扰。
当主人与重要的访客在客厅谈笑风生时,保姆直接进入厨房,从而免去了必须从正门入户穿过客厅而引起的尴尬。

一层分区示意图
对于分区,此户型将休息区跟活动区分离,独立互不打扰,但彼此相邻空间保证独立的同时,也可以发生日常的联系。
3、社交式空间,可容纳超20人一线江景的餐厅
空间不仅是纯粹满足使用功能的载体,而是创造出超乎想象的场所,使每个户型达到理想的空间利用率,从而满足各种聚居需求。

餐厅实景图
餐厅是业主招待商务伙伴和亲朋戚友的另外一个好地方,面积高达42㎡可容纳超20人,满足家族以及各类聚会需求,成为名副其实的社交式餐厅。

餐厅实景图
餐桌一旁的柜子,有收纳和展示双功能,可以成列珍藏的红酒,也可以展示得意成果。

多功能厅实景图
此户型打造双客厅空间,在餐厅旁的是另一个交际公区,来客的时候,家人就不用只呆在房间里,还可以在这个客厅进行活动。
此处可以为家庭功能多变的区域,可根据业主的喜好和需求打造健身房、茶室等空间,满足多样生活方式。
4、多套房设计、近70㎡主卧,高品质的生活享受
不同的生活节奏,亦能融洽地居于同一屋檐下,何其令人向往。

一楼套房实景图
户型打造了4房3厅,设计出一个高度聚合又能彼此独立的家庭化空间,每一位家庭成员的需求都能兼顾。

主卧卧室实景图
毫无疑问,主卧是精华所在。近70㎡主卧套房,南向开间7.2米,做了男女双衣帽间分开独立的设计,让男女主人的衣物用品各有分区。

主卧卫生间实景图
搭配约12㎡的独立阔绰内卫,L型双台盆设计,男女主人各自洗漱的距离刚刚好,如此主卧自成一方天地。

女儿房衣帽间实景图
多套房设计,精心放大主人生活空间的同时也保证了居住的隐私和尊崇感,让家中每一个人都能私享独立的生活空间。
5、独立、百变、观景式家庭互动房
比生活更重要的,是生活方式,生活方式决定了生活品质。
此户型很大特色是通过客厅挑空跳脱出单层扁平化的局限,设计出独特的二楼,考究每一代人的生活空间。
二楼可以说是额外的享受,北侧可根据兴趣爱好,打造影音室、家庭图书馆等,可以是孩子的私享空间,打造乐器房、画室等,延展生活意趣。




二楼套房实景图
二楼南侧,是一个近60㎡的独立套房,约6.5米的江景阳台、步入式衣帽间、近20㎡的套卫、独立落地式浴缸,正对着江景的无限视野,让每一个角度都是风景。
只有房企深入分析人们的居住行为,带着动线规划的意识做产品,才能使长期居住其中的业主的生活效率和幸福感逐渐增长。
结语:
所谓生活,究其根本,就是对居家体验的追求。
麓宸·黑珍珠带着前瞻视野的现代设计风尚,凸显大无止境的空间艺术,将空间、自然和人的情绪相融合,打造制衡点,以此来构建有温度、有态度的生活格调。
在优胜劣汰的市场,以结果说话是永恒的法则。
本资料声明:
1.本文为建筑设计技术分析,仅供欣赏学习。
2.本资料为要约邀请,不视为要约,所有政府、政策信息均来源于官方披露信息,具体以实物、政府主管部门批准文件及买卖双方签订的商品房买卖合同约定为准。如有变化恕不另行通知。
3.因编辑需要,文字和图片无必然联系,仅供读者参考; 本资料制作时间为2021年6月。
推荐一个
专业的地产+建筑平台
每天都有新内容
扫描二维码关注

微信公众号“搜建筑”(ID:sjz9999)
合作、宣传、投稿
请加小编微信:soujianzhu006

