▲ 更多精彩,点击关注“搜建筑”
今天我们来聊一聊洋房。
众所周知,洋房不光容积率低,而且梯户比小,整体居住密度较小,舒适度高。
洋房业主有更宽阔的空间享受生活,提升居住品质。
如果把纯正洋房的筛选标准设在8层以下(6+1、7+1),那么放眼全国,供应真是少得可怜。
除了少数位于远郊的低容积率地块,市区大部分项目根本做不出“真”洋房,这两年,市面上多了很多11+1、12+1的洋房产品,这种产品实际上是小高层的创新。
这样一来好多城市都出现了洋房扎堆的现象,洋房和叠墅这一类的中高端住宅,重新回归主流,我们来看一看各大房企是如何做的。
01
洋房布局
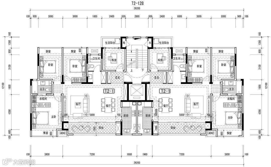
T2纯板式、独立入户、超大面宽
① 户型布局
T2纯板式结构一字排开的特点使住宅通常采光无死角,每一户从早到晚都可以享受充足阳光,避免室内潮湿和病菌滋生,一年四季通风采光不受限制;
而且进深较小,一般为南北通透格局,通风好;
如今横厅和边厅十分流行,这样景观效果好,大阳台带来开阔的视野,带来别样的观景体验。

洋房楼栋平面示意图
更多户型,登录搜建筑网站

② 规划布局
洋房板式结构建筑密度低,前后无遮挡,使空气可以形成南北对流,板式结构每层住户少,人口密度低,私密性更高,也较为清静、舒适。
龙湖.云瑶玉陛项目实景图

龙湖.云瑶玉陛项目实景图
郑州永威上和琚规划19栋洋房,五排布局改为四排,加大楼间距。地块中间规划一栋建筑面积约600㎡的洋房。

郑州永威上和琚鸟瞰图

郑州永威上和琚效果图
从昆明融创文旅城海潮和鸣鸟瞰图可以看出,洋房产品围绕中央园林有序合围,使得其宽阔的视野,能够尽享窗外无限景致。

昆明融创文旅城海潮和鸣鸟瞰图

昆明融创文旅城海潮和鸣洋房效果图
02
真改善洋房
不是刚需PLUS
① 公区的升级,空间功能更加复合
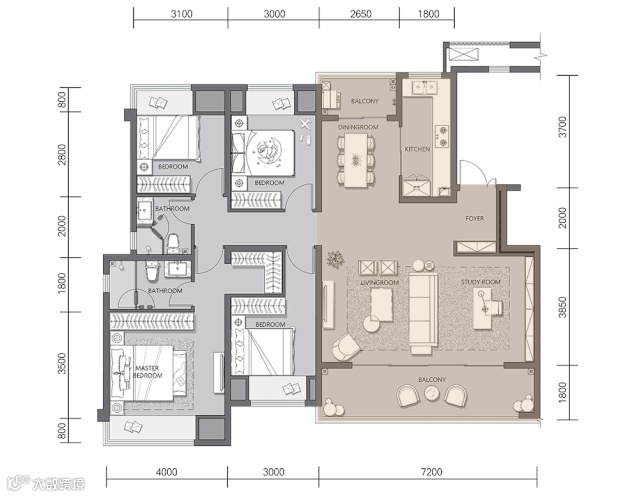
重庆首创做的户型全部无一遮挡,享受很好的视野,这也是设计的初衷,因为项目临江而建,江景一直以来都是大家很向往的,户型景观面达到270°观景,空间感得到非常大的延伸,不管是在哪个房间,都有很好的视觉享受。
比如他的洋房户型,7.6米大横厅连接约14.8m的观景跑道阳台,活脱脱一个空中花园,不仅宽度大,进深也很不错。
重庆首创天阅嘉陵建筑面积约142㎡户型平面示意图
阳台的进深对观景的体验尤为重要,天阅嘉陵突破传统的进深局限,将进深设计为约1.9m,竟然达到了2.4m,而传统的阳台进深大多数约为1.5m,仅仅0.4米的差距却能给生活带来更多的美好与可能。

重庆首创天阅嘉陵洋房样板间 实景图
提出巨厅概念的是旭辉等标杆房企,旭辉的CIFI-7产品中,更升级了这个设计。
如旭辉敔山公元洋房165㎡户型亮点十足,巨厅设计,四房两厅两卫,实际面积等同于市面上高层190㎡左右的实际面积,居住舒适度可想而知。

旭辉敔山公元洋房165㎡户型
客厅面宽约6.6米,配上面宽约9.2米的三开间阳台,带来270°的空间视野,地方足够大,还可以自由布置。

旭辉敔山公元
成都龙湖·龙悦台约130㎡户型,通过LDKG一体化设计,获得了更为阔绰的居住体验,强化互动与交流、满足各种使用场景的需求。
7m*5.1m的全明社交大客厅,结合南向通长阳台采用推拉门设计,无缝衔接构建出270°宽幕采光面阳光与清风一齐入室,焕新生活。

成都龙湖·龙悦台约130㎡户型
约150㎡户型,7.7m*5.7m全能方厅设计,减少了交通空间的浪费,也有利于采光和通风,每个角落灵动布置的可变空间,无论是孩子玩耍空间,成人交流区域,还是厨房的美食制作,要有互动与交流、能满足各种使用场景的情感需求。

成都龙湖·龙悦台150㎡户型
融创云潮府洋房建面约144㎡的户型,四个房间、两个卫生间、一个厨房围绕大客厅排布,形成了一个向下的“凹”字形。

融创云潮府约144㎡户型
如此一来,约6.9米横厅成为绝对的主角。这样的设计,在以往的户型中很是少见,因为这对户型的南向面宽要求非常之高,一般户型做不到云潮府这么通透。
云潮府洋房建面约140方整个户型的南向面宽高达惊人的约13.9米,即便是阴天也无需开灯照明,自然采光就已足够。

融创云潮府约144㎡横厅实景图
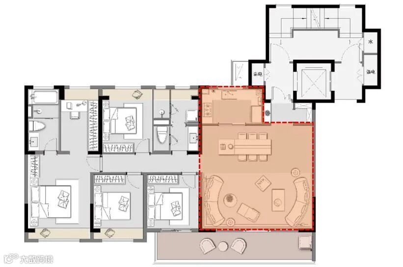
珠海 · 中海 · 寰宇天下约129㎡一梯两户花园洋房,将LDK(客餐厨)一体升级,在约129㎡户型上创新引入“LDKG”新型空间理念,打造超尺度的家庭厅。
珠海 · 中海 · 寰宇天下约129㎡户型 意向效果图

LDKG一体化空间 示意图
什么是LDKG一体化?就是将客、餐、厨、阳台公共空间融为一体,四大公区保持在一条直线上,这个空间俨然成为了户型里的“C位”。
在传统的竖厅里,厨房在整个客餐厅北侧的位置,有人在厨房做饭的时候,家人都在客厅,整个空间没有真正的融合。
一体化设计的厨房可封闭可开敞,还可以做西厨中岛,担纲社交厨房的重任,可以增强做饭的人与在客餐厅活动的人的互动,这样厨房更能融入进客餐厅。
厨房还辟出了家政间,整个LDKG公区相当于整个户型面积的二分之一,高达约60㎡,从家居的舒适度和房屋面积的利用率上来讲,这样的户型也是目前市场认可度很高的户型。

珠海 · 中海 · 寰宇天下约129㎡户型客厅 示意图
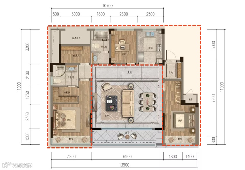
从大平层开始,龙湖就在强化公区一体化,在建面约144 ㎡洋房里,这个一体化有了更进一步的演绎:它把进深做得更窄,但面宽做得更大——既阔绰,又不过分浪费。

龙湖云瑶玉陛建面约144㎡户型示意图
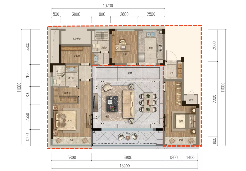
重庆龙湖云瑶玉陛一期的洋房,建面128平米,四房结构,配置的是一个7.1米宽的横厅。

龙湖云瑶玉陛建面约128㎡户型示意图
“LDKG”,是户型进化的一种表现,这个空间的升级,正说明大家的需求正在升级。正如马斯洛需求所说,当房屋满足了人类的吃住需求、安全需求的状态下,社交需求就变得较为迫切。
公区的更新升级,其实是在迎合这个趋势,随着生活的丰富程度,大家对公区的需求度,正在井喷式猛增,过去公区只是大家吃饭,看电视的地方,但现在,成了社交、聚会、亲子的MAX级宽幕空间。
升级公区,也就可以抓住更多用户的心。
② 更大的空中花园
洋房产品原本的特点就是引景入室,之前的花园洋房通过“层层退台”能够在每一层形成情景露台,以及早先金科的“空中院馆”,也都是这个思路,把花园引入室内。去年龙湖的网红户型“空中院子”实际上也是洋房的创新形态。

龙湖·揽境实景图 来源:承构建筑
重庆龙湖揽境的九宫格演绎
九宫格演绎理论图
从上图可以看出,户型设计以客厅为中心,客厅左右两侧分别是入户空间、餐厨空间、书房空间以及卧室空间;而客厅的上下两侧,一边是绿色的“空中院子”,而另一侧则是用灰色表示的空间。
注意灰色的部分,这个空间是不属于这套房子的,奇数层的灰色部分是偶数层的院子上空,偶数层的灰色部分是奇数层的院子上空,也就是说,每家的院子都是向上挑空的,层高可以达到6米以上。

△揽境C户型,套内约177平米
户型并非是传统的方块或长方形,而是井字型格局,将室内空间得到了划分,各个空间独立分区。大平层罕见3.15层高,四间卧室布局:两间次卧室同朝向同面积,一间独立的老人房,一间主卧套房。
更重要的是为“院子”提供了空间,让院子成为家庭生活的原点,院子是一个长8米、宽4-5米,高6米的立体空间,面积达40多平米。
③ 多套房设计,卧室空间功能更强大
对于和父母同住的客户而言,一方面希望保持一定隐私性,另一方面也要照顾老人的居住需求。因此,双套房或者多套房设计很有必要。
比如杭州棠玥湾洋房164㎡户型,双套房设计,主卧套相当奢华,另外一个套房可以作为老人套房。

杭州棠玥湾洋房164㎡户型
03
洋房墅化
打破传统洋房规制
蓝城春风江山陌上花开的墅化洋房,BA设计师在传统洋房产品的基础上开始变异,由下至上,户型由大到小堆叠,形成局部向上收缩的趋势。

蓝城春风江山陌上花开 来源:BA设计
底层户型面积段约115-130㎡。是上层户型内收的基础,通过设置衣帽间,卫生间,阳台等,做满进深。



蓝城春风江山陌上花开
二层户型面积段约110㎡左右,边套将主卧次卧,公卫私卫对调,取消衣帽间,将主卧变成书房,形成了约17㎡的贯通露台。



蓝城春风江山陌上花开
三到四层面积段为85-95㎡,通过书房→设备平台,取消套内卫生间等手法,阳台变成露台,露台变成飘窗,继续缓步内退。


蓝城春风江山陌上花开
屋顶将两小户型并为一户,形成了5开间朝南,约130㎡的大户型,拥有约57㎡的赠送面积!


蓝城春风江山陌上花开
重庆龙湖·三千庭全新打造了特色洋房——生态时代的立体花园。错叠布置的约6米挑高空中阳台花园、复式上层景观小阳台,使私家庭院的尺度和功能得到了双重满足。
重庆龙湖·三千庭 概念生成图
• 根据叠加户型平面,立面形成自然通高阳台;
• 线条比例延伸,形成互相咬合的立面符号语言记忆点;
• 约6米通高的阳台花园,两层叠加,形成空中花园洋房。

重庆龙湖·三千庭意境图

重庆龙湖·三千庭手稿图
结语:
房地产整体进入改善时代,从客户层面上来看,中产阶层的改善需求是,既想找一个能彰显身份的产品,又没有能力一步到位买别墅。这也导致洋房这种中高端产品的需求量上升。
而洋房非常容易同质化,随着大量的洋房集中入市,各大房企在产品方面也应该呈现出一些新的趋势。
2021年·新产品方向
《 品牌地产 | 精品楼盘活动 》
本资料声明:
1.本文为建筑设计技术分析,仅供欣赏学习。
2.本资料为要约邀请,不视为要约,所有政府、政策信息均来源于官方披露信息,具体以实物、政府主管部门批准文件及买卖双方签订的商品房买卖合同约定为准。如有变化恕不另行通知。
3.本资料制作因编辑需要,文字和图片无必然联系,仅供读者参考;
—— 作品展示、访谈、招聘 ——
搜建筑·矩阵平台
合作、宣传、投稿
请加小编微信:soujianzhu006
推荐一个
专业的地产+建筑平台
每天都有新内容
扫描二维码关注

微信公众号“搜建筑”(ID:sjz9999)








