▲ 更多精彩,点击关注“搜建筑”

“禁墅令”的颁布,意味着纯粹别墅区开始向高层+别墅组合社区转变。
随着绿城、景瑞、龙湖、德信、金茂等实力派开发商纷纷推出此类产品,时至今日,叠墅已成为高端改善型产品的硬核存在。
不久前,或许还是较缺房源,现如今,此类低密产品却频繁面临板块内的激烈厮杀。
1
叠墅是“伪别墅”?
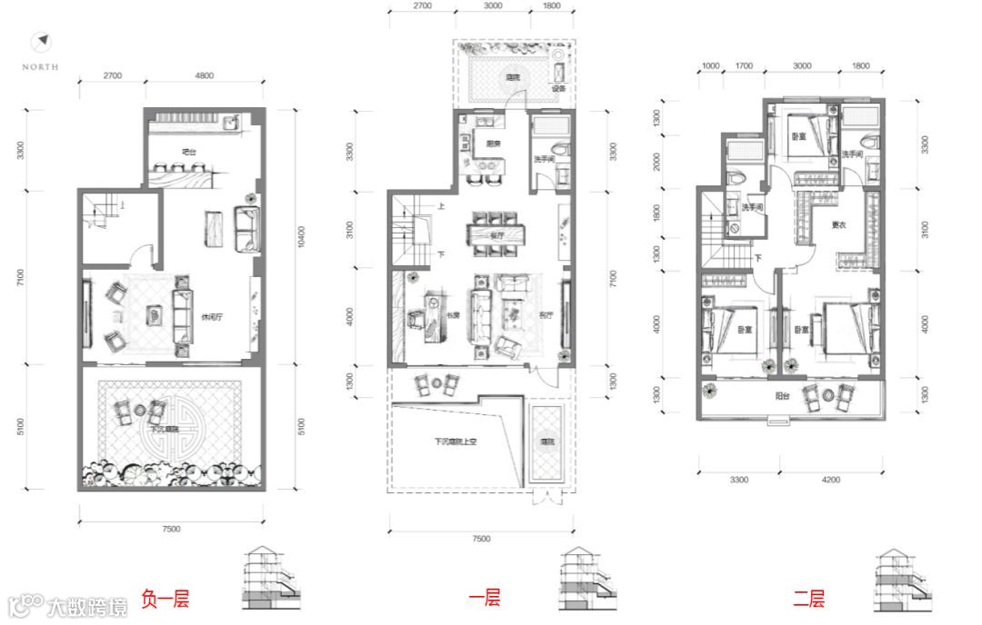
叠墅是个很特别的产品,通俗来讲,就是“叠”起来的别墅:拥有不同层空间(一般是两层)的多层户型,但是不能同时见天见地,由多户组成一幢。
曾经叠墅被诟病是伪别墅,其中一个原因是入户私密性和仪式感做得不到位,更糟心的是,早期很多叠墅没有设电梯,业主每天要从地库爬楼回家,居住体验极差。
而如今,各大地产做的叠墅能够克服“进深长、面宽窄”的痛点,而且对比平层,叠墅拥有更好的舒适度与私密性,能够做到更多的采光面,更接近“有天有地”的生活。
• 叠墅形式的创新
• 每一叠都有入户庭院或空中院子
• 全独立入户系统
• 真正实现“别墅”梦
......

2
叠墅形式的创新
1、咬合式

“咬合式”叠墅示意图
金地通过“咬合式户型”的设计,让相邻两个叠墅户型,实现了“上2下3”和“上3下2”的咬合,就如同乐高模型,上下两层不完全重叠,奇偶层相互咬合向上排布,比普通设计多出一个南向房!
金地·玖峯汇叠墅 效果图

金地·玖峯汇约140㎡下叠 平面图
这已经相当于市面上建筑面积约160方产品所能达到的面宽。以至于户型最终能够达到餐客厅、书房和大多数卧室都朝南,客厅还外接一个约6.8×1.8米的南向大阳台的舒适度。
2、“品”字形上下院墅
比如上海融创领馆壹号院独创上海区域第一个现代东方的院墅产品,其“品字形”空间布局,是介于传统合院与叠拼之间的一种创新户型。

上海融创领馆壹号院南立面 实景图

上海融创领馆壹号院北立面 实景图
我们知道,传统叠加类户型往往呈单一线方式叠加,上叠的资源弱于下叠的资源。
而“品字形”的上下叠墅为了避免这一问题,横跨两个下叠,为上叠提供了两个下叠全然没有的大开间。
可以说,“品字形”产品突破了叠加设计的传统,令人印象十分深刻。

上海领馆壹号院 上叠平面图
3、“3+3”两叠形制
景瑞镜溪绿汀摒弃了令人尴尬的中叠,采用的是“3+3”的设计,只有上叠和下叠,上下叠均拥有三层南向采光面,上叠有露台,下叠带花园。

景瑞镜溪绿汀叠墅结构 示意图

景瑞镜溪绿汀叠墅 效果图
6层叠墅分为上下叠,下叠1-3层有花园带5.4米高地下室,上叠4-6层有顶楼露台带5.4米高地下室,不过上叠的地下室比较小,更适合用于储藏空间。

景瑞镜溪绿汀184方下叠户型图
4、“乐高式”创新叠墅

联发藏珑大境叠墅结构示意图
藏珑大境真的做到了叠墅向叠院的产品进阶。从示意图中能看到,上中下三叠,基本上保证了每个户型至少有3个南向开间,而上叠D户型,甚至做到一墅5开间朝南。
中叠和上叠,都有一个私家北向入户大花园,每个花园还配私家电梯,保证了居家的私密性,相当于“大平层+院墅”的合体!
基本上在叠院这个产品上,垂直花园+户户有院+层层退台+双层地下室+独立电梯入户+私家车库,全都做到了。

联发藏珑大境155㎡上叠D户型图
3
各大地产如何做创新?
1、高颜值外立面+逆天窗墙比
好房看窗,“窗墙比”不仅决定着房子的颜值,也直接关乎采光和观景效果。
一般住宅的窗墙比大约为0.2-0.25,为了提高窗墙比,开发商要付出更高的成本。

德信·九溪云庄实景图
德信·九溪云庄的创新之处,在于它的“宽生活”设计,典型的“大屏叠墅”。

德信·九溪云庄“云墅”上叠样板实景
化繁为简的建筑立面、精湛的工艺,漂亮的棱角、挑檐。户型整体面宽近8米,整体窗墙比达到了0.26,南向窗墙比更是高达0.4。让窗棂变成了吸纳风景与阳光的画框——称之为“当代东方美学院邸”实不为过。

绿城交投·湖畔雲庐效果图
而湖畔雲庐,更擅长“光”的运用,就像是一个长方形的“玻璃盒子”,大面积的落地窗,轻盈的玻璃栏板……
光线从整幅落地窗洒落,从转角阳台栏板穿透,仿佛无处不在。以致于很多人在谈到这个产品时,更愿意称它为“光之屋”。
据开发商介绍,湖畔雲庐23-35米的楼间距,南向的窗墙比最大达到了62%,远远高于市面50% 左右的产品

绿城交投·湖畔雲庐效果图
建筑外墙材料,采用浅色石材结合深色铝型材辅以较为细腻的仿木材料,配以大面积玻璃,极大保证立面材质通透性、隐私性和尊贵感。
玻璃采用(6+12A+6)双层LOW-E 中空,采用高透光、低反射尽量避免光污染。建筑立面选用石材为珍珠蓝花岗石,色彩轻盈但不乏高贵。
2、户户私家庭院+地下空间



上海领馆壹号院 庭院示意图
“品”字型的上海领馆壹号院,上中下叠均带私家庭院。

上海领馆壹号院 庭院实景图
• 下叠院子最大可达400平,随时可以拥有自己的半亩泳池,享受院子比房子还大的奢阔生活。

上海领馆壹号院上叠 平面图
• 尤其上叠同样有独立入户区,自带3个总面积约100平的露台,阳光、花草、露天烧烤,生活随心所欲;更有约100平的地面院子,让老人也能拥有专属的活动空间。

上海领馆壹号院上叠露台 实景图
杭州万科·大溪谷效果图
再来看看万科·大溪谷的精工花园双叠墅。
• 每一层都设计与双开间面宽等比的阳台还不算,还于西墙设计大露台,与阳台合为L型的阳光观景台,让建筑与自然、阳光无限融合,全日制充分发挥“光合作用”。
• 上叠更是设计了一个 阁楼沙龙空间,环景视野,更是让访客们赞叹不已。平日里同事或亲友们来访,喝喝咖啡品品茶,叙叙感情,别提多有情调了。
• 下叠户型还设计了一个约5米层高设计超范儿的地下室,有地下采光花园,白天即使不开灯,自然光线也会充盈整个空间。

杭州万科·大溪谷上叠实景图

杭州万科·大溪谷效果图
世茂广州院子在传统造院的技法上,除了传承,更多的是户型创新,独创叠墅户型,六层三叠,采用独门独院的设计,使得业主入门即感受到庄严大气。

世茂广州院子叠院 效果图
该项目极具颠覆意义,户户带庭院,“叠院”住出“独院”感觉!

世茂广州院子叠院 户型图

世茂广州院子下沉庭院 实景图
2、满足高端改善客群的尺度与功能
杭州泰禾做的叠墅产品得房率非常高,下叠143㎡户型为例,最大使用面积可达约224㎡,一共可做5房3卫,三世同堂,最大限度的扩展了居住者的生活空间。
朝南开间可达7.5米,视野宽阔,纳景入户。主卧空间总面积达到30平方米,开间达到4.2米。
为了达到最好的采光和通风条件,设计了南面约38㎡的下沉式庭院,并且地下室设计方正,可做朝南的一个大房间,同时附有两个车位,满足家庭用车需求。

泰禾野风·大城小院下叠5房3厅3卫
上叠排建筑面积约127㎡,最大可使用面积约188㎡,上叠排有面积约20㎡的花园,产品位于3层、4层并赠送阁楼,一共可做4房。
空间布局打破了传统叠拼的构造,设计出“2+2+庭院”的结构,在相对有独立空间的基础上,私密又和谐互动。

泰禾野风·大城小院上叠5房3厅3卫
采用双入户方式,并且有电梯井,满足家里的老人爬楼不便的需求。
而其中最大的亮点在于赠送1.5米×7.5米的极大面宽阳台,配合落地窗,让客厅餐厅有着极佳的采光与视野。

泰禾野风·大城小院客厅 实景图
左滑查看更多 大宁金茂府户型
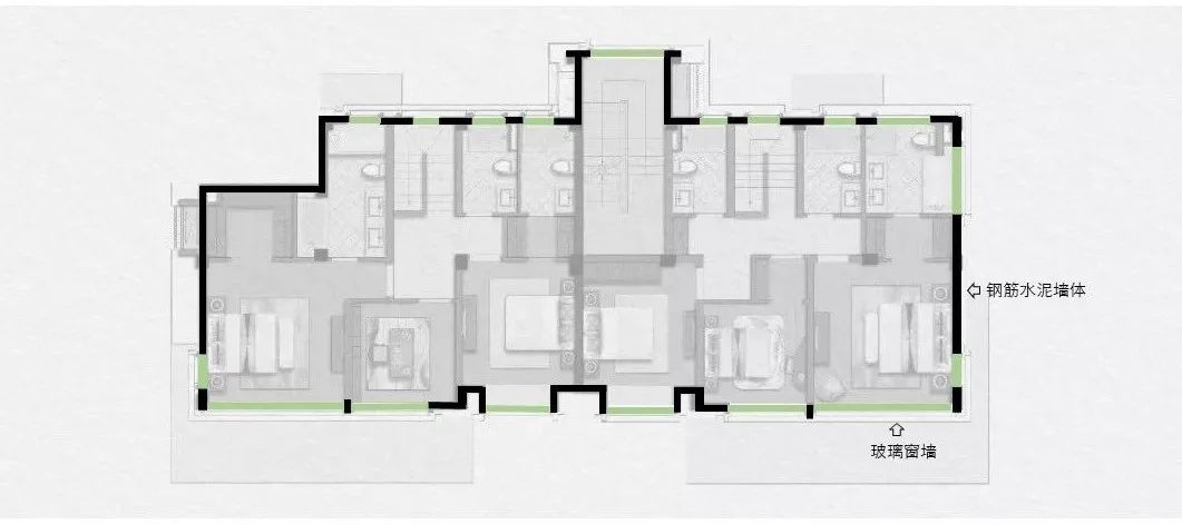
大宁金茂府所有的户型都做到了一层有卧室以及二层有三个卧室并且全套房设计。
• 整个上叠,层高约3米,面积很大,近8米的客厅采光面,让整个厅的通透性非常好。
• 下叠也同样采用超大采光面的玻璃窗餐厅与花园相连,整体视野更好。
• 中叠中西双厨设计,别具匠心,南面的老人房,与楼上空间相互独立,即便是三代同堂也能充分保证私密性。南向主卧套房大气方正,采光充足,并包含有步入式衣帽间和全明卫生间。北向的次卧套房同样配置有步入式衣帽间,且每间卧室均有交付衣柜,实用性很强。

大宁金茂府概念展示间实景图
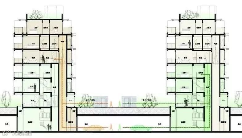
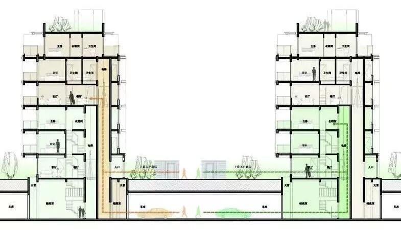
3、户户独立入户+私家电梯

大宁金茂府电梯 示意图
大宁金茂府的上中下叠都做到了独立入户,做到了入户路径完全独立且不相关联,最大限度的保留了私密性。
由于其独立入户的属性,无论上中下叠都可以占有一层花园的一部分,可谓是有天有地~

景瑞·镜溪绿汀 南北入户独立庭院
上叠(北入户)下叠(南入户)
景瑞·镜溪绿汀,上下叠客户入户方式私密与独立,首层独立门头,套内私家电梯,地下室私家入户,强化独立私密的“墅级”归家体验。
墅级产品每户享设计3 层地上空间,南、北向首层独立入户,更有独立式私家套内电梯确保更尊崇、便捷的享受。

景瑞镜溪绿汀叠墅结构示意
上叠产品,垂直5重空间。北向首层独立入户,部分独立地下室空间连通公共车库,露天平台,边套主卧约270°环形露台,高附加值。
下叠产品,南向首层独立入户,套内私家电梯。挑高地下室空间连通公共车库,大尺度入户园景,高附加值。
4、园区会所打造

景瑞镜溪绿汀概念展示间实景图
在园区会所的打造上,景瑞下足了功夫,配以下沉式庭院,园区内还设置了错落有致的水景,整体的居住体验与高端墅居无异。
联发·藏珑大境是一个非常典型的低密产品,打造了约1500㎡下沉式私家会所,涵盖茶室、城市会客厅、健身房、4 点半学堂、童玩中心等全龄活动空间;斥重金打造区域前所未见的户外泳池,更有八大丰茂园林景观,带来升级版墅区高品质生活。

联发·藏珑大境实景图
金地玖峯汇以6000万重金打造占地约1.3万㎡的豪华社区会所,打造包含恒温泳池、私厨和健身房等,可以实现都会峰层优越的社交、生活场景。

金地玖峯汇会所 效果图
有整整两个足球场那么大,这不只是“销售道具”,更是交付后,小区的广场和会所。

金地玖峯汇会所 效果图
叠墅如今成为市场主流,实现了逆袭。
无论时代如何向前,有追求的塔尖人士,依然义无反顾地选择叠墅作为改善型住居,有天有地,有院落,有露台,何乐而不为呢?
2021年·新产品方向
《 品牌地产 | 精品楼盘活动 》
本资料声明:
1.本文为建筑设计技术分析,仅供欣赏学习。
2.本资料为要约邀请,不视为要约,所有政府、政策信息均来源于官方披露信息,具体以实物、政府主管部门批准文件及买卖双方签订的商品房买卖合同约定为准。如有变化恕不另行通知。
3.因编辑需要,文字和图片无必然联系,仅供读者参考;
—— 作品展示、访谈、招聘 ——
搜建筑·矩阵平台
合作、宣传、投稿
请加小编微信:soujianzhu006
推荐一个
专业的地产+建筑平台
每天都有新内容
扫描二维码关注

微信公众号“搜建筑”(ID:sjz9999)





