▲ 更多精彩,点击关注“搜建筑”


设计背景
西北湖综合开发项目位于武汉核心城区——江汉区,总建筑面积约26万平方米。作为一体化设计项目,都设负责完成各地块的建筑方案、扩初、立面控制图,以及公区室内设计。

图底关系▲
一期为2017年建成的100m双玺办公楼,二期为2020年建成的西北湖一号超高层住宅 。三期为240m超高层商办,建成后将重塑整个西北湖区域的天际线。

整体鸟瞰▲
作为大西北湖项目的最后一块拼图,B地块的位置至关重要。基地西侧紧邻城市主干道——青年路,基地东侧毗邻内部道路,与C地块住宅隔路相望。

建设中的项目三期(2019年拍摄)▲

设计策略
造型切削,呼应湖景
项目地上总建筑面积约9万㎡,包含办公、高端公寓、商业等业态。主体建筑包含一栋42层,240m与一栋22层,100m高的塔楼。项目在地块中部设置商业广场,聚集人气。从城市设计的角度出发,与C地块轴线遥相呼应,形成富有节奏感的城市空间。
T1/T2商业裙房通过空中连廊连接,环通商业流线。广场设置下沉庭院,通过叠水、喷泉等景观元素,打造富有活力的立体商业空间。建筑造型上,通过体块切削与塔冠变化,呼应湖景,形成挺拔的建筑形象。

方案生成▲

青年路透视图▲
对外呼应城市,对内塑造街道
造型设计上,西侧设置超尺度点夹式玻璃幕墙,回应青年路的城市尺度。在东侧,打造细节丰富的街道界面,结合C地块住宅入户庭院,塑造符合人行尺度的街巷空间。

青年路透视图▲

下沉广场上部连廊▲

下沉广场上部连廊细节▲

沿青年路项目实景▲

完成度控制
设计体系是完成度控制的保证

塔楼标准段渲染图▲

塔楼标准段实景图▲


塔楼标准段实景图▲
幕墙系统归纳
幕墙设计以1:30系统大样为基础,在方案阶段即与幕墙顾问配合,初步明确节点做法以锁定造价,避免立面效果在后期出现大的调整。本项目塔楼及裙房分别归纳为五个主要系统:

塔楼:5个主要系统 | 9个次级系统▲

裙房:5个主要系统 | 7个次级系统▲
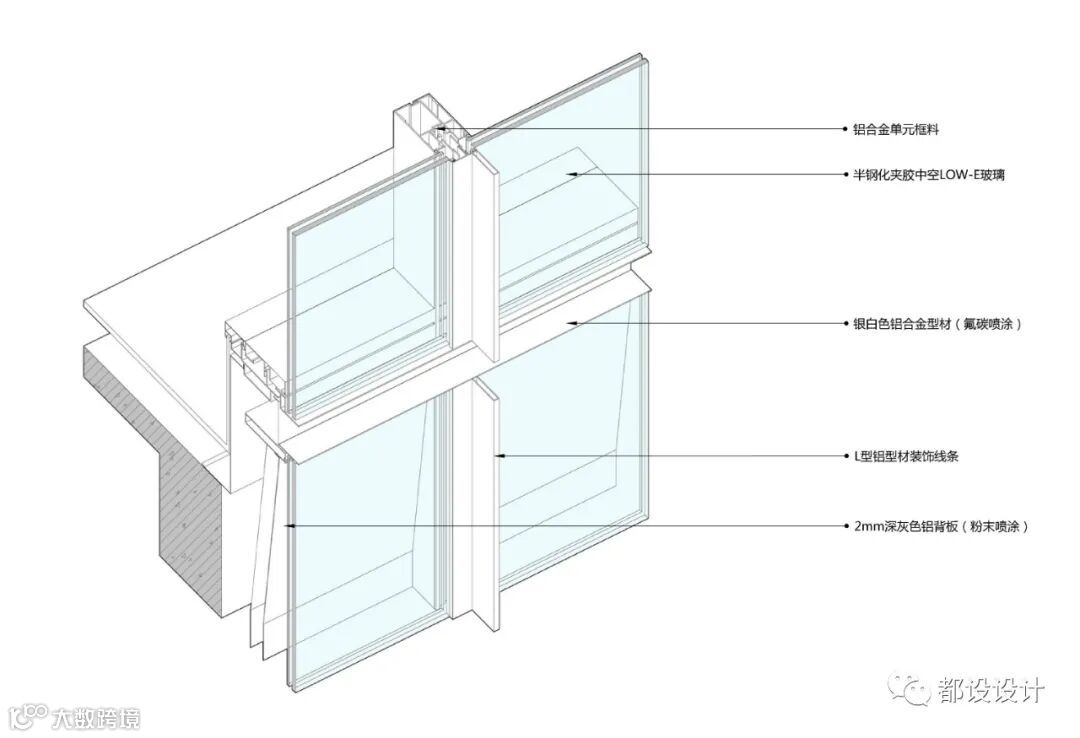
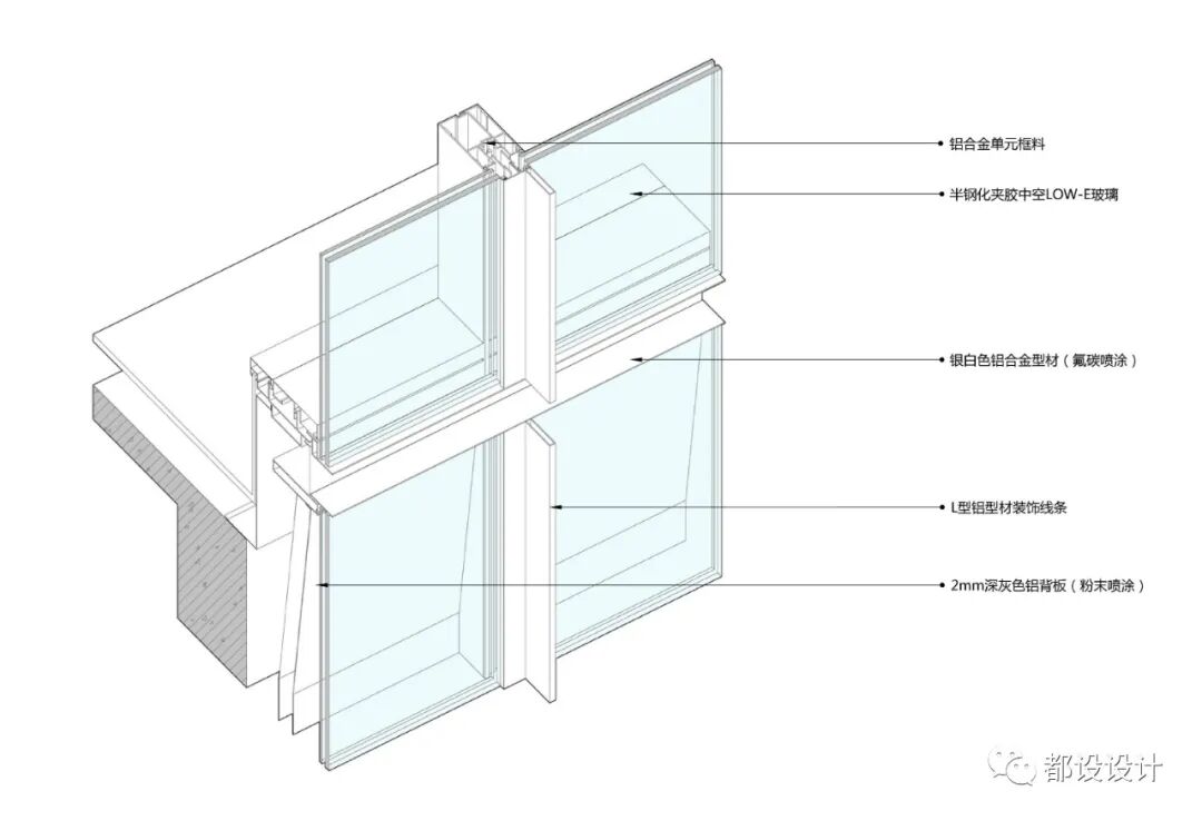
塔楼标准段幕墙系统
为满足办公及公寓使用需求,塔楼标准层必须布置足够的开启扇。考虑造价因素,B地块没有采用A地块穿孔板遮挡开启扇的做法,而是采用铝板内开扇。在开启扇两侧,采用竖向装饰条作为遮挡。同时通过竖向尺寸变化,形成塔楼的装饰元素。

通过竖向杆件进深的变化,形成节节升高的建筑形态▲

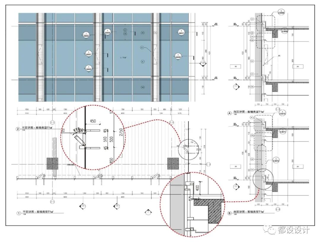
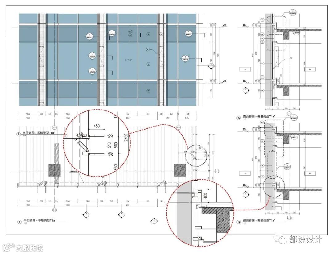
标准段1:30大样图▲

标准段三维节点▲
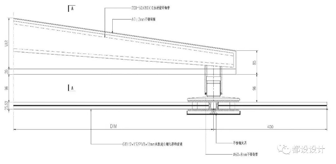
开启扇节点设计
为弱化铝板平开窗对外立面的影响,在开启扇与附框之间采用开缝连接。10mm的缝在开启与非开启部位拉通,形成完整的竖向线条。

开启扇节点示意▲

开启扇三维节点▲

标准段实景▲
样板段比选
幕墙实体样板段主要有两方面作用:一:确定细部做法。二:确定材料选型。本项目幕墙于19年11月首次上墙,设计师与顾问现场查看后,确认竖向L型线条在层间处上下拉通。

实体样板段▲
材料方面,考虑到塔楼与C地块住宅间距较近,玻璃采用透过率较低的夹胶中空半钢化玻璃。通过前后数次挂样,以及不同天气条件下的效果对比,最终确认玻璃选型。

实体样板段各轮比选▲

标准段定稿▲
塔楼塔冠幕墙系统
为保证塔楼整体效果,塔冠后侧背衬铝板,遮挡结构构架与设备。泛光照明结合竖向装饰条布置,突出建筑天际线效果,打造城市地标。

T2系统:塔楼主体标准段▲

泛光照明效果图▲
裙房底层商业幕墙系统
裙房幕墙采用横明竖隐系统,上部店招采用单玻贴彩釉条。在未招商时形成统一效果,招商后店招统一设在后部。下部采用隐框超白中空玻璃,底部通过L型型材收边,隐藏与地面交接胶缝。

P1系统:裙房底层商业▲

P1系统底部三维节点▲
塔楼底部及大堂幕墙系统
塔楼底部采用大尺度超白玻璃幕墙,在视线上增强室内外的联系。大堂幕墙立挺选用40*150不锈钢肋,最大限度增强玻璃通透性。

P4系统:主入口幕墙剖透视▲

P4系统:大堂剖透视▲
裙房西侧夹胶玻璃幕墙系统
西立面临近城市主干道,采用双层玻璃系统。外侧为超白夹胶玻璃,后部为高反中空玻璃,通过彩釉膜形成商业展示面。两侧通过不锈钢夹具,形成玻璃飞片外挑,创造轻盈飘逸的造型效果。



P5系统:西立面效果图▲


裙房实景图▲

玻璃飞片渲染图▲

玻璃飞片节点图▲

玻璃飞片细节▲

玻璃飞片细节▲

室内设计
裙房办公大堂部分采取建筑、室内一体化设计策略。两个办公大堂均为一字型布局,与外立面划分相呼应。地面采用卢浮米黄大理石,背景墙面采用铜板饰面,形成高端大气,又不失优雅的空间形象。电梯厅采用黑色大理石地面,与大堂形成材质对比。电梯门、设备间门等元素均统一在严格的模数之下。

T2办公大堂▲

公寓大堂效果图▲

公寓电梯厅效果图▲
结语
西北湖综合体是都设着力打造的设计体系的又一次实践。在当前环境下,作为国内设计公司,只有不断产出高水平的作品,才能在市场上与境外公司一较高下。而一套结合实际情况的借鉴先进的国外职业事务所的设计体系,在方案的高质量落地过程中,起着至关重要的作用。“一体化设计,精细化建造”,是都设在项目实践中长期坚持的设计原则。特别是面对大体量复杂项目时,设计体系更是项目高品质落地的关键因素。西北湖综合开发项目,从A地块双子塔楼到C地块超高层豪宅到在建的B地块,正是近年来都设在此标准下完成的标杆作品,用事实证明了都设在超大型复杂项目中有着比肩国际一流水准的设计把控能力。
项目图库

东立面图▲

一层平面图▲

二层平面图▲

三层平面图▲

T1标准层平面图▲

T2二层平面图▲
项目信息:
项目地点:湖北武汉
设计时间:2015-2019
总用地面积:13678.11㎡
总建筑面积:134106.33㎡
项目类型:商业/办公/高端公寓
业主:武汉昱玺置业发展有限公司
建筑设计及室内设计:上海都设营造建筑设计事务所有限公司
幕墙顾问:BRM上海睿柏
灯光顾问:上海格锐照明设计
合作设计院:中信建筑设计研究院
幕墙深化设计:武汉凌云幕墙设计院
建筑摄影:赵奕龙
本资料声明:
1.本文为建筑设计技术分析,仅供欣赏学习。
2.本资料为要约邀请,不视为要约,所有政府、政策信息均来源于官方披露信息,具体以实物、政府主管部门批准文件及买卖双方签订的商品房买卖合同约定为准。如有变化恕不另行通知。
3.因编辑需要,文字和图片无必然联系,仅供读者参考;
—— 作品展示、访谈、招聘 ——
搜建筑·矩阵平台
合作、宣传、投稿
请加小编微信:soujianzhu006
推荐一个
专业的地产+建筑平台
每天都有新内容
扫描二维码关注

微信公众号“搜建筑”(ID:sjz9999)


