▲ 更多精彩,点击关注“搜建筑”
北京人大附中航天城学校
北京市建筑设计研究院

▲ 校园鸟瞰-自然和城市的交界 ©夏至
中国人民大学附属中学北京航天城学校位于北京西北区域的一处城市和自然的交界线上,其所处的环境和不规则形状的用地一起,赋予了校园本身对话、自由、开放的基调,而这种基调,同时由教育变革的力量为其带来更为坚定的支撑。当然,校园所面对的不仅如此:规模和土地、学习者和空间、现状和未来、文化和科技、校园和社区……我们希望校园在传递自身存在的同时,能够建立一种融合的语境来对这些诉求一一回应。

▲ 区域位置图 ©BIAD
人民大学附属中学北京航天城学校位于北京市海淀区,建设用地面积:46533平方米,总建筑面积80893平方米,其中地上建筑面积41880平方米,建设规模为72班,包含小学、初中、高中、宿舍、餐厅、冰球馆、体育馆、游泳馆、报告厅等功能。

▲ 总平面图©BIAD

▲ 校园鸟瞰-城市界面 ©夏至

▲ 校园俯视 ©夏至
垂直重构
我们尝试将校园进行垂直重构,以解决办学规模和土地稀缺的矛盾:最大化利用地上空间的同时充分发掘地下空间,将对日照没有强制需求的大型场馆置于地下,通过下沉庭院解决其通风、消防等问题,这样大型场馆可独立面向社区开放,且不会对地上造成干扰,地上以教学、办公、住宿为主,相对静谧,整个校园动静有致。此外,地下具有良好的节能环境,可改善大型场馆的高能耗问题。
Vertical refactoringSo we tried to construct the campus by vertical refactoring, which can solve the problem between the big scale of the school and Limited land resources. The strategy including two items: fully explore underground space and maximize the use of floor ground space. The large venues without mandatory demand for sunshine are set underground, solving their problems of ventilation and fire control by sinking the courtyard. So that the large venues can be available to the community without disturbing the buildings above ground. Teaching, office, apartment are above the ground, which are relatively quiet, on the contrary, the underground space is a relatively more active and lively place. That tell the dynamic and static area of the whole campus apart obviously. In addition, the underground has a good energy-saving environment, which can improve the energy consumption situation of the large venues.

▲ 综合楼、小学楼-西立面全景 ©周梦

▲ 综合楼、报告厅剖透视图©BIAD

▲ 综合楼、体育馆、冰球馆剖透视图©BIAD

▲ 综合楼人视 ©周梦

▲ 小学楼人视 ©周梦

▲ 小学楼人视-夜景 ©周梦

▲ 小学楼人视 ©夏至
设计生成
校园的地上部分划分为四个建筑单体,由南往北依次是:小学部、综合楼、高中部、生活楼。由于用地是一个近似于梯形的形状,并且和正南北方向有一定的夹角,于是建筑单体们在适应用地边界和争取良好朝向之后,自然的生发成了一个扭动的趋势,同时扭动带来了朝向不同方向的半开放院落,分别对应了用地东侧城市形态和人流的出入,以及用地西侧自然景观对校园的渗透。

▲ 设计生成图 ©BIAD

▲ 小学楼平剖面图 ©BIAD

▲ 综合楼平剖面图©BIAD

▲ 综合楼人视 ©夏至

▲ 综合楼人视 ©夏至
文化的有形转达
这座校园同时面对有两个文化主题:一是校园毗邻的中国航天事业的核心——北京航天城,一是校园的使用方为中国基础教育的顶端——中国人民大学附属中学。如何将两个主题的特质在校园中同时表达?从而做到既延续语境又服务教学?

▲ 生活楼人视 ©周梦

▲ 生活楼人视-近景 ©夏至
我们尝试通过建筑师自身所特有的方式——相对物化的“建筑语言”对其做出回应:建筑主体材质为红色砌块砖+白色铝折板,其中红色砌块砖部分是方正的、厚重的,隐喻着人大附中的历史传承,白色铝折板部分是轻盈的、蓄势待发的,隐喻着航天科技的发展趋势。
Tangible expression of cultureWe try to express the two cultural themes of the campus -- the High School affiliated to Renmin University of China (RDFZ) and Beijing Aerospace City -- through "architectural language": building is made of red bricks and white aluminum plate, and the red bricks symbolizes the inheritance of RDFZ, while the white aluminum folding plate symbolizes the development of aerospace science and technology. More importantly, there is a lot of transition and alienation space between them, these spaces create places for future learning behavior.

▲ 生活楼人视 ©夏至
除了通过物化的语言对文化主题进行回应外,我们更为关注的是在红色砌块砖和白色铝折板二者之间形成的很多过渡的、相对异化的空间,例如通高的入口门厅、宽度变化的走廊、立体倾斜的墙面、不受楼层限制的图书空间等,这些空间可以是生发出未来学习行为的地方。

▲ 中学楼、生活楼-夜景 ©夏至
消解边界
我们希望校园是一种介于学习者和教育本身之间的介质,它必然是一个具有多重功能的空间,并且更为重要的是,我们不希望这些功能被清晰的界定,而是期待一种彼此之间的混合和过渡,当然如果“未来性”也可以被看作一种功能的话,那么希望它会是这个校园的主角。
Eliminate the boundaryThe campus is a medium between learners and the education. It has multiple-functions. We prefer a mix of function rather than a clearly definition.

▲ 综合楼-夜景 ©夏至

▲ 生活楼夜景 ©夏至
服务社区
我们认为校园可以是社区的映照和激励,学校可以给社区融入文化的理解和滋养,因此,我们致力于将学校化身为社区文化生活的重要节点。校园地上空间以教学、办公、住宿为主,相对静谧,而地下空间是一个相对更加活跃和热闹的场所,这样体现了整个校园的动静有致,同时,大型场馆空间都设置在地下,这样可以使其相对独立的各自面向社区开放,并且不会对地上造成干扰。

▲ 综合楼、小学楼夜景 ©周梦、王铮

▲ 小学楼夜景 ©夏至
我们尝试取消墙面和门等空间的物理界线,把一些功能做成开放式,这样使得空间更具有灵活性和透明性,希望学习者可以感受到一种不同于以往的连贯和通透,他们的行为和思想也因此不受拘束,可以无碍的交流互动。
By eliminating physical boundaries such as walls and doors, we can make the space more flexible and transparent. It can promote learners' creation, communication, collaboration and sharing, and give more right to control of the space back to people, so as to realize that the space encourages learning.

▲ 小学楼门厅 ©夏至

▲ 公共走廊 ©周梦、王铮

▲ 共享中庭 ©周梦
同时我们也尝试在校园的室内外之间制造一种渗透,因此我们在校园里最为活跃的区域——地面、首层和下沉庭院三者之间设置了多处景观大台阶,争取最大限度地消解建筑和场地的边界,景观大台阶也自然而然的成为了露天学习和休憩的场所,被学生们称为是“蓝天白云的课堂”。
In the outdoor space, to eliminate the boundary of buildings and ground the utmost, numbers of landscape steps are set between the ground, the ground floor roof and sinking courtyard, the most active areas. Landscape steps become the "Classroom with blue sky and white clouds" for children.

▲ 下沉庭院 ©夏至

▲ 体育馆 ©周梦

▲ 冰球馆 ©周梦
绿色健康
2020年9月,这座校园成为全球环境基金(GEF)“中国公共建筑能效提升项目”(中小学校园类)示范子项目。校园在绿色生态方面所做的有且不限于以下方面:
1.充分利用自然光线和通风;2.高性能围护结构降低能耗;3.屋顶种植再造自然和蓄能;
4.太阳能地源热泵清洁能源;5.雨水收集和循环水再利用;6.冰场制冰热回收融冰技术。

▲ 砌块砖外墙剖透视详图©BIAD

▲ 铝折板外墙剖透视详图 ©BIAD
期 待
教育家Adam F. Flak认为:“促成师生随时随地的交流与沟通,是建造一座校园最为重要的内容。” 我们笃信于此,但又不限于此——“交流和沟通”可以被放在更为宏观的层面进行讨论,这会让学校所面临的诸多诉求得以回应。我们期待校园可以成为一个对话和融合的有机体,具有明晰的逻辑、健康的构架和多样化的空间来支撑教育,并且可以超越时间和有形,同学习者、使用者乃至同社会一起不断成长,这即是我们设计这所学校的最大期待。
ExpectationWe expect the campus to be a dialogue and integrated organism, with a clear logical framework and a diversified functional space to support education, and grow with learners, users and society, beyond the limitation of the time and space.
项目图纸

▲ 首层平面图 ©BIAD

▲ 二层平面图©BIAD

▲ 地下一层平面图©BIAD

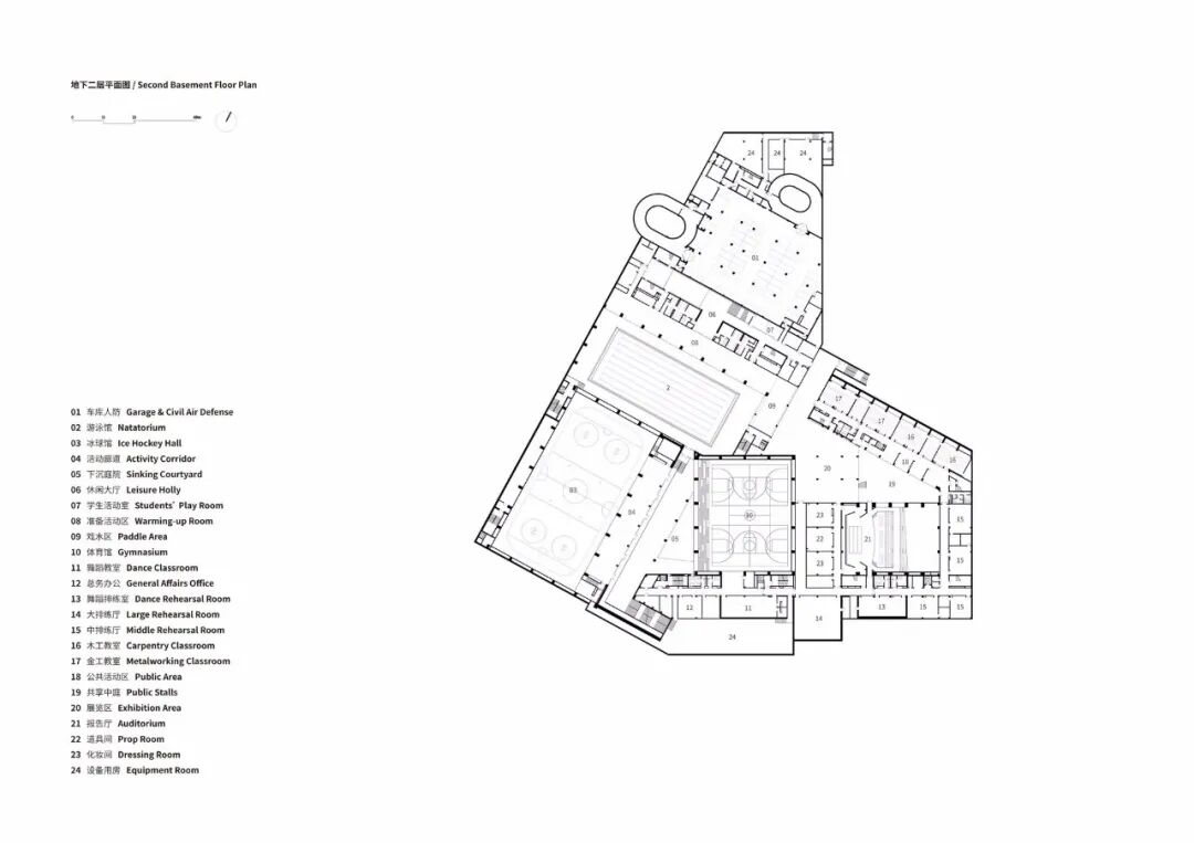
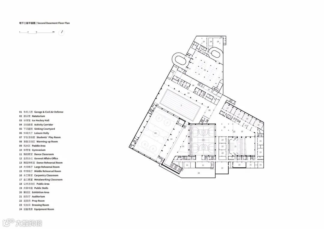
▲ 地下二层平面图©BIAD
项目名称:中国人民大学附属中学北京航天城学校
设计方:北京市建筑设计研究院有限公司
公司网站:http://www.biad.com.cn
联系邮箱:wz_biad_eaid@163.com
项目设计 & 完成年份:2016-2019
主创及设计团队
主创建筑师/项目负责人:王小工、王铮
建筑设计:贾文若、陈恺蒂、张丹明、高诚、丁洋、何亚琴、卢植、胡英娜、杨 晨、李轶凡、甘露、淮凯峰、李少鹏、杨凯、周梦
结构设计:李婷、康钊、孙珂
机电设计:鲁冬阳、樊华、李曼、赵亦宁
项目地址:北京市海淀区北京航天城
建筑面积:80893㎡
摄影版权:夏至、周梦
本资料声明:
1.本文为建筑设计技术分析,仅供欣赏学习。
2.本资料为要约邀请,不视为要约,所有政府、政策信息均来源于官方披露信息,具体以实物、政府主管部门批准文件及买卖双方签订的商品房买卖合同约定为准。如有变化恕不另行通知。
3.本资料制作因编辑需要,文字和图片无必然联系,仅供读者参考;
—— 作品展示、访谈、招聘 ——
搜建筑·矩阵平台
合作、宣传、投稿
请加小编微信:soujianzhu006
推荐一个
专业的地产+建筑平台
每天都有新内容
扫描二维码关注

微信公众号“搜建筑”(ID:sjz9999)


